Juan Pablo II 1810 bis , Piso 0

Consultar precio

Alquiler en Rosario, Departamento de Rosario

Consultar precio

  • Galpon

    Galpon

  • 15.000 m² Cubierta

    15.000 m² cubie.

  • 25 años

    25 años

  • 10 baños

    10 baños

  • Bueno

    Bueno

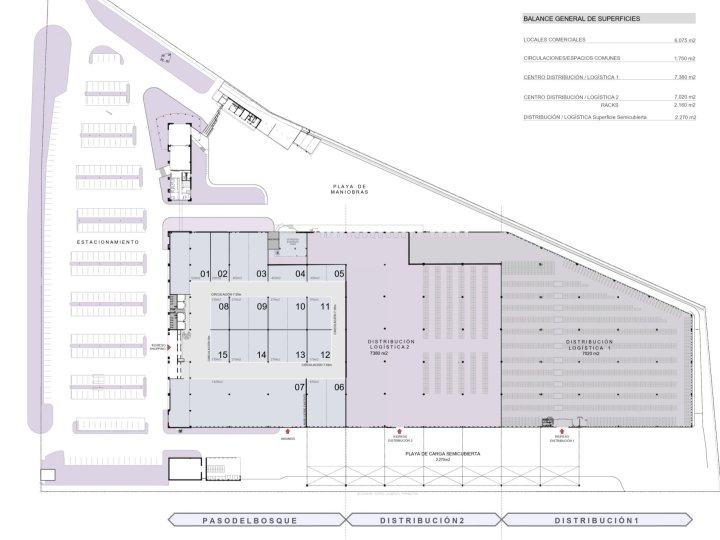
Nave Industrial 15.000 m² – Juan Pablo II 1850 BIS – Logística de Gran Escala

Nave Logística AAA en alquiler – 15.000 m²

Presentamos una nave de categoría AAA, diseñada para operaciones logísticas de alto rendimiento con conectividad.
Altura de techos sectorizada en alturas de 9 m y 12 m, permitiendo máxima flexibilidad operativa.

Características principales:
-19 docks de carga equipados con plataformas de nivelación y una plataforma con función ascensor.
-Gran alero exterior, ideal para maniobras y operaciones de carga/descarga.
-Portones a nivel para ingreso y salida de transporte.
-Posibilidad de instalar racks en toda la superficie.
-Infraestructura preparada para cámaras de frío y congelados.
-Red completa de incendios con hidrantes y matafuegos.
-Áreas administrativas, baños y vestuarios.
-Garita de seguridad en el acceso, con barrera de control.
-Grupo electrógeno.

Ubicación estratégica:
-Conectada directamente con las Autopistas Buenos Aires – Rosario – Córdoba – Santa Fe y con el Puente Rosario – Victoria, esta nave se posiciona en un punto logístico privilegiado para distribución regional y nacional.
Ideal para centros logísticos, operadores 3PL, empresas industriales o cadenas de frío que requieran infraestructura de primer nivel.

- KP461882 - KPT120514 -
- Publicado usando KiteProp CRM Inmobiliario

Ubicación

Rosario, Departamento de Rosario, Santa Fe

Características

  • Antiguedad: 25

  • Estado: Bueno

  • Cant. Baños: 10

  • Tipo de operación: Alquiler

  • Sup. Cubierta: 15.000 m2

  • Sup. Total: 15.000 m2

Código de aviso: 28KP461882

Contactá al anunciante

ARPINI INMOBILIARIA