Imprimir

Características del emprendimiento

  • Deptos. por Piso: 3
  • Pisos en Edificio: 13
  • Departamentos: 36

EDIFICIO ARENAS XVII

[TRINGALI-987]

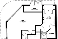
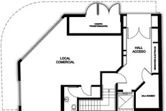
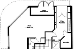
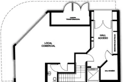
EDIFICIO A ESTRENAR DE 13 PISOS DE ALTURA .PLANTA BAJA LOCAL COMERCIAL DE 55 M2
12 PISOS DE VIVIENDA Y UNO DE SERVICIOS COMUNES

3 DEPARTAMENTOS POR PISO AL FRENTE Y CON BALCON: DOS DEPARTAMENTOS DE 2 AMBIENTES Y UN MONOAMBIENTE AMBOS CON DISEÑO MODERNO Y FUNCIONAL

PISO 13 UTILIZADO PARA SERVICIOS COMUNES (AMENITIES):
GENEROSO SALON DE USOS MULTIPLES (SUM) CON COCINA INDEPENDIENTE Y PARRILLA.
TERRAZA DE ESPARCIMIENTO
LAUNDRY CON PILETA ,LAVADORA Y SECADORA.

ASCENSOR AUTOMATICO (1) REVESTIDO CON ACERO INOXIDABLE CON ESPEJO.

ESCALERA PROTEGIDA CON PUERTAS CORTAFUEGO ,SISTEMA DE DETECCION Y VENTILACION CONTRA INCENDIO.

HALL DE ENTRADA REVESTIDO ,ESPEJO Y PUERTA BLINDEX CON DETALLES DE ACERO INOXIDABLE.

ILUMINACION LED EN ESPACIOS COMUNES.

INSTALACION SANITARIA RELIZADA CON CAÑERIAS DE POLIPROPILENO DE TERMOFUSION Y ACOPLE.
PARARAYOS Y BALIZAMIENTO EN AZOTEA.

Las unidades estarán equipadas con carpintería de aluminio de alta calidad con vidrios de doble acristalamiento (DVH), que garantizan una excelente aislación térmica y acústica.

Los departamentos de 2 ambientes contarán con placares integrales con interiores, y todos los pisos serán de porcelanato, lo que aporta elegancia y durabilidad.

La cocina estará equipada con muebles bajo mesada, alacena, una mesa de granito, y una cocina eléctrica con horno y hornallas.

Además, cada unidad contará con un termotanque eléctrico individual, y los baños estarán equipados con sanitarios Ferrum o de similares características, con revestimientos cerámicos o de porcelanato.

Las griferías serán de cierre cerámico FV, y cada ambiente principal contará con aire acondicionado split frío/calor.


----------------------HAY FINANCIACION PARA LA COMPRA ----------


TRINGALI
OLAVARRIA 526 CABA
WHATSAPP ********
********/********
LAS MEDIDAS SON APROXIMADAS Y FUERON SUMINISTRADAS POR EL PROPIETARIO. LAS REALES SURGIRAN DEL ESTADO PARCELARIO O DE LOS PLANOS DE LA UNIDAD.

Otros Servicios: SUM

Unidades disponibles

Monoambientes desde USD 67.000 hasta USD 87.000

Superficie: desde 32,00 m2 hasta 42,00 m2

8 unidades disponibles

8 unidades disponibles

Unidad
Sup.Total
Sup.Cubierta
Baños
Disposición
Precio
2° C
32,00 m2
28,00 m2
1
Frente
USD 67.000
4° A
42,00 m2
40,00 m2
1
Frente
USD 87.000
4° C
32,00 m2
28,00 m2
1
Frente
USD 71.000
5° C
32,00 m2
28,00 m2
1
Frente
USD 73.000
7° C
32,00 m2
28,00 m2
1
Frente
USD 77.000
8° C
32,00 m2
28,00 m2
1
Frente
USD 76.000
10° C
32,00 m2
28,00 m2
1
Frente
USD 76.000
12°
32,00 m2
30,00 m2
1
Frente
USD 76.000

1 dormitorio desde USD 80.000 hasta USD 90.000

Superficie: desde 36,00 m2 hasta 42,00 m2

6 unidades disponibles

6 unidades disponibles

Unidad
Sup.Total
Sup.Cubierta
Baños
Disposición
Precio
1° A
42,00 m2
35,00 m2
1
Frente
USD 80.000
9° A
42,00 m2
35,00 m2
1
Frente
USD 90.000
10° B
36,00 m2
34,00 m2
1
Frente
USD 81.000
11° B
36,00 m2
34,00 m2
1
Frente
USD 81.000
12° A
42,00 m2
35,00 m2
1
Frente
USD 90.000
12° B
36,00 m2
34,00 m2
1
Frente
USD 81.000

Ubicación del emprendimiento

Avenida Almirante Brown 1300

  • Construye: ARENAS BUILDING S.A.
  • Comercializa: TRINGALI PROPIEDADES
  • Ofrece financiación
  • Financiación: EMPRESA CONSTRUCTORA
  • Cuotas: 8
  • Anticipo: 50%
  • Descripción Financiación: ANTICIPO 50% EN DOLARES Y EL SALDO SE ABONA EN 24 CUOTAS MENSUALES Y CONSECUTIVAS EN DOLARES O EN PESOS AJUSTADOS POR CAC HASTA EL MOMENTO DE LA ESCRITURACION . LA POSESION SE OTORGA EN EL MES DE FEBRERO 2026 ---APTO BLANQUEO--- CONSULTENOS 1157159391 TRINGALI 4303-0808/4301-8522

Código de aviso: 131013-607405

Contactá al anunciante

TRINGALI PROPIEDADES

¡Consulta enviada!
¡Consulta enviada!

Contactá al anunciante

Al enviar estás aceptando los términos y condiciones

Error. Intenta de nuevo en unos minutos

¡Consulta enviada!
¡Consulta enviada!

Emprendimientos similares

Ver más emprendimientos similares