Imprimir

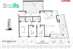
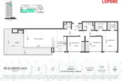
Rio de Janeiro 229

(LEP-LEP-598)
Edificio de 9 pisos con unidades de 1 , 2 , 3 , 4 y 5 ambientes
Edificio de 9 pisos, ubicado en el barrio de Caballito, cercania a Avenida la Plata, Avenida Rivdavia. Subte A, Parque Rivadavia, bares, resto y centros comerciales. Muy buena calidad constructiva. Marcos y hojas de aluminio, Aluar linea Modena 2, de color negro.
Vidrios simples de 4,2 mm o 6 mm (según corresponda por la medida del paño) burlete + sellador.
Pisos y Revestimientos:
Estar Comedor: Porcellanato
Dormitorios: Porcellanato/ceramica
Estructura de hormigón y Albañilería:
Interior |
Carpinterías:
Frentes de placard con puertas corredizas piso/techo, con interiores.
Baños: Bañera y artefactos sanitarios Rocca/Ferrum o de similares características, blanco brillante. Vanitory con bacha.
Griferías: Cocina y Baños: Monocomando FV o Hidromet o de similares características, terminación cromo.
Losa
Cocina y Baños: Monocomando FV o Hidromet o de similares características, terminación cromo.
Cocina: Pileta de acero inoxidable Johnson o Mi Pileta o similar.
Puertas interiores de unidades: marco chapa doblada BWG 18, Teca enchapada con varillas de aluminio
horizontales.
Calefacción: Piso radiante con termostato por caldera.
Aire Acondicionado: Instalación preparada para Split frio/calor.
Caldera dual Individual (a gas).
En la suite de la UF A, se entregara en el espacio vestidor terminado, con sus divisiones.
Instalaciones preparadas para recibir telefonía, internet, cable, y portero visor.
Servicios de Energía y Gas (-)
(-) Es responsabilidad de cada propietario, la solicitud del servicio individual de cada UF, de energía (Edesur) y gas
(Metrogas), entregándoles a cada uno las unidades con sus respectivas inspecciones aprobadas, tanto por Edesur
como Metrogas, respectivamente.
Climatización: Calefacción: Piso radiante con termostato por caldera.
Aire Acondicionado: Instalación preparada para Split frio/calor
Conexiones:
Agua Caliente Caldera individual a gas
En el caso de Edesur, cada propietario deberá presentar un certificado a través de un matriculado de energia que debera ser abonado al momento de la solicitud.

Unidades disponibles

Monoambientes desde USD 92.000 hasta USD 94.000

Superficie: desde 35,00 m2

2 unidades disponibles

2 unidades disponibles

Unidad
Sup.Total
Sup.Cubierta
Baños
Disposición
Precio
2° C
35,00 m2
35,00 m2
Interno
USD 92.000
4° C
35,00 m2
35,00 m2
1
Interno
USD 94.000

2 dormitorios desde USD 169.730 hasta USD 185.000

Superficie: desde 81,00 m2 hasta 82,00 m2

2 unidades disponibles

2 unidades disponibles

Unidad
Sup.Total
Sup.Cubierta
Baños
Disposición
Precio
1° A*
82,00 m2
72,00 m2
2
Frente
USD 169.730
5° A
81,00 m2
72,00 m2
2
Frente
USD 185.000

Ubicación del emprendimiento

Rio de janeiro 229

Código de aviso: BB95268109

Contactá al anunciante

LEPORE PROPIEDADES S.A.

¡Consulta enviada!
¡Consulta enviada!

Contactá al anunciante

Al enviar estás aceptando los términos y condiciones

Error. Intenta de nuevo en unos minutos

¡Consulta enviada!
¡Consulta enviada!

Emprendimientos similares

Ver más emprendimientos similares