Imprimir

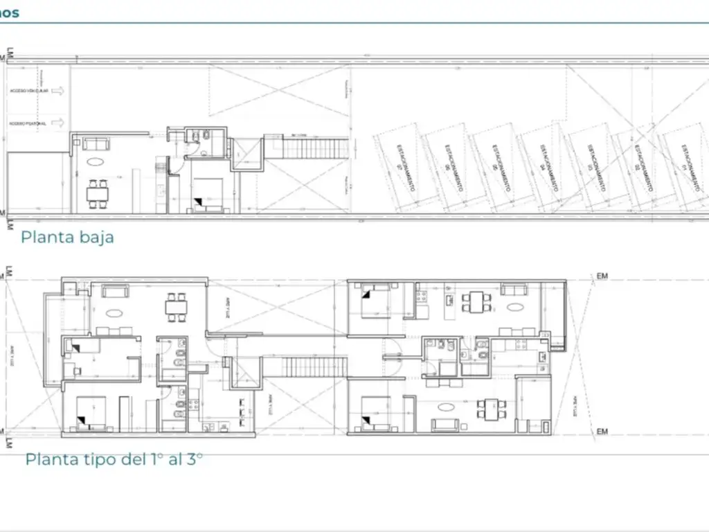
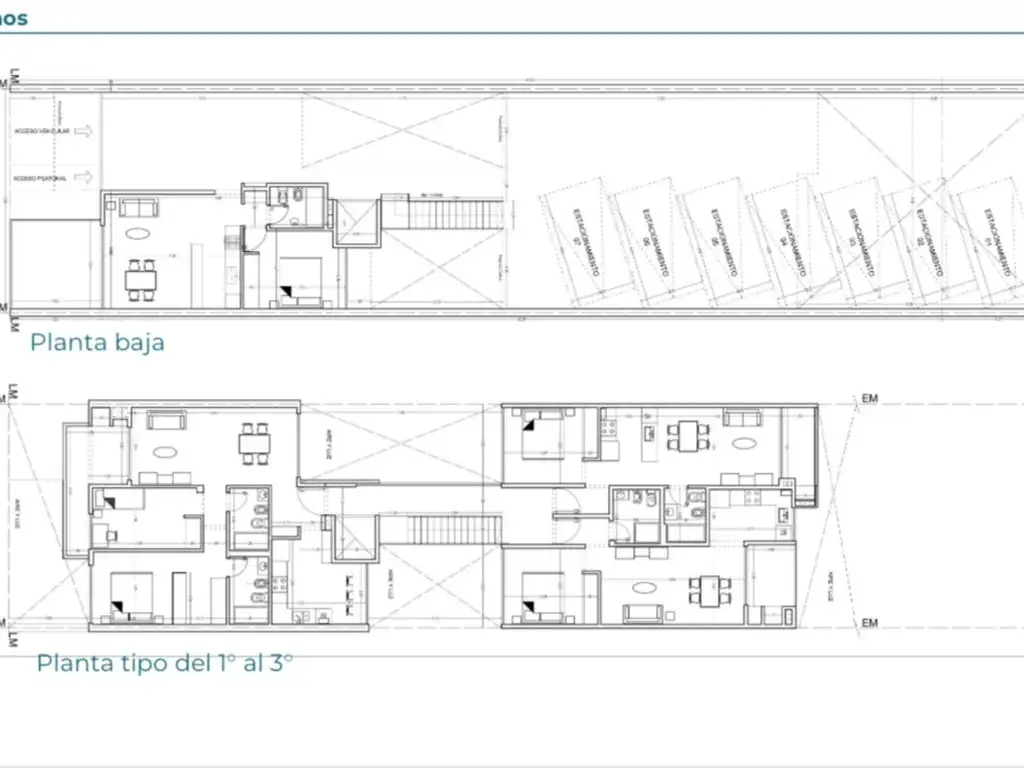
Características del emprendimiento

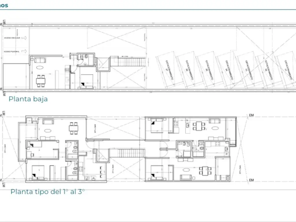
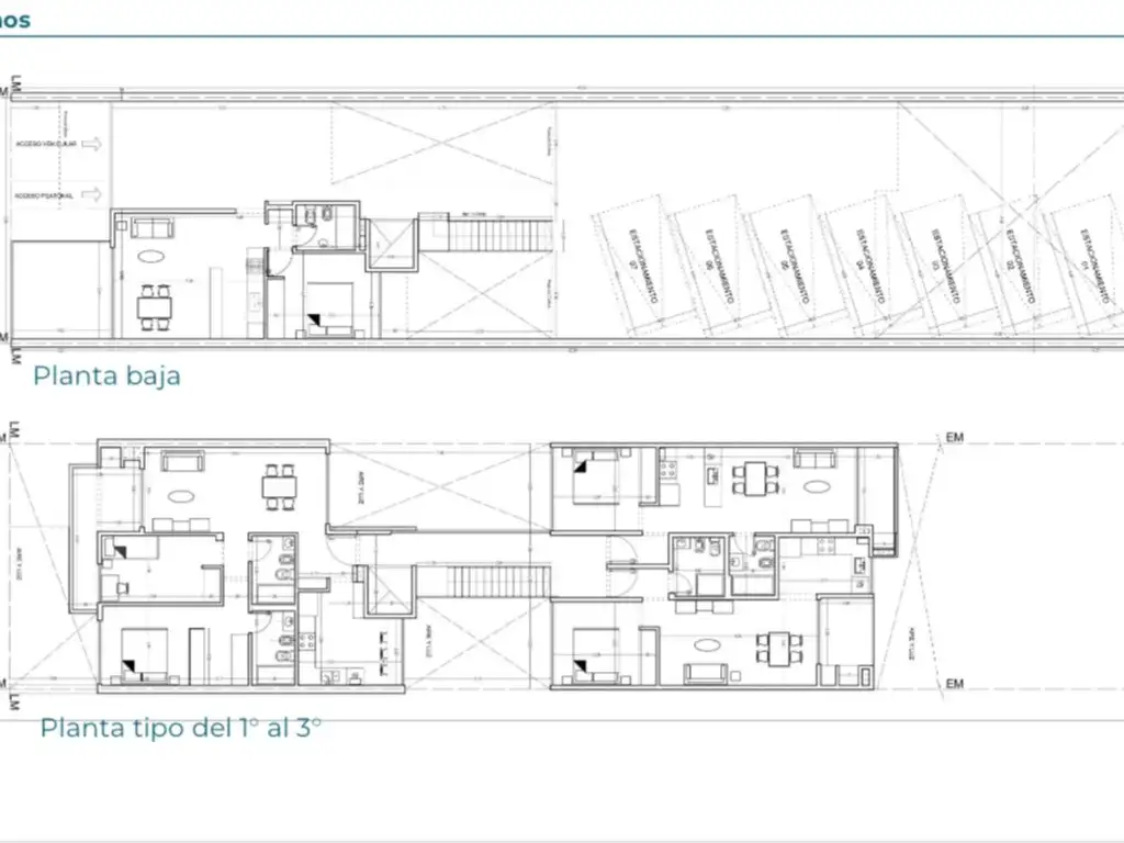
  • Deptos. por Piso: 3
  • Pisos en Edificio: 3
  • Departamentos: 10
  • Cocheras: 7

Rivadavia, da vida

Emprendimiento sobre calle Rivadavia 3541, entre las calles Cerrito y Salguero. A 4 cuadras de centro comercial de San Martín y a 7 cuadras de la Estacion de Tren linea Mitre.

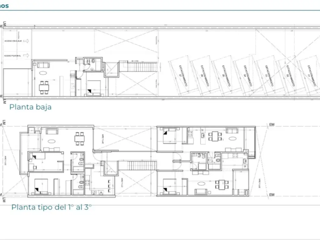
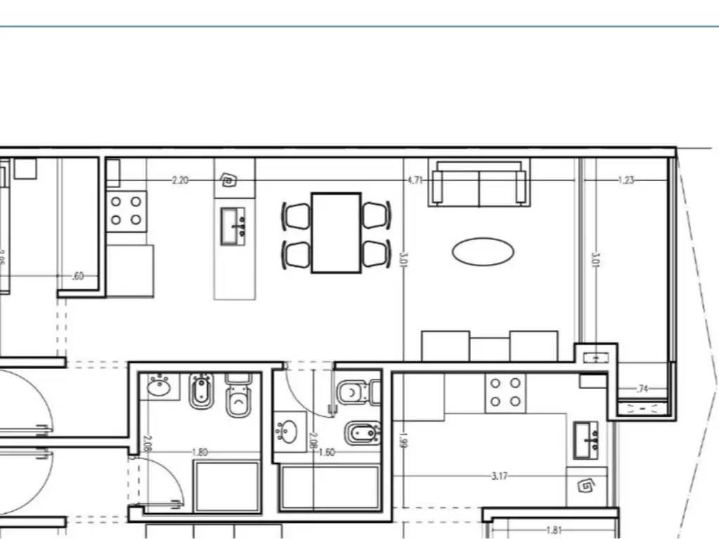
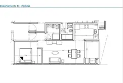
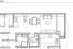
Consta de PB + 3 pisos. Departamentos de 2 y 3 ambientes.

Cerramientos de Aluminio foliado negro.

Griferías marca Peirano.

Todas las unidades cuentan balcón con parrilla y calefacción por radiadores.

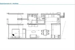
3 departamentos por piso, el de 3 ambientes al frente y dos de 2 ambientes al contra frente.

Un total de 7 cocheras.

Ascensor con puertas automáticas y cabina de acero inoxidable.


CONSULTE POR POSIBILIDAD DE FINANCIACION !!!!

Unidades disponibles

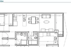
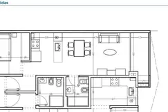
1 dormitorio desde USD 85.000

Superficie: desde 47,00 m2

1 unidades disponibles

1 unidades disponibles

Unidad
Sup.Total
Sup.Cubierta
Baños
Disposición
Precio
1° B
47,00 m2
5,00 m2
1
Contrafrente
USD 85.000

2 dormitorios desde USD 155.000

Superficie: desde 86,00 m2

1 unidades disponibles

1 unidades disponibles

Unidad
Sup.Total
Sup.Cubierta
Baños
Disposición
Precio
1° A
86,00 m2
76,00 m2
2
Frente
USD 155.000

Ubicación del emprendimiento

Rivadavia 3541

  • Construye: Ballhaus
  • Comercializa: Calabrese y Juan

Código de aviso: 211509-6335830

Contactá al anunciante

Calabrese y Juan

¡Consulta enviada!
¡Consulta enviada!

Contactá al anunciante

Al enviar estás aceptando los términos y condiciones

Error. Intenta de nuevo en unos minutos

¡Consulta enviada!
¡Consulta enviada!

Emprendimientos similares

Ver más emprendimientos similares