Imprimir

URQUIZA 3396

(UNI-UNI-15)
Departamentos mono y 1 dormitorio - Zona Terminal
Edificio Ocean XVI Urquiza 3396, edificio emplazado en una zona muy importante de la ciudad de Rosario, sobre calle Urquiza entre Iriondo y Crespo.
Excelente ubicación con cercanía con puntos fundamentales como: Mercado del Patio, Terminal de Ómnibus, Facultad de Medicina, Facultad de Odontología, Facultad de Ciencias Bioquímicas, Farmacia, Universidad Abierta Interamericana (UAI) y Universidad Católica Argentina (UCA).

Características:
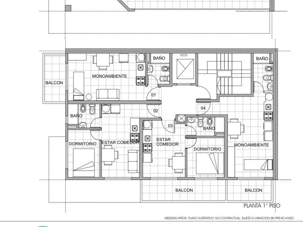
- Edificio de 4 pisos, compuesto por unidades de 1 dormitorio (2 unidades por piso) y monoambientes (2 unidades por piso).-
- En planta baja dispone de un local comercial.

Especificaciones técnicas:
- Cielorrasos y paredes en yeso terminadas con pintura al latex.
- Aberturas de aluminio blanco.
- Pisos y revestimientos cerámicos de primera calidad.
- Puertas placas blancas con herrajes de primera calidad.
- Muebles de cocina completos: Bajo mesada y alacena en MDF enchapados en melamina, mesada de granito gris mara, pileta de acero inoxidable y grifería monocomando de primera calidad.
- Unidades equipadas con termotanques eléctrico.
- Baños equipados con Vanitory y bañera en departamentos de 1 dormitorio. En los monoambientes se coloca receptáculo de ducha.
- Instalación de cañerías para telefonía y TV Cable.
- Hall de ingreso con excelentes terminaciones.
- Terminación exterior de ladrillo visto combinado con revoque.
- Ascensor con cabina de acero inoxidable, espejo, piso granito, puertas automáticas en cabina y palieres.

Unidades disponibles

Monoambientes desde USD 45.000 hasta USD 49.900

Superficie: desde 29,00 m2 hasta 31,00 m2

3 unidades disponibles

3 unidades disponibles

Unidad
Sup.Total
Sup.Cubierta
Baños
Disposición
Precio
01° 02
29,00 m2
29,00 m2
1
Frente
USD 45.000
01° 03
31,00 m2
24,00 m2
1
Frente
USD 49.900
02° 04
30,00 m2
26,00 m2
1
Frente
USD 46.000

1 dormitorio desde USD 45.000 hasta USD 49.900

Superficie: desde 29,00 m2 hasta 31,00 m2

2 unidades disponibles

2 unidades disponibles

Unidad
Sup.Total
Sup.Cubierta
Baños
Disposición
Precio
01° 02
29,00 m2
29,00 m2
1
Frente
USD 45.000
01° 03
31,00 m2
24,00 m2
1
Frente
USD 49.900

Ubicación del emprendimiento

Urquiza 3300

Código de aviso: EMPRENDIMIENTO-UNI-UNI-15

Contactá al anunciante

URBANIA DANILO MATTALONI

¡Consulta enviada!
¡Consulta enviada!

Contactá al anunciante

Al enviar estás aceptando los términos y condiciones

Error. Intenta de nuevo en unos minutos

¡Consulta enviada!
¡Consulta enviada!

Emprendimientos similares

Ver más emprendimientos similares