Características del emprendimiento

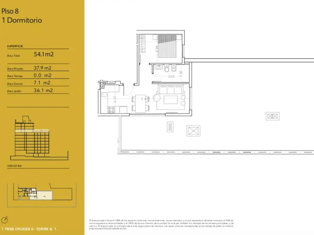
  • Pisos en Edificio: 10

Emprendimiento en venta Tres Cruces II. Montevideo

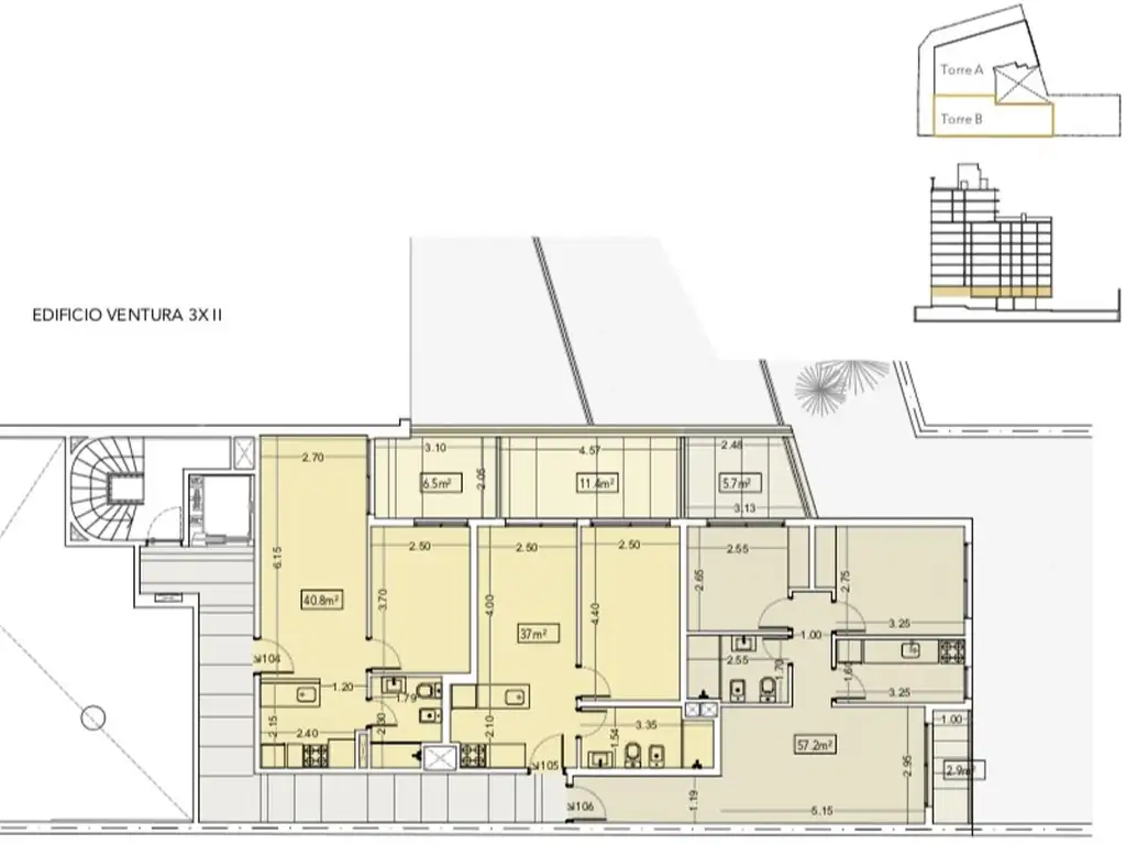
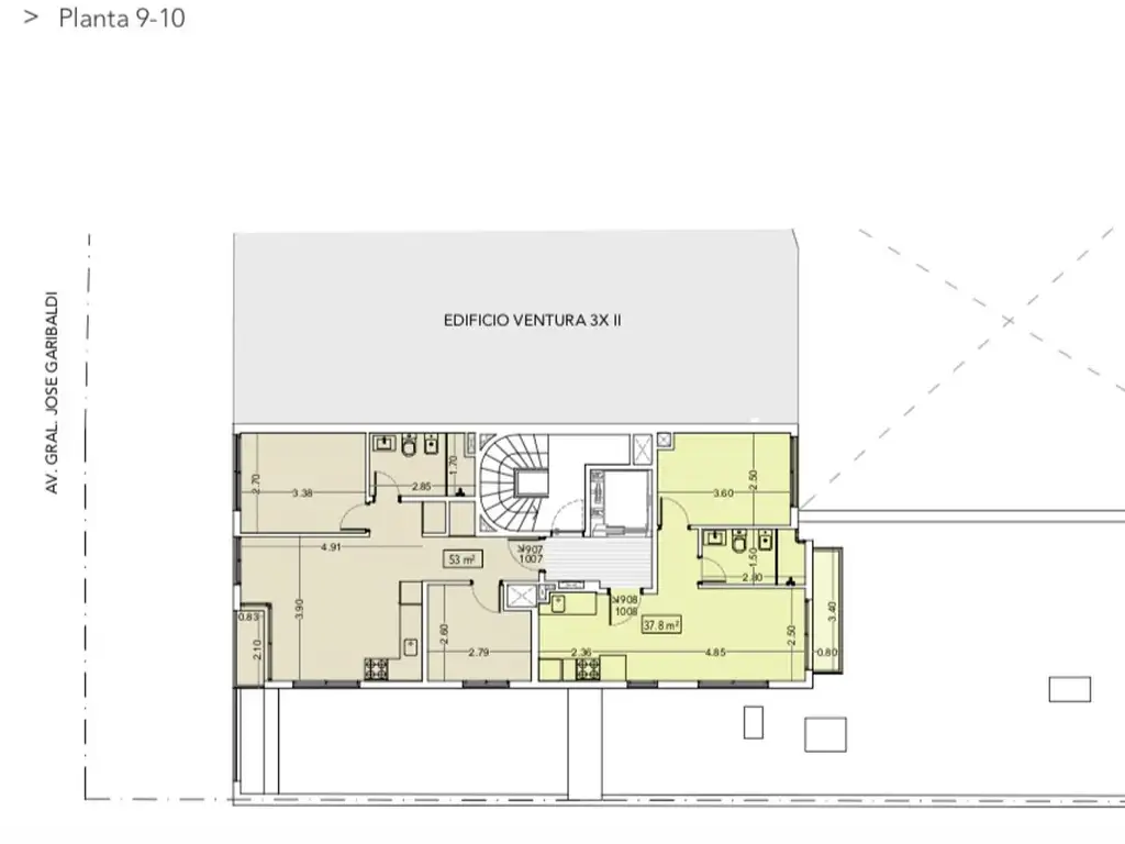
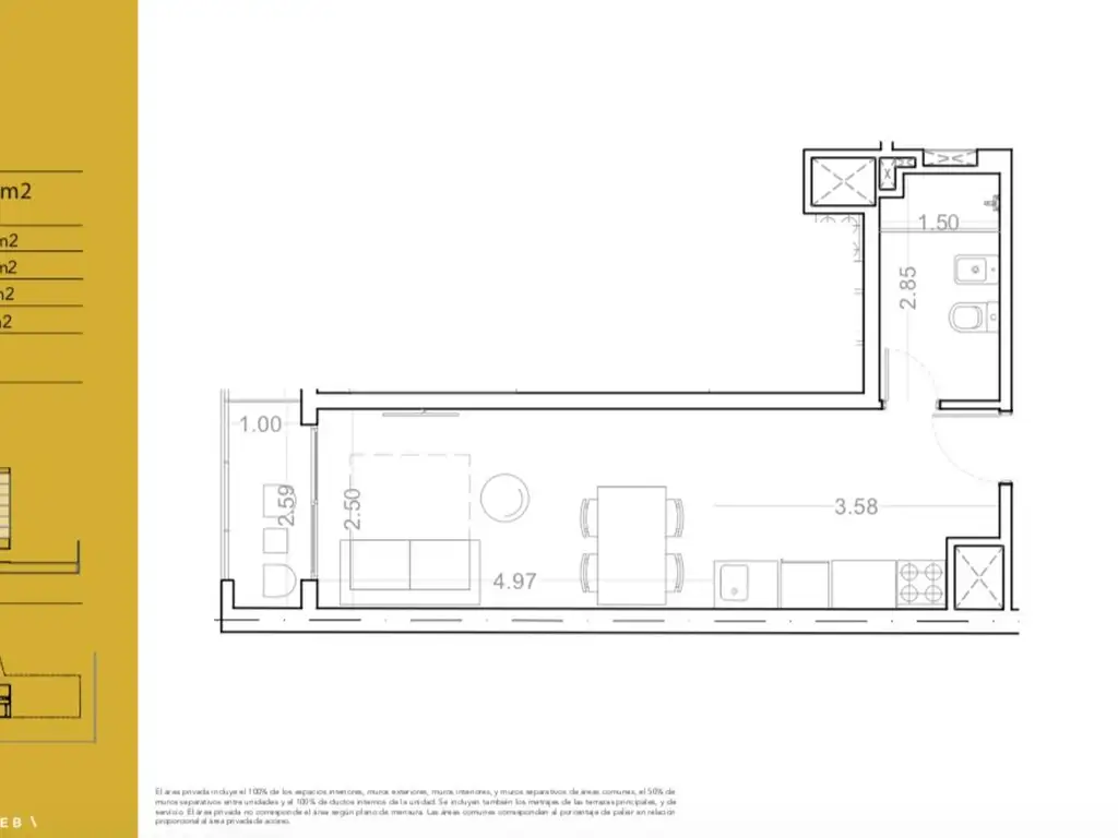
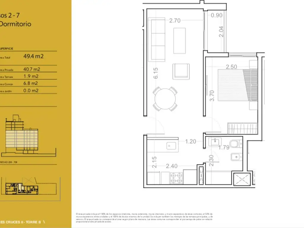
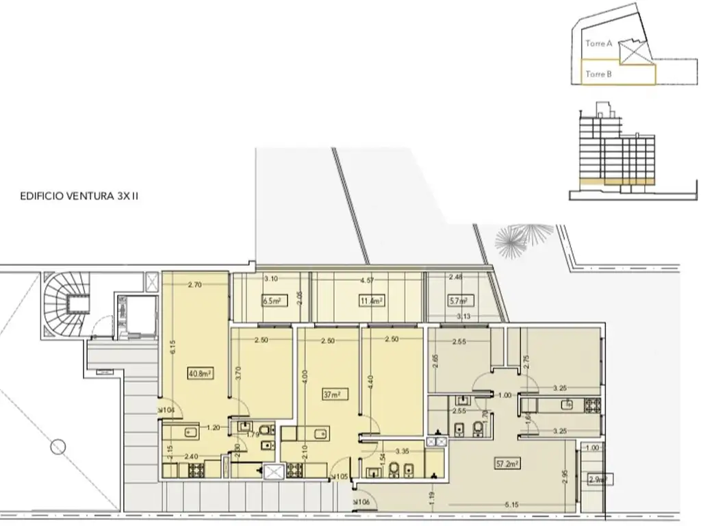
Emprendimiento en venta edificio "Ventura Tres Cruces. Torre B". Departamentos monoambientes, 1,2 y 3 dormitorios.
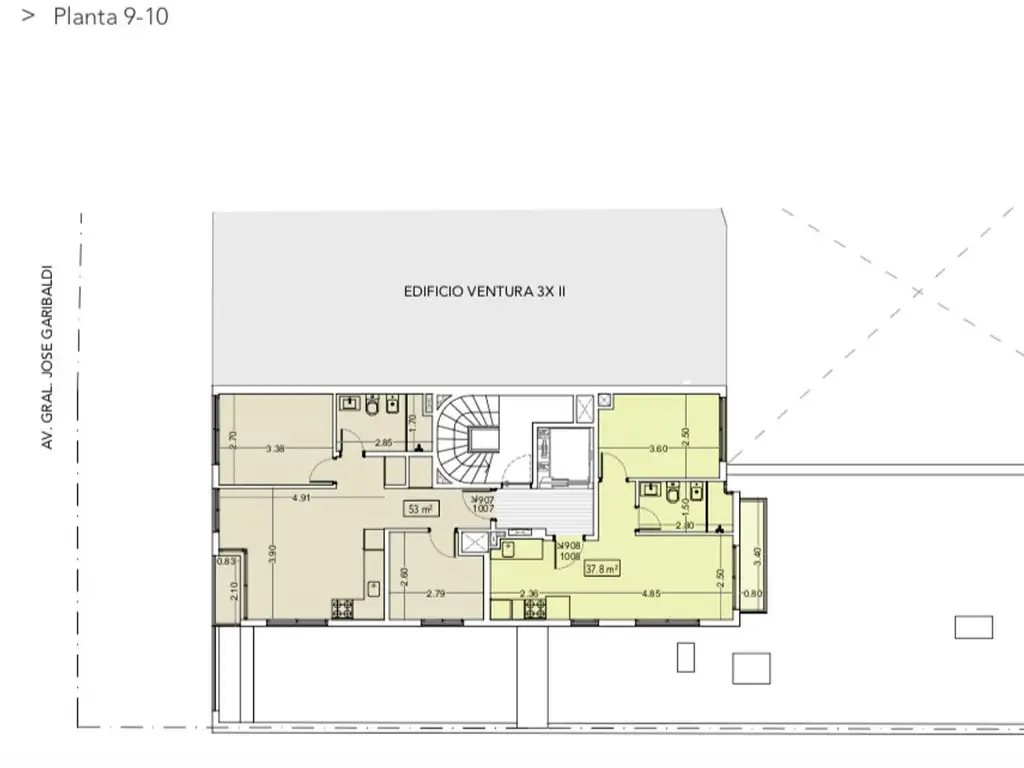
Torre ubicada en Monte Caseros 2710, esquina Garibaldi, barrio La Blanqueda. Inmejorable ubicción, en plena zona universitaria, con excelente conectividad y servicios, próximo al Parque Batlle.

Proyecto amparado por la Ley 18.795, Construcción de Viviendas Promovidas para Interés Social (VIS):
- Exoneración del IVA
- Exoneración del Impuesto a las Transmisiciones Patrimoniales (ITP)
- Exoneración del Impuesto a la Renta de las Actividades Económicas (IRAE) y del Impuesto a la Renta de las Personas Físicas (IRPF)
- Exoneración del Impuesto al Patrimonio

Aberturas
Aluminio serie 25, anodizado natural, con vidrio simple y cierre tipo lara en orientación Norte
Aluminio serie 25, anodizado natural, con vidrio DOBLE (DVH) en orientación sur
Aluminio Monoblock con cortina de enrollar

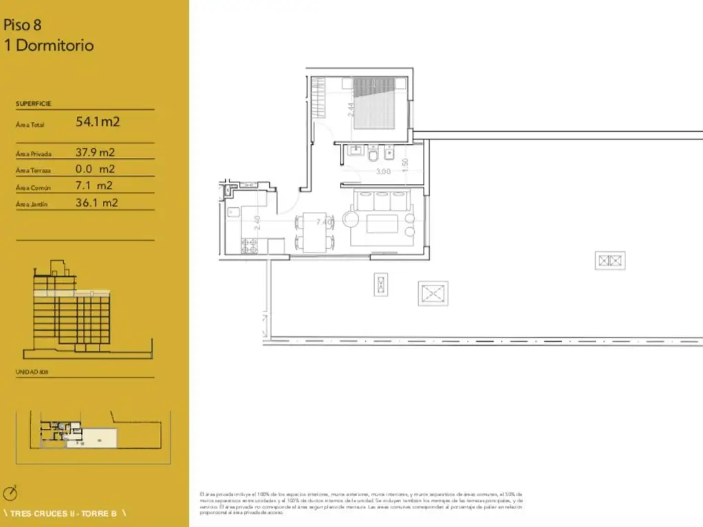
Pisos
Acceso y circulaciones abiertas: Pavimento pétreo y/o cerámica
Hall y Palier: Pavimento pétreo y/o cerámica
Dormitorios y Livings - piso flotante / piso vinilico imitacion madera/ cerámica
Baños y kitchenettes : porcelanato y/o cerámicos de calidad
Barbacoa : Pavimento pétreo y/o cerámica o porcelanato

Revestimientos
Baños y fondo de cocinas: porcelanato y/o cerámica de calidad

Artefactos, Griferías y accesorios
Artefactos: serán de loza de primera calidad, inodoros con mochila
Grifería: Monocomandos cromados
Accesorios: Cromados de aplicar o de losa de embutir
Pileta de cocina: pileta simple de sobreponer en acero inoxidable

Carpintería
Puerta, marcos y contramarcos : tipo tablero de 42 mm a definir según diseño final
Dormitorios: se entregan sin placares
Cocinas: placares bajo mesadas según planos terminación melamínico blanco o similar ( sin alacenas )
Kitchenettes: placares bajo mesadas, según planos, terminación melamínico blanco o similar
Herrajes: cromados o color metálico de primera calidad

Sanitaria
Previsión para calefones eléctricos
Graseras colectivas / individuales
Previsión para lavarropas en terrazas o baños

Eléctrica
Cada unidad contará con tablero seccional con llaves termomagnéticas y disyuntor diferencial
En cocinas se prevé instalación para heladera, cocina eléctrica, extractor, micro y otros
Se emplearán materiales de primera calidad, aprobados según normas y reglamentos de UTE

Calefacción
Existe previsión para la instalación de A/C y lugar previsto para unidad exterior
No se entregará instalación de cañería de cobre. La instalación la debe hacer cada propietario.

Seguridad
Cerca eléctrica en perímetro de fondo
Circuito cerrado de TV
Puertas principales del palieres de excelente calidad con cerradura de seguridad
Portero eléctrico individual en acceso a edificio

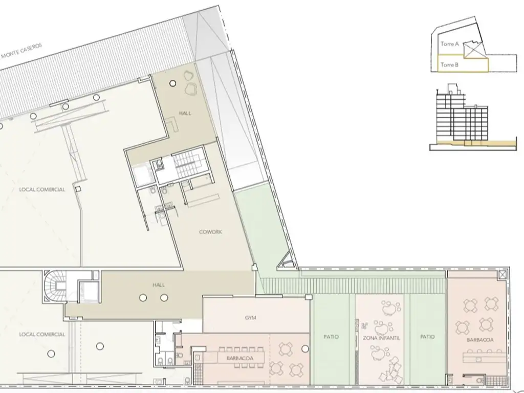
Instalaciones Generales
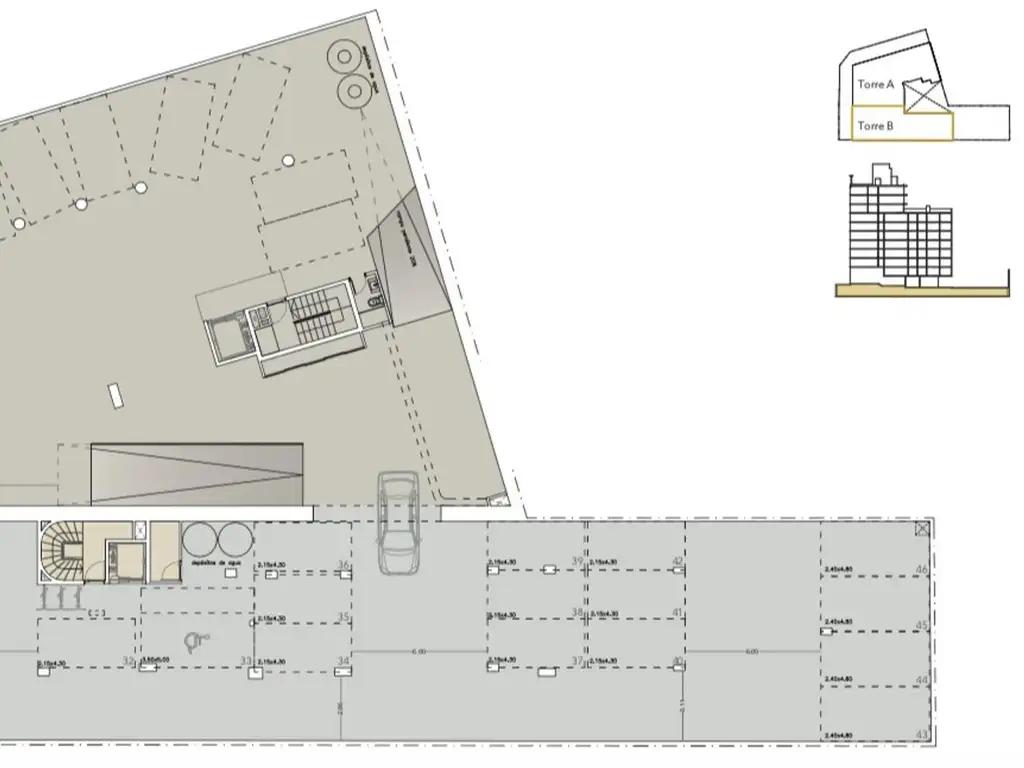
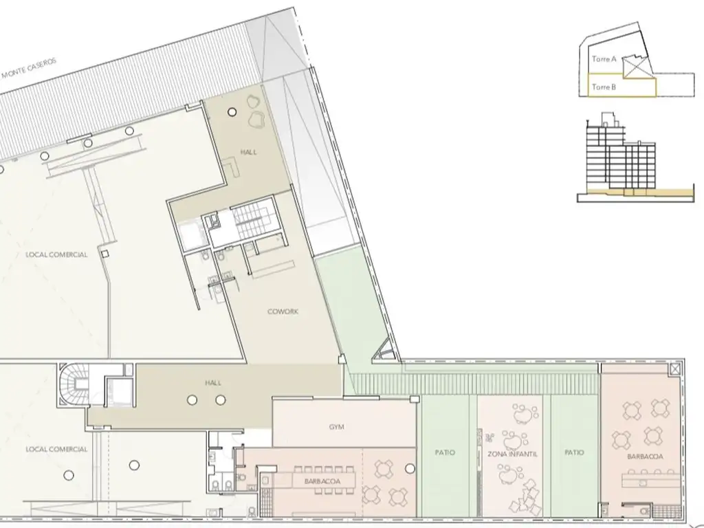
Salón de usos múltiples con parrillero en el planta baj
Las cocinas deberás ser eléctricas o con garrafas a supergas

Planta SS
Cocheras

Planta baja
Hall de acceso
Locales comerciales
Cowork
Gym
Barbacoa
Patio
Zona ninos

Consultanos por los depratamentos disponibles y en promoción monoambientes, dos ambientes, 3 ambientes.

*Matrícula CUCICBA 7445

Otros Servicios: Gimnasio, SUM, Area comercial, Juegos para chicos



Se deja constancia que las medidas, superficies, metros cuadrados y proporciones consignadas son aproximados, está sujeto a verificación y/o ajuste. El valor indicado de expensas está sujeto a variación. El precio del inmueble puede ser modificado sin previo aviso. Fotos de carácter no contractual.

Mat. CUCICBA 7445

Ubicación del emprendimiento

Monte Caseros 2710

  • Internet
  • Construye: Kopel Sanchez, Arquitectos

Código de aviso: 261899-525950

La siguiente propiedad no se encuentra disponible. Si deseas continuar tu búsqueda hacé click aquí

Emprendimientos similares

Ver más emprendimientos similares