Características del emprendimiento

  • Deptos. por Piso: 2
  • Pisos en Edificio: 4
  • Departamentos: 6

RESIDENCIAS CONCORDIA 4013

Se encuentra estratégicamente ubicado en Concordia al 4000 entre las calles Nueva York y Salvador M. del Carril, en pleno corazón residencial de Villa Devoto.
Un lugar inmejorable, residencial, seguro y cercano a los centros médicos, sociales, educativos, deportivos y comerciales de la zona.
Son 6 residencias, de uno, dos y tres ambientes. Todas tienen vista al frente, siendo departamentos muy luminosos. La calefacción es por loza radiante.
El ingreso es por un amplio y moderno hall de acceso con cerradura electrónica. Tiene una instalación de sistema de cámaras de seguridad en los espacios comunes y los accesos.
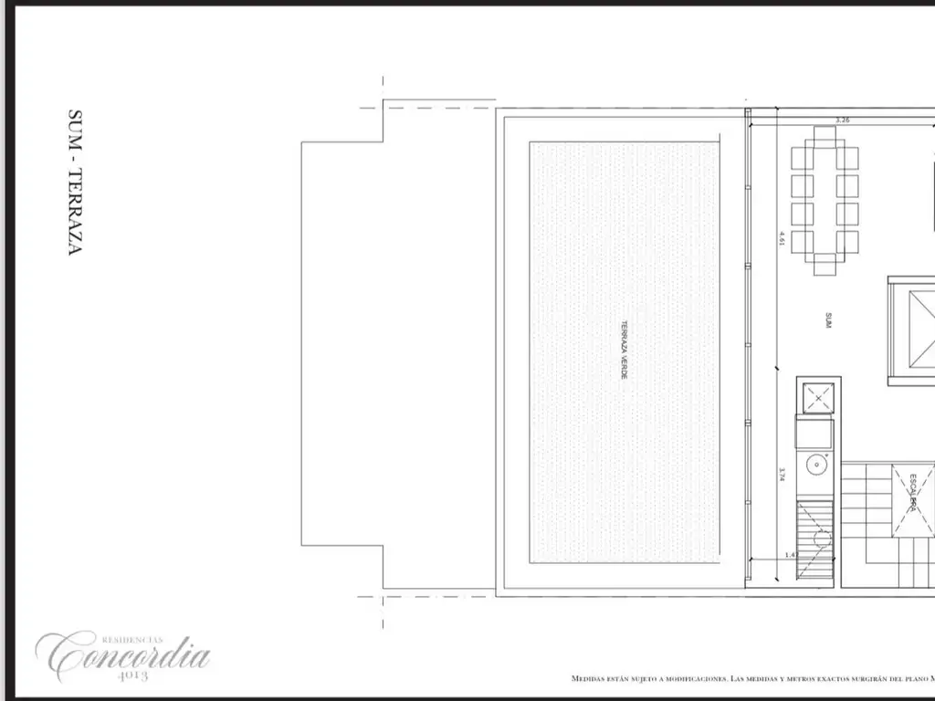
El Hall y los palieres tienen piso de porcelanato ILVA. El Salón de Usos Múltiples está totalmente equipado, con amplio espacio verde, parrilla y baño privado.
Hay cocheras fijas cubiertas y bauleras con acceso independiente por portones automatizados.
RESIDENCIAS
4013
Cerca de todo, en el corazón de Villa Devoto.
Tranquilidad y Elegancia.
Excepcionales vistas, todas las unidades dan al frente.
Excelente terminación premium.
Balcones con espacio para parrillas.
SUM con parrilla y gran espacio verde.
Inmejorable financiación y flexibles formas de pago.

AREAS COMUNES
- Acceso con cerradura electrónica.
- 1 ascensor de alta velocidad.
- Hall y Pallier con pisos de porcelanato Ilva.
- Salón de Usos Múltiples totalmente equipado, con espacio verde, parrilla y baño privado.
- Caldera central para agua caliente y calefacción. - Bajas expensas.
DEPARTAMENTOS
- Portero visor con pantalla color.
- Calefacción mediante loza radiante en todos los ambientes y toalleros en los baños.
- Carpintería de PVC o aluminio modelo Módena F60 o similar con doble vidrio (DVH).
- Grifería de baño marca FV o similar con accesorios en cada baño. - Loza sanitaria marca Ferrum. - Revestimiento en los baños marca Ilva.
- Muebles de cocina con alacenas y bajo mesada - Mesadas de silestone o granito con pileta de Acero inoxidable. - Horno,
RESIDENCIAS
4013
Memoria Descriptiva
anafe y extractor de aire eléctricos. - Instalación completa de cañerías y desagües para la colocación de los equipos de aire acondicionado Split en cada ambiente. - Frente de placard corredizos en los dormitorios y vestidores en los departamentos. - La instalación sanitaria es con materiales marca Acqua System y los desagües pluviales
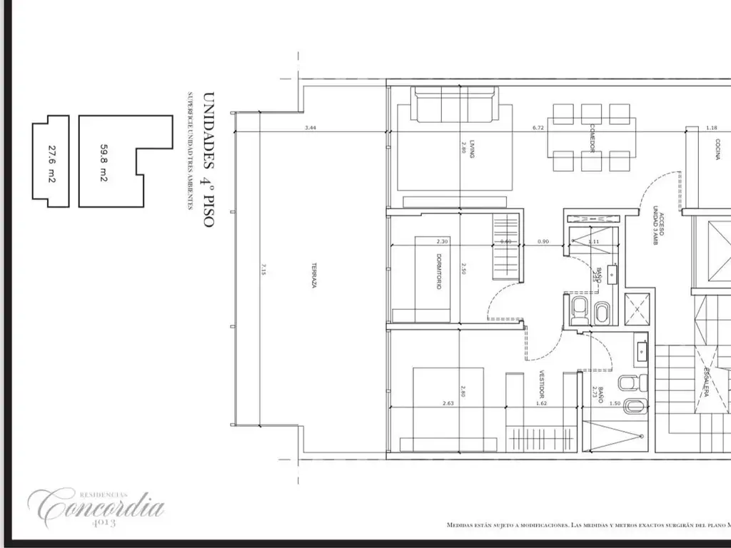
y cloacales marca Awaduct. - Instalación para TV por cable. - Conexión para lavarropas en los departamentos. - Balcón con parrilla individual en departamento de tres ambientes del cuarto piso.
- Balcón con espacio para parrilla eléctricas en departamentos del primero, segundo y tercer piso
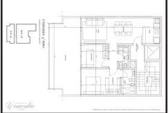
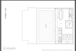
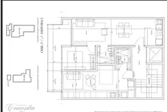
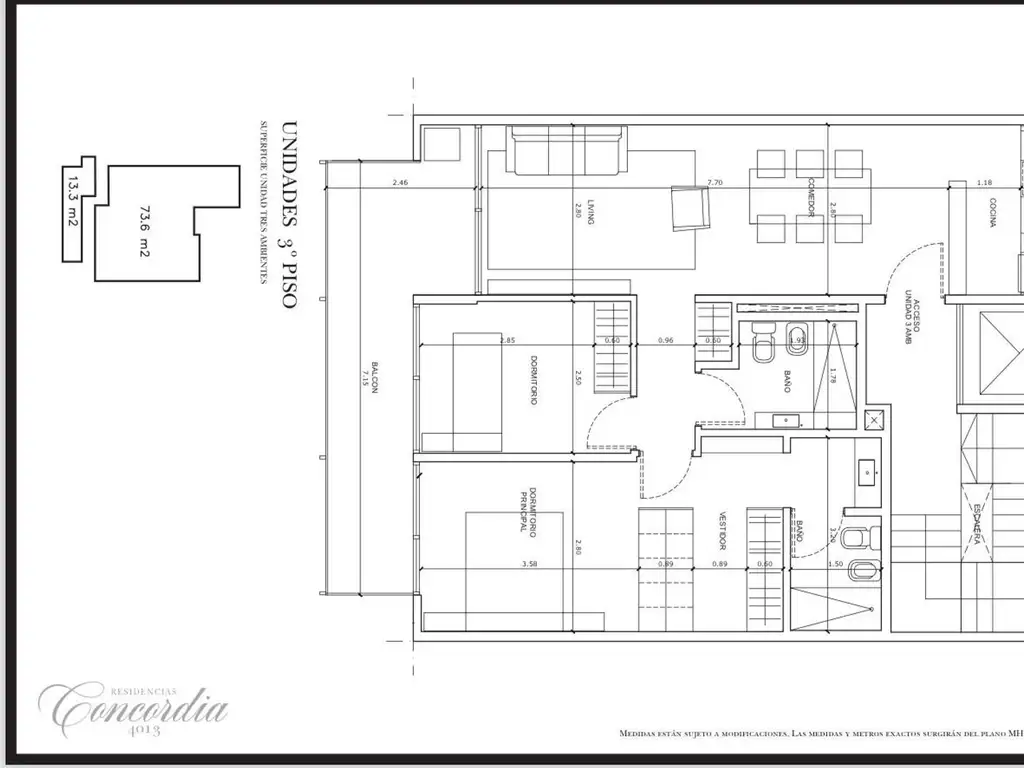
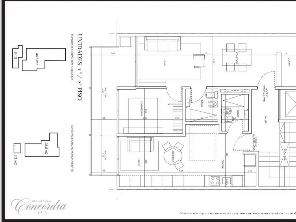
TIPOLOGIAS DE LAS UNIDADES
1 piso exclusivo de 3 ambientes desde 74 mt2 cubiertos y 13,3 mt2 de balcón.
1 piso exclusivo de 3 ambientes desde 60 mt2 con balcón terraza de 27 metros.
2 unidades de 2 ambientes de 46 mt2 cubiertos y 8 mt2 de balcón.
2 unidades de 1 ambiente de 29 mt2 cubiertos y 3 mt2 de balcón.
2 Cocheras fijas cubiertas y 2 bauleras de gran dimensión.

Otros Servicios: SUM

Ubicación del emprendimiento

Concordia 4000

  • Internet

Código de aviso: 117785-6178682-BAJA-2024-08-21 05:06:39

La siguiente propiedad no se encuentra disponible. Si deseas continuar tu búsqueda hacé click aquí

Emprendimientos similares

Ver más emprendimientos similares