Características del emprendimiento

  • Deptos. por Piso: 5
  • Pisos en Edificio: 8
  • Departamentos: 38
  • Ascensores: 2
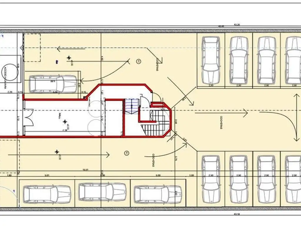
  • Cocheras: 24

RAMÓN FALCÓN 5060

DISFRUTAR LA VIDA - VIVIR BIEN
Todo lo que buscas para vos y tu familia en un mismo lugar.

El emprendimiento se desarrolla en la zona residencial de Villa Luro, conocida como "el barrio de las calles románticas".
Cercano al área comercial de la Av. Rivadavia y Av. Lope de Vega. Próximo a la Estación de Tren de la Línea Sarmiento y a tan solo 400m de la subida Autopista Perito Moreno.

Edificio de categoría con amenities: Piscina para adultos, piscina para niños, jacuzzis, solarium, parrillas, gazebo de madera, duchas y más!

Desarrollado en dos lotes (doble frente) con 38 departamentos de 2, 3 y 4 amb y 24 cocheras en PB cubiertas y descubiertas.

El edificio de 8 pisos de altura dispondrá de diferentes unidades:

* En 1° piso: Unidades con grandes patios
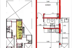
1 unidad de 4 amb de 100 m2 + 26 m2, totales.
1 unidad de 3 amb de 66 m2 + 38 m2, totales.
1 unidad de 3 amb de 68 m2 + 19 m2, totales.
1 unidad de 2 amb de 51 m2 + 52 m2, totales.
1 unidad de 2 amb de 43 m2 + 53 m2, totales.

* En 2°, 3°, 4°, 5°, 6° y 7° piso al frente: Unidades con balcón
1 unidad de 4 amb de 100 m2 + 12 m2, totales.
1 unidad de 3 amb 68 m2 +7,5 m2 totales.

* En 2°, 3°, 4°, 5°, 6° y 7° piso, parte central y contrafrente: Unidades con balcón
Unidades de 3 amb de 66 m2 + 8 m2, totales.
Unidades de 2 amb de 51 m2 + 2,5 m2, totales
Unidades de 2 amb 43 m2 + 3,5 m2 + 4,5 m2, totales.

* En 8° piso: Unidades al frente y contrafrente: Unidades con balcón
Unidades de 3 amb de 78 m2 +16 m2, totales.
Unidades de 2 amb de 64 m2 +15 m2, totales.
1 Unidad de 2 amb de 51 m2 +2,7 m2, totales (contrafrente).

EL EDIFICIO CUENTA CON:

• Agua caliente por termotanque central.
• Instalación preparada para A/A frío/calor en todos los ambientes.
• Muebles de cocina de melanina blancos o símil madera con perfil tirador de aluminio.
• Mesada de granito gris mara o gris perla.
• Pisos de porcelanato.
• Aberturas de aluminio de gran calidad línea Módena.
• Revestimiento cerámico en baños y cocina.
• Grifería FV o similar.
• Sanitarios Ferrum o similar.
• Puertas placas de MDF en interiores con terminación en esmalte sintético.
• Puertas de acceso a vivienda ignífugas F30.
• Laundry.
• Cocina a gas de 4 hornallas.
• Instalación para lavarropas.
• Frentes de placard.
• Calefacción por losa radiante.

Fecha de entrega: Noviembre 2022.

NEMOVI te acompaña en tu próxima inversión, brindándote asesoramiento, transparencia y seguridad.
Años de experiencia y cientos de inversores conformes nos demuestran que estamos en el camino correcto. Contamos con más de 30 obras terminadas y entregadas en los últimos 12 años. Actualmente estamos comercializando mas de 20 emprendimientos en diferentes etapas de construcción, para poder brindarte diversas alternativas de inversión y vivienda.
Contas con nuestra experiencia y asesoramiento para seguir creciendo.


Ubicación del emprendimiento

RAMÓN FALCÓN 5000

Amenities

  • Juegos Para Chicos
  • Parrilla
  • Piscina
  • Solarium
  • Comercializa: NEMOVI SAS

Código de aviso: 5IFR_1151

La siguiente propiedad no se encuentra disponible. Si deseas continuar tu búsqueda hacé click aquí

Emprendimientos similares

Ver más emprendimientos similares