El payador 2700

USD 180.000

Venta en Funes, Rosario

USD 180.000

  • Casa

  • 96 m² Cubierta

  • 2 dormitorios

  • 2 baños

  • 3 ambientes

  • 1 cochera

  • Bueno

  • Noreste

  • 500 m² Terreno

CASA EN VENTA 2 DORMITORIOS, FUNES

Corredor Responsable: Sebastian Pellegrini CI Mat N° 571 -
Contacto: Ornela Bianchetti
VENTA - CASA 2 DORMITORIOS, CON PILETA Y COCHERA - FUNES


2 DORMITORIOS | PILETA | GALERÍA | EN CONSTRUCCIÓN

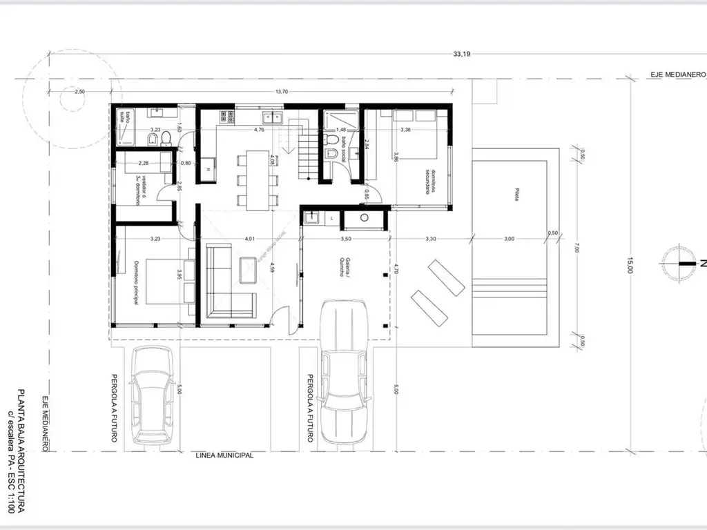
Casa en construcción desarrollada en planta baja, sobre un lote de 500 m², con una superficie de 96 m² cubiertos y 16 m² semicubiertos. Ubicada en la ciudad de Funes, en entorno tranquilo y de fácil acceso.

La propiedad se compone de un amplio living comedor, cocina integrada con salida directa a la galería, generando un espacio social cómodo y funcional.

Cuenta con 2 dormitorios, siendo el principal con vestidor y baño en suite, más un baño completo de uso social.

En el exterior se destaca una galería/quincho, jardín parquizado y pileta, ideales para el disfrute al aire libre.
El proyecto contempla cochera con pérgola.

Construcción de diseño moderno, con excelente distribución y ambientes luminosos.

Ideal para vivienda permanente o inversión.

Entrega aproximada en 4 meses

¿Coordinamos una visita?
RAU S.R.L. no ejerce el corretaje inmobiliario. El presente sitio web es una plataforma en donde cada oficina inmobiliaria independiente que contrata los servicios RE/MAX puede publicar las propiedades a su cargo. Cada oficina es de propiedad y gestión independiente, por lo que RAU S.R.L. no interviene en los datos de la publicación, en la operación inmobiliaria, ni en la confección y/o firma del boleto de compraventa y/o escritura y/o contrato de alquiler. En cumplimiento de las leyes vigentes que regulan el corretaje inmobiliario, Ley Nacional 25.028, Ley 22.802 de Lealtad Comercial, Ley 24.240 de Defensa al Consumidor, las normas del Código Civil y Comercial de la Nación y Constitucionales, los agentes/gestores NO ejercen el corretaje inmobiliario. Todas las operaciones inmobiliarias son objeto de intermediación y conclusión por parte del corredor público inmobiliario colegiado a cargo de la publicación, cuyos datos se exhiben en la presente. La presente publicación describe las características esenciales del inmueble, debiéndose consultar al corredor público inmobiliario responsable de la operación por la eventual actualización de las medidas, descripciones arquitectónicas y funcionales, valores de expensas, servicios, impuestos, precios y demás información, cuyos valores son aproximados.

Ubicación

Funes, Rosario, Santa Fe

Características

  • Cant. Baños: 2

  • Cant. Ambientes: 3

  • Cant. Dormitorios: 2

  • Estado: Bueno

  • Cant. Cocheras: 1

  • Orientación: NE

  • Tipo de Unidad: Casa

  • Tipo de operación: Venta

  • Precio: USD 180.000

  • Sup. Cubierta: 96 m2

  • Sup. Terreno: 500 m2

  • Sup. Descubierta: 388 m2

  • Sup. Total: 500 m2

  • Electricidad
  • Gas natural

Código de aviso: AR.42.25.223.156

Contactá al anunciante

RE/MAX Exclusivo