-
Casa
Casa
-
441 m² Cubierta
441 m² cubie.
-
5 dormitorios
5 dorm.
-
35 años
35 años
-
4 baños
4 baños
-
6 ambientes
6 ambientes
-
Muy Bueno
Muy Bueno
-
Este
Este
-
194 m² Terreno
194 m² terren.
Casa - Venta - Argentina, Capital Federal - Tilcara 2371
¡Oportunidad única con Quintanar Baquero!
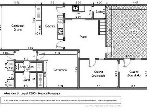
Te ofrecemos un impresionante galpón con vivienda, ideal para combinar actividades comerciales y residenciales en un mismo lugar, ubicado en una zona estratégica de la ciudad.
Características de la propiedad:
Planta Baja:
Depósito: Con techo de losa de doble altura, persiana automática, y dos fosas, ideal para diversas actividades industriales o comerciales.
Oficina: Espacio cómodo y funcional para la gestión administrativa.
Garaje: Con portón eléctrico y ascensor, facilitando el acceso y la seguridad.
Primer Piso:
Living comedor: Amplio y luminoso, con acceso a un balcón terraza para disfrutar de momentos al aire libre.
Cocina comedor: Espaciosa y bien equipada, perfecta para reuniones familiares.
Dos dormitorios: Confortables y bien distribuidos.
Baño completo: Funcional y moderno.
Quincho con parrilla y terraza: Un espacio ideal para eventos y reuniones, con todas las comodidades.
Segundo Piso:
Dormitorio en suite: Con vestidor y baño con hidromasaje, para disfrutar de la máxima comodidad.
Dos dormitorios adicionales: Con placard y acceso a un balcón terraza con vista al frente.
Hall y baño completo: Espacios bien diseñados para el confort diario.
Detalles adicionales:
Fuerza motriz: La unidad está equipada con fuerza motriz, lo que la hace apta para actividades que requieren energía adicional.
Superficie total: 441 m².
Ubicación estratégica:
Ubicada a metros de la Avenida La Plata, esta propiedad ofrece excelente conectividad con los principales medios de transporte, facilitando el acceso y la movilidad tanto para actividades comerciales como residenciales.
Corredor Responsable: Roberto Quintanar Baquero C.U.C.I.C.B.A. Matrícula Nº 1682 (Sucursales Pompeya y Flores) AVISO LEGAL: Las descripciones arquitectónicas y funcionales, valores de expensas, impuestos y servicios, fotos y medidas de este inmueble son aproximados. Los datos fueron proporcionados por el propietario y pueden no estar actualizados a la hora de la visualización de este aviso por lo cual pueden arrojar inexactitudes y discordancias con las que surgen de los las facturas, títulos y planos legales del inmueble. El interesado deberá realizar las verificaciones respectivas previamente a la realización de cualquier operación, requiriendo por sí o sus profesionales las copias necesarias de la documentación que corresponda. Venta supeditada al cumplimiento por parte del propietario de los requisitos de la resolución general Nº 2371 de la AFIP (pedido de COTI)
Ubicación
Pompeya, Capital Federal
Características
-
Antiguedad: 35
-
Cant. Baños: 4
-
Cant. Ambientes: 6
-
Cant. Dormitorios: 5
-
Estado: Muy Bueno
-
Orientación: E
-
Apto Crédito
Datos básicos
-
Tipo de operación: Venta
-
Precio: USD 360.000
Superficie
-
Sup. Cubierta: 441 m2
-
Sup. Terreno: 194 m2
-
Sup. Total: 441 m2
Código de aviso: QBM-QBM-686-246
Propiedades Similares
-
USD 460.000
Av. Riestra 1300
- 265 m² Cubierta
- 4 dormitorios
- A Estrenar
-
USD 350.000
Av. Riestra 1500
- 230 m² Cubierta
- 6 dormitorios
- 60 años
-
USD 320.000
Tilcara 2300
- 195 m² Cubierta
- 4 dormitorios
- 35 años
-
USD 255.000
Carlos M Ramirez 2500
- 336 m² Cubierta
- 5 dormitorios