-
Casa
-
170 m² Cubierta
-
4 dormitorios
-
56 años
-
3 baños
-
5 ambientes
-
Regular
-
205 m² Terreno
Venta Casa Multifamiliar en Villa Martelli
Contacto: Jorge Pérez Raya
GRAN OPORTUNIDAD PARA INVERSORES – CASA CON 3 VIVIENDAS EN BLOCK
Ubicación estratégica en Villa Martelli – A 4 cuadras del centro comercial sobre Av. Francisco N. Laprida y a 2 cuadras de Av. Mitre.
Acceso rápido a General Paz y Panamericana.
¡A REFACCIONAR! Potencia su valor y convertirla en la inversión ideal para renta, vivienda multifamiliar o desarrollo.
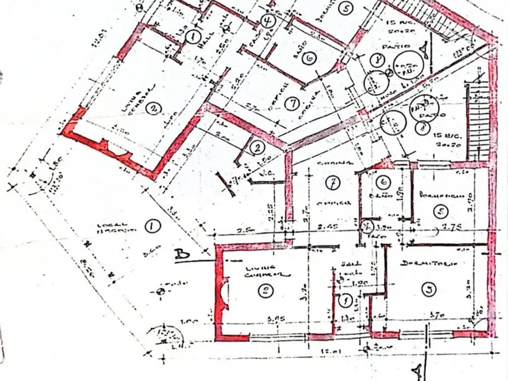
Terreno de 205 m² con 3 departamentos a Reciclar en Venta, Villa Martelli - Vicente López
TERRENO de 8.66X 12.81 en inmejorable zona de Villa Martelli.
Indicadores urbanístico
FOS: 0.60
FOT: 1.2
Densidad: 150 hab/Ha
Altura Max.: cubierta plana 10.50m
: cubierta inclinada 13.50m
(3 pisos máximo incluyendo PB y semisótano)
Retiro de frente: N/A
Retiro de fondo: N/A
Detalles:
- Departamento 2 ambientes con patio a RECICLAR.
- Departamento 2 ambientes Planta alta de 40m2 cubiertos Con balcón a RECICLAR.
- Departamento 3 ambientes Planta baja con patio a RECICLAR.
UBICACIÓN PRIVILEGIADA
Zona comercial y residencial en crecimiento.
Acceso inmediato a transporte público y principales arterias.
Cercano a colegios, bancos y comercios.
Las medidas son orientativas, las reales surgirán de la escritura.
¡NO TE PIERDAS ESTA OPORTUNIDAD! Contactanos para coordinar una visita y descubrir su potencial.
RAU S.R.L. no ejerce el corretaje inmobiliario. El presente sitio web es una plataforma en donde cada oficina inmobiliaria independiente que contrata los servicios RE/MAX puede publicar las propiedades a su cargo. Cada oficina es de propiedad y gestión independiente, por lo que RAU S.R.L. no interviene en los datos de la publicación, en la operación inmobiliaria, ni en la confección y/o firma del boleto de compraventa y/o escritura y/o contrato de alquiler. En cumplimiento de las leyes vigentes que regulan el corretaje inmobiliario, Ley Nacional 25.028, Ley 22.802 de Lealtad Comercial, Ley 24.240 de Defensa al Consumidor, las normas del Código Civil y Comercial de la Nación y Constitucionales, los agentes/gestores NO ejercen el corretaje inmobiliario. Todas las operaciones inmobiliarias son objeto de intermediación y conclusión por parte del corredor público inmobiliario colegiado a cargo de la publicación, cuyos datos se exhiben en la presente. La presente publicación describe las características esenciales del inmueble, debiéndose consultar al corredor público inmobiliario responsable de la operación por la eventual actualización de las medidas, descripciones arquitectónicas y funcionales, valores de expensas, servicios, impuestos, precios y demás información, cuyos valores son aproximados.
Comprá la casa que querés! No la que podés. Accedé a un préstamo por hasta el 30% del valor de esta propiedad. Simulá tu cuota en Lendar
Ubicación
Villa Martelli, Vicente Lopez, G.B.A. Zona Norte
Características
-
Antiguedad: 56
-
Cant. Baños: 3
-
Cant. Ambientes: 5
-
Cant. Dormitorios: 4
-
Estado: Regular
Datos básicos
-
Tipo de Unidad: Casa
-
Tipo de operación: Venta
-
Precio: USD 170.000
Superficie
-
Sup. Cubierta: 170 m2
-
Sup. Terreno: 205 m2
-
Sup. Total: 170 m2
Ambientes de la casa
- Terraza
Código de aviso: AR.42.150.37.101.V1
Propiedades Similares
-
USD 170.000
Brasil 600
- 150 m² Cubierta
- 2 dormitorios
- 35 años
-
USD 139.000
Beruti 200
- 140 m² Cubierta
- 3 dormitorios
- 40 años
-
USD 139.000
BALCARCE 200
- 170 m² Cubierta
- 4 dormitorios
- 40 años
-
USD 195.000
Quesada al 3200
- 92 m² Cubierta
- 2 dormitorios
- 10 años