(1) (1)
  • Vida

Venta

Casa

Precio

Buscar solo avisos en moneda:

Dorm | 5+ amb.

Dormitorios

  • 1
  • 2
  • 3
  • 4
  • 5+

Ambientes

  • Mono.
  • 2
  • 3
  • 4
  • 5+

Más filtros (1) Más filtros

Dormitorios

  • 1
  • 2
  • 3
  • 4
  • 5+

Ambientes

  • Mono.
  • 2
  • 3
  • 4
  • 5+

Características

Superficie total

Cocheras

Baños

Antiguedad

  • Indistinto
  • A estrenar
  • Hasta 5 años
  • Hasta 10 años
  • Hasta 20 años
  • Hasta 30 años
  • Más de 30 años

Nombre de calle y altura

Expensas

$

Tipo de urbanización

Plantas

Servicios

Tipo de casa

Tipos de ambientes

Tipo de anunciante

38 Casas en Venta en Vida de 5 o más ambientes

1/31
Visto

3.310

USD 530.000

Barrio Vida

Casa en Venta en Vida, Funes

SOLJAN INMOBILIARIA
  • 161 m² cubie.
  • 3 dorm.
  • 2 baños

VENTA Casa 3 dormitorios Funes Barrio Cerrado Vida

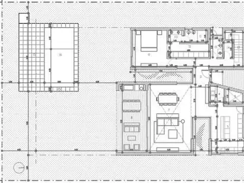
Venta de casa 3 dormitorios mas comodín en barrio cerrado vida la vivienda estará desarrollada en su totalidad en planta baja, sobre un terreno de dimensiones de 20 m. De frente x 40 m. De fondo, con orientación sur. Abarcando una superficie cubierta de 161m2, y semicubierta de 119m2. Al momento de proyectarla se buscó lograr la mejor funcionalidad teniendo en cuenta el mayor aprovechamiento solar durante todo el día. Favoreciendo con la orientación norte las vistas y ventilaciones de la galería, estar, comedor y cocina. Los ambientes mas usados durante el día. El frente de la propiedad revestido en madera con un jardín con el techo calado, ideal para un frondoso árbol. Al acceder nos encontramos con un jardín interno totalmente vidriado que otorga luminosidad al ingreso. Un pasillo distribuidor nos lleva a la izquierda, dos dormitorios asistidos por un baño completo, a la derecha nos encontramos con la suite principal con vestidor y baño completo, también cuenta con un estudio al que se ingresa por la suite y por el frente de la propiedad. Amplio living comedor con cocina integrada con acceso al lavadero y espacio de tender, el sector social con ventanas que dan acceso directo a una gran galería semicubierta con parrillero. Calefacción por radiadores. Construcción de máxima calidad doble cochera. Porcelanato de primera calidad 90 x 90 cm modelo a definir en pisos del ingreso, estar, comedor, cocina, pasillo y lavadero. Porcelanato de primera calidad de 60 x 60 cm. En galería e ingreso peatonal. Hormigón llaneado en cochera. Adoquines de hormigón pavintec, modelo unidecor en ingreso vehicular porcelanato de primera calidad tamaño y modelo a definir en dormitorios, vestidor y pasillo. Porcelanato en revestimientos de paredes de baños y lavadero. Mesada de cocina e isla en silestone modelo blanco norte o similar. Mesada de lavadero en granito gris mara o similar. Mesada de parrillero en negro boreal o similar. Mesada de baños en silestone modelo blanco norte y/o laqueado según diseño. Bacha de acero inoxidable modelo quadra q76 o similar en cocina, marca johonson aceros. Bacha de acero inoxidable modelo e37 o similar en lavadero marca johonson aceros. Bacha de acero inoxidables modelo o37 en parrillero marca johonson aceros. Griferías marca fv modelo ciprés o similar con cierre cerámico en baños y toilette griferías marca fv monocomando modelo arizona o similar en lavadero y parrillero. Losa cerámica marca ferrum línea bari, y/o deca piazza línea amalfi o similar aberturas exteriores en aluminio color blanco marca aluar, línea módena 45a y a40 doble vidrio hermético en ventanas exteriores con lamina de seguridad puerta de ingreso principal de frente de madera maciza modelo a definir. Puertas placa interiores de piso a techo con marco de madera y acabadas con pintura laqueada. Herrajes de bronce platil muebles de cocina y lavadero marca reno línea premium o similar. Paredes interiores y cielorrasos suspendidos de educidos de yeso con buñas perimetrales. Pintura en muros interiores y cielorrasos con látex de primera calidad color blanco. Anafe de 5 hornallas y horno eléctrico de empotrar marca whirlpool o similar. Campana isla de acero inoxidable, marca tst modelo lt 900 o similar. Calefacción por radiadores en todos los ambientes. Caldera dual marca inmergas características y cantidad de radiadores de acuerdo a balance térmico. Circuitos de tomas e iluminación por sectores, circuito independiente para aires acondicionado con disyuntor general y térmicas marcas siemenns o similar. Frente e interior de placares con puertas corredizas en melanina de madera marca reno o similar. Espejos en baños. Artefactos spot de embutir y semi empotrar dicroicos con luz led en todos los ambientes. Revestimiento exterior con material de frente color nieve marca deck-ar. Revestimiento en fachada principal con madera de machimbre de grandis de 34 colocadas en formar vertical. Muros exteriores de ladrillo común y muros interiores con ladrillo hueco portante. Instalación de cañería de cobre y desagues para aire acondicionado en el estar-comedor, cocina, estudio y dormitorios.

Contactar
1/20
Visto

347

USD 530.000

Vida Barrio Cerrado Lote 99

Casa en Venta en Vida, Funes

EIGEN Propiedades
  • 174 m² cubie.
  • 3 dorm.
  • 3 baños

Venta Casa Tres Dormitorios Suite Cochera Doble. U099 Vida Barrio Cerrado

Venta casa 3 dormitorios suite piscina cochera doble. Lote 99 vida barrio cerrado ubicada en el prestigioso barrio cerrado vida 1, en funes, esta residencia ofrece un diseño minimalista y moderno, ideal para la vida familiar. Con entrega aproximada en julio de 2026, la propiedad promete ser un hogar acogedor y funcional. Características principales: - terreno: 800 m2, con orientación sur en el frente y norte en el fondo, permitiendo una excelente iluminación natural. - Superficie construida: total de 237 m2 distribuidos en una sola planta, con 174 m2 cubiertos y 63 m2 semicubiertos. - Distribución interior: - amplio living comedor que se integra con una moderna cocina. - Lavadero independiente. - Toilette de cortesía. - 3 dormitorios: el principal en suite con vestidor y los otros dos comparten un baño completo. - Exterior: galería con parrillero, ideal para reuniones al aire libre. Extenso jardín que ofrece un espacio perfecto para el esparcimiento y la privacidad. Detalles y terminaciones: la casa contará con aberturas y terminaciones de primera calidad, asegurando durabilidad y una estética contemporánea. Servicios y amenities: - agua corriente, cloacas, gas natural, internet, electricidad, pavimento, teléfono, cable, agua potable, wifi. - Seguridad nocturna, alumbrado público, red de desagues pluviales, e instalación eléctrica subterránea. - Incluye sistema de alarma y accesibilidad para personas con movilidad reducida. Estacionamiento: - 2 cocheras cubiertas disponibles para su comodidad. Entrega julio 2026 esta propiedad destaca por su diseño y ubicación, brindando un entorno seguro y tranquilo, con todas las comodidades modernas. No pierda la oportunidad de ser parte de este exclusivo desarrollo en uno de los barrios más buscados de funes.

Contactar
1/19
Visto

200

USD 650.000

Lote 52

Casa en Venta en Vida, Funes

OFEELY NEGOCIOS INMOBILIARIOS
  • 260 m² cubie.
  • 3 dorm.
  • A Estrenar

CASA A LA VENTA EN CONSTRUCCION EN BARRIO VIDA FUNES

Casa a la venta 3 dormitorios en barrio vida funes a estrenar calidad premiun en construccion: entrega junio 2026 aprox exterioringreso peatonal y vehicular: acceso destacado con piso de hormigón llaneado de 12 cm de espesor en tono gris plata. Porch y cochera: elegante piso de porcelanato de 90x90 cm, ideal para recibir visitas con estilo. Galería: amplio espacio exterior con piso de porcelanato símil madera, perfecto para reuniones, quincho y momentos de relax. Interior planta baja pisos generales: porcelanato símil madera de 20x120 cm, que aporta calidez y diseño contemporáneo. Cocina y lavadero: mesada de cocina en elegante negro marquina de 2 cm de espesor. Mesada de lavadero en granito negro brasil de 2 cm de espesor. Piletas de acero inoxidable jhonson (luxor en cocina y g-50 en lavadero). Grifería monocomando de alta calidad. Toilette: piso de porcelanato símil madera. Revestimiento parcial en porcelanato pulido con detalles en acero inoxidable. Artefactos sanitarios ferrum línea trento con asiento de madera laqueada. Mesada silestone blanco norte con bacha ferrum cuadra y grifería vasser lyra. Baño galería: mismo diseño de piso y revestimiento que el toilette. Equipado con sanitarios ferrum trento, mesada silestone blanco norte y grifería vasser lyra. Escalera: huellas y contrahuellas en porcelanato símil madera. Baranda de diseño a definir, que aporta personalidad y seguridad. Planta alta pisos generales: porcelanato símil madera 20x120 cm. Baño niños: piso y revestimiento en porcelanato pulido. Artefactos sanitarios ferrum trento. Mesada de mármol carrara con bacha incluida. Receptáculo de ducha con tapa de silestone y grifería vasser lyra. Espejo sobre mesada. Baño suite principal: piso y revestimiento en porcelanato pulido. Doble bacha ferrum cuadra sobre mesada de silestone blanco norte. Receptáculo de ducha con tapa de silestone. Artefactos sanitarios ferrum trento. Grifería vasser lyra y espejo sobre mesada. -Detalles destacados -materiales de alta gama en todos los ambientes. -Amplios y luminosos espacios. -Galería ideal para reuniones sociales. -Cochera cubierta. -Diseño moderno y funcional. Servicios red eléctrica subterránea planta de ósmosis inversa red cloacal red de gas red de telecomunicaciones amenities club house* quinchos 2 piletas descubiertas solarium con mobiliario juegos infantiles con arenero 2 canchas de tenis 1 cancha de fútbol 5 1 cancha de paddle ubicada en un entorno único, vida funes ofrece seguridad, tranquilidad y cercanía a rosario, con acceso rápido a servicios, colegios y comercios. - Consultanos para coordinar tu visita y descubrir tu próxima casa!

Contactar
1/37
Visto

51

USD 530.000

Av. Arturo Illia al 300

Casa en Venta en Vida, Funes

Marca Negocios Inmobiliarios
  • 198 m² cubie.
  • 3 dorm.
  • A Estrenar

VENTA/PERMUTA. Casa 3 dormitorios y piscina en Barrio Vida. Funes

Venta de casa 3 dormitorios en barrio cerrado vida, ofrece la posibilidad de adquirirse completamente amueblada, lista para disfrutar desde el primer día.La vivienda esta desarrollada en dos plantas, sobre un terreno de dimensiones de 20 m. De frente x 40 m. De fondo, con orientación norte. Abarcando una superficie cubierta de 190,98m2, y semicubierta de 88,63 m2. Casa funcional, con el mayor aprovechamiento solar durante todo el día. Favoreciendo con la orientación norte las vistas y ventilaciones de la galería, estar, comedor y cocina. Los ambientes mas usados durante el día. El ingreso principal conduce a un amplio estar-comedor con visuales plenas al jardín, integrado a una cocina con isla central, despensa y lavadero independiente. En este nivel se ubica toilette de recepción. En el área exterior, galería semicubierta con parrillero, amplio jardín y piscina con solárium. En planta alta, la suite principal cuenta con vestidor y baño privado, y los dos dormitorios secundarios comparten un baño completo. Cochera cubierta para dos vehículos. Esta casa combina diseño, confort y estilo en cada rincón. Fue concebida con una estética exquisita y equipada con muebles que reflejan esa misma atención al detalle. La iluminación, moderna y versátil, realza los espacios y crea distintos climas según el momento del día. Características generales vida es el nuevo barrio cerrado de funes, sobre la av. Arturo illia, en el límite con rosario. A tan solo metros del aeropuerto internacional rosario y el shopping fisherton mall. Es un emprendimiento desarrollado en conjunto entre rossetti desarrollos y rosental, de 35 hectáreas totales. Cuenta con 300 lotes, que van desde 800 a 1.200 metros cuadrados. El acceso al predio es por calle av. Arturo illia, y cuenta con un sector comercial que separa esta calle del barrio. Contará con los servicios de agua potable, luz, cloacas, calles asfaltadas e iluminadas, cable e internet. Áreas recreativas, deportivas, y comerciales, 2 canchas de tenis, una cancha de futbol 5, 2 piscinas (una para adultos y otras para niños), solárium con mobiliario, juegos infantiles con arenero y equipamiento de exteriores. El club house contara con un bar restaurante, una sala de lectura, áreas administrativas, vestuarios y dos quinchos. El área comercial de planta baja y primer piso está planteada para albergar un supermercado, locales comerciales y oficinas. El área comercial está planteada para albergar supermercados, locales comerciales y oficinas, en 50.000 metros cuadrados, que incluirán estacionamiento y espacios verdes. Amenities piscina para adultos y niños; solárium con mobiliario; canchas de tenis; cancha de fútbol 5; juegos infantiles con arenero; club house con bar restaurante; quinchos; sala de lectura; vestuarios; áreas recreativas; área comercial con locales y oficinas

Contactar
1/36
Visto

29

USD 850.000

Av arturo illia al 500

Casa en Venta en Vida, Funes

RAMIREZ LOY PROPIEDADES
  • 270 m² cubie.
  • 4 dorm.
  • 1 año

Casa Vida funes barrio privado

Funes vida barrio privado lote 111:ubicada en el exclusivo barrio privado vida, esta casa de dos plantas de estilo minimalista ofrece una perfecta combinación de diseño moderno, funcionalidad y elegancia. Desde su fachada limpia y geométrica hasta los detalles interiores cuidadosamente seleccionados, cada espacio fue pensado para brindar confort y armonía visual. Terreno de 20 x 40 total 800 m2 , casa 270 m2 cubiertos y 90 m2 semis el acceso principal es sobrio pero imponente, con una puerta de madera maciza que desemboca en el ambiente de estar que es recibido por una cava de vinos subterránea, grandes ventanales de piso a techo permiten una conexión directa con el entorno verde , planta baja: recepción conecta con un amplio ambiente integrado que incluye living, comedor y cocina. Este espacio cuenta con doble altura en el área del living, lo que refuerza la sensación de amplitud y luminosidad. La cocina, de concepto abierto, baño completo de recepción, habitación que funciona de gymnasio y/o sala de ensayo con ingreso independiente, lavadero, galería semi cubierta con parrilla revestida en acero inox, jardín con fogonero para reuniones de considerables dimensiones y piscina revestida íntegramente en piedra bali planta alta: en la planta superior se ubican los 4 dormitorios. La suite principal posee vestidor, baño completo y salida a una terraza privada con yacuzzi. Los tres dormitorios secundarios comparten baño valor de venta u$s 850,000 nota : aceptaria casa inferior en barrio privado y /o abierto

Contactar
1/25
Visto

20

USD 650.000

Casa en Vida Lote 31

Casa en Venta en Vida, Funes

MASPERO PROPIEDADES
  • 270 m² cubie.
  • 3 dorm.
  • 4 baños

Venta Casa en Vida Barrio Cerrado

En el exclusivo barrio vida de funes, se construye esta residencia de categoría, concebida por un arquitecto de reconocida trayectoria, lo que asegura un diseño funcional, moderno y de excelencia constructiva en cada detalle. Implantada en un terreno de 800 m2, con frente norte, la vivienda se distribuye en dos plantas, con ambientes amplios, luminosos y pensados para brindar confort y calidad de vida. Planta baja al ingresar, un espacio de cochera cubierta da la bienvenida. La planta se organiza con una cocina moderna y práctica, con conexión directa al living y comedor. Luego lavadero independiente y baño. El living comedor de generosas dimensiones integra vistas abiertas hacia el jardín, generando un ambiente social cálido y luminoso. Hacia el exterior, se destaca la galería cubierta con parrilla, acompañada de un baño de servicio y deposito, creando el lugar ideal para disfrutar reuniones y momentos en familia al aire libre. Planta alta en el sector íntimo, la casa ofrece una suite principal con vestidor y baño privado, diseñada como un verdadero refugio de confort y privacidad. A ella se suman dos amplios dormitorios, ambos con baño en suite, que aportan comodidad y exclusividad para cada integrante de la familia. Un escritorio luminoso completa esta planta, ideal para home office o estudio, integrando funcionalidad a la vida cotidiana. Detalles y calidad ambientes amplios y conectados con el verde dormitorios en suite, con vestidores y terminaciones de primera calidad cocina equipada con mobiliario y detalles premium aberturas con excelentes prestaciones que garantizan luz natural y eficiencia galería con parrilla, diseñada para vivir el jardín todo el año obra dirigida por un arquitecto de experiencia y prestigio, con materiales y terminaciones de alto nivel una casa pensada para quienes buscan elegancia, confort y calidad de vida en un entorno natural y seguro. Un proyecto premium en uno de los barrios más consolidados y de mayor proyección de funes. Sobre el barrio vida 294 lotes desde 800 a 1.400 m2. El acceso al barrio se encuentra en la intersección de las calles av. Arturo illia bis y golondrinas. Servicios red eléctrica subterránea planta de ósmosis inversa red cloacal red de gas red de telecomunicaciones amenities club house quinchos 2 piletas descubiertas solarium con mobiliario juegos infantiles con arenero 2 canchas de tenis 1 cancha de fútbol 5 1 cancha de paddle el club house cuenta con más de 120 m2 de paredes verdes que permiten climatizarlo con un considerable ahorro de energía. El mismo tendrá un bar restaurante, una sala de lectura, áreas administrativas, vestuarios y dos quinchos. Entre la av. Arturo illia y el barrio, habrá un espacio comercial que consta de planta baja y primer piso. La zona está planteada para albergar un supermercado, locales comerciales y oficinas, que incluirán un estacionamiento y amplios espacios verdes.

Contactar
1/22
Visto

2

USD 530.000

Vida Barrio Cerrado Lote 98

Casa en Venta en Vida, Funes

EIGEN Propiedades
  • 174 m² cubie.
  • 3 dorm.
  • 3 baños

Venta Casa Tres Dormitorios Suite Cochera Doble. U098 Vida Barrio Cerrado

Venta casa 3 dormitorios suite piscina cochera doble. Vida barrio cerrado ubicada en el prestigioso barrio cerrado vida 1, en funes, esta residencia ofrece un diseño minimalista y moderno, ideal para la vida familiar. Con entrega aproximada en julio de 2026, la propiedad promete ser un hogar acogedor y funcional. Características principales: - terreno: 800 m2, con orientación sur en el frente y norte en el fondo, permitiendo una excelente iluminación natural. - Superficie construida: total de 237 m2 distribuidos en una sola planta, con 174 m2 cubiertos y 63 m2 semicubiertos. - Distribución interior: - amplio living comedor que se integra con una moderna cocina. - Lavadero independiente. - Toilette de cortesía. - 3 dormitorios: el principal en suite con vestidor y los otros dos comparten un baño completo. - Exterior: galería con parrillero, ideal para reuniones al aire libre. Extenso jardín que ofrece un espacio perfecto para el esparcimiento y la privacidad. Detalles y terminaciones: la casa contará con aberturas y terminaciones de primera calidad, asegurando durabilidad y una estética contemporánea. Servicios y amenities: - agua corriente, cloacas, gas natural, internet, electricidad, pavimento, teléfono, cable, agua potable, wifi. - Seguridad nocturna, alumbrado público, red de desagues pluviales, e instalación eléctrica subterránea. - Incluye sistema de alarma y accesibilidad para personas con movilidad reducida. Estacionamiento: - 2 cocheras cubiertas disponibles para su comodidad. Entrega julio 2026 esta propiedad destaca por su diseño y ubicación, brindando un entorno seguro y tranquilo, con todas las comodidades modernas. No pierda la oportunidad de ser parte de este exclusivo desarrollo en uno de los barrios más buscados de funes.

Contactar
1/31
Visto

2

USD 530.000

Barrio Vida

Casa en Venta en Vida, Funes

SOLJAN INMOBILIARIA
  • 161 m² cubie.
  • 3 dorm.
  • 2 baños

VENTA Casa 3 dormitorios Funes Barrio Cerrado Vida

Venta de casa 3 dormitorios mas comodín en barrio cerrado vida la vivienda estará desarrollada en su totalidad en planta baja, sobre un terreno de dimensiones de 20 m. De frente x 40 m. De fondo, con orientación sur. Abarcando una superficie cubierta de 161m2, y semicubierta de 119m2. Al momento de proyectarla se buscó lograr la mejor funcionalidad teniendo en cuenta el mayor aprovechamiento solar durante todo el día. Favoreciendo con la orientación norte las vistas y ventilaciones de la galería, estar, comedor y cocina. Los ambientes mas usados durante el día. El frente de la propiedad revestido en madera con un jardín con el techo calado, ideal para un frondoso árbol. Al acceder nos encontramos con un jardín interno totalmente vidriado que otorga luminosidad al ingreso. Un pasillo distribuidor nos lleva a la izquierda, dos dormitorios asistidos por un baño completo, a la derecha nos encontramos con la suite principal con vestidor y baño completo, también cuenta con un estudio al que se ingresa por la suite y por el frente de la propiedad. Amplio living comedor con cocina integrada con acceso al lavadero y espacio de tender, el sector social con ventanas que dan acceso directo a una gran galería semicubierta con parrillero. Calefacción por radiadores. Construcción de máxima calidad doble cochera. Porcelanato de primera calidad 90 x 90 cm modelo a definir en pisos del ingreso, estar, comedor, cocina, pasillo y lavadero. Porcelanato de primera calidad de 60 x 60 cm. En galería e ingreso peatonal. Hormigón llaneado en cochera. Adoquines de hormigón pavintec, modelo unidecor en ingreso vehicular porcelanato de primera calidad tamaño y modelo a definir en dormitorios, vestidor y pasillo. Porcelanato en revestimientos de paredes de baños y lavadero. Mesada de cocina e isla en silestone modelo blanco norte o similar. Mesada de lavadero en granito gris mara o similar. Mesada de parrillero en negro boreal o similar. Mesada de baños en silestone modelo blanco norte y/o laqueado según diseño. Bacha de acero inoxidable modelo quadra q76 o similar en cocina, marca johonson aceros. Bacha de acero inoxidable modelo e37 o similar en lavadero marca johonson aceros. Bacha de acero inoxidables modelo o37 en parrillero marca johonson aceros. Griferías marca fv modelo ciprés o similar con cierre cerámico en baños y toilette griferías marca fv monocomando modelo arizona o similar en lavadero y parrillero. Losa cerámica marca ferrum línea bari, y/o deca piazza línea amalfi o similar aberturas exteriores en aluminio color blanco marca aluar, línea módena 45a y a40 doble vidrio hermético en ventanas exteriores con lamina de seguridad puerta de ingreso principal de frente de madera maciza modelo a definir. Puertas placa interiores de piso a techo con marco de madera y acabadas con pintura laqueada. Herrajes de bronce platil muebles de cocina y lavadero marca reno línea premium o similar. Paredes interiores y cielorrasos suspendidos de educidos de yeso con buñas perimetrales. Pintura en muros interiores y cielorrasos con látex de primera calidad color blanco. Anafe de 5 hornallas y horno eléctrico de empotrar marca whirlpool o similar. Campana isla de acero inoxidable, marca tst modelo lt 900 o similar. Calefacción por radiadores en todos los ambientes. Caldera dual marca inmergas características y cantidad de radiadores de acuerdo a balance térmico. Circuitos de tomas e iluminación por sectores, circuito independiente para aires acondicionado con disyuntor general y térmicas marcas siemenns o similar. Frente e interior de placares con puertas corredizas en melanina de madera marca reno o similar. Espejos en baños. Artefactos spot de embutir y semi empotrar dicroicos con luz led en todos los ambientes. Revestimiento exterior con material de frente color nieve marca deck-ar. Revestimiento en fachada principal con madera de machimbre de grandis de 34 colocadas en formar vertical. Muros exteriores de ladrillo común y muros interiores con ladrillo hueco portante. Instalación de cañería de cobre y desagues para aire acondicionado en el estar-comedor, cocina, estudio y dormitorios.

Contactar
1/4
Visto

1

USD 685.000

Av. Arturo Illia 397

Casa en Venta en Vida, Funes

Ramasco Padilla Propiedades
  • 270 m² cubie.
  • 2 dorm.
  • A Estrenar

Casa de diseño a estrenar en VIDA

Imperdible casa de diseño a estrenar en vida descripción general: vida se encuentra en la intersección de las calles av. Arturo illia bis y golondrinas. El barrio cuenta con 294 lotes de 800 a 1.400 m2. Sus servicios son: red eléctrica subterránea, planta de ósmosis inversa, red cloacal, red de gas y red de telecomunicaciones. Amenities: - club house - quinchos - 2 piletas descubiertas - solarium con mobiliario - juegos infantiles con arenero - 2 canchas de tenis - 1 cancha de fútbol 5 - 1 cancha de paddle descripción de la unidad: ubicada en el lote 31, se desarrolla esta vivienda en dos plantas, construida sobre un lote de 800 m2. Planta baja: nos recibe hall de ingreso que nos conduce a un amplio living comedor de 11,60 x 4,40 mts con vista a dos patios internos, y salida a galería con vista al jardín de 10,80 x 4,40 mts.baño de recepción. Cocina comedor independiente de 5 x 5 mts, la misma cuenta con gran isla. Lavadero independiente con acceso a segundo ingreso con conexión a cochera doble. La cocina también tiene acceso a la galería, donde encontramos parrillero con una isla, baño exterior y deposito. Planta alta: apenas accedemos a la p.A nos encontramos con espacio para escritorio de 2,20 x 5 mts con vista al frente. Pasillo distribuidor que nos conduce a los dos dormitorios con placares y baño completo. Del otro ala de la casa nos encontramos con la master suite de 4,40 x 4,80 mts con vestidor de 3,10 x 3,60 mts, seguido de ante baño con doble bacha, baño completo y espacio para ducha. Superficie del terreno: 800 m2 superficie total: 363,60 m2 - superficie cubierta: 270 m2 - superficie semicubierta: 93,60 m2 orientación: frente norte fecha de entrega estimada: septiembre 2026 terminaciones: exterior ingreso peatonal, vehicular: piso de hormigón llaneado color gris plata porch, cochera: piso porcelanato 90 x 90 galería: piso porcelanato simil madera interior general p.B: piso porcelanato símil madera de 20 x 120. Cocina y lavadero: piso porcelanato símil madera de 20 x 120. Mesada de cocina de negro marquina de 2 cm de espesor. Mesada de lavadero de granito negro brasil de 2 cm de espesor. Pileta de cocina de acero inoxidable marca jhonson luxor. Pileta de lavar de acero inoxidable jhonson g-50. Grifería de cocina monocomando alta calidad. Grifería de lavadero monocomando alta calidad toilette: piso porcelanato símil madera de 20 x 120. Revestimiento porcelanato pulido en pared art. (Alt 1 mts), listel de acero inoxidable de terminación. Art. Sanitarios ferrum linea trento, asiento de madera laqueada. Mesada silestone blanco norte con bacha ferrum cuadra. Grifería monocomando vasser lyra. Baño galería: piso porcelanato ídem planta general. Revestimiento porcelanato pulido en pared artefactos (alt. 1 mts). Art. Sanitarios ferrum linea trento, asiento de madera laqueado. Mesada silestone blanco norte con bacha ferrum cuadra. Grifería monocomando vasser lyra. Escalera: huellas y contrahuellas de porcelanato ídem piso planta general. Baranda, diseño a definir. General p.A: piso porcelanato símil madera de 20 x 120. Baño niños: piso porcelanato pulido. Revestimientos porcelanato pulido. Revestimiento pocelanato pulido. Artefactos sanitarios ferrum linea trento, asiento de madera laqueada. Tapa de silestone para receptáculo de ducha. Mesada con bacha incluida de mármol carrara. Griferia vasser lyra. Espejo sobre mesada baño suite: piso y revestimiento porcelanato pulido. Tapa de silestone para receptáculo de ducha. Artefactos sanitarios ferrum linea trento, asiento de madera laqueada. Mesada de silestone blanco norte con dos bachas ferrum cuadra. Griferia vasser lyra. Espejo sobre mesada las especificaciones, terminaciones y marcas mencionadas en el presente aviso son orientativas y podrán sufrir modificaciones por parte del desarrollador sin que ello implique responsabilidad alguna para la inmobiliaria y/o el vendedor.

Contactar
1/6
Visto

1

USD 685.000

Av. Arturo Illia 397

Casa en Venta en Vida, Funes

Ramasco Padilla Propiedades
  • 260 m² cubie.
  • 2 dorm.
  • A Estrenar

3 dormitorios de diseño a estrenar en VIDA

Imperdible casa de diseño a estrenar en vida descripción general: vida se encuentra en la intersección de las calles av. Arturo illia bis y golondrinas. El barrio cuenta con 294 lotes de 800 a 1.400 m2. Sus servicios son: red eléctrica subterránea, planta de ósmosis inversa, red cloacal, red de gas y red de telecomunicaciones. Amenities: - club house - quinchos - 2 piletas descubiertas - solarium con mobiliario - juegos infantiles con arenero - 2 canchas de tenis - 1 cancha de fútbol 5 - 1 cancha de paddle descripción de la unidad: ubicada en el lote 52, se desarrolla esta vivienda en dos plantas, construida sobre un lote de 800 m2. Planta baja: nos recibe hall de ingreso que nos conduce a un amplio living comedor de 9 x 4,85 mts con salida a galería con vista al jardín de 11,40 x 4,65 mts.baño de recepción. Cocina de 4,80 x 4,40 mts, la misma cuenta con gran isla. Lavadero independiente con acceso a tender. Segundo ingreso desde cochera doble. La cocina también tiene acceso a la galería, donde encontramos parrillero con una isla, baño exterior y deposito. Planta alta: apenas accedemos a la p.A nos encontramos con espacio para escritorio de 3,20 x 2,40 mts.pasillo distribuidor que nos conduce a los dos dormitorios con placares y ante baño con doble bacha y baño completo. Del otro ala de la casa nos encontramos con la master suite de 4,55 x 4,40 mts con vestidor de 3,40 x 3 mts, seguido de ante baño con doble bacha, baño completo y espacio para ducha. Superficie del terreno: 800 m2 superficie total: 362,50 m2 - superficie cubierta: 260,15 m2 - superficie semicubierta: 102,25 m2 orientación: frente norte fecha de entrega estimada: mayo 2026 terminaciones: exterior ingreso peatonal, vehicular: piso de hormigón llaneado color gris plata porch, cochera: piso porcelanato 90 x 90 galería: piso porcelanato simil madera interior general p.B: piso porcelanato símil madera de 20 x 120. Cocina y lavadero: piso porcelanato símil madera de 20 x 120. Mesada de cocina de negro marquina de 2 cm de espesor. Mesada de lavadero de granito negro brasil de 2 cm de espesor. Pileta de cocina de acero inoxidable marca jhonson luxor. Pileta de lavar de acero inoxidable jhonson g-50. Grifería de cocina monocomando alta calidad. Grifería de lavadero monocomando alta calidad toilette: piso porcelanato símil madera de 20 x 120. Revestimiento porcelanato pulido en pared art. (Alt 1 mts), listel de acero inoxidable de terminación. Art. Sanitarios ferrum linea trento, asiento de madera laqueada. Mesada silestone blanco norte con bacha ferrum cuadra. Grifería monocomando vasser lyra. Baño galería: piso porcelanato ídem planta general. Revestimiento porcelanato pulido en pared artefactos (alt. 1 mts). Art. Sanitarios ferrum linea trento, asiento de madera laqueado. Mesada silestone blanco norte con bacha ferrum cuadra. Grifería monocomando vasser lyra. Escalera: huellas y contrahuellas de porcelanato ídem piso planta general. Baranda, diseño a definir. General p.A: piso porcelanato símil madera de 20 x 120. Baño niños: piso porcelanato pulido. Revestimientos porcelanato pulido. Revestimiento pocelanato pulido. Artefactos sanitarios ferrum linea trento, asiento de madera laqueada. Tapa de silestone para receptáculo de ducha. Mesada con bacha incluida de mármol carrara. Griferia vasser lyra. Espejo sobre mesada baño suite: piso y revestimiento porcelanato pulido. Tapa de silestone para receptáculo de ducha. Artefactos sanitarios ferrum linea trento, asiento de madera laqueada. Mesada de silestone blanco norte con dos bachas ferrum cuadra. Griferia vasser lyra. Espejo sobre mesada las especificaciones, terminaciones y marcas mencionadas en el presente aviso son orientativas y podrán sufrir modificaciones por parte del desarrollador sin que ello implique responsabilidad alguna para la inmobiliaria y/o el vendedor.

Contactar
1/2
Visto

1

USD 700.000

Av. Arturo Illia 397

Casa en Venta en Vida, Funes

Ramasco Padilla Propiedades
  • 260 m² cubie.
  • 2 dorm.
  • A Estrenar

3 dormitorios de diseño a estrenar en VIDA

Imperdible casa de diseño a estrenar en vida descripción general: vida se encuentra en la intersección de las calles av. Arturo illia bis y golondrinas. El barrio cuenta con 294 lotes de 800 a 1.400 m2. Sus servicios son: red eléctrica subterránea, planta de ósmosis inversa, red cloacal, red de gas y red de telecomunicaciones. Amenities: - club house - quinchos - 2 piletas descubiertas - solarium con mobiliario - juegos infantiles con arenero - 2 canchas de tenis - 1 cancha de fútbol 5 - 1 cancha de paddle descripción de la unidad: ubicada en el lote 213, se desarrolla esta vivienda en dos plantas, construida sobre un lote de 800 m2. Planta baja: nos recibe hall de ingreso que nos conduce a un amplio living comedor de 4,40 x 8,60 mts con vista a jardin interno y salida a galería con vista al jardín de 4 x 8,40 mts.baño de recepción. Playroom de 4 x 5,20 mts con ventana hacia el frente de la casa. Cocina de 4,40 x 4,80 mts, la misma cuenta con gran isla. Lavadero independiente. Segundo ingreso desde cochera doble. La cocina también tiene acceso a la galería, donde encontramos parrillero con una isla, baño exterior completo y deposito. Planta alta: apenas accedemos a la p.A nos encontramos con escritorio o sala de tv de 2,90 x 4,60 mts.pasillo distribuidor que nos conduce a los dos dormitorios con placares y ante baño con doble bacha y baño completo. Del otro ala de la casa nos encontramos con la master suite de 4 x 4,40 mts con vestidor de 3,10 x 3,90 mts, seguido de ante baño con doble bacha, baño completo y espacio para ducha. Superficie del terreno: 800 m2 superficie total: 363 m2 - superficie cubierta: 286 m2 - superficie semicubierta: 77 m2 orientación: frente sudeste - fondo noroeste fecha de entrega estimada: junio 2026 terminaciones: exterior ingreso peatonal, vehicular: piso de hormigón llaneado color gris plata porch, cochera: piso porcelanato 90 x 90 galería: piso porcelanato simil madera interior general p.B: piso porcelanato símil madera de 20 x 120. Cocina y lavadero: piso porcelanato símil madera de 20 x 120. Mesada de cocina de negro marquina de 2 cm de espesor. Mesada de lavadero de granito negro brasil de 2 cm de espesor. Pileta de cocina de acero inoxidable marca jhonson luxor. Pileta de lavar de acero inoxidable jhonson g-50. Grifería de cocina monocomando alta calidad. Grifería de lavadero monocomando alta calidad toilette: piso porcelanato símil madera de 20 x 120. Revestimiento porcelanato pulido en pared art. (Alt 1 mts), listel de acero inoxidable de terminación. Art. Sanitarios ferrum linea trento, asiento de madera laqueada. Mesada silestone blanco norte con bacha ferrum cuadra. Grifería monocomando vasser lyra. Baño galería: piso porcelanato ídem planta general. Revestimiento porcelanato pulido en pared artefactos (alt. 1 mts). Art. Sanitarios ferrum linea trento, asiento de madera laqueado. Mesada silestone blanco norte con bacha ferrum cuadra. Grifería monocomando vasser lyra. Escalera: huellas y contrahuellas de porcelanato ídem piso planta general. Baranda, diseño a definir. General p.A: piso porcelanato símil madera de 20 x 120. Baño niños: piso porcelanato pulido. Revestimientos porcelanato pulido. Revestimiento pocelanato pulido. Artefactos sanitarios ferrum linea trento, asiento de madera laqueada. Tapa de silestone para receptáculo de ducha. Mesada con bacha incluida de mármol carrara. Griferia vasser lyra. Espejo sobre mesada baño suite: piso y revestimiento porcelanato pulido. Tapa de silestone para receptáculo de ducha. Artefactos sanitarios ferrum linea trento, asiento de madera laqueada. Mesada de silestone blanco norte con dos bachas ferrum cuadra. Griferia vasser lyra. Espejo sobre mesada las especificaciones, terminaciones y marcas mencionadas en el presente aviso son orientativas y podrán sufrir modificaciones por parte del desarrollador sin que ello implique responsabilidad alguna para la inmobiliaria y/o el vendedor.

Contactar
1/18
Visto

1

USD 530.000

Vida Barrio Cerrado

Casa en Venta en Vida, Funes

COSA Propiedades
  • 161 m² cubie.
  • 3 dorm.
  • A Estrenar

Venta Casa 3 dormitorios más estudio Vida Barrio Cerrado Funes

Vida barrio cerrado i funes importante casa a la venta en el exclusivo barrio cerrado vida, ubicado en la intersección de av. Arturo illia bis y golondrinas, en el límite con rosario. La propiedad se desarrolla en una planta sobre un terreno de 800 m2 y cuenta con una superficie total de 280 m2, de los cuales 161 m2 son cubiertos y 119 m2 semicubiertos. Orientación, frente sur. Cochera semicubierta para dos autos. Ingreso principal a hall distribuidor, toilette de recepción, estar-comedor de grandes dimensiones con vistas hacia el jardín, cocina integrada al estar totalmente equipada, con alacenas de guardado y bajo mesada de calidad premium. Lavadero independiente con bacha, bajo mesada y salida al exterior. Estudio de 3,00 x 2,50 con ingreso independiente al frente. Íntimo, baño completo, dos dormitorios amplios con placares incluidos, dormitorio principal en suite con vestidor y salida a un pequeño balcón. Exterior, jardín, galería con parrilla y espacio para mobiliario. Detalles de la propiedad porcelanato de primera calidad 90 x 90 cm modelo a definir en pisos del ingreso, estar, comedor, cocina, pasillo y lavadero. Porcelanato de primera calidad de 60 x 60 cm. En galería e ingreso peatonal. Hormigón llaneado en cochera. Adoquines de hormigón pavintec, modelo unidecor en ingreso vehicular. Porcelanato de primera calidad tamaño y modelo a definir en dormitorios, vestidor y pasillo. Porcelanato en revestimientos de paredes de baños y lavadero. Mesada de cocina e isla en silestone modelo blanco norte o similar.Mesada de lavadero en granito gris mara o similar. Mesada de parrillero en negro boreal o similar. Mesada de baños en silestone modelo blanco norte y/o laqueado según diseño. Bacha de acero inoxidable modelo quadra q76 o similar en cocina, marca johonson aceros.L bacha de acero inoxidable modelo e37 o similar en lavadero marca johonson aceros. Bacha de acero inoxidables modelo o37 en parrillero marca johonson aceros. Griferías marca fv modelo ciprés o similar con cierre cerámico en baños y toilette griferías marca fv monocomando modelo arizona o similar en lavadero y parrillero. Losa cerámica marca ferrum línea bari, y/o deca piazza línea amalfi o similar aberturas exteriores en aluminio color blanco marca aluar, línea módena 45a y a40 doble vidrio hermético en ventanas exteriores con lamina de seguridad puerta de ingreso principal de frente de madera maciza modelo a definir. Mesada de cocina e isla en silestone modelo blanco norte o similar.Mesada de lavadero en granito gris mara o similar. Mesada de parrillero en negro boreal o similar. Mesada de baños en silestone modelo blanco norte y/o laqueado según diseño. Bacha de acero inoxidable modelo quadra q76 o similar en cocina, marca johonson aceros.L bacha de acero inoxidable modelo e37 o similar en lavadero marca johonson aceros. Bacha de acero inoxidables modelo o37 en parrillero marca johonson aceros. Griferías marca fv modelo ciprés o similar con cierre cerámico en baños y toilette. Griferías marca fv monocomando modelo arizona o similar en lavadero y parrillero. Losa cerámica marca ferrum línea bari, y/o deca piazza línea amalfi o similar. Aberturas exteriores en aluminio color blanco marca aluar, línea módena 45a y a40. Doble vidrio hermético en ventanas exteriores con lamina de seguridad. C.I. Mat. 1037 colomar, bernardoc.I. Mat. 1074 sauan, federico si necesitás comprar o vender tu propiedad, conocé cómo trabajamos entrando a nuestra web. Cosa propiedades 0 la información y medidas provistas deberán ratificarse con la documentación correspondiente y no comprometen contractualmente a nuestra inmobiliaria. Asimismo, los gastos expresados refieren a la última información recabada y deben confirmarse. Las fotos no son vinculantes ni contractuales.-

Contactar
1/11
Visto

1

USD 650.000

Av Arturo Illia 99

Casa en Venta en Vida, Funes

INMOBILIARIA BIANCHI
  • 195 m² cubie.
  • 4 dorm.
  • A Estrenar

Casa a Estrenar de 4 Dormitorios en Vida Barrio Cerrado

Casa de diseño a estrenar en vida barrio cerrado, funes se vende casa de categoría, completamente a estrenar, en vida barrio cerrado, funes. Esta propiedad de estilo moderno se ubica en el lote n 134 y cuenta con 195 m2 cubiertos sobre un terreno de 800 m2. La casa está pensada para la comodidad y el disfrute. En la planta baja encontramos: amplio living comedor. Cocina con comedor diario y despensa. Toilette de servicio. Una master suite con baño completo. Galería semicubierta. Quincho independiente, equipado con parrillero, bacha y baño exterior. Gran piscina con solárium. La planta alta ofrece una distribución pensada para la privacidad: una segunda master suite. Dos dormitorios secundarios que comparten un baño completo. Lavadero. La calidad de los materiales es un diferencial de esta propiedad, con terminaciones de primer nivel: techos de hormigón visto. Pisos de porcelanato símil madera. Aberturas de aluminio a40 negras con dvh (doble vidriado hermético). Griferías de la línea hidromet en color negro. Revestimiento exterior en material de frente blanco. La casa cuenta con calefacción por radiadores y preinstalación para aire acondicionado, asegurando confort en cualquier estación del año. Con una excelente orientación que maximiza la luz natural, esta propiedad es la oportunidad perfecta para quienes buscan exclusividad y diseño.

Contactar
1/21
Visto

1

USD 530.000

Barrio Cerrado Vida

Casa en Venta en Vida, Funes

GRUPO AMBITO SRL
  • 161 m² cubie.
  • 3 dorm.
  • 2 baños

Venta Casa 3 dormitorios mas comodin en Barrio Cerrado Vida Amenities

Venta de casa 3 dormitorios mas comodín en barrio cerrado vida. En construcción financiacion la vivienda estará desarrollada en su totalidad en planta baja, sobre un terreno de dimensiones de 20 m. De frente x 40 m. De fondo, con orientación sur, fondo norte. Abarcando una superficie cubierta de 161m2, y semicubierta de 119m2. Al momento de proyectarla se buscó lograr la mejor funcionalidad teniendo en cuenta el mayor aprovechamiento solar durante todo el día. Favoreciendo con la orientación norte las vistas y ventilaciones de la galería, estar, comedor y cocina. El frente de la propiedad revestido en madera con un jardín con el techo calado, ideal para un frondoso árbol. Al acceder nos encontramos con un jardín interno totalmente vidriado que otorga luminosidad al ingreso. Un pasillo distribuidor nos lleva: a la izquierda, dos dormitorios asistidos por un baño completo, a la derecha nos encontramos con la suite principal con vestidor y baño completo, también cuenta con un estudio al que se ingresa el frente de la propiedad. Amplio living comedor con cocina integrada con acceso al lavadero y espacio de tender, el sector social con ventanas que dan acceso directo a una gran galería semicubierta con parrillero. Calefacción por radiadores. Construcción de máxima calidad. Se entrega en junio 2026 *toda la información y medidas provistas son aproximadas y deberán ratificarse con la documentación pertinente y no compromete contractualmente a nuestra empresa. * Los gastos (expensas, api, tgi, aguas, etc.) Expresados, refieren a la última información recabada y deberán confirmarse. Nota: las medidas y superficies expuestas son estimativas y a corroborar con sus respectivos planos y títulos. La publicación de este inmueble es a solo título informativo, la venta de la propiedad está supeditada a que el propietario cumplimente el trámite ante la afip para la obtención del número de coti correspondiente. La información no es contractual.

Contactar
1/8
Visto

1

USD 570.000

Barrio Vida

Casa en Venta en Vida, Funes

VENDIMIA PROPIEDADES
  • 224 m² cubie.
  • 3 dorm.
  • A Estrenar

Casa en Barrio Vida

Venta - casa tres dormitorios con patio, pileta y cochera - barrio cerrado vida 1 el acceso al barrio se encuentra en la intersección de las calles av. Arturo illia bis y golondrinas. Propiedad distinguida por su exquisito diseño moderno que combina los espacios internos con los externos permitiendo una luminosidad perfecta en cada ambiente. Un proyecto arquitectónico único desarrollado con la más alta calidad constructiva que tiene todos los detalles. En el ingreso nos encontramos con la cochera semicubierta con capacidad para dos vehículos a la par y un ingreso peatonal independiente protegido por un alero semicubierto que nos acompaña a la puerta principal. Al ingresar, el hall vincula los espacios principales de la casa. El living-comedor se encuentra mirando hacia el patio en su lado sur y a patios internos en su lado norte rodeándose de vegetación lo cual le otorga sensación de contacto con el exterior. Su techo posee una altura de 4.00 m brindándole amplitud, gran luminosidad y lo convierte en un espacio imponente. Desde el living-comedor nos vinculamos a la galería con parrillero completo desde el cual se aprecia la piscina con solárium que esta posicionada en el terreno de una manera estratégica para su máximo aprovechamiento solar. A través del hall accedemos a la master suite que cuenta vestidor de grandes dimensiones y un baño completo con ante baño de dos bachas, espacio de ducha generoso e iluminación y ventilación natural. En su armado se priorizo la comodidad y su uso simultaneo, dividiendo los espacios para un mayor aprovechamiento. En cuanto a la cocina, se encuentra hacia el frente de la casa y está totalmente equipada. La misma cuenta con mobiliario completo de primera calidad, una isla desayunadora con campana y se vincula visualmente al living-comedor a través de un patio con vegetación natural; posee un ingreso secundario a partir de la cochera. El lavadero se encuentra adosado a la cocina, y posee un patio de servicio para su uso. Accedemos a la planta alta a través de una cómoda escalera, con descanso y un gran ventanal. En la planta alta se ubican dos dormitorios y un baño completo con ante baño. Terminaciones de la propiedad: #muros exteriores: material de frente blanco y yeso en interiores. #Cielorraso suspendido de yeso en interior y en la cochera losa hormigón visto. #Toda la casa posee aberturas de aluminio anodizado natural de alta prestación, aluar a40 con vidrio dvh. #Puertas interiores de mdf laqueado blanco. #Piso interior pb, living, comedor, galería, baños y lavadero: porcellanato vite urban light grey 120x60 o similar, zocalos pvc. Piso interior mastersuite y pa ingeniería de madera natural, zócalos de mdf prepintados. O piso ingreso peatonal y vehicular de revestimiento de piedra natural. Pisada de escalera revestida en silestone color white storm. #Cocina y lavadero puertas y frentes mdf laqueado blanco. Mesada de silestone color white storm. Grifería marca fv, línea temple o similar. O frentes e interior de placard con revestimiento melamínico en color blanco. Anafe y horno. Artafectos de iluminación puntual embutidos led 3watts. #Interior de vestidor enchapado de melamina color vison o similar. #Baños: mampara de duchas fijas en vidrio templado. Artefactos sanitarios mar ca ferrum, línea bari o similar. Grifería marca fv, línea libby o simiar. Espejos float 4mm. #Lavadero: grifería marca fv, línea swim o similar. Incluye: #instalación sanitaria, gas y eléctrica completa. # Calefacción radiadores con caldera dual. #Pileta completa, con sistema de filtrado y perforación. No incluye: equipos de aire acondicionado servicios del barrio cerrado: #red eléctrica subterránea # planta de ósmosis inversa # red cloacal red de gas # red de telecomunicaciones amenities: # club house # quinchos # 2 piletas descubiertas # solarium con moviliario # juegos infantiles con arenero # 2 canchas de tenis #1 cancha de fútbol 5 todas las medidas enunciadas son meramente orientativas, las medidas exactas serán las que se expresen en el respectivo título de propiedad de cada inmueble. Todas las imágenes y vídeos son meramente ilustrativos. Todas las medidas enunciadas son meramente orientativas, las medidas exactas serán las que se expresen en el respectivo título de propiedad de cada inmueble. Todas las imágenes y vídeos son meramente ilustrativos. Cecilia calore mat. 1780 cocir vendimia propiedades

Contactar