-
Departamento
-
1 dormitorio
-
32 años
-
1 baño
-
2 ambientes
-
Bueno
Venta departamento 2 ambientes amoblado en Recoleta
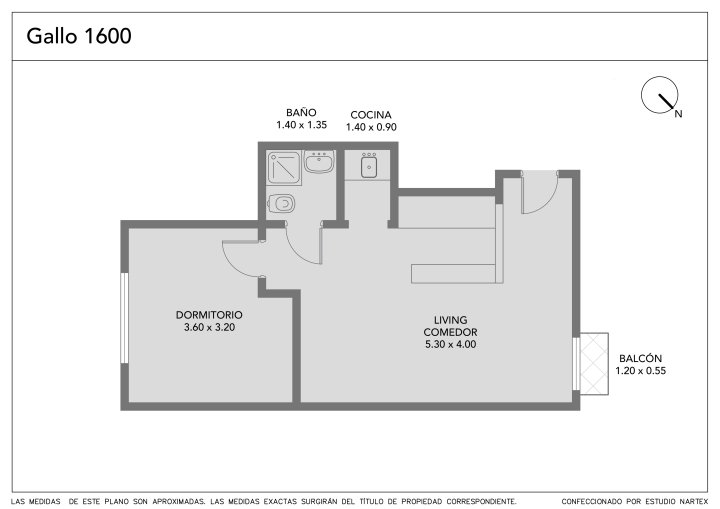
Te presento una excelente oportunidad en pleno Recoleta: un 2 ambientes interno, silencioso y con muy buena funcionalidad, ideal tanto para inversores como para uso profesional.
Ubicado en un primer piso, con acceso por ascensor o escalera, este departamento ofrece:
Living-comedor con pisos de madera.
Cocina integrada, eléctrica.
Dormitorio amplio con un gran ventanal, lo que aporta buena luz media natural.
Ventilación cruzada con balcón francés en living.
Baño completo.
Aires frío/calor instalados.
Apto profesional, ideal para consultorio, estudio o trabajo independiente.
Encargado con vivienda.
Además, es una excelente alternativa para inversión:
Actualmente está alquilado hasta octubre 2026, con posibilidades de rescindir el contrato si es necesario.
TRANSPORTE Y SERVICIOS CERCANOS
La zona está estratégicamente conectada:
Subte línea D (Estación Pueyrredón) a pocas cuadras.
Varias líneas de colectivo: 29, 39, 60, 92, 93, 109, 111, 118 y más.
A pocas cuadras del Hospital Alemán, uno de los más prestigiosos de la ciudad.
Una propiedad con gran potencial, en una de las zonas más buscadas de Buenos Aires.
Las medidas, superficies y metros detallados son aproximados y los definitivos surgirán del plano y la documentación correspondiente. Los valores de servicios e impuestos pueden estar sujetos a modificación sin previo aviso.
Toda la información del aviso, incluyendo medidas, precio, impuestos, servicios, etc. son estimativos, sujetos a modificación y no vinculantes, según lo dispuesto en el art. 973, Cód. Civ. y Com.
- KP483921 - KPT022010 -
- Publicado usando KiteProp CRM Inmobiliario
Ubicación
Barrio Norte, Capital Federal
Características
-
Cant. Ambientes: 2
-
Cant. Dormitorios: 1
-
Cant. Baños: 1
-
Estado: Bueno
-
Antiguedad: 32
-
Expensas: $ 250.000
-
Apto Crédito
Datos básicos
-
Tipo de operación: Venta
-
Precio: USD 69.500
Superficie
-
Sup. Total: 35,40 m2
Instalaciones del departamento
- Amoblado
Código de aviso: 30KP483921
Propiedades Similares
-
USD 80.000
Gallo 1000
- 35 m² Cubierta
- 40 años
- 1 baño
-
USD 68.000
+ $ 12000 expensas
RIOBAMBA 1000
- 31 m² Cubierta
- 1 dormitorio
-
USD 89.000
+ $ 7000 expensas
Arenales 2756 1º A
- 45 m² Cubierta
- 1 dormitorio
- 55 años
-
USD 90.000
+ $ 160000 expensas
Sanchez De Bustamante 1600
- 38 m² Cubierta
- 1 dormitorio
- 65 años