Migueletes 2300, Piso 201

USD 276.143

Venta en Belgrano, Capital Federal

USD 276.143

  • Departamento

  • 73 m² Cubierta

  • 2 dormitorios

  • A Estrenar

  • 3 baños

  • 3 ambientes

  • Frente

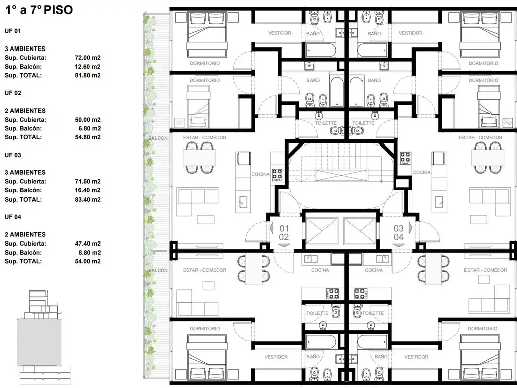
Departamento en el emprendimiento Be Home Bajo Belgrano

3 ambientes al frente
living comedor con cocina incorporada toillete de recepcion balcon corrido al frente
Dormitorio principal en suite con vestidor y 2do dorm con baño completo.

cocheras en susbuelo disponibles desde US 30.000

Ubicación

Belgrano, Capital Federal

Esta propiedad pertenece al emprendimiento

Be Home Bajo Belgrano

Be Home Bajo Belgrano

Estado:

En pozo

Entrega:

Octubre 2028

Dormitorios:

1, 2 y 3

Ver emprendimiento

Características

  • Cant. Ambientes: 3

  • Cant. Dormitorios: 2

  • Cant. Baños: 3

  • Disposición: Frente

  • Tipo de Unidad: Departamento

  • Tipo de operación: Venta

  • Precio: USD 276.143

  • Sup. Cubierta: 73 m2

  • Sup. Total: 86 m2

Código de aviso: 284042-6433177

Contactá al anunciante

La Capitana Real Estate