-
Departamento
-
169,50 m² Cubierta
-
3 dormitorios
-
A Estrenar
-
3 baños
-
5 ambientes
-
1 toilettes
-
Bueno
Dragones 1819 . Bajo Belgrano . Dúplex 5 Amb . Terraza y Parrilla Individual . A estrenar
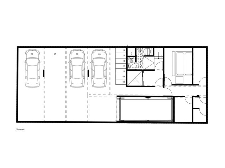
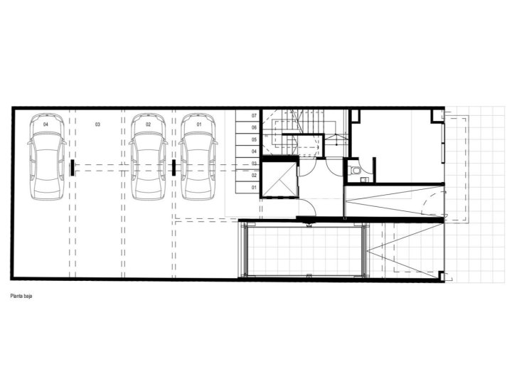
Departamento de cinco ambientes en dúplex, desarrollado en cuarto y quinto piso completo. En planta alta (5° piso), se ingresa por palier privado al estar comedor con salida a amplio balcón aterrazado, toilette, dormitorio de servicio con baño y cocina con comedor diario con salida a gran terraza con parrilla individual. En planta baja (4° piso), se accede por escalera a un gran playroom con salida a balcón aterrazado, tres dormitorios, el principal con baño en suite y vestidor, el secundario con salida a balcón/terraza, un segundo baño completo y lavadero. Cocheras opcionales en planta baja y/o subsuelo.
Emprendimiento premium en la calle Dragones al 1800 entre Pampa y Sucre, con una ubicación privilegiada en la mejor zona del Bajo Belgrano. Estratégicamente ubicado a tres cuadras de la Av. Figueroa Alcorta, a seis de Av. Libertador y próximo a las avenidas Lugones y Cantilo, con rápida salida a cualquier punto de la Ciudad y GBA Norte. Oferta gastronómica de primer nivel, cercano a prestigiosos colegios y rodeado de amplios espacios verdes.
FECHA DE ENTREGA/POSESIÓN: Inmediata
ESTRUCTURA LEGAL: Fideicomiso de construcción al costo
MODALIDAD DE PAGO:
50% adelanto en dólares al Boleto
50% saldo en dólares al tomar posesión
Accesible: NO (Ley 5.115)
...
-
Toda la información del aviso, incluyendo medidas, precio, impuestos, servicios, etc. son estimativos, sujetos a modificación y no vinculantes, según lo dispuesto en el art. 973, Cód. Civ. y Com.
- KP481926 - KPT022205 -
- Publicado usando KiteProp CRM Inmobiliario
Ubicación
Belgrano, Capital Federal
Características
-
Cant. Ambientes: 5
-
Cant. Dormitorios: 3
-
Cant. Toilettes: 1
-
Cant. Baños: 3
-
Estado: Bueno
Datos básicos
-
Tipo de operación: Venta
-
Precio: USD 836.000
Superficie
-
Sup. Cubierta: 169,50 m2
-
Sup. Descubierta: 47,70 m2
-
Sup. Total: 241,80 m2
Código de aviso: 22KP481926
Propiedades Similares
-
USD 889.000
+ $ 48000 expensas
La pampa 900
- 155 m² Cubierta
- 3 dormitorios
- 4 años
-
USD 889.000
+ $ 48000 expensas
La pampa 900
- 155 m² Cubierta
- 3 dormitorios
- 4 años
-
USD 740.000
CASTAÑEDA 1800
- 125 m² Cubierta
- 3 dormitorios
- A Estrenar
-
USD 925.000
Camila O'gorman 400
- 125 m² Cubierta
- 2 dormitorios
- A Estrenar