-
Departamento
-
A Estrenar
-
1 baño
-
Sur
Monoambiente - Emprendimiento OPORTUNIDAD
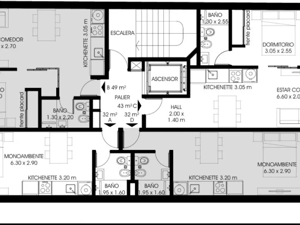
Edificio en construcción de planta baja, 8 pisos y terraza, compuesto por 4 departamentos por piso. Cuenta con unidades de 1 dormitorio, monoambientes, oficinas adaptables a departamentos de dos dormitorios, un local comercial y espacio de cocheras y un quincho de uso común más otro de uso exclusivo en azotea. Detalles constructivos: Placards con frente terminado. Baños completos con espacio de ducha, vanitory y griferías FV o similar. Pisos y paredes revestidos con cerámicos en baño, cocina y balcón. Pisos, zócalos de madera flotante en estar comedor, dormitorios y pasos. Paredes y cielorrasos enduídos en yeso. Aberturas exteriores en aluminio con doble vidrio hermético, línea aluar o similar. Mesadas de cocina de mármol y bacha de acero inoxidable con grifería FV o similar. Alacenas y bajo mesadas en madera completamente instalados. Cocina a gas y termotanque eléctrico instalados.
Fecha de entrega aproximada año 2027
Financiación: Anticipo en dólares y cuotas en pesos ajustadas al índice Cac
*Proyecto sujeto a modificación - Todos los metros indicados son aproximados*
Ubicación
Centro, Rosario, Departamento de Rosario, Santa Fe
Características
-
Cant. Ambientes: 0
-
Cant. Baños: 1
-
Orientación: S
Datos básicos
-
Tipo de operación: Venta
-
Precio: USD 54.400
Ambientes del departamento
- Baño
- Terraza
Instalaciones del departamento
- Agua corriente
- Cable
- Electricidad
- Gas natural
- Instalación parrilla
- Teléfono
Servicios del departamento
- Agua corriente
- Electricidad
- Gas natural
- Internet
- Teléfono
- Video cable
Servicios del edificio
- Agua corriente
- Electricidad
- Gas natural
- Internet
- Teléfono
- Video cable
Código de aviso: PRO-1365017
Propiedades Similares
-
USD 59.000
Mendoza 1800
- 27 m² Cubierta
- A Estrenar
- 1 baño
-
USD 68.000
Buenos Aires 1900
- 36 m² Cubierta
- 1 dormitorio
- 3 años
-
USD 65.000
Pres Julio Argentino Roca 1156
- 78 m² Cubierta
- 2 dormitorios
-
USD 65.000
+ $ 40000 expensas
Montevideo 1700
- 50 m² Cubierta
- 2 dormitorios
- 60 años