-
Departamento
-
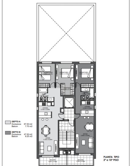
47,50 m² Cubierta
-
1 dormitorio
-
A Estrenar
-
1 baño
-
2 ambientes
-
4 cocheras
-
Bueno
VENTA DEPTO 1 DORMIT C/BALCÓN MENDOZA 2800
EL PRECIO PUBLICADO CORRESPONDE A LA UNIDAD 6° B.
HAY COCHERAS DISPONIBLES NO INCLUIDAS EN EL PRECIO
FORMA DE PAGO: SE ESCUCHAN DISTINTAS PROPUESTAS CON CUOTAS EN PESOS ACTUALIZADAS CON EL INDICE DE LA CÁMARA DE LA CONSTRUCCIÓN
UBICACIÓN:
Se encuentra situado en una importante zona de la ciudad, en la calle Mendoza entre Riccheri y Ovidio Lagos; a pocas cuadras de Bv.Oroño, Av Pellegrini, Av Francia y del Parque Independencia. Con afluencia de gran cantidad de líneas de transporte público hacia los distintos puntos de la ciudad. Próximo a importantes centros educativos, Facultad Ciencias Económicas y Estadísticas, Universidad Abierta Interamericana (UAI), Universidad Católica Argentina (UCA), Tribunales, facultad de Medicina, Centros de Salud, Museos y centros de actividades culturales y deportivas, y a minutos del microcentro.
CARACTERISTICAS
El edificio está compuesto por 10 semipisos de 1 y 2 dormitorios. Todos los departamentos son unidades con ventilación cruzada y amplios balcones al frente, creando así un ambiente contiguo.
Cocheras opcionales en planta baja con portón automatizado.
TERMINACIONES
Paredes medianeras y muros de frente y contrafrente: doble pared con cámara de aire, aislación hidráulica y aislación térmica en poliestireno de alta densidad.
Cielorrasos y paredes en yeso terminados con pintura al látex.
Balcones con barandas de aluminio y vidrio de seguridad.
Aberturas de aluminio blanco línea Módena con protección de cortina de enrollar motorizada en el estar, y manual en dormitorios, ambas provistas de mosquiteros.
Puertas placas reforzadas enchapadas en madera y lustradas, con herrajes de primera calidad.
Frente de placares de piso a techo con guías de aluminio.
Pisos porcellanatos en estar, cocina, baño y balcón y pisos flotante en dormitorios.
Zócalos de madera lustrados en todos los ambientes.
Muebles de cocina completos: bajo mesada, alacenas, porta microondas, bodeguero, en melamina blanca, mesada en granito gris mara o similar, pileta de acero inoxidable Johnson y gritería monocomando FV o similar. Espacio y conexiones para lavarropa.
En todos los departamentos quedaran instalados, la cocina, calefón y estufa en dormitorio, marca LONGVIE, quedando un pico adicional en estar.
Instalación de cañerías para futura conexión de equipos split en estar y dormitorios.
Baño: mesada en mármol beige Sahara o blanco turco con bacha bajo mesada en losa blanca Ferrum, sanitarios blancos de primera calidad, grifería de primera calidad y bañera.
Instalación de cañerías para telefonía y TV cable en todos los ambientes.
Hall de ingreso con detalles en madera y pisos de porcellanato
Las medidas y superficies expuestas surgen de la información suministrada por el propietario, no representando un dato contractual.
- KP404902 - KPT022017 -
- Publicado usando KiteProp CRM Inmobiliario
Ubicación
Centro, Rosario, Santa Fe
Características
-
Cant. Ambientes: 2
-
Cant. Dormitorios: 1
-
Cant. Baños: 1
-
Cant. Cocheras: 4
-
Estado: Bueno
-
Expensas: $ 57.000
Datos básicos
-
Tipo de operación: Venta
-
Precio: USD 103.000
Superficie
-
Sup. Cubierta: 47,50 m2
-
Sup. Total: 55,75 m2
Código de aviso: 83KP404902
Propiedades Similares
-
USD 125.000
Italia al 100
- 55 m² Cubierta
- 1 dormitorio
- A Estrenar
-
USD 120.000
Italia al 200
- 50 m² Cubierta
- 1 dormitorio
- A Estrenar
-
USD 110.000
+ $ 2000 expensas
Santa Fe 1671
- 47 m² Cubierta
- 1 dormitorio
- 3 años
-
USD 106.230
Alvear 1200
- 45,40 m² Cubierta
- A Estrenar
- 1 baño