Camacua 144 , Piso 7

USD 212.000

Venta en Flores, Capital Federal

+ $305.000 expensas

USD 212.000

+ $305.000 expensas
  • Departamento

  • 106,18 m² Cubierta

  • 3 dormitorios

  • 56 años

  • 1 baño

  • 4 ambientes

  • 1 cocheras

  • 1 toilettes

  • Bueno

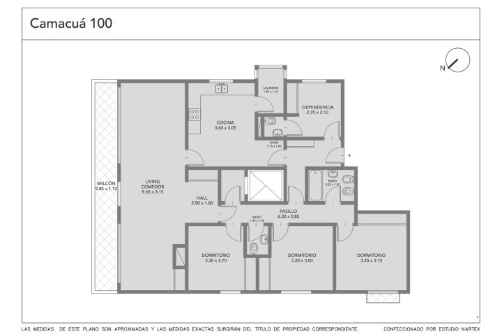
SEMIPISO . CONTRAFRENTE . BALCÓN CORRIDO CON VISTA ABIERTA Y VERDE

Semipiso de cuatro ambientes al contrafrente con salida a balcón corrido, piso alto, vista abierta a espacios verdes. Ingreso principal por palier privado al living comedor apaisado. Cocina comedor con lavadero separado. Dependencia de servicio con baño, Tres dormitorios, baño completo y toilette. Cochera fija y cubierta. El edificio está ubicado a una cuadra de Av. Rivadavia, a dos cuadras de Av. Carabobo y a una J. B. Alberdi, con variedad de medios de transporte, en una zona tranquila del barrio de Flores y con amplia oferta de comercios y colegios, ABL $68.000 - Aysa: $34.000. Accesible: SI (Ley 5.115)

Toda la información del aviso, incluyendo medidas, precio, impuestos, servicios, etc. son estimativos, sujetos a modificación y no vinculantes, según lo dispuesto en el art. 973, Cód. Civ. y Com.

- KP462574 - KPT022311 -
- Publicado usando KiteProp CRM Inmobiliario

Ubicación

Flores, Capital Federal

Características

  • Cant. Ambientes: 4

  • Cant. Dormitorios: 3

  • Cant. Toilettes: 1

  • Cant. Baños: 1

  • Cant. Cocheras: 1

  • Estado: Bueno

  • Antiguedad: 56

  • Expensas: $ 305.000

  • Apto Crédito

  • Tipo de operación: Venta

  • Precio: USD 212.000

  • Sup. Cubierta: 106,18 m2

  • Sup. Total: 117,42 m2

Código de aviso: 95KP462574

Contactá al anunciante

Mariana Rebora Propiedades