-
Departamento
-
30 m² Cubierta
-
1 dormitorio
-
A Estrenar
-
1 baño
-
Monoambiente
-
1 cochera
Mataderos emprendimiento octubre/25
Cañada de Gomez 1328 a mts. De Avda Emilio Castro
Varias unidades monoambientes, dos y tres ambientes, con distintas
Tipologías, con patio, balcon o terraza, frente y contrafrente.
Fecha prevista estimada de entrega Octubre/25
Equipamiento
Baño completo
Muebles bajo y sobre mesada, horno y anafe, lavadero incorporado
Aire acondicionado frio/calor
Las aberturas doble vidrio con persiana.
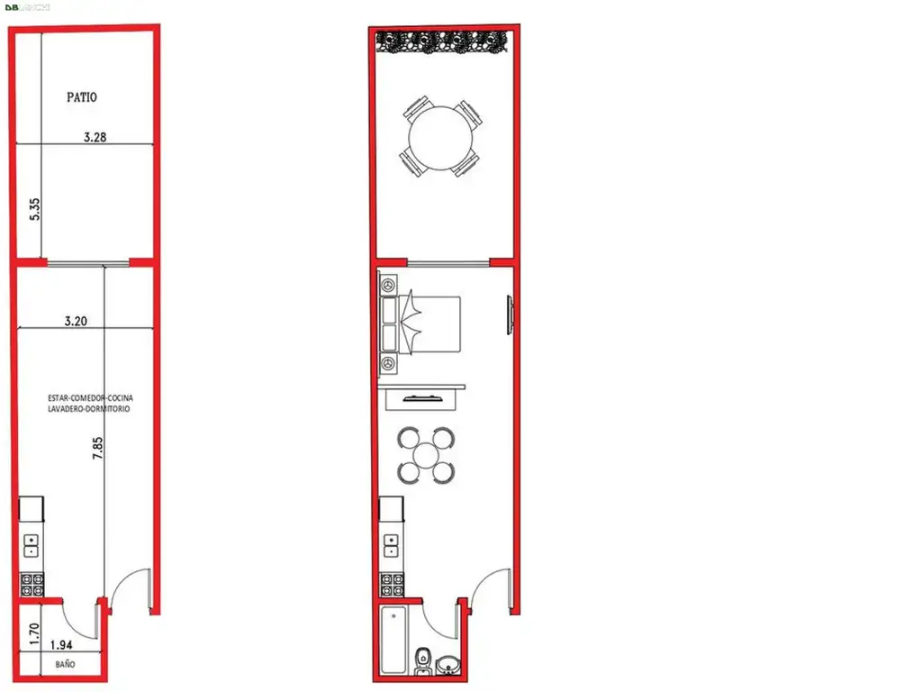
Esta unidad esta en planta baja
Consta de monoambiente amplio con patio, contrafrente.
Consultas al WhatsApp o vía mail a
DBianchi
Beauchef 1108 dto. 4 CABA
La oferta de este inmueble es a solo título informativo, pues la venta de la propiedad está supeditada a que el propietario cumplimente el trámite ante la AFIP para la obtención del N° de COTI
Ubicación
Mataderos, Capital Federal
Características
-
Cant. Ambientes: 1
-
Cant. Dormitorios: 1
-
Cant. Baños: 1
-
Cant. Cocheras: 1
Datos básicos
-
Tipo de operación: Venta
-
Precio: Consultar precio
Superficie
-
Sup. Cubierta: 30 m2
-
Sup. Total: 47 m2
Código de aviso: 0079989
Propiedades Similares
-
USD 99.000
AV GENERAL PAZ 12400
- 1 dormitorio
-
USD 105.000
ARAUJO 900
- 45 m² Cubierta
- 1 dormitorio
- A Estrenar
-
USD 95.000
Jose J Araujo 900
- 46 m² Cubierta
- 1 dormitorio
- A Estrenar
-
USD 77.600
+ $ 15000 expensas
MIRALLA 1000
- 31 m² Cubierta
- A Estrenar
- 1 baño