-
Departamento
-
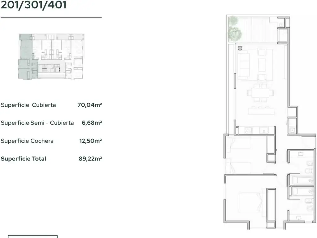
70 m² Cubierta
-
2 dormitorios
-
2 baños
-
3 ambientes
Departamento en Nordelta, ALBÖR (Puerto Escondido)
Excelente oportunidad de inversión en la Bahía de Nordelta: Aprovechá a entrar desde la primera etapa! ALBOR se encuentra en Nordelta, mas precisamente en la Bahía de Nordelta, a pocos metros de la Av. Agustín M García / Av. Sta. María de las Conchas (R27), en una zona completamente consolidada por importantes empresas comerciales y residenciales.
Si bien el destacable centro de Nordelta se encuentra a sólo a mil metros, el desarrollo ofrece vista 100% abierta a la bahía y a su exuberante vegetación. El proyecto se trata de dos bloques independientes de 6 plantas cada uno unidos por un basamento donde se encuentran los amenities del conjunto.
Constará de 36 unidades de 2 , 3 y 4 ambientes:
PB y 1er piso de 3 y 4 ambientes tipo dúplex con Jardín, Parrilla, y Piscina propia.
Pisos 2 a 4: 2 ambientes con toilette y baño en suite; y 3 ambientes con 2 baños completos (uno en suite).
Pisos 5 y 6: 3 amplios ambientes con Terraza propia , Parrilla y Jacuzzi.
Cocheras en Primer Subsuelo con acceso por rampa y 3 cocheras de cortesía.
AMENITIES S.U.M Sala de estar / Co-working Pileta exterior con solárium y zona de camastros Gimnasio y Vestuarios Espacio de reunión y relax en la terraza con fogonero.
OBRA
Inicio:
Marzo 2025
Finalización: Agosto 2027
ANTICIPO DEL 30% + 30 cuotas en USD o pesos
Cochera: U$S 30.000
CONSULTAR POR MAS INFO! NO TE LO PIERDAS!
Las medidas son Aproximadas y al solo efecto orientativo, las medidas reales surgirán del Título de Propiedad respectivo.
Importante: La venta del Inmueble referido se encuentra sujeta a la tramitación del Código de Oferta de Transferencia de Inmuebles (C.O.T.I.) por parte del propietario.
Corredor:
Marcelo Napolitano
CUCICBA: 5456
CMCPSI: 6645
Ubicación
Nordelta, Tigre, G.B.A. Zona Norte
Características
-
Cant. Ambientes: 3
-
Cant. Dormitorios: 2
-
Cant. Baños: 2
Datos básicos
-
Tipo de operación: Venta
-
Precio: USD 191.800
Superficie
-
Sup. Cubierta: 70 m2
-
Sup. Total: 70 m2
Ambientes del departamento
- Balcón
- Baño
- Cocina
- Dormitorio
- Hall
- Jardín
- Living
- Suite
- Terraza
- Toilette
- Vestidor
Instalaciones del departamento
- Agua corriente
- Cable
- Electricidad
- Gas natural
- Instalación parrilla
- Teléfono
Servicios del departamento
- Agua corriente
- Electricidad
- Gas natural
- Internet
- Seguridad
- Teléfono
- Video cable
Caracteristicas del edificio
-
Antiguedad: -1
Servicios del edificio
- Agua corriente
- Cocina
- Electricidad
- Gas natural
- Internet
- Seguridad
- Teléfono
- Video cable
Instalaciones del edificio
- Gimnasio
- Pileta
Código de aviso: PRO-1396055
Propiedades Similares
-
USD 135.000
Depto en venta en El Palmar, Nordelta. 2 ambientes con cochera
- 50 m² Cubierta
- 1 dormitorio
- 10 años
-
USD 207.000
+ $ 14000 expensas
Miradores de la Bahía al 300
- 68 m² Cubierta
- 1 dormitorio
- A estrenar
-
USD 240.000
+ $ 1 expensas
Av. del Puerto al 200
- 52 m² Cubierta
- 1 dormitorio
- 12 años
-
USD 240.000
+ $ 10000 expensas
Boulevard del Mirador al 100
- 60 m² Cubierta
- 1 dormitorio
- A estrenar