Ugarte y Montañeses - Unidad 7C

USD 262.118

Venta en Nuñez, Capital Federal

USD 262.118

  • Departamento

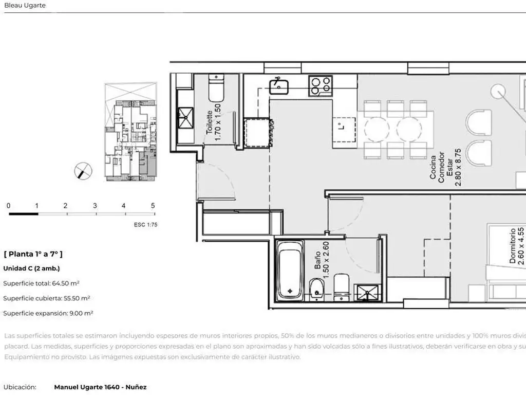
  • 55 m² Cubierta

  • 1 dormitorio

  • 1 baño

  • 2 ambientes

  • Frente

Departamento - Nuñez

Muy lindo departamento de 2 ambientes ubicado al frente con balcón sobre Ugarte, el mismo cuenta con living comedor con cocina integrada, dormitorio en suite con vestidor y toilette de recepción. Todos los ambientes cuentan con salida al balcón.

CONSULTE POR OTRAS UNIDADES DE ESTE EMPRENDIMIENTO (EN OTRO PISO, OTRA UBICACION Y OTRAS TIPOLOGIAS).

Todas las imágenes, planos, descripciones, y características indicadas son meramente referenciales e ilustrativas y podrán ser modificadas sin previo aviso. Las superficies indicadas son estimadas. Las superficies y medidas definitivas surgirán del plano de mensura final aprobado oportunamente por el GCBA. Las fechas de inicio de obra o posesión son estimadas, podrán ser reprogramadas por la Dirección de obra y dependerán a su vez de un proceso de aprobaciones municipales u otros organismos intervinientes. Los precios indicados podrán modificarse sin previo aviso. El interesado deberá realizar las verificaciones respectivas previamente a la realización de cualquier operación, requiriendo por sí o sus profesionales las copias necesarias de la documentación que corresponda.

Ubicación

Nuñez, Capital Federal

Características

  • Cant. Ambientes: 2

  • Cant. Dormitorios: 1

  • Cant. Baños: 1

  • Disposición: Frente

  • Tipo de operación: Venta

  • Precio: USD 262.118

  • Sup. Cubierta: 55 m2

  • Sup. Total: 55 m2

  • Balcón
  • Baño
  • Cocina
  • Dormitorio
  • Living comedor
  • Toilette
  • Vestidor
  • Agua corriente
  • Electricidad
  • Agua corriente
  • Electricidad
  • Antiguedad: -1

  • Agua corriente
  • Cocina
  • Electricidad
  • Pileta

Código de aviso: PRO-1437903

Contactá al anunciante

Interwin Marketing Inmobiliario