-
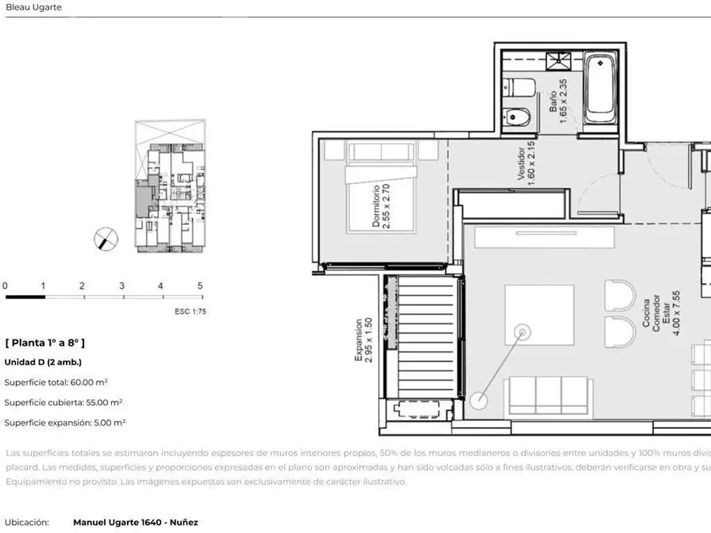
Departamento
-
55 m² Cubierta
-
1 dormitorio
-
1 baño
-
2 ambientes
-
Contra frente
Departamento - Nuñez
CONSULTE POR OTRAS UNIDADES DE ESTE EMPRENDIMIENTO (EN OTRO PISO, OTRA UBICACION Y OTRAS TIPOLOGIAS).
Todas las imágenes, planos, descripciones, y características indicadas son meramente referenciales e ilustrativas y podrán ser modificadas sin previo aviso. Las superficies indicadas son estimadas. Las superficies y medidas definitivas surgirán del plano de mensura final aprobado oportunamente por el GCBA. Las fechas de inicio de obra o posesión son estimadas, podrán ser reprogramadas por la Dirección de obra y dependerán a su vez de un proceso de aprobaciones municipales u otros organismos intervinientes. Los precios indicados podrán modificarse sin previo aviso. El interesado deberá realizar las verificaciones respectivas previamente a la realización de cualquier operación, requiriendo por sí o sus profesionales las copias necesarias de la documentación que corresponda.
Ubicación
Nuñez, Capital Federal
Características
-
Cant. Ambientes: 2
-
Cant. Dormitorios: 1
-
Cant. Baños: 1
-
Disposición: Contrafrente
Datos básicos
-
Tipo de operación: Venta
-
Precio: USD 185.262
Superficie
-
Sup. Cubierta: 55 m2
-
Sup. Total: 55 m2
Ambientes del departamento
- Balcón
- Baño
- Cocina
- Dormitorio
- Living comedor
- Toilette
- Vestidor
Instalaciones del departamento
- Agua corriente
- Electricidad
Servicios del departamento
- Agua corriente
- Electricidad
Caracteristicas del edificio
-
Antiguedad: -1
Servicios del edificio
- Agua corriente
- Cocina
- Electricidad
Instalaciones del edificio
- Pileta
Código de aviso: PRO-1562917
Propiedades Similares
-
USD 128.900
+ $ 50000 expensas
D Paroissien 2200
- 52 m² Cubierta
- 1 dormitorio
- 40 años
-
USD 155.000
+ $ 3700 expensas
11 de septiembre 1888 2800
- 55 m² Cubierta
- 2 dormitorios
- 40 años
-
USD 85.000
ARTILLEROS 2200
- 1 dormitorio
-
USD 125.000
+ $ 85000 expensas
Barilari 1300
- 45 m² Cubierta
- 1 dormitorio
- 60 años