Arcos y Crisólogo Larralde - Unidad 11A

USD 606.881

Venta en Nuñez, Capital Federal

USD 606.881

  • Departamento

  • 113 m² Cubierta

  • 3 dormitorios

  • 3 baños

  • 4 ambientes

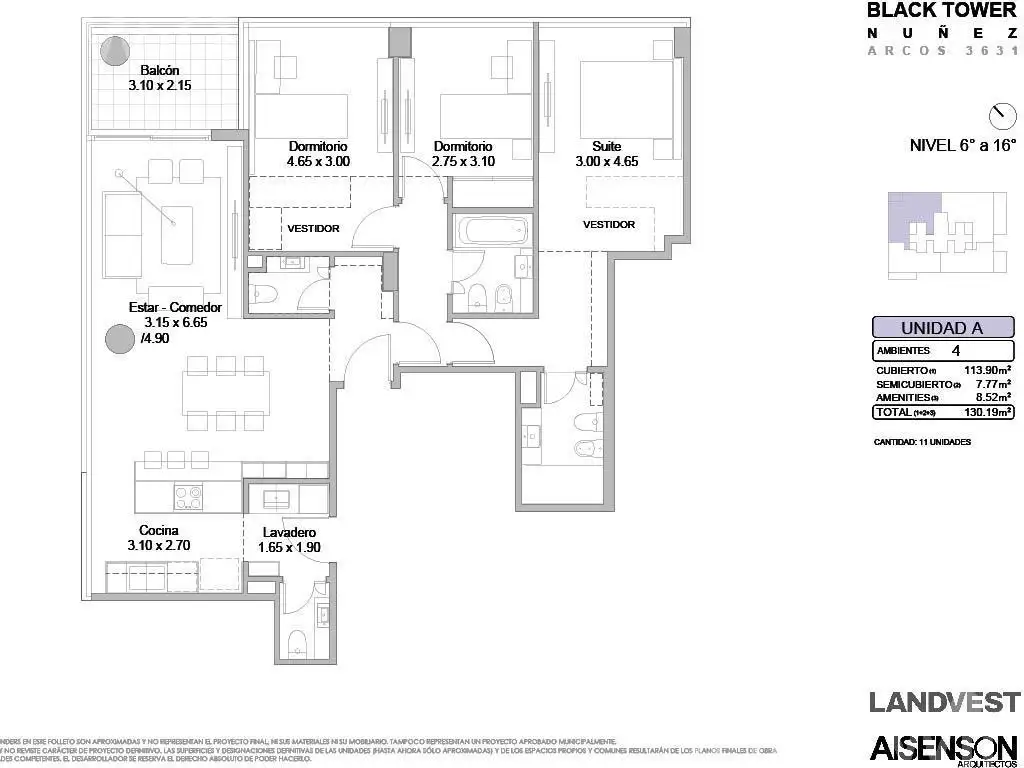
Departamento - Nuñez

Espectacular unidad de 4 ambientes con balcón, la misma cuenta con living comedor, cocina integrada y lavadero independiente. Dispone de 3 habitaciones en suite, la principal con vestidor y toilette de recepcion

Dicha unidad cuenta con 2 cocheras obligatorias, no incluidas dentro del valor publicado.

CONSULTE POR OTRAS UNIDADES DE ESTE EMPRENDIMIENTO (EN OTRO PISO, OTRA UBICACION Y OTRAS TIPOLOGIAS).

Todas las imágenes, planos, descripciones, y características indicadas son meramente referenciales e ilustrativas y podrán ser modificadas sin previo aviso. Las superficies indicadas son estimadas. Las superficies y medidas definitivas surgirán del plano de mensura final aprobado oportunamente por el GCBA. Las fechas de inicio de obra o posesión son estimadas, podrán ser reprogramadas por la Dirección de obra y dependerán a su vez de un proceso de aprobaciones municipales u otros organismos intervinientes. Los precios indicados podrán modificarse sin previo aviso. El interesado deberá realizar las verificaciones respectivas previamente a la realización de cualquier operación, requiriendo por sí o sus profesionales las copias necesarias de la documentación que corresponda.

Ubicación

Nuñez, Capital Federal

Características

  • Cant. Ambientes: 4

  • Cant. Dormitorios: 3

  • Cant. Baños: 3

  • Tipo de operación: Venta

  • Precio: USD 606.881

  • Sup. Cubierta: 113 m2

  • Sup. Total: 113 m2

  • Balcón
  • Baño
  • Cocina
  • Dormitorio
  • Lavadero
  • Living comedor
  • Toilette
  • Vestidor
  • Agua corriente
  • Electricidad
  • Instalación parrilla
  • Agua corriente
  • Electricidad
  • Antiguedad: -1

  • Agua corriente
  • Cocina
  • Electricidad
  • Gimnasio
  • Pileta
  • Sauna

Código de aviso: PRO-1146855

Contactá al anunciante

Interwin Marketing Inmobiliario