-
Departamento
-
37 m² Cubierta
-
1 baño
-
Monoambiente
DEPARTAMENTO MONOAMBIENTE 37 MTS GODOY CRUZ 2600 PALERMO EN CONSTRUCCION ENTREGA DIC.2027
facebook sharing button Compartirtwitter sharing button Twittearemail sharing button Correo electrónicowhatsapp sharing button Compartirsharethis sharing button Compartir
Descripción de la Propiedad
- VENTA DEPARTAMENTO MONOAMBIENTE CON BALCON -
PREVENTA EXCLUSIVA GRAN PROYECTO EN PALERMO SOHO SOBRE LA CALLE GODOY CRUZ A 1 CUADRA DE
AVENIDA SANTA FE Y FRENTE AL SHOPPING ARCOS PREMIUM OUTLET.
FECHA DE ENTREGA APROX DICIEMBRE 2027 -
EL VALOR DE PUBLICACION ES DE PAGO CONTADO , CONSULTE POR EL PLAN DE FINANCIACIÓN.
EDIFICIO UBICADO EN LA CALLE GODOY CRUZ AL 2600 , A METROS DE AVENIDA SANTA FE - EXCELENTE UBICACIÓN
EXCELENTE OPORTUNIDAD DE INVERSION.
DEPARTAMENTO UBICADO AL CONTRA FRENTE .
DEPARTAMENTOS DE 1, 2 Y 3 AMBIENTES. CONSULTE POR OTRAS UNIDADES.
CONSTRUCTORA DE PRIMER NIVEL ( ESTUDIO KOHON)
LA UNIDAD OFRECIDA ES UN DEPARTAMENTO DE MONOAMBIENTE , PISO 03 C - UF 17 , AL FRENTE CON AMPLIO BALCON .
SUP CUBIERTA : 28,00 M2
BALCON : 06,00 M2
TOTAL : 34 M2
INGRESANDO AL DEPARTAMENTO NOS ENCONTRAMOS CON EL BAÑO COMPLETO .
LUEGO NOS ENCONTRAMOS CON EL AMPLIO AMBIENTE CON SALIDA AL BALCON , PISOS EN PORCELANATO
AMPLIO BALCÓN AL FRENTE DE 06 M2.
LA COCINA CON MUEBLES BAJO Y SOBRE MESADA CON MESADA EN CUARZO NATURAL TIPO SILESTONE.
ANAFE DE 2 HORNALLAS ELECTRICO.
EL DEPARTAMENTO TIENE INCLUIDO UN EQUIPO DE AIRE ACONDICIONADO FRÍO CALOR Y EL PLACARD CON INTERIORES.
ABERTURAS DEL TIPO DVH.
INCLUIDOS
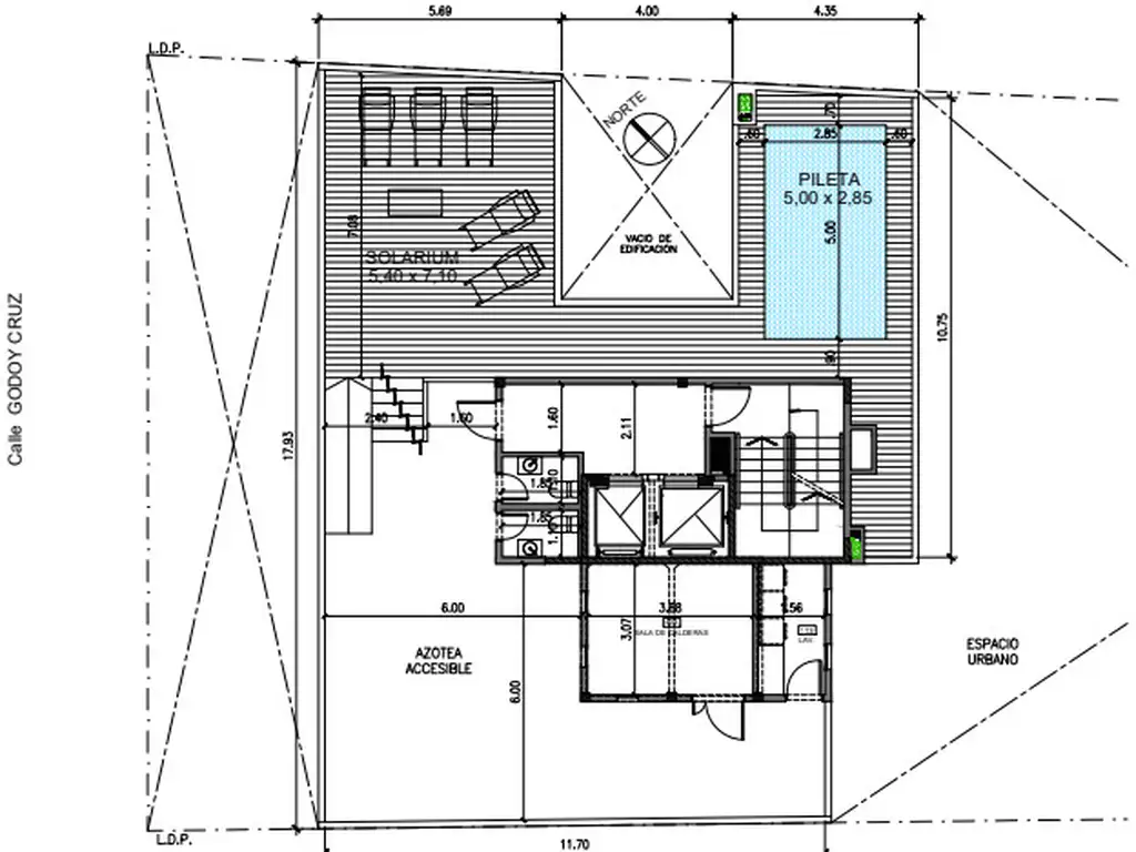
Sum
- Parrillas
- Deck solarium
- Piscina con duchas en el ultimo piso.
- Cocheras
- Grupo electrógeno
- Ascensores inteligentes
PLIEGO DE ESPECIFICACIONES TÉCNICAS
GODOY CRUZ 2633 – C.A.B.A.
Terminaciones y Calidades Constructivas
ESTRUCTURA RESISTENTE
Compuesta por bases, columnas, vigas y losas de hormigón armado según Código de edificación
del Gobierno de la Ciudad Autónoma de Buenos Aires y normas CIRSOC.
MAMPOSTERÍA
Muros exteriores de ladrillo hueco de 0,18m y macizo común 0,15 en medianeras con aislación
hidrófuga. Muros interiores divisores de unidades con ladrillo hueco de 0,15m y divisiones internas
con ladrillos de 0,10m de espesor.
REVOQUES
Yeso en interiores de los departamentos, palieres y hall de ingreso. En el resto de las áreas
comunes de servicio del edificio con fino a la cal. Terminación en el exterior del edificio con
revoque salpicado plástico tipo Quimtex y/o similar.
PISOS
Pisos de porcelanato en los ambientes, baños, cocinas, y balcones, al igual que en los palieres y
hall de entrada del edificio.
CIELORRASOS
Aplicados de yeso c/buñas y armados en baños y sector cocinas.
PINTURA / IMPERMEABILIZACIONES
Terminación interior de paredes con pintura al látex.
CARPINTERÍAS
Interiores: Puertas de ingreso a las unidades con Cerradura digital, y marco y hoja de chapa
doblada BWG 18 con relleno cortafuego. Puertas interiores con marco de chapa y hoja de madera
para pintar, y herrajes tipo sanatorio o similar.
Exteriores: Marcos y hojas de aluminio anodizado color natural línea A30 NEW o similar. Vidrios
de doble vidriado hermético (DVH), y además en puertas-ventanas con vidrio de seguridad. No se
prevé ningún dispositivo de oscurecimiento.
Hall de ingreso: Blindex o carpintería de aluminio y vidrio de seguridad en la puerta de acceso.
BARANDAS
Barandas de balcones Línea Panorama o similar de aluminio anodizado color natural y vidrio de
seguridad 3+3 incoloro.
PLACARES
Las unidades tendrán placar con frente integral de melanina color, y el interior completo con
cajoneras, estantes y barrales.
MUEBLES DE COCINA
Bajo mesada y alacena con puertas en Melamina color o simil madera, de 18 mm con cantos
enchapados en PVC y laterales de los muebles lisos a tono con las puertas.
2
MESADAS
En las cocinas se colocará mesada de Cuarzo Natural (tipo SILESTONE) de 2 cm de espesor con
zócalos de 8 cm de altura, y bacha simple de acero inoxidable marca Johnson / Mi Pileta o similar.
Espacio previsto para lavarropas bajo mesada.
COCINA
En las viviendas de 2 y 3 ambientes y los monoambientes (del contrafrente), se proveerá anafe de
4 hornallas a gas y horno en la parte inferior marca Longvie o similar, y campanas de extracción
de acero inoxidable marca TST o similar con conducto de ventilación a los 4 vientos.
En el caso de los estudios profesionales del frente (1°-2° y 6° piso) se proveerá anafe eléctrico de
2 hornallas sin horno ni extracción al exterior.
ARTEFACTOS DE BAÑO
Las unidades se entregan con artefactos blancos marca FERRUM / ROCA o similar, espacio para
ducha con mampara de 1 hoja fija, también Vanitorys con mesada de Cuarzo Natural (tipo
SILESTONE) y bacha de apoyar.
GRIFERÍAS Y ACCESORIOS
Las griferías son marca FV o similar en baños y cocinas. Los accesorios de baño se componen de
un kit que incluye jabonera, toallero, portarrollos y perchas.
AIRE ACONDICIONADO
Provisión e instalación de equipos individuales frío/calor tipo split de 1º marca, incluyendo los
desagües de condensación.
INSTALACIÓN SANITARIA Y CALEFACCIÓN
Provisión e instalación de calderas a gas centrales para agua caliente y calefacción por radiadores
con termostatos digitales programables.
El tendido de cañerías con material de termofusión para agua fría y caliente. Los desagües
sanitarios son de PVC 3,2 para bajadas de pluviales, todo de acuerdo con las normas de AYSA y
Gobierno de la Ciudad Autónoma de Buenos Aires. Los tanques de bombeo y los tanques de
reserva cumplirán con los cálculos reglamentarios y serán prefabricados de polietileno tricapa o de
acero inoxidable.
INSTALACIÓN DE GAS
La instalación se realizará de acuerdo con los reglamentos de Metrogas para la alimentación de
las cocinas y termotanques centrales.
INSTALACIÓN ELÉCTRICA
La instalación se realizará de acuerdo con los reglamentos de EDENOR y el ENRE, con llaves
termomagnéticas y disyuntores diferenciales, llaves, tomas, bocas de TV / Telefonía y portero
eléctrico visor. Artefactos de luz en áreas comunes (hall, palieres y balcones).
PORTERO VISOR
Se entrega con sistema de portero visor con cámara de seguridad incorporada en planta baja y
timbre de palier.
INSTALACION CONTRA INCENDIO
La instalación se realizará con cañería de hidrantes con manguera y lanza conectada a tanque de
reserva sanitario, y matafuegos en cada piso de acuerdo con normas del GCBA. Sistema de
inyección y extracción con evacuación de gases por conductos en la escalera contra incendio.
ASCENSOR
Se instalará dos (2) ascensores automáticos de Alta Velocidad y Maniobra selectiva
Para mas información o coordinar una visita comuníquese con la inmobiliaria Walter Porta al o
Solicite tasación: con más de 25 años en el mercado inmobiliario, brindando un servicio de excelencia, con honestidad, compromiso, atención profesional y personalizada
AVISO LEGAL: Las descripciones arquitectónicas y funcionales, valores de expensas, impuestos y servicios, fotos y medidas de este inmueble son aproximados. Los datos fueron proporcionados por el propietario y pueden no estar actualizados a la hora de la visualización de este aviso por lo cual pueden arrojar inexactitudes y discordancias con las que surgen de los las facturas, títulos y planos legales del inmueble. El interesado deberá realizar las verificaciones respectivas previamente a la realización de cualquier operación, requiriendo por sí o sus profesionales las copias necesarias de la documentación que corresponda. Venta supeditada al cumplimiento por parte del propietario de los requisitos de la resolución general Nº 2371 de la AFIP (pedido de COTI).
Ubicación
Palermo, Capital Federal
Características
-
Cant. Ambientes: 1
-
Cant. Baños: 1
Datos básicos
-
Tipo de Unidad: Departamento
-
Tipo de operación: Venta
-
Precio: USD 143.000
Superficie
-
Sup. Cubierta: 37 m2
-
Sup. Descubierta: 5 m2
-
Sup. Total: 42 m2
Ambientes del departamento
- Balcón
- Cocina
- Comedor
- Hall
- Living
Instalaciones del departamento
- Agua caliente
- Agua corriente
- Aire acondicionado individual
- Ascensor
- Gas natural
- Muebles de cocina
- Solarium
Servicios del departamento
- Agua corriente
- Calefacción
- Electricidad
- Gas natural
Caracteristicas del edificio
-
Estado Edificio: Excelente
Servicios del edificio
- Agua corriente
- Electricidad
- Gas natural
Instalaciones del edificio
- Ascensor
- Laundry
- Solarium
Código de aviso: 2NP4_638
Propiedades Similares
-
USD 140.000
Malabia al 2200. Entre Charcas y Paraguay
- 47 m² Cubierta
- 1 dormitorio
- 40 años
-
USD 180.000
+ $ 4500 expensas
SCALABRINI ORTIZ RAUL 1800
- 47 m² Cubierta
- 1 dormitorio
- 4 años
-
USD 185.000
+ $ 5500 expensas
SCALABRINI ORTIZ RAUL 1800
- 47 m² Cubierta
- 1 dormitorio
- 2 años
-
USD 119.000
+ $ 2900 expensas
SCALABRINI ORTIZ RAUL 1900
- 43 m² Cubierta
- 1 dormitorio
- 50 años