-
Departamento
-
27 m² Cubierta
-
1 dormitorio
-
45 años
-
1 baño
-
Monoambiente
-
Bueno
Venta monoambiente luminoso en Palermo (inversión)
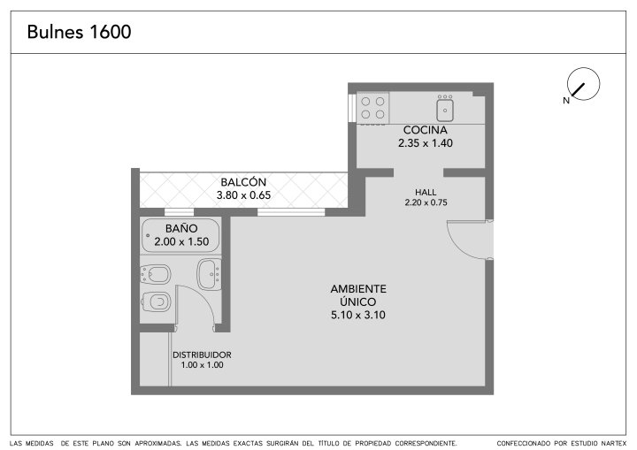
Ubicado en Bulnes 1600, en el 9° piso (anteúltimo), este excelente departamento de 1 ambiente con balcón se destaca por su luminosidad, tranquilidad y refacción de calidad, en una de las zonas más buscadas de Palermo.
Características principales:
Ambiente amplio y super luminoso, con salida al balcón y vista abierta.
Cocina semiindependiente, con espacio de guardado, ventilación natural, espacio para lavarropas y calefón individual.
Baño completo con ventilación natural.
Placard empotrado con buen espacio de guardado.
Pisos de madera en excelente estado.
Refaccionado, pintado, todo nuevo, listo para mudarse.
Muy silencioso.
Superficie total: 28 m² aprox.
Expensas bajas.
Ubicación privilegiada:
En pleno Palermo, con excelente conectividad y cercanía a Av. Santa Fe, Subte D (estación Bulnes), Shopping Alto Palermo y múltiples medios de transporte.
Una opción ideal tanto para vivienda propia como para inversión para renta, en una ubicación estratégica, luminosa y con el confort de un departamento moderno.
Las medidas, superficies y metros detallados son aproximados y los definitivos surgirán del plano y la documentación correspondiente. Los valores de expensas, servicios e impuestos pueden estar sujetos a modificación sin previo aviso.
Toda la información del aviso, incluyendo medidas, precio, impuestos, servicios, etc. son estimativos, sujetos a modificación y no vinculantes, según lo dispuesto en el art. 973, Cód. Civ. y Com.
- KP484355 - KPT022010 -
- Publicado usando KiteProp CRM Inmobiliario
Ubicación
Palermo, Capital Federal
Características
-
Cant. Ambientes: 1
-
Cant. Dormitorios: 1
-
Cant. Baños: 1
-
Estado: Bueno
-
Antiguedad: 45
-
Expensas: $ 108.000
-
Apto Crédito
Datos básicos
-
Tipo de operación: Venta
-
Precio: USD 79.000
Superficie
-
Sup. Cubierta: 27 m2
-
Sup. Total: 28,50 m2
Código de aviso: 30KP484355
Propiedades Similares
-
USD 84.999
+ $ 140000 expensas
Salguero al 1200
- 40 m² Cubierta
- 1 dormitorio
- 20 años
-
USD 80.000
+ $ 129000 expensas
José A. Cabrera 4100
- 19 m² Cubierta
- 2 años
- 1 baño
-
USD 65.000
DEL SIGNO 4000
- 25 m² Cubierta
- 50 años
-
USD 94.823
José Antonio Cabrera 4400
- 25,65 m² Cubierta
- 1 dormitorio
- A Estrenar