Charcas al 5200

USD 126.670

Venta en Palermo Hollywood, Palermo

USD 126.670

  • Departamento

  • 34 m² Cubierta

  • 1 dormitorio

  • 1 baño

  • 2 ambientes

  • Contra frente

Departamento en Venta

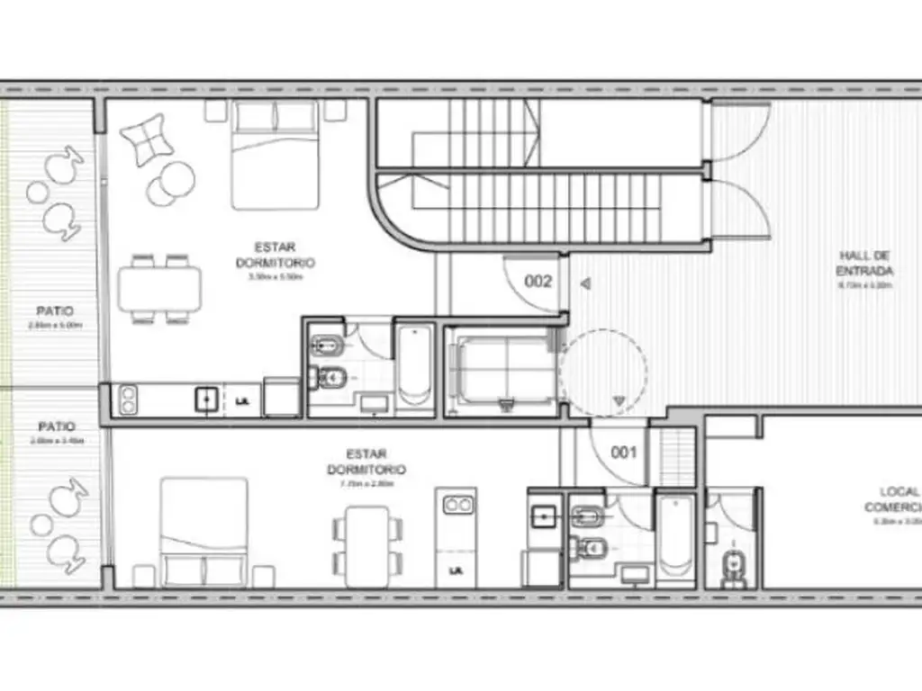
VENTA DE DOS AMBIENTES C/PATIO EN CONSTRUCCION
*Dos Ambientes con Patio en PB 2 con Superficies Cubierta: 34.50M2, Descubierta 15.45M2, Superficie Común 2,50M2 Total 52.45 M2

Fecha de Inicio de Obra: Diciembre 2024

Fecha de Posesión: Mayo 2027

Forma de Pago: 36 Cuotas Fijas desde Junio 2024

NOTA: Las medidas, Superficies y Tamaños son aproximadas, las Medidas, Superficies y Tipologías definitivas, surgirán del plano aprobado por el Gobierno de la Ciudad de Buenos Aires

Emprendimiento ubicado en el Barrio de Palermo Hollywood a metros de AV. Santa Fe con acceso a Múltiples medios de Transporte y Zona comercial

Ubicación

Palermo, Capital Federal

Características

  • Cant. Ambientes: 2

  • Cant. Dormitorios: 1

  • Cant. Baños: 1

  • Disposición: Contrafrente

  • Tipo de operación: Venta

  • Precio: USD 126.670

  • Sup. Cubierta: 34 m2

  • Sup. Descubierta: 15 m2

  • Sup. Total: 49 m2

  • Baño
  • Dormitorio
  • Patio
  • Antiguedad: -1

Código de aviso: PRO-1034665

Contactá al anunciante

Fragola Molina Empresa Inmobiliaria