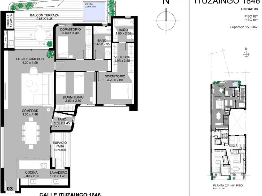
Ituzaingo 1800 , Piso 2

USD 323.400

Venta en Parque, Rosario

USD 323.400

  • Departamento

    Departamento

  • 121 m² Cubierta

    121 m² cubie.

  • 3 dormitorios

    3 dorm.

  • 4 ambientes

    4 ambientes

  • 1 cocheras

    1 cocheras

VENTA. Departamento 3 dormitorios en construcción.

ENTREGA ESTIMADA DICIEMBRE 2028

Edificio de PB + 6 Pisos, 16 unidades de 1, 2, 3 y 4 Dormitorios, 14 cocheras, amenities, gym.

AZOTEA DE USO COMÚN:
Espacio de quincho, equipado con toilette. Sector de parrillero. Sector de esparcimiento y solárium. Sector de relax. Piscina en altura con cascada (3.00 x 7.70m x 0.60m profundidad). Medidas sujetas adisponibilidad del mercado.

DEPARTAMENTOS 3 DORMITORIOS

AGUA CALIENTE
Provisión de agua caliente por caldera.

GAS
Conexión de gas con anafe en cocina.

AIRE ACONDICIONADO
Preinstalación de aire acondicionado.

SEGURIDAD Y TECNOLOGÍA
Pantalla táctil inteligente Sensor de humo Sensor movimiento Alarma inteligente Botón de pánico Puertos USB en dormitorio

CALEFACCIÓN
Calefacción por medio de radiadores en ambientes principales y dormitorios, reguladosmediante termostatos digitales inteligentes.

PATIOS PRIVADOS / TERRAZAS EXCLUSIVAS
Canteros integrados a la estructura del edificio. Provisión de canilla de servicio de agua. Provisión de toma de electricidad. Sector fogonero (01-03). Parrilla a carbón y mesada de apoyo con bacha (01-03, 05-03, 06-01). Piscina con solarium. Piscina 2.50 x 3.50m x 0.60m profundidad (01-03). Piscina 3.60 x 2.30m x0.60m profundidad (05-03).Medidas sujetas a disponibilidad del mercado. Balcón secundario para sector de tendido de ropa.

02-03 Tres dormitorios con cochera PB 04. 121,50 m2 cub - 29,00 m2 semicub - 12,50 m2 cochera. 163,00 m2 totales

Ubicación

Parque, Rosario, Departamento de Rosario, Santa Fe

Características

  • Cant. Ambientes: 4

  • Cant. Dormitorios: 3

  • Cant. Cocheras: 1

  • Tipo de Unidad: Departamento

  • Tipo de operación: Venta

  • Precio: USD 323.400

  • Sup. Cubierta: 121 m2

  • Sup. Descubierta: 29 m2

  • Sup. Total: 150 m2

Código de aviso: 266842-6358922

Contactá al anunciante

ACC Propiedades