-
Departamento
-
162 m² Cubierta
-
3 dormitorios
-
A Estrenar
-
3 baños
-
4 ambientes
-
1 cocheras
-
Excelente
-
Frente
-
Oeste
-
Per. mascota
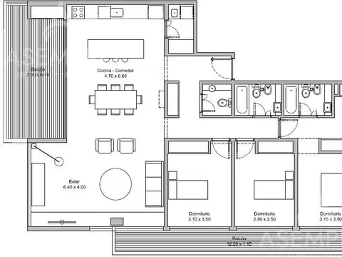
Departamento 4 Ambientes Premium en Construccion, Saavedra.
Con un precio de U$D 785.000, este inmueble en construcción ofrece una distribución inteligente en sus 216 m² totales, de los cuales 162 m² son cubiertos y 54 m² descubiertos. Su orientación oeste y disposición al frente garantizan luminosidad y calidez en todos los ambientes.
El departamento cuenta con 4 ambientes, distribuidos en 3 acogedores dormitorios, uno de ellos en suite, y 3 baños completos, además de una cocina equipada que se conecta con un amplio comedor y un desayuno ideal para disfrutar de las mañanas. Entre sus características más destacadas se encuentran la terraza, la piscina, el solarium y una parrilla perfecta para reuniones sociales. También es apto profesional, lo que brinda flexibilidad para aquellos que buscan combinar su hogar con su actividad laboral.
Este inmueble está diseñado pensando en la comodidad y la seguridad, con aire acondicionado, calefacción, puerta blindada y cochera cubierta. Además, permite mascotas y no tiene gastos adicionales. La posibilidad de financiación hace que esta propiedad sea aún más accesible, convirtiéndola en una opción atractiva para inversores exigentes que buscan comodidad, ubicación y versatilidad en un solo lugar.
Financiacion a medida.
Agenda tu reunion | Visita.
Aviso legal:
Las descripciones, medidas, valores y fotografías son orientativos y pueden diferir de la documentación oficial (título, boleto, planos y registros).
Los precios y fechas de obra o posesión son estimativos y podrán modificarse sin previo aviso.
Operación intermediada exclusivamente por Ignacio Rafael Pierucci, Corredor Inmobiliario CUCICBA Nº 9230 – Buelo Real Estate & Marketing.
Ubicación
Saavedra, Capital Federal
Características
-
Cant. Ambientes: 4
-
Cant. Dormitorios: 3
-
Cant. Baños: 3
-
Cant. Cocheras: 1
-
Estado: Excelente
-
Disposición: Frente
-
Orientación: O
Datos básicos
-
Tipo de Unidad: Departamento
-
Tipo de operación: Venta
-
Precio: USD 785.000
Superficie
-
Sup. Cubierta: 162 m2
-
Sup. Descubierta: 54 m2
-
Sup. Total: 216 m2
Ambientes del departamento
- Cocina
- Comedor
- Suite
- Terraza
- Vestidor
Instalaciones del departamento
- Aire acondicionado individual
- Desayunador
- Instalación parrilla
- Solarium
Servicios del departamento
- Agua corriente
- Calefacción
- Electricidad
- Seguridad
Generales del departamento
- Permite Mascotas
Instalaciones del edificio
- Pileta
Código de aviso: 6DUZ_184338
Propiedades Similares
-
USD 612.000
Paroissien al 2900
- 117 m² Cubierta
- 3 dormitorios
-
USD 561.000
Ruiz Huidobro al 3000
- 110 m² Cubierta
- 3 dormitorios
-
USD 559.800
Ciudad de la Paz esquina Vilela 604
- 106 m² Cubierta
- 3 dormitorios
- A Estrenar
-
USD 780.000
Besares 2300
- 147 m² Cubierta
- 3 dormitorios