(1) (1)
  • Belgrano C

Operación

Departamento

USD 100K-150K

Buscar solo avisos en moneda:

Dorm | 4 amb.

Dormitorios

  • 1
  • 2
  • 3
  • 4
  • 5+

Ambientes

  • Mono.
  • 2
  • 3
  • 4
  • 5+

Más filtros (2) Más filtros (1)

Dormitorios

  • 1
  • 2
  • 3
  • 4
  • 5+

Ambientes

  • Mono.
  • 2
  • 3
  • 4
  • 5+

Características

Superficie cubierta

Cocheras

Baños

Antiguedad

  • Indistinto
  • A estrenar
  • Hasta 5 años
  • Hasta 10 años
  • Hasta 20 años
  • Hasta 30 años
  • Más de 30 años

Disposición

Nombre de calle y altura

Expensas

$

Tipo de urbanización

Servicios

Tipo de departamento

Ver más

Ver menos

Tipos de ambientes

Tipo de anunciante

3 Departamentos en Belgrano C de 4 ambientes

1/8
Visto

6.000

USD 125.000

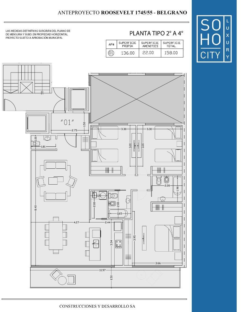
Roosevelt 1745 , Piso 4

Departamento en Venta en Belgrano, Capital Federal

ANTON PROPIEDADES SA
  • 136 m² cubie.
  • 3 dorm.
  • A Estrenar

ESPECTACULAR 4 AMBIENTES 136M2 CON BALCON EN POZO

Venta departamento de pozo de 4 ambientes 136m2 en belgrano roosevelt 1745-55 el departamento cuenta con una superficie de 136m2 distribuidos en: *amplio living comedor con cocina integrada 6.70x8.40 y lavadero independiente *toilette de recepción *hall de distribución *amplio dormitorio principal en suite con 2 placards 3.66x3.95 *2do dormitorio 3.30x3.00 *3er dormitorio 3.30x3.00 *2do baño completo *balcón terraza integrado con salida desde living-comedor *opción compra cochera fija y cubierta desde u$s33.000 emprendimiento "soho luxury living" - roosevelt 1745-55 - belgrano, caba el emprendimiento se encuentra ubicado en la calle roosevelt entre 11 de septiembre y arribeños, en el barrio de belgrano. Es una zona residencial, cercana a las principales vías de comunicación, av. Cabildo, av. Del libertador y con fácil acceso a las principales autopistas (av. Lugones / a. Cantilo / general paz). Y muy cercano a los principales medio de transporte, metrobus. Es un edificio exclusivo con servicios de primer nivel con residencias de 3 y 4 ambientes con cocheras fijas y cubiertas. El edificio consta de planta baja y 10 pisos. El emprendimiento cuenta con amenities de categoria: piscina y sector solarium en pb, salón de usos múltiples para fiestas con ingreso independiente, gimnasio, vestuario y spa. Caracteristicas de las residencias. -Acceso a la unidad con palier privado. -Plantas luminosas con carpintería dvh (doble vidrio hermético) de piso a techo deslizables. -Sistema de climatización individual con aire acondicionado frío-calor. -Piso radiante electrico configurable en cada ambiente. -Amplios balcones aterrazados con barandas de vidrio accesibles desde livings y dormitorios. -Piso de porcelanato en living-comedor y dormitorios. -Revestimientos y pisos de porcelanatos de primera calidad en baños y cocinas. -Muebles bajo mesada y alacenas en cocinas. -Mesada de marmol en cocinas. -Amplio espacio de guardado en dormitorios forma de pago. Precio: usd415.200 anticipo: usd125.000 saldo: usd290.200 en 30 cuotas en pesos ajustadas por cac durante la construcción la información comercial, planos, medidas, superficies, espacios, designación de unidades, imágenes, descripciones y precios representan material preliminar al solo efecto ilustrativo e informativo de las características del inmueble pudiendo estar sujeta a errores y cambios, incluyendo el precio o la retirada de oferta, sin previo aviso. Todas las imágenes, vídeos y maquetas presentadas en el material comercial son perspectivas artísticas del emprendimiento; el mobiliario y la decoración han sido incluidos a titulo ilustrativo y no contractual. Cpi matricula nº 2661 - cucicba propiedad accesible para personas con movilidad reducida (ley 5115). Tasamos tu propiedad en el dia consultanos por financiacion y la posibilidad de tomar tu propiedad en parte de pago buscamos terrenos por la zona servicios: cloacas, gas otros servicios: balcón terraza, sum, sauna, portero visor

Contactar
1/24
Visto

300

USD 139.000 + $180.000 expensas

Manuel Ugarte 3000

Departamento en Venta en Belgrano C, Belgrano

Diego Martinez Bienes Raices
  • 75 m² cubie.
  • 3 dorm.
  • 45 años

4 amb Belgrano , balcón, ideal reciclado

¡Oportunidad única en belgrano! ¿Estás buscando un lugar lleno de potencial para crear el hogar de tus sueños? Este amplio departamento de 4 ambientes es la opción ideal para quienes quieren transformar y personalizar su espacio. Ubicado en manuel ugarte al 3000, a solo una cuadra de av. Cramer y cerca de toda la actividad comercial de av. Cabildo, este departamento se encuentra en una zona súper tranquila pero con excelente acceso a todos los medios de transporte. ¡La ubicación no podría ser mejor! Con más de 50 años de antigüedad, el inmueble está listo para ser reciclado y renovado. 4 ambientes distribuidos de manera funcional, con living-comedor y dos de los tres dormitorios con salida al balcón, lo que brinda una excelente circulación de aire y luminosidad. Balcón corrido al contrafrente con vista abierta, creando un ambiente tranquilo y privado, ideal para disfrutar de la calma del barrio. El departamento cuenta con un toilette y un baño completo, y una amplia cocina con comedor diario, perfecta para quienes disfrutan cocinar o desean un espacio multifuncional. Además, tiene entrada de servicio y 2 ascensores para mayor comodidad. Este es un departamento con muchísimo potencial, ideal para refaccionar y adaptarlo a tu estilo y necesidades. ¡No dejes pasar esta oportunidad de crear tu hogar en una de las zonas más cotizadas de la ciudad! ¡Recicla, diseña y crea tu propio refugio en belgrano!

Contactar