(1) (1)
  • Vicente Lopez

Operación

Departamento

USD desde 40K

Buscar solo avisos en moneda:

Dorm | 2 amb.

Dormitorios

  • 1
  • 2
  • 3
  • 4
  • 5+

Ambientes

  • Mono.
  • 2
  • 3
  • 4
  • 5+

Más filtros (2) Más filtros (1)

Dormitorios

  • 1
  • 2
  • 3
  • 4
  • 5+

Ambientes

  • Mono.
  • 2
  • 3
  • 4
  • 5+

Características

Superficie cubierta

Cocheras

Baños

Antiguedad

  • Indistinto
  • A estrenar
  • Hasta 5 años
  • Hasta 10 años
  • Hasta 20 años
  • Hasta 30 años
  • Más de 30 años

Disposición

Nombre de calle y altura

Expensas

$

Tipo de urbanización

Servicios

Tipo de departamento

Ver más

Ver menos

Tipos de ambientes

Tipo de anunciante

18 Duplex en Vicente Lopez de 2 ambientes

1/28
Visto

2

USD 169.000 + $90.000 expensas

Domingo Faustino Sarmiento 3400, Piso PB

Departamento en Venta en Olivos, Vicente Lopez

NOVOA PROPIEDADES
  • 57 m² cubie.
  • 1 dorm.
  • 1 año

Impecable y moderno depto en duplex con jardín propio, cochera y baulera. Bajas expensas

A sólo tres cuadras de av maipu,impecable departamento en duplex, super canchero y moderno! Ubicado en la planta baja, contrafrente, con vistas totalmente despejadas, orientación este, super luminoso! Cuenta con hall, living comedor con aire split y cocina incorporada con doble mesada en silestone, anafe, horno y extractor domec, todo electrico, mucho lugar de guardado. Se aprovecharon los espacios dandole aire y practicidad. Baño con bidet, ventilación natural que oficia de toillete. Jardín propio con mesada con pileta para lavar y coexión para lavarropas bajo mesada. En planta alta amplio domitorio en suite con ventilación natural, vestidor con doble placard y aire splir. Cochera en el segundo subsuelo y al lado una gran baulera de 4,70 x 1,20. Excelente calidad constructiva! Edificio con totem de seguridad, cocgeras de cortesia, salon de usos multiples con cocina y baño, ecn el exterior jardín con parrilla, terraza de uso comun con duchaspara solarium, posee lugar preparado por si el día de mañana el consorcio puede hacer un laundry.. Aún no se escrituraron. Las expensas incluyen arba, abl, aysa y gas del agua caliente de la caldera común. Las medidas y superficies expuestas surgen de la información suministrada por el propietario, la empresa no se responsabiliza por la exactitud de las mismas. El valor consignado de las expensas mensuales (en caso que corresponda pago de expensas) está sujetos a verificación y/o ajustes. En el caso de tratarse de un inmueble en construcción los detalles de terminar y la fecha de entrega están sujetos a revisión. Las unidades publicadas están sujetos a disponibilidad.

Contactar
1/28
Visto

2

USD 169.000 + $90.000 expensas

Domingo Faustino Sarmiento 3400, Piso PB

Departamento en Venta en Olivos, Vicente Lopez

NOVOA PROPIEDADES
  • 57 m² cubie.
  • 1 dorm.
  • 1 año

Impecable y moderno depto en duplex con jardín propio, cochera y baulera. Bajas expensas

A sólo tres cuadras de av maipu,impecable departamento en duplex, super canchero y moderno! Ubicado en la planta baja, contrafrente, con vistas totalmente despejadas, orientación este, super luminoso! Cuenta con hall, living comedor con aire split y cocina incorporada con doble mesada en silestone, anafe, horno y extractor domec, todo electrico, mucho lugar de guardado. Se aprovecharon los espacios dandole aire y practicidad. Baño con bidet, ventilación natural que oficia de toillete. Jardín propio con mesada con pileta para lavar y coexión para lavarropas bajo mesada. En planta alta amplio domitorio en suite con ventilación natural, vestidor con doble placard y aire splir. Cochera en el segundo subsuelo y al lado una gran baulera de 4,70 x 1,20. Excelente calidad constructiva! Edificio con totem de seguridad, cocgeras de cortesia, salon de usos multiples con cocina y baño, ecn el exterior jardín con parrilla, terraza de uso comun con duchaspara solarium, posee lugar preparado por si el día de mañana el consorcio puede hacer un laundry.. Aún no se escrituraron. Las expensas incluyen arba, abl, aysa y gas del agua caliente de la caldera común. Las medidas y superficies expuestas surgen de la información suministrada por el propietario, la empresa no se responsabiliza por la exactitud de las mismas. El valor consignado de las expensas mensuales (en caso que corresponda pago de expensas) está sujetos a verificación y/o ajustes. En el caso de tratarse de un inmueble en construcción los detalles de terminar y la fecha de entrega están sujetos a revisión. Las unidades publicadas están sujetos a disponibilidad.

Contactar
1/21
Visto

0

USD 306.000

Julio Argentino Roca 885 , Piso 3Y4

Departamento en Venta en Vicente Lopez Vias / Maipu, Vicente Lopez

La Capitana Real Estate
  • 65 m² cubie.
  • 1 dorm.
  • A Estrenar

2/3 AMBIENTES AL FRENTE TIPO DUPLEX A ESTRENAR COCHERA

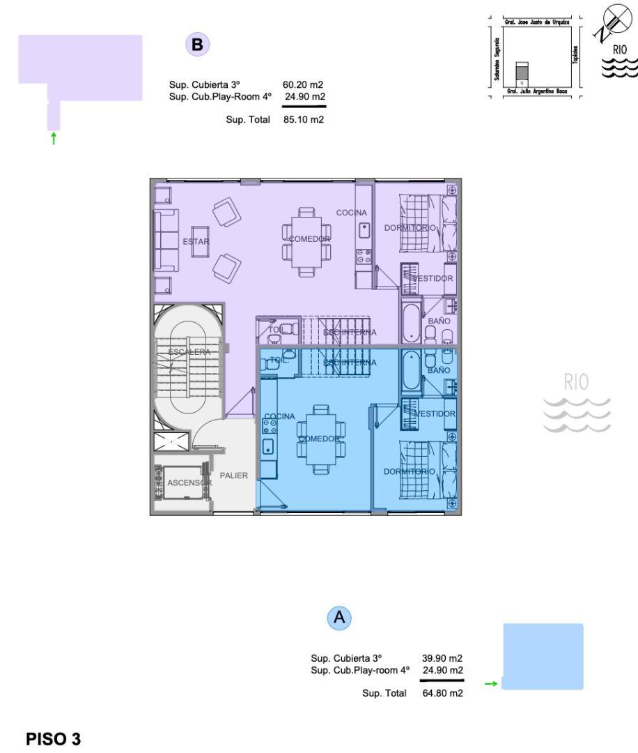
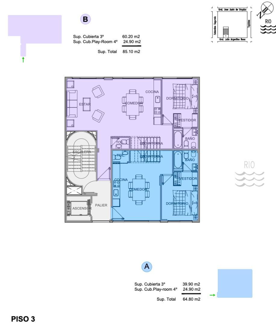
2/3 ambientes tipo duplex entrega inmediata a estrenar en vicente lopez hermoso 2 ambientes al frente tipo duplex al frente - terraza propia con play-room o 2do dormitorio . Cochera fija .(U$s 25.000 ) - cocina americana - 2 baños completos - dormitorio en suite con vestidor - con gran terraza propia y playroom - pisos de porcelanato de primera calidad - excelentes terminaciones especificaciones cocina piso: porcelanato de primera calidad. Pared: yeso. Cielorraso: suspendido de roca de yeso. Mesada: granito o similar. Griferia : fv mono comando o similar. Artefactos de cocina: cocina eléctrica. Muebles de cocina: enchapado en melamina. Baños piso: porcelanato de primera calidad. Pared: porcelanato de primera calidad. Cielorraso: suspendido de roca de yeso. Griferia: fv mono comando o similar. Artefactos: marca ferrum o similar. Bañera: enlosada ferrum o similar. Accesorios. Toilette piso: porcelanato de primera calidad. Pared: revoque de yeso pintado, revestimiento texturado tarquini o similar. Cielorraso: suspendido de roca de yeso. Artefactos: marca ferrum o similar. Accesorios. Estar piso: porcelanato de primera calidad. Pared: revoque de yeso pintado. Cielorraso: hormigon visto. Dormitorio piso: porcelanato de primera calidad. Pared: revoque de yeso pintado. Cielorraso: hormigon visto. Placard. Cocheras acceso a cocheras de forma directa, sin sistemas mecanicos. Cocheras cubiertas / descubiertas. Otros divisiones de departamentos con mamposteria de ladrillo común, para lograr una mejor aislacion acústica. Los ambientes cuentan con instalacion para la colocacion de aires acondicionados. Carpinterias de aluminio aluar linea a30 new con vidrios dvh (aislacion acústica y térmica). Termotanques independientes para cada unidad. Emprendimiento: 5 exclusivas unidades a estrenar de 47 a 121 mts - excelente calidad de terminación - a metros del polo gastronomico de florida - a metros de la avenida libertador - cocheras opcionales - algunas unidades cuentan con playroom terraza propia todas las medidas enunciadas son meramente orientativas, las medidas exactas serán las que se expresen en el respectivo título de propiedad de cada inmueble. Todas las fotos, imagenes y videos son meramente ilustrativos y no contractuales. Los precios enunciados son meramente orientativos y no contractuales.. 5633cmcpsi/3921cucicba

Contactar
1/9
Visto

0

USD 371.000

Julio Argentino Roca 885 , Piso 3Y4

Departamento en Venta en Vicente Lopez Vias / Maipu, Vicente Lopez

La Capitana Real Estate
  • 85 m² cubie.
  • 1 dorm.
  • A Estrenar

2/3 AMBIENTES AL FRENTE TIPO DUPLEX A ESTRENAR COCHERA

2/3 ambientes tipo duplex entrega inmediata a estrenar en vicente lopez hermoso 2 o 3 ambientes al frente tipo duplex al contrafrente - terraza propia con play-room o 2do dormitorio . Cochera fija doble.(U$s32.000 ) - cocina americana - 2 baños completos - dormitorio en suite con vestidor - con gran terraza propia y playroom - pisos de porcelanato de primera calidad - excelentes terminaciones especificaciones cocina piso: porcelanato de primera calidad. Pared: yeso. Cielorraso: suspendido de roca de yeso. Mesada: granito o similar. Griferia : fv mono comando o similar. Artefactos de cocina: cocina eléctrica. Muebles de cocina: enchapado en melamina. Baños piso: porcelanato de primera calidad. Pared: porcelanato de primera calidad. Cielorraso: suspendido de roca de yeso. Griferia: fv mono comando o similar. Artefactos: marca ferrum o similar. Bañera: enlosada ferrum o similar. Accesorios. Toilette piso: porcelanato de primera calidad. Pared: revoque de yeso pintado, revestimiento texturado tarquini o similar. Cielorraso: suspendido de roca de yeso. Artefactos: marca ferrum o similar. Accesorios. Estar piso: porcelanato de primera calidad. Pared: revoque de yeso pintado. Cielorraso: hormigon visto. Dormitorio piso: porcelanato de primera calidad. Pared: revoque de yeso pintado. Cielorraso: hormigon visto. Placard. Cocheras acceso a cocheras de forma directa, sin sistemas mecanicos. Cocheras cubiertas / descubiertas. Otros divisiones de departamentos con mamposteria de ladrillo común, para lograr una mejor aislacion acústica. Los ambientes cuentan con instalacion para la colocacion de aires acondicionados. Carpinterias de aluminio aluar linea a30 new con vidrios dvh (aislacion acústica y térmica). Termotanques independientes para cada unidad. Emprendimiento: 5 exclusivas unidades a estrenar de 47 a 121 mts - excelente calidad de terminación - a metros del polo gastronomico de florida - a metros de la avenida libertador - cocheras opcionales - algunas unidades cuentan con playroom terraza propia todas las medidas enunciadas son meramente orientativas, las medidas exactas serán las que se expresen en el respectivo título de propiedad de cada inmueble. Todas las fotos, imagenes y videos son meramente ilustrativos y no contractuales. Los precios enunciados son meramente orientativos y no contractuales.. 5633cmcpsi/3921cucicba

Contactar
1/30
Visto

0

USD 226.000 + $210.000 expensas

Aristobulo Del Valle Jc4332602pj 1600

Departamento en Venta en Florida, Vicente Lopez

Jordan Camus CMCPSI 6139 CUCICBA 7903
  • 56 m² cubie.
  • 1 dorm.
  • 2 baños

Aristóbulo Coliving

A 3 cuadras de capital federal y general paz, con sus vistas panoramicas y la serenidad de vicente lópez, se encuentra el complejo aristóbulo del valle coliving. Una excelente inversion con gran potencial de valorizacion gracias al constante crecimiento de la zona. Departamento a estrenar para vivienda y apto profesional, en edificio de categoria. Garita de seguridad con servicio de wifi y camaras de vcc en todos los accesos y sus 3 niveles de cocheras. Duplex distribuidos en 2 amplias plantas abiertas. 1 gran habitación con posibilidad de dividirse en dos (según plano), con grandes ventanales hermeticos- doble vidrio con salida al balcón. Baño completo con mampara y espejo, amplio placard, escalera con espacio de guardado. Segunda planta: estar con grandes ventanales con salida a terraza roof top a cielo abierto. Baño completo con mampara y espejo. Amplia y cómoda cocina con excelente vista. Orientación norte. Apto para vivienda y apto profesional en edificio de categoría a estrenar. 2 equipos de aire acondicionado (frío/calor). Amenities: pb: el centro del complejo cuenta con un lindísimo café, todo a cielo abierto. Están previstos como amenities: sum. Gym. El complejo se encuentra a 2 cuadras de la estación de tren aristóbulo del valle (trayecto directo a retiro). El complejo se encuentra a 8 cuadras del dot (centro comercial). Excelentes accesos. Pet friendly. Laundry. 3 ascensores. 4 estacionamientos de cortesía. Bicicletero. Seguridad de 7 pm a 7 am. Encargado. *Valor publicado por el departamento. Cocheras cubiertas disponibles usd 25,000 o en alquiler. Servicios: cloacas otros servicios: balcón terraza jordan camus negocios inmobiliarios andrea jordan camus. Martillera.Corredora. Abogada. Cmcpsi 6139 avenida del puerto 215 oficina 601. Cucicba 7903. Scalabrini ortiz 3078. Caba. Domicilio legal. Sin atencion al publico. Podes ver todas las propiedades en nuestra web si estas interesado en comprar, vender o alquilar, llamanos. Whatsapp +0 telefonos email: instagram @jordancamusni las medidas y superficies asignadas en la presente, son aproximadas al solo efecto orientativo. Las medidas definitivas surgirán del titulo de propiedad respectivo. 

Contactar
1/37
Visto

0

USD 281.000

Juan Carlos Cruz 1800

Departamento en Venta en Vicente Lopez, Buenos Aires

REMAX Amazing
  • 75 m² cubie.
  • 1 dorm.
  • 1 año

Venta Vicente Lopez rio dúplex balcón Nuevo

Corredor responsable: daniel acosta cpi 2406 / cmcpsi 5953 - contacto: maría jose (pepa) mostaza venta de departamento a estrenar en juan carlos cruz 1867 4 piso c vicente lopez. Ubicación: juan carlos cruz 1867 , entre hipólito yrigoyen e italia, muy cerca del paseo costero y el río, a una de av. Libertador y 3 cuadras de la quinta presidencial . Edificio que consta de de 6 plantas en planta baja y subsuelo cocheras y bauleras. Este desarrollo se destaca por sus excelentes calidades de construcción y su ubicación estratégica. Departamentos de 2 y 3 ambientes en los primeros 3 pisos y resto dúplex, algunos ampliables hasta 5 ambientes con terrazas privadas . Caracteristicas de esta unidad : dos ambientes en piso 4 duplex , 2 baños, con balcon al frente orientación nor-oeste en planta 4 tiene living comedor con cocina integrada, un baño completo, en planta alta un baño con ventilación natural al frente y una gran superficie divisible, pudiendo hacer un escritorio vestidor e incluso y baño mas (listas instalaciones) balcón al contrafrente cerámicos de primera calidad en todos los ambientes. Cerramientos dvh (doble vidrio hermético) para un excelente aislamiento térmico y acústico. Cocina equipada con muebles bajo y alto mesada, horno y spar, espacio para lavarropas pisos de porcelanato. Toilette de recepción. Balcón aterrazado con parrilla. Dormitorio en suite con excelente placar con interiores baulera incluida de 3.6 m2 . Llave magnética , apertura remota. Video portero, circuito de cámaras. Opcional: cocheras opcionales disponibles no incluidas en el valor descubiertas por 23.000 usd o cubiertas por 28,000 usd. Existen otras unidades entre 60 y 236 metros, con grandes terrazas y dúplex , consultar disponibles este es el momento perfecto para aprovechar una propiedad de alta calidad en una ubicación privilegiada. ¡Contáctenos para más información o para agendar una visita! Rau s.R.L. No ejerce el corretaje inmobiliario. El presente sitio web es una plataforma en donde cada oficina inmobiliaria independiente que contrata los servicios re/max puede publicar las propiedades a su cargo. Cada oficina es de propiedad y gestión independiente, por lo que rau s.R.L. No interviene en los datos de la publicación, en la operación inmobiliaria, ni en la confección y/o firma del boleto de compraventa y/o escritura y/o contrato de alquiler. En cumplimiento de las leyes vigentes que regulan el corretaje inmobiliario, ley nacional 25.028, ley 22.802 de lealtad comercial, ley 24.240 de defensa al consumidor, las normas del código civil y comercial de la nación y constitucionales, los agentes/gestores no ejercen el corretaje inmobiliario. Todas las operaciones inmobiliarias son objeto de intermediación y conclusión por parte del corredor público inmobiliario colegiado a cargo de la publicación, cuyos datos se exhiben en la presente. La presente publicación describe las características esenciales del inmueble, debiéndose consultar al corredor público inmobiliario responsable de la operación por la eventual actualización de las medidas, descripciones arquitectónicas y funcionales, valores de expensas, servicios, impuestos, precios y demás información, cuyos valores son aproximados. Comprá la casa que querés! No la que podés. Accedé a un préstamo por hasta el 30% del valor de esta propiedad. Simulá tu cuota en lendar

Contactar
1/9
Visto

0

USD 230.000

Gobernador Valentín Vergara 400

Departamento en Venta en Vicente Lopez, Buenos Aires

REMAX Suma
  • 54,35 m² cubie.
  • 1 dorm.
  • 1 año

VENTA DEPARTAMENTO 2 AMB, DUPLEX VICENTE LOPEZ

Corredor responsable: diego mastrangelo cucicba 7615 csi 6609 - contacto: nora daujotas ¡Vive frente al río en el exclusivo proyecto landa en vicente lópez! Departamento tipo duplex ubicado en un 6er piso ( depto f) descubre la oportunidad de ser parte de un estilo de vida único en la primera línea del majestuoso río de la plata. Landa ofrece una ubicación privilegiada con vistas panorámicas inigualables y acceso directo a la naturaleza y la tranquilidad del agua. Amplia posibilidad de financiación. Características destacadas: departamentos de lujo con diseño moderno y espacios amplios. -Amenidades de primer nivel, incluyendo piscina, gimnasio y áreas verdes. -49 espacios de estacionamiento subterráneo. -Proyecto en pozo con financiación en pesos y fecha de entrega estimada en octubre de 2026. -Comercializado en exclusiva por remax. El 70% de las unidades ya se han vendido! -Ubicado a solo 2 cuadras de av. Libertador, con fácil acceso a gral. Paz y acceso norte. -Parquización interior y exterior. -Grupo electrógeno para ascensores. -Amplios balcones aterrazados y terrazas. -Pileta, solarium, parrilla y terraza verde. -Locales gastronómicos de categoría en planta baja. ¡No te pierdas la oportunidad de vivir en landa y disfrutar de la belleza del río desde la comodidad de tu hogar! Rau s.R.L. No ejerce el corretaje inmobiliario. El presente sitio web es una plataforma en donde cada oficina inmobiliaria independiente que contrata los servicios re/max puede publicar las propiedades a su cargo. Cada oficina es de propiedad y gestión independiente, por lo que rau s.R.L. No interviene en los datos de la publicación, en la operación inmobiliaria, ni en la confección y/o firma del boleto de compraventa y/o escritura y/o contrato de alquiler. En cumplimiento de las leyes vigentes que regulan el corretaje inmobiliario, ley nacional 25.028, ley 22.802 de lealtad comercial, ley 24.240 de defensa al consumidor, las normas del código civil y comercial de la nación y constitucionales, los agentes/gestores no ejercen el corretaje inmobiliario. Todas las operaciones inmobiliarias son objeto de intermediación y conclusión por parte del corredor público inmobiliario colegiado a cargo de la publicación, cuyos datos se exhiben en la presente. La presente publicación describe las características esenciales del inmueble, debiéndose consultar al corredor público inmobiliario responsable de la operación por la eventual actualización de las medidas, descripciones arquitectónicas y funcionales, valores de expensas, servicios, impuestos, precios y demás información, cuyos valores son aproximados. Comprá la casa que querés! No la que podés. Accedé a un préstamo por hasta el 30% del valor de esta propiedad. Simulá tu cuota en lendar

Contactar
1/46
Visto

0

USD 112.000 + $140.000 expensas

Avenida Maipú 3700

Departamento en Venta en Olivos, Vicente Lopez

REMAX ENCORE
  • 42,58 m² cubie.
  • 1 dorm.
  • 28 años

VENTA DUPLEX 2 AMB 2 BALCONES Y COCHERA EN OLIVOS

Corredor responsable: luis maría varela csi 5527 / cpi 3872 - contacto: maría nazar peirano se vende moderno dúplex de 2 ambientes en olivos, sobre av. Maipú. Excelente ubicación! El departamento cuenta con dos balcones y cochera descubierta en pb. Este luminoso departamento, ideal para parejas o personas solas, ofrece un diseño funcional con espacios bien distribuidos. En la planta baja, se encuentra el living comedor con estufa tiro balanceado y acceso al balcón corrido. Cocina independiente con alacenas, muebles bajo mesada y salida al segundo balcón, donde se encuentra la conexión para el lavarropas. Baño completo. En la planta alta se encuentra el dormitorio con placard empotrado. Además, la propiedad incluye una cochera descubierta. Su ubicación en olivos brinda acceso a diversos comercios, transporte público y la cercanía al río. Características: tipo: dúplex de 2 ambientes. Distribución: planta baja: living comedor, cocina independiente, baño completo, 2 balcones. Planta alta: dormitorio. Cochera: descubierta. Ubicación: olivos. Extras: luminoso, funcional, cerca de comercios y transporte. Rau s.R.L. No ejerce el corretaje inmobiliario. El presente sitio web es una plataforma en donde cada oficina inmobiliaria independiente que contrata los servicios re/max puede publicar las propiedades a su cargo. Cada oficina es de propiedad y gestión independiente, por lo que rau s.R.L. No interviene en los datos de la publicación, en la operación inmobiliaria, ni en la confección y/o firma del boleto de compraventa y/o escritura y/o contrato de alquiler. En cumplimiento de las leyes vigentes que regulan el corretaje inmobiliario, ley nacional 25.028, ley 22.802 de lealtad comercial, ley 24.240 de defensa al consumidor, las normas del código civil y comercial de la nación y constitucionales, los agentes/gestores no ejercen el corretaje inmobiliario. Todas las operaciones inmobiliarias son objeto de intermediación y conclusión por parte del corredor público inmobiliario colegiado a cargo de la publicación, cuyos datos se exhiben en la presente. La presente publicación describe las características esenciales del inmueble, debiéndose consultar al corredor público inmobiliario responsable de la operación por la eventual actualización de las medidas, descripciones arquitectónicas y funcionales, valores de expensas, servicios, impuestos, precios y demás información, cuyos valores son aproximados. Comprá la casa que querés! No la que podés. Accedé a un préstamo por hasta el 30% del valor de esta propiedad. Simulá tu cuota en lendar

Contactar
1/24
Visto

0

USD 113.000 + $68.000 expensas

General José de San Martín 3200

Departamento en Venta en Florida Belgrano/Oeste, Florida

REMAX RIO
  • 48,30 m² cubie.
  • 1 dorm.
  • 21 años

VENTA 2 amb en Dúplex con Cochera y Balcón Florida

Corredor responsable: andrea oliveri csi 6401 / cucicba 7190 - contacto: maria emilia marello departamento 2 ambientes en venta en florida oeste, buenos aires - apto crédito este moderno departamento dúplex, ubicado en un edificio de categoría en florida oeste, vicente lópez, combina confort, luminosidad y una ubicación privilegiada, convirtiéndolo en el hogar ideal. Distribución funcional y moderna con una superficie total de 56 m² (48 m² cubiertos, 8 m² semicubiertos), el departamento se distribuye en 2 plantas bien distribuidas. En la planta baja, un amplio y luminoso living-comedor se integra a una cocina equipada con muebles de alta calidad, barra desayunadora y espacio para lavarropas. Desde aquí, un balcón permite apreciar la agradable vista al frente. En la planta alta, un cómodo dormitorio con placard, aire acondicionado frío-calor y balcón, acompañado de un baño completo, garantizan privacidad y tranquilidad. Comodidad y seguridad este departamento en excelente estado, listo para mudarse sin necesidad de reformas, incluye una cochera cubierta propia, una gran ventaja en la ciudad que brinda mayor comodidad y seguridad para tu vehículo, con portón automatizado. El edificio cuenta con ascensor y empresa de limpieza y mantenimiento. Ubicación privilegiada situado a pocos metros de la panamericana, este hogar te permitirá acceder fácilmente a distintas áreas de la ciudad. Además, disfrutarás de la cercanía a comercios, escuelas, parques y todos los servicios necesarios para tu día a día. No pierdas la oportunidad de vivir en este hermoso departamento dúplex, ideal para parejas, solteros o como inversión. ¡Contáctanos hoy mismo para agendar una visita y descubrir todo lo que este maravilloso hogar tiene para ofrecerte! Bajas expensas $68000 (junio 2025) superficies a verificar por mensura. \"La condición de apto crédito de esta propiedad se encuentra sujeta a los requisitos que solicite la entidad otorgante del crédito.\" Si tenes que vender para comprar podemos ayudarte a realizar las operaciones en simultáneo, con todo el respaldo de los profesionales número 1 en el mercado inmobiliario! *Beneficio para clientes remax exclusivo: accede a un préstamo hipotecario de hasta un 30% con lendar* andrea oliveri cucicba 7190/cmcpsi 6401 \"en cumplimiento de la ley 2340 cucicba, ley 10.973 de la prov. Bs as., Ley nacional 25.028, ley 22.802 de lealtad comercial, ley 24.240 de defensa al consumidor, las normas del código civil y comercial de la nación y constitucionales, los agentes no ejercen corretaje inmobiliario. Todas las operaciones inmobiliarias son objeto de intermediación y conclusión por parte de los martilleros y corredores colegiados, cuyos datos se exhiben debajo del nombre de la inmobiliaria.\" Rau s.R.L. No ejerce el corretaje inmobiliario. El presente sitio web es una plataforma en donde cada oficina inmobiliaria independiente que contrata los servicios re/max puede publicar las propiedades a su cargo. Cada oficina es de propiedad y gestión independiente, por lo que rau s.R.L. No interviene en los datos de la publicación, en la operación inmobiliaria, ni en la confección y/o firma del boleto de compraventa y/o escritura y/o contrato de alquiler. En cumplimiento de las leyes vigentes que regulan el corretaje inmobiliario, ley nacional 25.028, ley 22.802 de lealtad comercial, ley 24.240 de defensa al consumidor, las normas del código civil y comercial de la nación y constitucionales, los agentes/gestores no ejercen el corretaje inmobiliario. Todas las operaciones inmobiliarias son objeto de intermediación y conclusión por parte del corredor público inmobiliario colegiado a cargo de la publicación, cuyos datos se exhiben en la presente. La presente publicación describe las características esenciales del inmueble, debiéndose consultar al corredor público inmobiliario responsable de la operación por la eventual actualización de las medidas, descripciones arquitectónicas y funcionales, valores de expensas, servicios, impuestos, precios y demás información, cuyos valores son aproximados. Comprá la casa que querés! No la que podés. Accedé a un préstamo por hasta el 30% del valor de esta propiedad. Simulá tu cuota en lendar

Contactar
1/28
Visto

0

USD 290.000

Presidente Hipólito Yrigoyen 3000

Departamento en Venta en Florida, Vicente Lopez

REMAX Parque
  • 89 m² cubie.
  • 1 dorm.
  • A Estrenar

Depto Venta 2 amb expand a 3 amb, c/coch. V López

Corredor responsable: hernan perrone cucicba 2792 / mgr 170 - contacto: facundo solari rodera te presentamos esta exclusiva unidad tipo dúplex de 2 ambientes (con posibilidad de expansión a 3), que combina diseño moderno, funcionalidad y amplios espacios en una construcción de calidad superior. Con 98 m² totales, esta propiedad ofrece el confort de una casa con la practicidad de un departamento. Distribución por planta: planta baja: hall de recepción con placard amplio living-comedor de 5.90 x 5.70 m con salida al balcón cocina integrada con isla central toilette de cortesía balcón con parrilla y lavadero planta alta: dormitorio en suite de 3.90 x 3.20 m vestidor baño completo cochera incluida diferenciales clave: posibilidad de adaptar a 3 ambientes ambientes muy luminosos y ventilados ideal para quienes buscan espacios amplios y versátiles ubicado en un edificio de categoría, con materiales de primera calidad, este dúplex ofrece una excelente opción tanto para vivienda permanente como para inversión. Detalles constructivos y terminaciones premium: pisos vinílicos símil madera en interiores porcelanatos de primera calidad en baños y balcones mesadas en granito negro boreal (cocina) y mármol blanco cana (baños) muebles de cocina y frentes de placares en melamina símil madera frentes de placard en melamina simil madera aberturas de aluminio anodizado negro (hidro) con doble vidrio artefactos sanitarios: bachas de baño piazza, cocina y lavadero johnson, griferías fv caldera dual ariston con calefacción por piso radiante preinstalación para equipos de aire acondicionado cielorrasos en durlock ascensor de acero inoxidable de primera marca detalles del edificio: fachada con revestimiento en tejuela de ladrillo visto hall de entrada con aberturas en aluminio anodizado negro y pisos en porcelanato vereda y caminos peatonales de hormigón llaneado cocheras con circulación en piedra partida portón vehicular motorizado rau s.R.L. No ejerce el corretaje inmobiliario. El presente sitio web es una plataforma en donde cada oficina inmobiliaria independiente que contrata los servicios re/max puede publicar las propiedades a su cargo. Cada oficina es de propiedad y gestión independiente, por lo que rau s.R.L. No interviene en los datos de la publicación, en la operación inmobiliaria, ni en la confección y/o firma del boleto de compraventa y/o escritura y/o contrato de alquiler. En cumplimiento de las leyes vigentes que regulan el corretaje inmobiliario, ley nacional 25.028, ley 22.802 de lealtad comercial, ley 24.240 de defensa al consumidor, las normas del código civil y comercial de la nación y constitucionales, los agentes/gestores no ejercen el corretaje inmobiliario. Todas las operaciones inmobiliarias son objeto de intermediación y conclusión por parte del corredor público inmobiliario colegiado a cargo de la publicación, cuyos datos se exhiben en la presente. La presente publicación describe las características esenciales del inmueble, debiéndose consultar al corredor público inmobiliario responsable de la operación por la eventual actualización de las medidas, descripciones arquitectónicas y funcionales, valores de expensas, servicios, impuestos, precios y demás información, cuyos valores son aproximados. Comprá la casa que querés! No la que podés. Accedé a un préstamo por hasta el 30% del valor de esta propiedad. Simulá tu cuota en lendar

Contactar
1/28
Visto

0

USD 280.000

Presidente Hipólito Yrigoyen 3000

Departamento en Venta en Florida, Vicente Lopez

REMAX Parque
  • 89 m² cubie.
  • 1 dorm.
  • A Estrenar

Depto Venta 2 amb expand a 3 amb, c/coch. V López

Corredor responsable: hernan perrone cucicba 2792 / mgr 170 - contacto: laura doti te presentamos esta exclusiva unidad tipo dúplex de 2 ambientes (con posibilidad de expansión a 3), que combina diseño moderno, funcionalidad y amplios espacios en una construcción de calidad superior. Con 98 m² totales, esta propiedad ofrece el confort de una casa con la practicidad de un departamento. Distribución por planta: planta baja: hall de recepción con placard amplio living-comedor de 5.90 x 5.70 m con salida al balcón cocina integrada con isla central toilette de cortesía balcón con parrilla y lavadero planta alta: dormitorio en suite de 3.90 x 3.20 m vestidor baño completo cochera incluida diferenciales clave: posibilidad de adaptar a 3 ambientes ambientes muy luminosos y ventilados ideal para quienes buscan espacios amplios y versátiles ubicado en un edificio de categoría, con materiales de primera calidad, este dúplex ofrece una excelente opción tanto para vivienda permanente como para inversión. Detalles constructivos y terminaciones premium: pisos vinílicos símil madera en interiores porcelanatos de primera calidad en baños y balcones mesadas en granito negro boreal (cocina) y mármol blanco cana (baños) muebles de cocina y frentes de placares en melamina símil madera frentes de placard en melamina simil madera aberturas de aluminio anodizado negro (hidro) con doble vidrio artefactos sanitarios: bachas de baño piazza, cocina y lavadero johnson, griferías fv caldera dual ariston con calefacción por piso radiante preinstalación para equipos de aire acondicionado cielorrasos en durlock ascensor de acero inoxidable de primera marca detalles del edificio: fachada con revestimiento en tejuela de ladrillo visto hall de entrada con aberturas en aluminio anodizado negro y pisos en porcelanato vereda y caminos peatonales de hormigón llaneado cocheras con circulación en piedra partida portón vehicular motorizado rau s.R.L. No ejerce el corretaje inmobiliario. El presente sitio web es una plataforma en donde cada oficina inmobiliaria independiente que contrata los servicios re/max puede publicar las propiedades a su cargo. Cada oficina es de propiedad y gestión independiente, por lo que rau s.R.L. No interviene en los datos de la publicación, en la operación inmobiliaria, ni en la confección y/o firma del boleto de compraventa y/o escritura y/o contrato de alquiler. En cumplimiento de las leyes vigentes que regulan el corretaje inmobiliario, ley nacional 25.028, ley 22.802 de lealtad comercial, ley 24.240 de defensa al consumidor, las normas del código civil y comercial de la nación y constitucionales, los agentes/gestores no ejercen el corretaje inmobiliario. Todas las operaciones inmobiliarias son objeto de intermediación y conclusión por parte del corredor público inmobiliario colegiado a cargo de la publicación, cuyos datos se exhiben en la presente. La presente publicación describe las características esenciales del inmueble, debiéndose consultar al corredor público inmobiliario responsable de la operación por la eventual actualización de las medidas, descripciones arquitectónicas y funcionales, valores de expensas, servicios, impuestos, precios y demás información, cuyos valores son aproximados. Comprá la casa que querés! No la que podés. Accedé a un préstamo por hasta el 30% del valor de esta propiedad. Simulá tu cuota en lendar

Contactar
1/31
Visto

0

USD 159.000

Gral San Martin 1500

Departamento en Venta en Florida, Vicente Lopez

REMAX Data House
  • 58 m² cubie.
  • 1 dorm.
  • A Estrenar

Departamento Dúplex 2 ambientes, a estrenar

Corredor responsable: mauro marvisi cmcpsi 5574 / cucicba 1762 - contacto: michael miller presentamos un departamento de tipología dúplex a estrenar, situado en el quinto piso al frente, ofreciendo una vida elegante y funcional llena de luz natural. Características destacadas: 58m² con posibilidades de ampliación ! Más 4m² de balcón para tus momentos de relax. En planta baja: se encuentra un espacio abierto, super luminoso con posibilidad de living y comedor con cocina integrada y baño completo. Planta alta: habitación con un baño completo, super amplio ! Con un espacio para vestidor/placard/ biblioteca o posibilidad de ampliarlo, para lograr una habitación mas. Dvh en todas las aberturas para una excelente aislación térmica y acústica. Muebles de mesada y altos con mesadas de cuarzo natural, aportando un toque de lujo y durabilidad. Estufas de tiro balanceado y pre-instalación de aa incluidos para tu confort. Espacio para laundry ubicado en av. San martín 1550, estarás a pasos de la avenida maipú, disfrutando de una ubicación privilegiada con facilidad a los accesos a la cuidad, con todas las comodidades a tu alcance, centro comercial, cafeterías, colegios, clínicas y mucho mas... Este edificio es apto para profesionales, ofreciendo terminaciones con todo el confort necesario para una vida cómoda y moderna. Además, su gran relación entre precio y comodidades la hace una opción irresistible. No pierdas la oportunidad de vivir en un lugar exclusivo, con un diseño pensado para aprovechar al máximo cada espacio y cada rayo de luz. ¡Contáctate conmigo y descubrí tu próximo hogar! La obra finaliza febrero 2025. Rau s.R.L. No ejerce el corretaje inmobiliario. El presente sitio web es una plataforma en donde cada oficina inmobiliaria independiente que contrata los servicios re/max puede publicar las propiedades a su cargo. Cada oficina es de propiedad y gestión independiente, por lo que rau s.R.L. No interviene en los datos de la publicación, en la operación inmobiliaria, ni en la confección y/o firma del boleto de compraventa y/o escritura y/o contrato de alquiler. En cumplimiento de las leyes vigentes que regulan el corretaje inmobiliario, ley nacional 25.028, ley 22.802 de lealtad comercial, ley 24.240 de defensa al consumidor, las normas del código civil y comercial de la nación y constitucionales, los agentes/gestores no ejercen el corretaje inmobiliario. Todas las operaciones inmobiliarias son objeto de intermediación y conclusión por parte del corredor público inmobiliario colegiado a cargo de la publicación, cuyos datos se exhiben en la presente. La presente publicación describe las características esenciales del inmueble, debiéndose consultar al corredor público inmobiliario responsable de la operación por la eventual actualización de las medidas, descripciones arquitectónicas y funcionales, valores de expensas, servicios, impuestos, precios y demás información, cuyos valores son aproximados. Comprá la casa que querés! No la que podés. Accedé a un préstamo por hasta el 30% del valor de esta propiedad. Simulá tu cuota en lendar

Contactar
1/45
Visto

0

USD 135.000 + $450.000 expensas

Manuel Basavilbaso 4200

Departamento en Venta en Olivos, Vicente Lopez

REMAX Urbana 3
  • 52 m² cubie.
  • 1 dorm.
  • 20 años

Departamento 2 amb en venta en Olivos jardin coch

Corredor responsable: jorge salafia cucicba 5666 / csi 5888 - contacto: adrian brontese el equipo re/max vende hermoso departamento 2 ambientes en duplex con jardin y parrilla, cochera ,baulera ,amenities y seguridad 24 horas en olivos. Características principales : planta baja - living/comedor (aire acondicionado frío /calor) - cocina integrada - toilette de recepción - jardín con parrilla planta alta - dormitorio (aire acondicionado frío /calor) - baño completo - vestidor subsuelo - cochera - baulera amenities - pileta - gimnasio - sum el edificio contiene seguridad las 24 hs ubicado en la zona mas buscada de olivos a metros de la av paraná a pocas cuadras de unicenter y la autopista panamericana ,este departamento es ideal para personas que buscan un lugar con confort y buen gusto. Si necesitas vender para comprar no dudes en consultarnos, te acompañamos en todo el proceso beneficio exclusivo para clientes re/max : financiación hasta el 30 % del valor de la propiedad con solo minimos requisitos en tan solo 7 días hábiles. Simula tu préstamo en rau s.R.L. No ejerce el corretaje inmobiliario. El presente sitio web es una plataforma en donde cada oficina inmobiliaria independiente que contrata los servicios re/max puede publicar las propiedades a su cargo. Cada oficina es de propiedad y gestión independiente, por lo que rau s.R.L. No interviene en los datos de la publicación, en la operación inmobiliaria, ni en la confección y/o firma del boleto de compraventa y/o escritura y/o contrato de alquiler. En cumplimiento de las leyes vigentes que regulan el corretaje inmobiliario, ley nacional 25.028, ley 22.802 de lealtad comercial, ley 24.240 de defensa al consumidor, las normas del código civil y comercial de la nación y constitucionales, los agentes/gestores no ejercen el corretaje inmobiliario. Todas las operaciones inmobiliarias son objeto de intermediación y conclusión por parte del corredor público inmobiliario colegiado a cargo de la publicación, cuyos datos se exhiben en la presente. La presente publicación describe las características esenciales del inmueble, debiéndose consultar al corredor público inmobiliario responsable de la operación por la eventual actualización de las medidas, descripciones arquitectónicas y funcionales, valores de expensas, servicios, impuestos, precios y demás información, cuyos valores son aproximados. Comprá la casa que querés! No la que podés. Accedé a un préstamo por hasta el 30% del valor de esta propiedad. Simulá tu cuota en lendar

Contactar