(1) (1)
  • Mar Del Plata

Venta

Departamento

Precio

Buscar solo avisos en moneda:

Dorm | 4 amb.

Dormitorios

  • 1
  • 2
  • 3
  • 4
  • 5+

Ambientes

  • Mono.
  • 2
  • 3
  • 4
  • 5+

Más filtros (2) Más filtros (1)

Dormitorios

  • 1
  • 2
  • 3
  • 4
  • 5+

Ambientes

  • Mono.
  • 2
  • 3
  • 4
  • 5+

Características

Superficie cubierta

Cocheras

Baños

Antiguedad

  • Indistinto
  • A estrenar
  • Hasta 5 años
  • Hasta 10 años
  • Hasta 20 años
  • Hasta 30 años
  • Más de 30 años

Disposición

Nombre de calle y altura

Expensas

$

Tipo de urbanización

Servicios

Tipo de departamento

Ver más

Ver menos

Tipos de ambientes

Estado de obra

Tipo de anunciante

26 Pisos en Venta en Mar Del Plata de 4 ambientes

1/17
Visto

4

USD 800.000

ALBERTI 100

Departamento en Venta en Playa Chica, Mar Del Plata

ROSI RODRIGUES
  • 203 m² cubie.
  • 3 dorm.
  • 18 años

Departamento - Venta - Argentina, Mar del Plata - ALBERTI 55

Venta excelente semi piso de 4 ambientes maral 51 vista plena al mar en playa chica, mar del plata obs: tenemos mas fotos grande living comedor con pisos de madera tarugada, y ventanales con salida al balcón, cocina semi integrada con comedor diario con acceso al balcón terraza , quincho propio con parrilla, toilette de recepción, suite principal con salida al balcóny vestidor, ante baño y baño, segundo dormitorio con amplio ventanal, tercer dormitorio con y vista al mar, baño completo con hidromasaje y ventilación natural, y lavadero separado. Dependencia de servicio con baño, la unidad cuenta con una cocheras cubiertas fijas y 1 baulera. Amenities: edificio dispone de piscina climatizada, mini piscina con hidromasaje con temperatura regulable, solarium, con deck de madera y plaza seca, gimnasio, baño con sala de relax, sauna y vestuarios, terraza, salón exclusivo de usos múltiples en el último piso, quinchos vip con vajilla completa a disposición y toilettes, solarium con vistas panorámicas al golf, mar y puerto de la ciudad, y un sensacional sky cinema con entorno amueblado y pantalla de 52'' con sonido envolvente. Nuevamente otro jacuzzi con hidromasaje cubierto, vestuario y baño. También cuenta con servicios de laundry automático en subsuelo con lavarropas, secarropas y mesa de planchado, palieres con iluminación inteligente, cerraduras de seguridad y control de acceso con portero visor y monitoreo de todas las áreas comunes con tarjeta inteligente.

Contactar
1/17
Visto

3

USD 1.566.000

Garay 100

Departamento en Venta en Playa Chica, Mar Del Plata

ROSI RODRIGUES
  • 247 m² cubie.
  • 3 dorm.
  • A Estrenar

Maral explanada

(Crp-crp-494) venta de departamento 4 ambientes en playa chica, mar del plata excelente departamento de 4 ambientes en maral explanada, de cesar pelli ubicado en zona playa chica. Maral explanada es un complejo residencial emplazado en la manzana del antiguo hotel explanada, en playa chica, una de las zonas más emblemáticas de la ciudad. Su costa rocosa, sus parques y sus magníficas vistas hacia el mar hacen que esta ubicación sea realmente privilegiada. Este hermoso departamento de 4 ambientes cuenta con: 3 dormitorios, 2 baños (1 en suite y 1 toilette), un amplio balcón orientado al mar con una hermosa vista al mar y a la ciudad de mar del plata. Características: entrada de servicio para personal, proveedores y delivery. Sistema de seguridad con vigilancia las 24 horas, con círculo cerrado de tv. Cental telefónica ip para comunicarse externa e internamente. Sistema central de internet de banda ancha en todos los departamentos. Wi-fi en zonas comunes. Laundry. Sistema de reciclado de agua. Sistema ablandador de agua. Grupo electrógeno de emergencia. Lockers room y sanitarios para el personal de servicio. Guarda bicicletas. Cocheras y bauleras para todas las unidades. Spa health club piscina in out. Piscina con hidroterapia. Mini piscinas con hidromasaje. Circuito de agua. Sauna seco. Salas de masajes. Sectores de relax. Fitness center. Vestuarios y sanitarios. Amenities kids room. Teen zone. Microcine. Bussines center. Cava - sala de degustación. S.U.M. Con cocina y toilettes. Sustentabilidad descripción excelente departamento de 4 ambientes en maral explanada, de cesar pelli ubicado en zona playa chica. Maral explanada es un complejo residencial emplazado en la manzana del antiguo hotel explanada, en playa chica, una de las zonas más emblemáticas de la ciudad. Su costa rocosa, sus parques y sus magníficas vistas hacia el mar hacen que esta ubicación sea realmente privilegiada. Este hermoso departamento de 4 ambientes cuenta con: 3 dormitorios, 2 baños (1 en suite y 1 toilette), un amplio balcón orientado al mar con una hermosa vista al mar y a la ciudad de mar del plata. Características: entrada de servicio para personal, proveedores y delivery. Sistema de seguridad con vigilancia las 24 horas, con círculo cerrado de tv. Cental telefónica ip para comunicarse externa e internamente. Sistema central de internet de banda ancha en todos los departamentos. Wi-fi en zonas comunes. Laundry. Sistema de reciclado de agua. Sistema ablandador de agua. Grupo electrógeno de emergencia. Lockers room y sanitarios para el personal de servicio. Guarda bicicletas. Cocheras y bauleras para todas las unidades. Spa health club piscina in out. Piscina con hidroterapia. Mini piscinas con hidromasaje. Circuito de agua. Sauna seco. Salas de masajes. Sectores de relax. Fitness center. Vestuarios y sanitarios. Amenities kids room. Teen zone. Microcine. Bussines center. Cava - sala de degustación. S.U.M. Con cocina y toilettes. Sustentabilidad

Contactar
1/12
Visto

0

USD 319.300

La Rioja 2700 , Piso 9

Departamento en Venta en Chauvin, Mar Del Plata

PLUCHINO PROPIEDADES
  • 119 m² cubie.
  • 3 dorm.
  • 3 baños

Venta piso de 4 ambientes en pozo - La Rioja y Garay

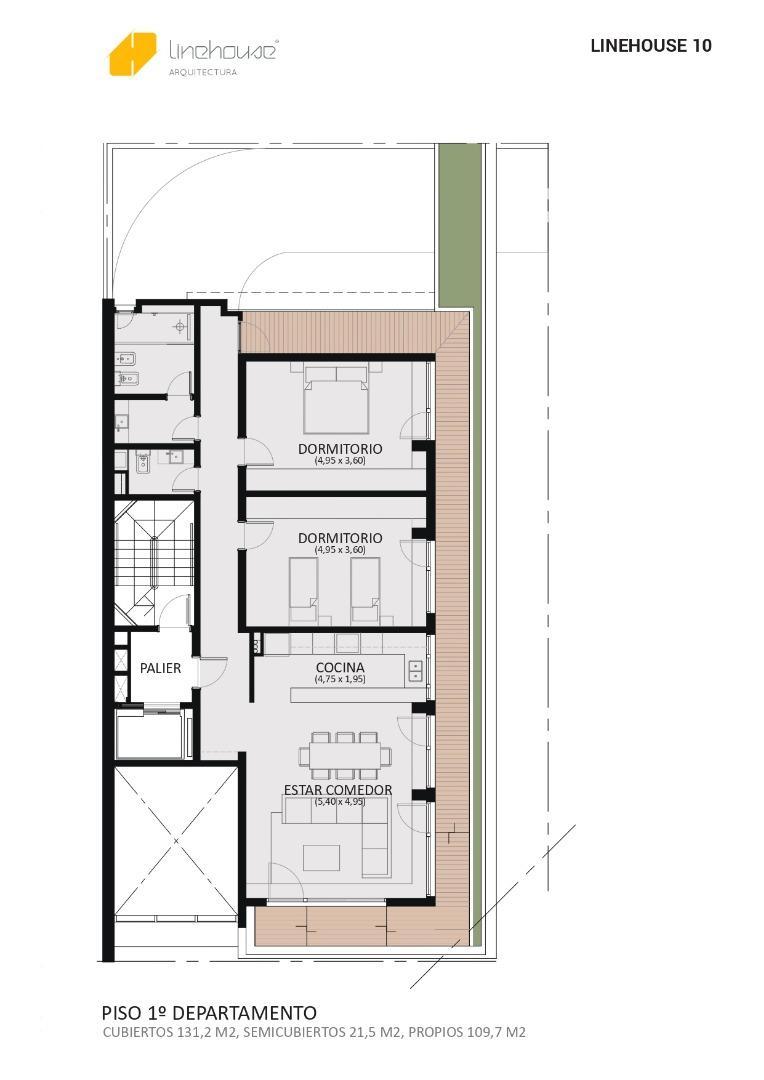
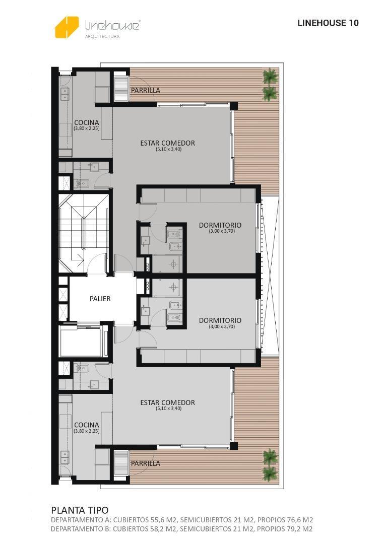
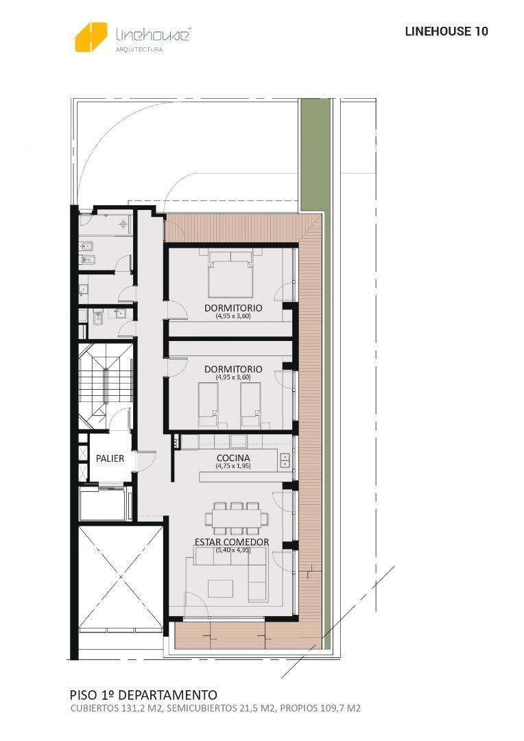
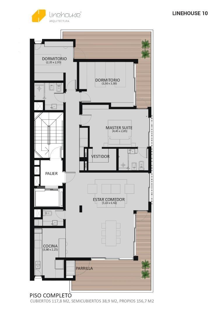
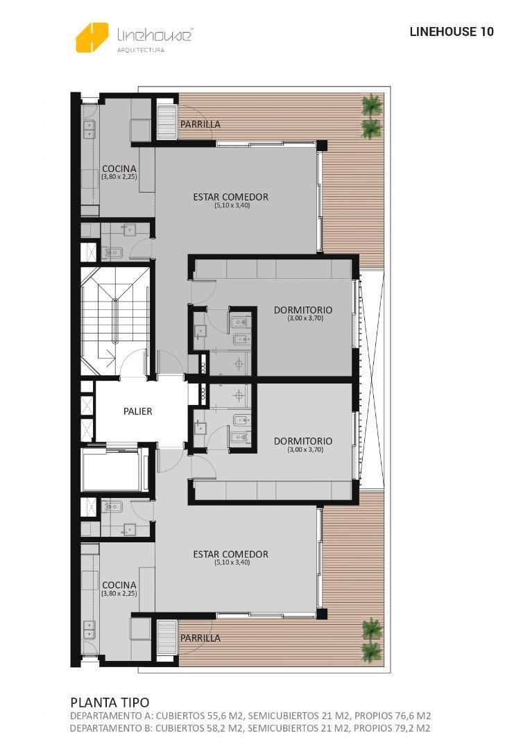
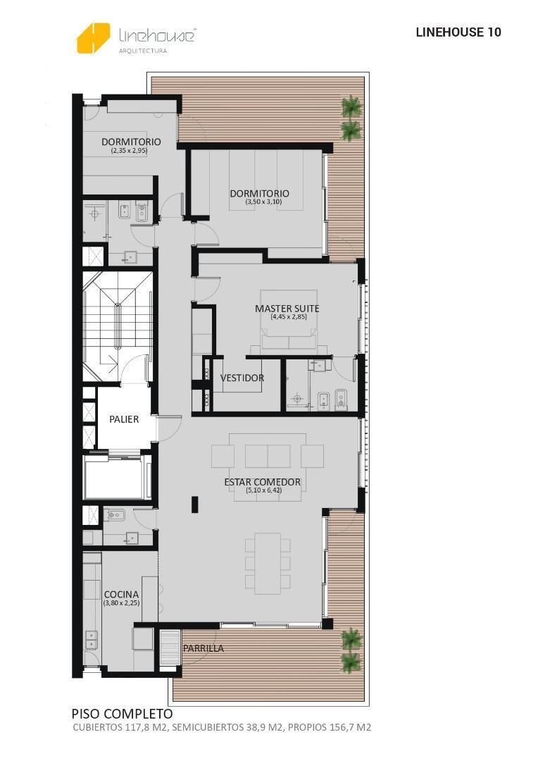
Ubicado en la esquina de la intersección de las calles la rioja y garay, proyecto de edificio de viviendas exclusivas, tanto por su ubicación como por la calidad de su construcción, las terminaciones y los amenities que ofrece. El terreno se desarrolla en su lado mas grande hacia la mejor orientación en base al norte, por lo que la implantación y diseño del edificio se planteo tomando como premisa la luz (este, norte, oeste). Es un edificio de pisos y semipisos en torre con perímetro libre, donde se destaca la apertura de las unidades hacia las esquinas y con todos los ambientes al norte. La estratégica ubicación del lote, permite contar con un entorno residencial, rodeado de frondosos árboles, de fácil acceso y sobre todo en el macro centro de la ciudad, a escasos metros de plaza mitre y el centro, haciendo de este lugar, un espacio ideal para vivir. El diseño de linehouse 10 se destaca por sus modernidad y concepto transgresor, pero con nobles y tradicionales materiales, siendo el hormigón visto de encofrados de madera, el gran protagonista. Las bandejas horizontales que forman las terrazas, se proyectan de formas aleatorias, generando diferentes espacios, semicubiertos y descubiertos, los cuales con el juego de la luz, generan una volumetría que define y le da las características únicas a este proyecto. Sus exclusivas unidades están compuestas por semipisos de 2 ambientes, pisos de 3 y 4 ambientes. Los semipisos de 2 ambientes cuentan con estar-comedor en las esquinas, cocinas incorporadas, toilette de recepción, dormitorio con baño en suite con box de ducha, vestidor y una amplia terraza al norte. Sus pisos de 3 ambientes están conformados por un estar-comedor en esquina, grandes terrazas al norte, cocinas incorporadas, toilette de recepción, 2/3 dormitorios. Unidades disponibles: semi piso de 2 ambientes de 58 mts2 cubiertos mas 13 mts2 de terraza: u$s 154.500.- Piso 3 ambientes de 109 mts2 cubiertos mas 21 mts2 de terraza: u$s 267.800.- Piso de 4 ambientes de 119 mts2 cubiertos mas 31 mts2 de terraza: u$s 319.300.- Cocheras: u$s 22.650.- Bauleras: u$s 5.150.- Fecha de entrega: enero 2026

Contactar
1/12
Visto

0

USD 267.800

La Rioja 2700 , Piso 1

Departamento en Venta en Chauvin, Mar Del Plata

PLUCHINO PROPIEDADES
  • 109 m² cubie.
  • 3 dorm.
  • 2 baños

Venta piso de 3 ambientes en pozo - La Rioja y Garay

Ubicado en la esquina de la intersección de las calles la rioja y garay, proyecto de edificio de viviendas exclusivas, tanto por su ubicación como por la calidad de su construcción, las terminaciones y los amenities que ofrece. El terreno se desarrolla en su lado mas grande hacia la mejor orientación en base al norte, por lo que la implantación y diseño del edificio se planteo tomando como premisa la luz (este, norte, oeste). Es un edificio de pisos y semipisos en torre con perímetro libre, donde se destaca la apertura de las unidades hacia las esquinas y con todos los ambientes al norte. La estratégica ubicación del lote, permite contar con un entorno residencial, rodeado de frondosos árboles, de fácil acceso y sobre todo en el macro centro de la ciudad, a escasos metros de plaza mitre y el centro, haciendo de este lugar, un espacio ideal para vivir. El diseño de linehouse 10 se destaca por sus modernidad y concepto transgresor, pero con nobles y tradicionales materiales, siendo el hormigón visto de encofrados de madera, el gran protagonista. Las bandejas horizontales que forman las terrazas, se proyectan de formas aleatorias, generando diferentes espacios, semicubiertos y descubiertos, los cuales con el juego de la luz, generan una volumetría que define y le da las características únicas a este proyecto. Sus exclusivas unidades están compuestas por semipisos de 2 ambientes, pisos de 3 y 4 ambientes. Los semipisos de 2 ambientes cuentan con estar-comedor en las esquinas, cocinas incorporadas, toilette de recepción, dormitorio con baño en suite con box de ducha, vestidor y una amplia terraza al norte. Sus pisos de 3 ambientes están conformados por un estar-comedor en esquina, grandes terrazas al norte, cocinas incorporadas, toilette de recepción, 2/3 dormitorios. Unidades disponibles: semi piso de 2 ambientes de 58 mts2 cubiertos mas 13 mts2 de terraza: u$s 154.500.- Piso 3 ambientes de 109 mts2 cubiertos mas 21 mts2 de terraza: u$s 267.800.- Piso de 4 ambientes de 119 mts2 cubiertos mas 31 mts2 de terraza: u$s 319.300.- Cocheras: u$s 22.650.- Bauleras: u$s 5.150.- Fecha de entrega: enero 2026

Contactar
1/16
Visto

0

USD 413.520

Colon 3000 , Piso 8

Departamento en Venta en Plaza Mitre, Mar Del Plata

PLUCHINO PROPIEDADES
  • 159 m² cubie.
  • 3 dorm.
  • 3 baños

Piso 4 ambientes en Pozo

"Linehouse altos de colón" se emplazará en un terreno de 10,68 m x 34,64 m, ubicado sobre avenida colón entre las calles la rioja y catamarca, a dos cuadras de plaza mitre. Te contamos más sobre este desarrollo inmobiliario: el edificio constará de 12 pisos destinados a viviendas. Departamentos amplios con balcones que ofrecen vistas tanto a la avenida como al contra-frente del edificio. Las opciones de vivienda incluirán: *departamentos de 2 ambientes con 84 m2 propios. *Departamentos de 3 ambientes con 116 m2 propios (2 dormitorios en suit, 1 con vestidor) *departamentos de 4 ambientes con 200 m2 propios. Contará con dos subsuelos destinados exclusivamente a cocheras cubiertas. Además, se dispondrá de un nivel de acceso con cocheras descubiertas. En el nivel destinado a amenities, se ubicará un salón de usos múltiples (sum), una sala de reuniones y un gimnasio, brindando variadas opciones de recreación y encuentro. La presencia de una terraza permitirá disfrutar de espacios al aire libre y vistas panorámicas. *Características particulares ·calefacción por losa radiante, con caldera dual individual ·control de acceso inteligente ·herrajes de acero inoxidable · circuito cerrado de cámaras dvr ·revoque exteriores proyectados ·hall de acceso en altura doble ·carpinterías de aluminio de piso a techo ·portones automáticos ·acceso con portero visor ·sala de reuniones ·moderno gimnasio ·amplio sum (salón de usos múltiples) ·cocheras cubiertas y descubiertas ·servicio de vigilancia privada ·el cielorraso en los estar comedor y dormitorios están materializados en hormigón visto. Unidades disponibles: 8vo piso: u$s 413.520.- 9no piso: u$s 416.610.- Cocheras descubiertas: u$s 20.600.- Cocheras cubiertas: u$s 25.750.- Formas de pago: 50 % de contado y saldo hasta 24 cuotas en pesos que se actualizan por índice c.A.C (cámara argentina de la construcción). Fecha de entrega estimada febrero 2027.-

Contactar
1/21
Visto

0

USD 530.610

Avenida De Los Trabajadores 1800 , Piso 8

Departamento en Venta en Punta Mogotes, Mar Del Plata

PLUCHINO PROPIEDADES
  • 152 m² cubie.
  • 3 dorm.
  • 4 baños

Piso 4 ambientes al frente en POZO

El proyecto se ubica en avenida de los trabajadores y tripulantes del fournier. Frente al mar y a metros de la reserva natural de punta mogotes. Unidades de 2, 3 y 4 ambientes pensados para vivir con luz, espacio y vistas que inspiran. Todas orientadas para disfrutar la vista al mar. Frente a la playa, balnearios, gastronomía y comercios a pasos. Con una estructura de doble muro y aislación para asegurar un clima estable durante todo el año. Ventanas con dvh. Pre-instalación para aire acondicionado. Calefacción por radiadores. Puerta principal reforzada, edificio con cámaras de seguridad, portero visor con cámara, ascensores de primera generación. Pisos de porcelanato. Cocina y baños con grifería fv con instalación en termofusión. Gimnasio y sum (sala de usos múltiples) en planta baja. Dos subsuelos de cocheras disponibles.- Fecha estimada de entrega septiembre 2028.- Formas de pago: el valor publicado entra en la modalidad del 30 % de contado + 60 cuotas, ajustables según c.A.C. (Valor del mt2 u$s 2.300).- Otra opción es la financiación corta: 30 % de contado + 36/48 cuotas ajustables según c.A.C. (Valor del mt2 baja a u$s 1.900).- La tercera opción, de contado. (Valor del mt2 baja a u$s 1.600).- Cocheras descubiertas u$s 15.000.- Cocheras cubiertas u$s 18.000.- Los valores pueden ser modificados a medida que avance la obra. Consultar disponibilidad y valores.-

Contactar
1/21
Visto

0

USD 388.010

Avenida De Los Trabajadores 1800 , Piso 9

Departamento en Venta en Punta Mogotes, Mar Del Plata

PLUCHINO PROPIEDADES
  • 151 m² cubie.
  • 3 dorm.
  • 4 baños

Piso 4 ambientes al frente en POZO

El proyecto se ubica en avenida de los trabajadores y tripulantes del fournier. Frente al mar y a metros de la reserva natural de punta mogotes. Unidades de 2, 3 y 4 ambientes pensados para vivir con luz, espacio y vistas que inspiran. Todas orientadas para disfrutar la vista al mar. Frente a la playa, balnearios, gastronomía y comercios a pasos. Con una estructura de doble muro y aislación para asegurar un clima estable durante todo el año. Ventanas con dvh. Pre-instalación para aire acondicionado. Calefacción por radiadores. Puerta principal reforzada, edificio con cámaras de seguridad, portero visor con cámara, ascensores de primera generación. Pisos de porcelanato. Cocina y baños con grifería fv con instalación en termofusión. Gimnasio y sum (sala de usos múltiples) en planta baja. Dos subsuelos de cocheras disponibles.- Fecha estimada de entrega septiembre 2028.- Formas de pago: el valor publicado entra en la modalidad del 30 % de contado + 60 cuotas, ajustables según c.A.C. (Valor del mt2 u$s 2.300).- Otra opción es la financiación corta: 30 % de contado + 36/48 cuotas ajustables según c.A.C. (Valor del mt2 baja a u$s 1.900).- La tercera opción, de contado. (Valor del mt2 baja a u$s 1.600).- Cocheras descubiertas u$s 15.000.- Cocheras cubiertas u$s 18.000.- Los valores pueden ser modificados a medida que avance la obra. Consultar disponibilidad y valores.-

Contactar
1/15
Visto

0

USD 165.000 + $200.000 expensas

Bartolomé Mitre 1100

Departamento en Venta en Mar Del Plata, General Pueyrredon

REMAX Feliz
  • 102,10 m² cubie.
  • 3 dorm.
  • 35 años

Dpto 4 amb Venta La Perla Balcon Apto Credito

Corredor responsable: ariel martin simone reg 3781 - contacto: belén torres departamento en venta de 3 ambientes en la perla mar del plata este departamento de piso completo se encuentra ubicado en el tradicional barrio la perla de mar del plata, a tan solo media cuadra del mar. Situado en el primer piso de un edificio de 7 pisos, cuenta con una superficie total construida de 134 m², distribuidos en 102 m² cubiertos, 13 m² semicubiertos y 19 m² descubiertos. La propiedad se destaca por su amplia y funcional distribución, que incluye 3 habitaciones, 2 baños completos y 1 toilette. Además, posee un balcón aterrazado al frente y salida directa al patio, lo que le otorga gran luminosidad y ventilación natural. Este inmueble se encuentra en una excelente ubicación, convirtiéndolo en una opción ideal tanto para uso residencial permanente como para quienes buscan una inversión en una de las zonas más codiciadas de la ciudad. Para más información o para coordinar una visita, contactanos. Rau s.R.L. No ejerce el corretaje inmobiliario. El presente sitio web es una plataforma en donde cada oficina inmobiliaria independiente que contrata los servicios re/max puede publicar las propiedades a su cargo. Cada oficina es de propiedad y gestión independiente, por lo que rau s.R.L. No interviene en los datos de la publicación, en la operación inmobiliaria, ni en la confección y/o firma del boleto de compraventa y/o escritura y/o contrato de alquiler. En cumplimiento de las leyes vigentes que regulan el corretaje inmobiliario, ley nacional 25.028, ley 22.802 de lealtad comercial, ley 24.240 de defensa al consumidor, las normas del código civil y comercial de la nación y constitucionales, los agentes/gestores no ejercen el corretaje inmobiliario. Todas las operaciones inmobiliarias son objeto de intermediación y conclusión por parte del corredor público inmobiliario colegiado a cargo de la publicación, cuyos datos se exhiben en la presente. La presente publicación describe las características esenciales del inmueble, debiéndose consultar al corredor público inmobiliario responsable de la operación por la eventual actualización de las medidas, descripciones arquitectónicas y funcionales, valores de expensas, servicios, impuestos, precios y demás información, cuyos valores son aproximados.

Contactar