(1) (1)
  • San Isidro Vias / Rolon

Venta

Departamento

USD desde 156K

Buscar solo avisos en moneda:

Dorm | 3 amb.

Dormitorios

  • 1
  • 2
  • 3
  • 4
  • 5+

Ambientes

  • Mono.
  • 2
  • 3
  • 4
  • 5+

Más filtros (1) Más filtros

Dormitorios

  • 1
  • 2
  • 3
  • 4
  • 5+

Ambientes

  • Mono.
  • 2
  • 3
  • 4
  • 5+

Características

Superficie cubierta

Cocheras

Baños

Antiguedad

  • Indistinto
  • A estrenar
  • Hasta 5 años
  • Hasta 10 años
  • Hasta 20 años
  • Hasta 30 años
  • Más de 30 años

Disposición

Nombre de calle y altura

Expensas

$

Tipo de urbanización

Servicios

Tipo de departamento

Tipos de ambientes

Estado de obra

Tipo de anunciante

21 Departamentos en Venta en San Isidro Vias / Rolon de 3 ambientes

1/23
Visto

175

$ 329.940.171

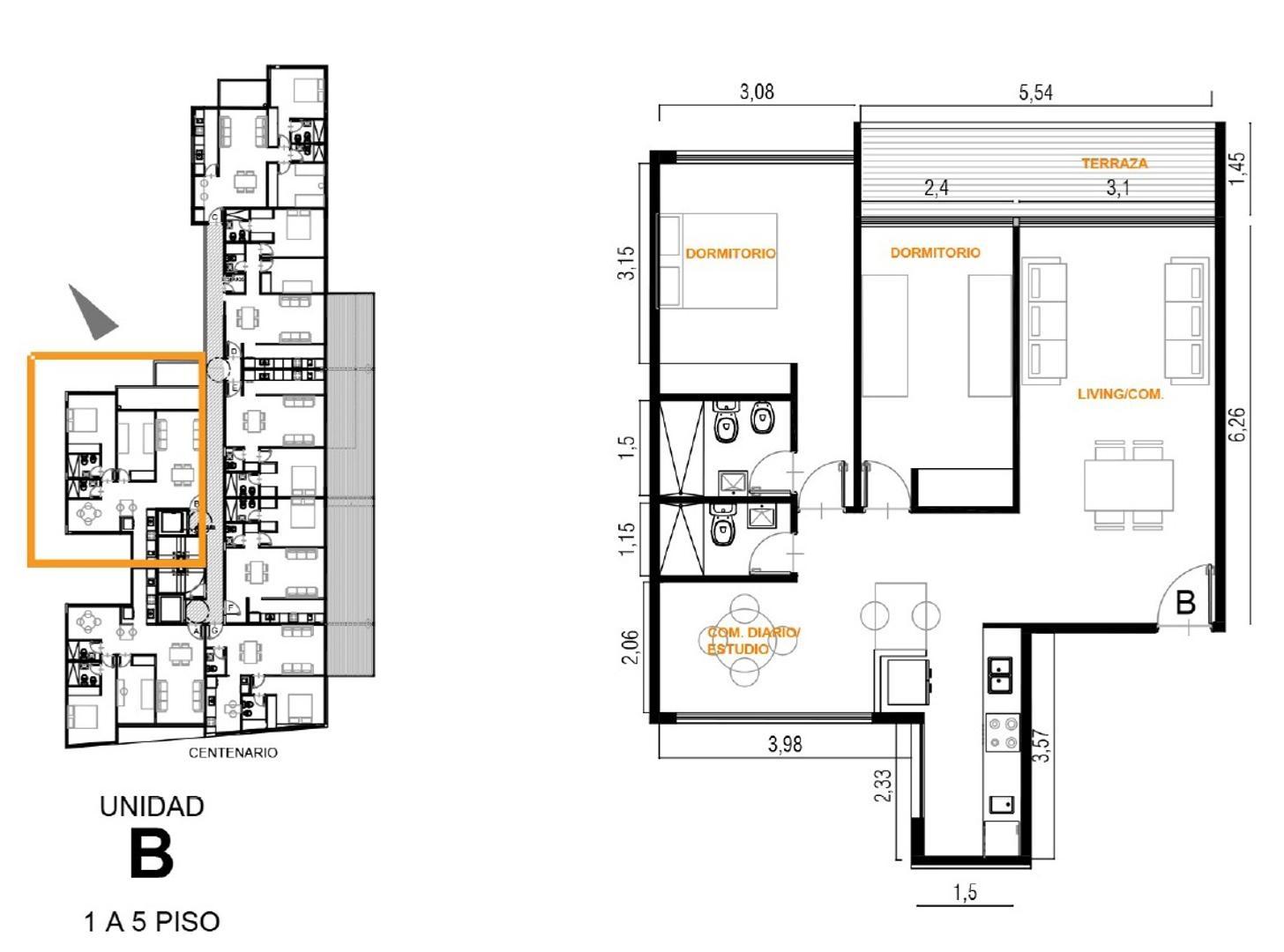
Av Centenario 700, Piso 2

Departamento en Venta en San Isidro Vias / Rolon, San Isidro

SANCHEZ PROPIEDADES
  • 75 m² cubie.
  • 2 dorm.
  • A Estrenar

VENTA Depto A ESTRENAR 3 amb + balcón + cochera en San Isidro

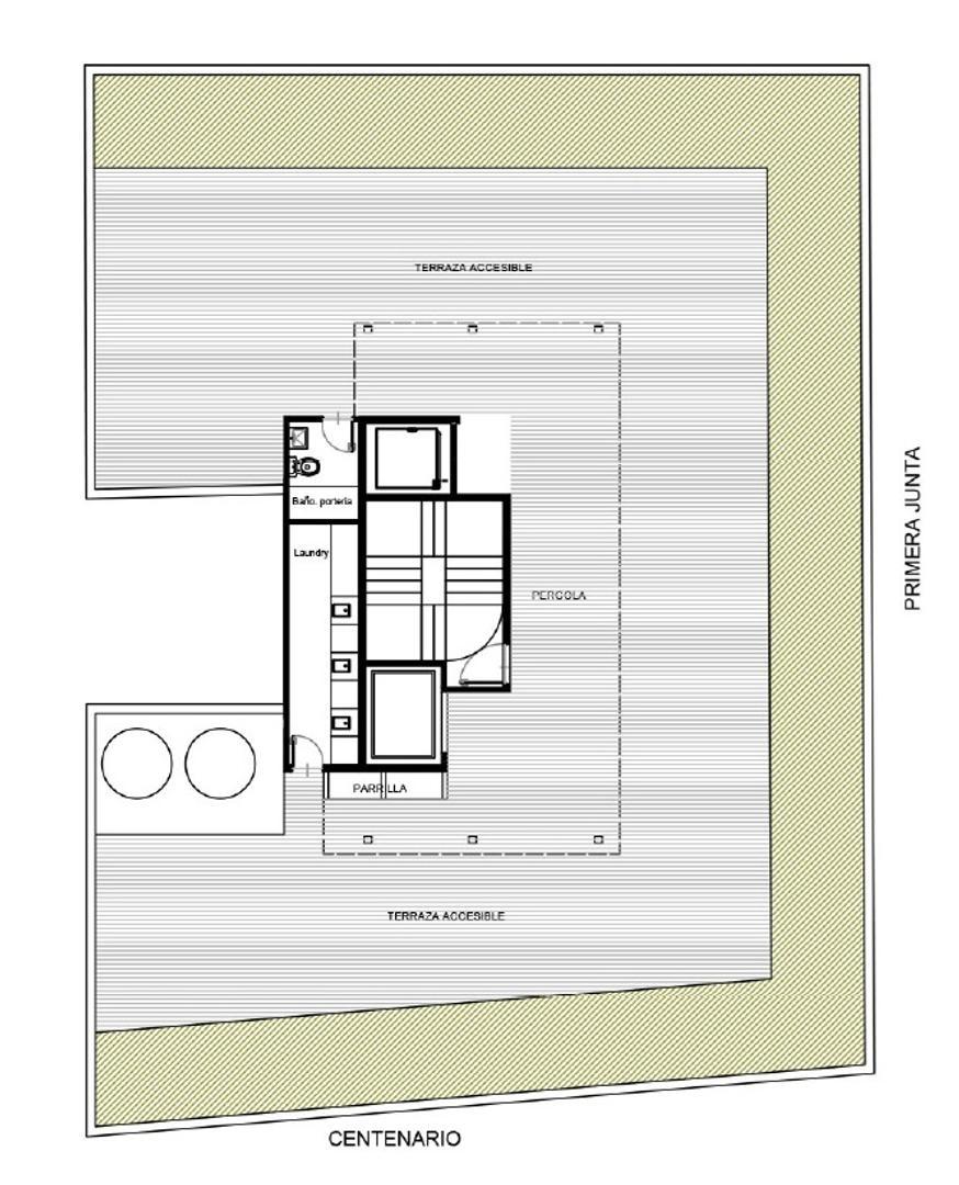
Departamento en venta a estrenar, en 2do piso, de 3 ambientes, 75 mts2 cubiertos, 8.6 mts2 semicubiertos y cochera fija, orientación contrafrente, en san isidro. Este edificio de diseño moderno, se encuentra desarrollado en av. Centenario y primera junta, una esquina privilegiada, ubicada a pocas cuadras del centro de san isidro. La zona es residencial y comercial, con variedad de accesos, comercios, colegios, institutos de nivel terciario, universidades, centros de salud y medios de transporte. Distribución del departamento: 2 habitaciones (1 en suite) 2 baños completos cocina con comedor diario conexión para lavarropas living comedor balcón de 1.45 x 5.54 mts el edificio: el edificio cuenta con 31 unidades residenciales de amplias dimensiones y terrazas, con un local comercial en planta baja. Todas las unidades cuentan con cochera propia y baulera. Tipologías de 2 y 3 ambientes. Amenities: jardín y plaza de juegos en planta baja. Solarium con piscina terraza en 4to piso. Pérgola parrillas terraza en 6to piso. Modelo de negocio: fideicomiso al costo aporte inicial del 15% en pesos cuotas en pesos ajustadas por cac duración estimada de la obra: 30 meses terminaciones generales de obra: pisos de porcelanato placares con frente corredizo - sin interior de placard muebles de cocina con terminaciones en melamina mesadas de granito gris mara piletas de acero inoxidable cocinas longvie eléctrica 4 hornallas con horno visor autolimpiante griferías f.V sanitarios ferrum, línea bari bañeras ferrum de acero porcelanizado de 1.65 x 0.70 carpintería exterior de aluminio doble dvh carpintería interior con marcos metálicos chapa n°18 puertas de madera pintadas variantes de agua caliente por termotanques centrales o termotanques individuales eléctricos. Calefacción con split frío/calor en dormitorios ascensores hidráulicos o electrónicos la localidad de san isidro ofrece una gran diversidad de actividades culturales, recreativas y gastronómicas para todas las edades! ¡No te pierdas esta oportunidad! ¡Contactanos! Sánchez propiedades av. Centenario 843 - san isidro teléfonos: / instagram @sanchez.Propiedades_ facebook /sanchez.Propiedades.Inmo martillero y corredor público responsable: elena r. Ferrante cmcpsi 4203

Contactar
1/16
Visto

100

USD 240.000

3 De Febrero 300

Departamento en Venta en San Isidro Vias / Rolon, San Isidro

Godoy Asesores Inmobiliarios
  • 79 m² cubie.
  • 2 dorm.
  • A Estrenar

Venta departamento 3 ambientes San Isidro

[Godoyaseso-6198] venta departamento en pozo 3 ambientes con terraza y parrilla la calabria, san isidro entrega estimada: septiembre 2026 proyecto de viviendas ubicado en el barrio residencial de la calabria, en san isidro. Una zona tranquila y verde, compuesta por casas y edificios bajos, a tan solo 3 cuadras de av. Centenario, por donde circulan múltiples líneas de colectivos, y a 10 minutos a pie del centro comercial y gastronómico de san isidro. El emprendimiento cuenta con 12 unidades funcionales distribuidas en 2 bloques, con 2 unidades de 3 ambientes por bloque, y 14 cocheras disponibles. Unidad de 3 ambientes sup. Total: 79 m² cubiertos + 10,67 m² de balcón terraza con parrilla + baulera 1.30 distribución: living-comedor, cocina integrada, dormitorio principal en suite con vestidor, segundo dormitorio, baño completo adicional, balcón terraza con parrilla. Calefacción por piso radiante con caldera dual y preinstalación de aire acondicionado. Todos los departamentos cuentan con balcón aterrazado de 11 m2 con parrilla. Forma de pago anticipo: u$s 62.800 saldo en 18 cuotas en pesos + c.A.C. Consultá por otras unidades y pisos disponibles. La cochera no esta incluida en el precio. Cochera ; anticipo usd 5900 + cuotas en pesos especificaciones técnicas estructura de hormigón armado independiente, muros exteriores de ladrillo termoeficiente dm20 con revestimiento plástico tipo tarquini, ventanas de pvc blanco con doble vidrio hermético (dvh), barandas metálicas, herrería general pintada con esmalte sintético, pisos símil madera de primera calidad en living, dormitorios y pasillos, revestimientos cerámicos y porcelanatos en baños, zócalos de madera pintados, puertas de placard corredizas de piso a techo en melamina texturada con cantos de aluminio, interiores de placard en melamina blanca con estantes, cajonera y barral, muebles de cocina hechos a medida con mesadas de cuarzo y pileta de acero inoxidable luxor, grifería monocomando ramón soler o similar, anafe a gas con hornallas de fundición y horno eléctrico de 8 funciones orbis o similar, muebles de baño con mesadas de mármol o cuarzo y pileta blanca, artefactos sanitarios línea mónaco de roca o similar, grifería fv, instalación eléctrica completa según normas enre, sistema de telefonía y tv preparado para cableado, instalación sanitaria con cañerías plásticas por termofusión, desagües cloacales en pvc awaduct o similar, ascensores con puertas automáticas, escaleras de cemento alisado con terminaciones tipo tarquini, cocheras con acceso vehicular en garden block y bloques intertrabados, sectores de estacionamiento en cemento alisado, paredes y cielorrasos con hormigón visto y revestimientos tarquini. Una excelente oportunidad de inversión o vivienda propia en uno de los barrios más valorados de san isidro. Proyecto moderno, funcional y rodeado de naturaleza. Se deja aclarado que las informaciones contenidas en esta publicación podrían haber sufrido alguna modificación o corrección entre su publicación y el tiempo de su visualización. Responsable: javier l. Godoy csi 4784 servicios: cloacas, gas otros servicios: balcón terraza

Contactar
1/46
Visto

100

USD 197.000

Jacinto Díaz 200 1A

Departamento en Venta en San Isidro Vias / Rolon, San Isidro

DARIA
  • 61 m² cubie.
  • 2 dorm.
  • A Estrenar

Departamento en venta 3 ambientes - S.Isi.-Vias/Rolon

Hermoso semipiso de 3 ambientes al frente, con vista a la plaza castiglia. Se accede desde el palier a un amplio living comedor apaisado y salida a balcón, con parrilla individual. Cocina integrada con muebles completos bajo mesadas y alacenas, instalación para lavarropas bajo mesada, dormitorio principal en suite con baño completo y vestidor (con interiores de placard), dormitorio junior con placard (incluye interiores), otro baño completo que sirve también de toilette. Los dos dormitorios tienen vista al frente. Carpinterías exteriores de aluminio negro con doble vidriado hermético, agua caliente individual y calefacción por losa radiante con alimentación por caldera dual a gas. Hornos eléctricos y anafes a gas. Griferías fv o similar. Pisos en livings, dormitorios, baños y cocinas en porcellanato rectificado de primera calidad. Muebles de cocina completos con bajo mesadas y alacenas en melamina y mesadas en granito gris mara. Piletas de cocina en acero inoxidable. Pre-instalación para equipos de aire acondicionado (sin provisión de equipos). Edificio de categoría, con pocas unidades y bajas expensas. El precio no incluye cochera. Las mismas son opcionales descubiertas en u$15.000. Martillero maximiliano miguel d'aria matrícula cmcpsi n 6886 av. Libertador 4189 - la lucila - prov. De bs. As. Martillero maximiliano miguel d'aria matrícula cmcpsi n 6886 av. Libertador 4189 - la lucila - prov. De bs. As. Matrícula cucicba n 8264 av. Juramento 1775 - belgrano - caba

Contactar
1/14
Visto

100

USD 230.000

3 De Febrero 300

Departamento en Venta en San Isidro Vias / Rolon, San Isidro

Godoy Asesores Inmobiliarios
  • 79 m² cubie.
  • 2 dorm.
  • A Estrenar

Venta departamento 3 ambientes San Isidro

[Godoyaseso-6522] venta departamento en pozo 3 ambientes con terraza y parrilla la calabria, san isidro entrega estimada: septiembre 2026 proyecto de viviendas ubicado en el barrio residencial de la calabria, en san isidro. Una zona tranquila y verde, compuesta por casas y edificios bajos, a tan solo 3 cuadras de av. Centenario, por donde circulan múltiples líneas de colectivos, y a 10 minutos a pie del centro comercial y gastronómico de san isidro. El emprendimiento cuenta con 12 unidades funcionales distribuidas en 2 bloques, con 2 unidades de 3 ambientes por bloque, y 14 cocheras disponibles. Unidad de 3 ambientes sup. Total: 79 m² cubiertos + 10,67 m² de balcón terraza con parrilla + baulera 1.30 cochera doble descubierta distribución: living-comedor, cocina integrada, dormitorio principal en suite con vestidor, segundo dormitorio, baño completo adicional, balcón terraza con parrilla. Calefacción por piso radiante con caldera dual y preinstalación de aire acondicionado. Todos los departamentos cuentan con balcón aterrazado de 11 m2 con parrilla. Forma de pago anticipo: u$s 62.800 saldo en 18 cuotas en pesos + c.A.C. Consultá por otras unidades y pisos disponibles. Cochera ; anticipo usd 5900 + cuotas en pesos especificaciones técnicas estructura de hormigón armado independiente, muros exteriores de ladrillo termoeficiente dm20 con revestimiento plástico tipo tarquini, ventanas de pvc blanco con doble vidrio hermético (dvh), barandas metálicas, herrería general pintada con esmalte sintético, pisos símil madera de primera calidad en living, dormitorios y pasillos, revestimientos cerámicos y porcelanatos en baños, zócalos de madera pintados, puertas de placard corredizas de piso a techo en melamina texturada con cantos de aluminio, interiores de placard en melamina blanca con estantes, cajonera y barral, muebles de cocina hechos a medida con mesadas de cuarzo y pileta de acero inoxidable luxor, grifería monocomando ramón soler o similar, anafe a gas con hornallas de fundición y horno eléctrico de 8 funciones orbis o similar, muebles de baño con mesadas de mármol o cuarzo y pileta blanca, artefactos sanitarios línea mónaco de roca o similar, grifería fv, instalación eléctrica completa según normas enre, sistema de telefonía y tv preparado para cableado, instalación sanitaria con cañerías plásticas por termofusión, desagües cloacales en pvc awaduct o similar, ascensores con puertas automáticas, escaleras de cemento alisado con terminaciones tipo tarquini, cocheras con acceso vehicular en garden block y bloques intertrabados, sectores de estacionamiento en cemento alisado, paredes y cielorrasos con hormigón visto y revestimientos tarquini. Una excelente oportunidad de inversión o vivienda propia en uno de los barrios más valorados de san isidro. Proyecto moderno, funcional y rodeado de naturaleza. Se deja aclarado que las informaciones contenidas en esta publicación podrían haber sufrido alguna modificación o corrección entre su publicación y el tiempo de su visualización. Responsable: javier l. Godoy csi 4784 servicios: cloacas, gas otros servicios: balcón terraza

Contactar
1/21
Visto

50

USD 224.000

Alsina al 100

Departamento en Venta en San Isidro Vias / Rolon, San Isidro

Zarate Gestion Inmobiliaria
  • 64 m² cubie.
  • 2 dorm.
  • A Estrenar

Departamento tres ambientes cochera entrega enero 2026

Prida san isidro excelente ubicación cerca de todo, a 150 mts de av. Centenario, 3 cuadras de la estación de trenes san isidro y muchos medios de transporte. Entrega enero 2026 moderno edificio de muy buena calidad y con excelentes terminaciones. Entrada por calle alsina y por calle laprida. El departamento tiene tres ambientes. Living comedor, con salida a un balcón al frente sobre laprida, con parrilla. Cocina integrada. Dos dormitorios, toilette y baño completo. Con 1 cochera incluida. Opción: comprar una segunda cochera (u$s 14.000.-) Se entrega con equipamiento completo en cocina y placards y aires acondicionados. Climatización frío/calor por bomba de calor. Aberturas con dvh. Balcón privado con parrilla. Etiquetado energético. Separación de residuos. Recolección de aguas de lluvia. Sustentabilidad en cada detalle. El edificio cuenta con cocheras en pb y tres pisos, 15 departamentos en total, distribuidos en cuatro bloques, desde alsina hasta laprida. Martilleros responsables: analía zárate matrícula profesional cmcpsi 6238 - andrés zárate matrícula profesional cucicba 8812 . Todas las medidas enunciadas son meramente orientativas, las medidas exactas serán las que se expresen en el respectivo título de propiedad de cada inmueble. Todas las fotos, imágenes y videos son meramente ilustrativos y no contractuales. La información publicada podrá sufrir cambios y/o actualizaciones. Los precios enunciados son meramente orientativos y no contractuales. Zgi .

Contactar
1/16
Visto

50

USD 220.000

3 De Febrero 300

Departamento en Venta en San Isidro Vias / Rolon, San Isidro

Godoy Asesores Inmobiliarios
  • 79 m² cubie.
  • 2 dorm.
  • A Estrenar

Venta departamento en 3 ambientes San Isidro

[Godoyaseso-6161] venta en pozo departamentos 3 ambientes con terraza y parrilla la calabria, san isidro entrega estimada: septiembre 2026 proyecto de viviendas ubicado en el barrio residencial de la calabria, en san isidro. Una zona tranquila y verde, compuesta por casas y edificios bajos, a tan solo 3 cuadras de av. Centenario, por donde circulan múltiples líneas de colectivos, y a 10 minutos a pie del centro comercial y gastronómico de san isidro. El emprendimiento cuenta con 12 unidades funcionales distribuidas en 2 bloques, con 2 unidades de 3 ambientes por bloque, y 14 cocheras disponibles. Sup. Total: 79 m² cubiertos + 10,67 m² de balcón terraza con parrilla + baulera 1.30 distribución: living-comedor, cocina integrada, dormitorio principal en suite con vestidor, segundo dormitorio, baño completo adicional, balcón terraza con parrilla. Calefacción por piso radiante con caldera dual y preinstalación de aire acondicionado. Forma de pago anticipo: u$s 63.300 saldo en 18 cuotas en pesos + c.A.C. Consultá por otras unidades y pisos disponibles. Especificaciones técnicas estructura de hormigón armado independiente, muros exteriores de ladrillo termoeficiente dm20 con revestimiento plástico tipo tarquini, ventanas de pvc blanco con doble vidrio hermético (dvh), barandas metálicas, herrería general pintada con esmalte sintético, pisos símil madera de primera calidad en living, dormitorios y pasillos, revestimientos cerámicos y porcelanatos en baños, zócalos de madera pintados, puertas de placard corredizas de piso a techo en melamina texturada con cantos de aluminio, interiores de placard en melamina blanca con estantes, cajonera y barral, muebles de cocina hechos a medida con mesadas de cuarzo y pileta de acero inoxidable luxor, grifería monocomando ramón soler o similar, anafe a gas con hornallas de fundición y horno eléctrico de 8 funciones orbis o similar, muebles de baño con mesadas de mármol o cuarzo y pileta blanca, artefactos sanitarios línea mónaco de roca o similar, grifería fv, instalación eléctrica completa según normas enre, sistema de telefonía y tv preparado para cableado, instalación sanitaria con cañerías plásticas por termofusión, desagües cloacales en pvc awaduct o similar, ascensores con puertas automáticas, escaleras de cemento alisado con terminaciones tipo tarquini, cocheras con acceso vehicular en garden block y bloques intertrabados, sectores de estacionamiento en cemento alisado, paredes y cielorrasos con hormigón visto y revestimientos tarquini. Una excelente oportunidad de inversión o vivienda propia en uno de los barrios más valorados de san isidro. Proyecto moderno, funcional y rodeado de naturaleza. Responsable: javier l. Godoy csi 4784 servicios: cloacas, gas otros servicios: balcón terraza

Contactar
1/37
Visto

1

USD 234.141

Av. Centenario 700, Piso 2

Departamento en Venta en San Isidro Vias / Rolon, San Isidro

Vinelli Inmobiliaria
  • 75 m² cubie.
  • 2 dorm.
  • A Estrenar

Departamento venta a estrenar en San Isidro centro

[Vinelli-3691] edificio en obra en pleno san isidro, sobre la av. Centenario al 700, esquina calle primera junta, prov. De bs. As. Un gran local comercial en la planta baja + 5 pisos altos. Cocheras cubiertas y descubiertas, en planta baja y 1er subsuelo con bauleras. La unidad departamento a estrenar con ingreso por living con cocina semi-separada y comedor diario independiente. Un dormitorio, que puede ser estudio, con baño y dormitorio principal en suite con vistas al contrafrente, balcón de 5,54m2 x 1,45m2 y orientación noreste al rio. Superficies: 75m2 cubiertos + 8.60m semicubiertos + 12.50m2 de cochera cubierta, total uni.: 96.10m2 cochera cubierta num. 27 el edificio el edificio cuenta con 31 unidades residenciales de 2 y 3 ambientes, con baño y toilette. Cochera propia y baulera. Con amplias terrazas. Agua caliente central y calefacción por aire acondicionado. Amenities: el desarrollo contara con sectores de amenities. Solárium terraza en 4to piso. En el 6to piso contara con pérgola, parrilla y lavadero. Ubicación: sobre av. Centenario y primera junta, frente a las vías del tren, con fácil acceso a intendente tomkinson y av. Márquez. Entre medio de las estaciones beccar y san isidro, rodeados de comercios, servicios y transporte público. A dos cuadras de plaza castiglia y a 700m de centro de san isidro. Financiación: fideicomiso al costo en pesos, plazo de obra estimado: 13 meses. Forma de pago: anticipo de 48% en 6 cuotas, saldo en 13 cuotas mensuales + ajuste cac + 3 refuerzos trimestrales. Se ajustarán las cuotas de acuerdo con el índice de la cac (cámara argentina de la construcción) y al final de la obra se verificará que ni sobre ni falte dinero para que el edificio sea finalizado. Planos, superficies y por lo tanto costos proporcionales pueden cambiar de acuerdo con las correcciones que pida la oficina de obras particulares de la municipalidad de san isidro. ¡Consulte! Las medidas son aproximadas, las reales y los datos consignados serán verificados contra la cesión de boleto. Servicios: cloacas comercializan martilleros y corredores públicos: lic. Y mart. Matías vinelli, cucicba nº 2557 arq. Y mart. Federico vinelli, cmcpsi nº 6652

Contactar
1/32
Visto

0

USD 190.000 + $147.000 expensas

Monseñor Alberti al 900 entre O'higgins y Avellaneda

Departamento en Venta en San Isidro Vias / Rolon, San Isidro

Dic Propiedades SA
  • 70 m² cubie.
  • 2 dorm.
  • 3 años

Departamento 3 ambientes Venta - S.Isi.-Vias/Rolon

Excelente departamento de 3 ambientes en edificio nuevo y con una exclusiva ubicación en el barrio la calabria de san isidro. Se trata de un inmejorable semi piso, de estilo moderno, único por su amplitud ya que cuenta con espacios bien definidos, una excelente distribución de sus ambientes, mucha luminosidad y gran calidad constructiva. Esta unidad al contrafrente tiene ingreso principal por un hall de recepción que da paso a un living comedor amplio y super luminoso gracias a sus grandes aberturas. Espacio de cocina independiente que cuenta con amoblamiento de cocina( alacenas y bajo mesada) completo y esta totalmente equipada ya que cuenta con horno eléctrico empotrado, anafe a gas, mesada de granito, "mara", espacio para lavarropas y caldera dual. Desde el pasillo de distribución se accede a los dormitorios, el principal es con baño en suite y vestidor. Ambos cuentan con buen tamaño e interiores de placard instalados. Completan los ambientes un segundo baño completo que hace también de toilette. Espectacular balcón, de 8.30mts x 1.40mts con orientación hacia el este, que da muchísima iluminación a toda la unidad. El edificio cuenta con muy buenos detalles constructivos, ya que todas las unidades tiene pisos de equipamiento porcelanato simil madera, aberturas de doble vidrio ( dvh), calefacción individual por radiadores y equipamiento de primeras marcas. Cochera cubierta con portón automatizado. Ubicación privilegiada, ya que se encuentra a tan solo 3 cuadras de avenida centenario, a 2 de la plaza castiglia y cercana a la estación de tren san isidro. Ademas esta próxima a varias lineas de colectivos hacia casi cualquier punto, comercios de todo tipo, cafeterías, supermercados, bancos, restaurantes, sin perder un entorno tranquilo y residencial. Visitalo te va a encantar. Con más de 40 años de experiencia, en dic propiedades entendemos el valor de tu búsqueda. Somos una empresa familiar liderada por sus dueños y respaldada por un equipo multidisciplinario de profesionales dedicados a concretar tus objetivos. Nuestros números avalan nuestro compromiso: 1.700 propiedades en comercialización. 137.000 tasaciones realizadas con precisión 950.000 m2 vendidos con éxito. 35.000 unidades de pozo comercializadas. Te esperamos de lunes a sábados en nuestras oficinas de caba y zona norte. * * * * * * * * Información importante y aviso legal * * * la presente publicación es de carácter orientativo. Se deja constancia que las medidas (totales y parciales), superficies (m2), antiguedad y valores de expensas consignados son aproximados y están sujetos a verificación, ajuste y/o ratificación con la documentación pertinente. El precio del inmueble y su disponibilidad pueden ser modificados sin previo aviso. Inmuebles en construcción: los detalles de terminación y fechas de entrega están sujetos a revisión técnica y contractual. Terrenos: la información sobre metros construibles es meramente orientativa; el interesado deberá realizar las consultas pertinentes ante los organismos correspondientes. Documentación: los gastos expresados (expensas, abl, impuestos) refieren a la última información recabada y deben ser confirmados antes de cualquier operación. Material gráfico: las fotografías, planos y renders son de carácter ilustrativo, no vinculante ni contractual. Dic propiedades s.A. Actúa exclusivamente en carácter de comercializadora de los inmuebles ofrecidos. La información provista no compromete contractualmente a la empresa. Código de propiedad: dot8266 ap7109738 javier del coro igarzabal | cmcpsi mat. No 4499 maría amparo coello | cucicba mat. No 5147 dic propiedades s.A. |

Contactar
1/32
Visto

0

USD 197.000 + $147.000 expensas

Monseñor Alberti al 900 entre O'higgins y Avellaneda

Departamento en Venta en San Isidro Vias / Rolon, San Isidro

Dic Propiedades SA
  • 70 m² cubie.
  • 2 dorm.
  • 3 años

Departamento 3 ambientes Venta - S.Isi.-Vias/Rolon

Excelente departamento de 3 ambientes en edificio nuevo y con una exclusiva ubicación en el barrio la calabria de san isidro. Se trata de un inmejorable semi piso, de estilo moderno, único por su amplitud ya que cuenta con espacios bien definidos, una excelente distribución de sus ambientes, mucha luminosidad y gran calidad constructiva. Esta unidad al contrafrente tiene ingreso principal por un hall de recepción que da paso a un living comedor amplio y super luminoso gracias a sus grandes aberturas. Espacio de cocina independiente que cuenta con amoblamiento de cocina( alacenas y bajo mesada) completo y esta totalmente equipada ya que cuenta con horno eléctrico empotrado, anafe a gas, mesada de granito, "mara", espacio para lavarropas y caldera dual. Desde el pasillo de distribución se accede a los dormitorios, el principal es con baño en suite y vestidor. Ambos cuentan con buen tamaño e interiores de placard instalados. Completan los ambientes un segundo baño completo que hace también de toilette. Espectacular balcón, de 8.30mts x 1.40mts con orientación hacia el este, que da muchísima iluminación a toda la unidad. El edificio cuenta con muy buenos detalles constructivos, ya que todas las unidades tiene pisos de equipamiento porcelanato simil madera, aberturas de doble vidrio ( dvh), calefacción individual por radiadores y equipamiento de primeras marcas. Cochera cubierta con portón automatizado. Ubicación privilegiada, ya que se encuentra a tan solo 3 cuadras de avenida centenario, a 2 de la plaza castiglia y cercana a la estación de tren san isidro. Ademas esta próxima a varias lineas de colectivos hacia casi cualquier punto, comercios de todo tipo, cafeterías, supermercados, bancos, restaurantes, sin perder un entorno tranquilo y residencial. Visitalo te va a encantar. Con más de 40 años de experiencia, en dic propiedades entendemos el valor de tu búsqueda. Somos una empresa familiar liderada por sus dueños y respaldada por un equipo multidisciplinario de profesionales dedicados a concretar tus objetivos. Nuestros números avalan nuestro compromiso: 1.700 propiedades en comercialización. 137.000 tasaciones realizadas con precisión 950.000 m2 vendidos con éxito. 35.000 unidades de pozo comercializadas. Te esperamos de lunes a sábados en nuestras oficinas de caba y zona norte. * * * * * * * * Información importante y aviso legal * * * la presente publicación es de carácter orientativo. Se deja constancia que las medidas (totales y parciales), superficies (m2), antiguedad y valores de expensas consignados son aproximados y están sujetos a verificación, ajuste y/o ratificación con la documentación pertinente. El precio del inmueble y su disponibilidad pueden ser modificados sin previo aviso. Inmuebles en construcción: los detalles de terminación y fechas de entrega están sujetos a revisión técnica y contractual. Terrenos: la información sobre metros construibles es meramente orientativa; el interesado deberá realizar las consultas pertinentes ante los organismos correspondientes. Documentación: los gastos expresados (expensas, abl, impuestos) refieren a la última información recabada y deben ser confirmados antes de cualquier operación. Material gráfico: las fotografías, planos y renders son de carácter ilustrativo, no vinculante ni contractual. Dic propiedades s.A. Actúa exclusivamente en carácter de comercializadora de los inmuebles ofrecidos. La información provista no compromete contractualmente a la empresa. Código de propiedad: dot8266 ap7109971 javier del coro igarzabal | cmcpsi mat. No 4499 maría amparo coello | cucicba mat. No 5147 dic propiedades s.A. |

Contactar
1/10
Visto

0

USD 215.000

Tres de Febrero al 300

Departamento en Venta en San Isidro Vias / Rolon, San Isidro

ZAMPONE PROPIEDADES-DANIEL AZAMPONE-M5792 CMSI-CUCICBA4629
  • 79 m² cubie.
  • 2 dorm.
  • A Estrenar

Venta Departamento San Isidro La Calabria 3 ambientes cochera baulera

Departamento en construcción en venta en san isidro. Consultar por unidades disponibles. Cocheras disponibles por valor adicional. Desarrollo en construcción en la calle 3 de febrero 365. Esto es un proyecto de viviendas ubicado en la calabria, san isidro. En un barrio de casas y edificios bajos, rodeado de verde, el proyecto está a sólo 3 cuadras de avenida centenario, por la que pasan varias líneas de colectivos. El centro de san isidro también está cerca, a tan sólo 10 minutos de caminata. El proyecto cuenta con 12 unidades divididas en dos bloques. 2 unidades de 3 ambientes en cada uno de los bloques y 14 cocheras. 3 ambientes superficie total de 91 metros. 79m2 cubiertos + 10,67 m2 de balcón/terraza/parrilla. 1.30 mts de baulera especificaciones: living - comedor - cocina. 1 dormitorio con vestidor y baño completo en suite. 1 dormitorios con baño completo y uso de toilette. Balcón terraza con parrilla baulera de 1.30mts terminaciones: estructura de hormigón armado independiente. Tabiques exteriores de ladrillo termoeficiente dm20 con terminación de revestimiento plástico texturado tipo tarquini. Ventanas de pvc blanco con vidrios dvh (doble vidrio hermético). Barandas y pasamanos de tubos metálicos. Herrería general terminada con esmalte sintético. Tabiques interiores de ladrillos huecos de 8x19x33cm, 12x19x33 cm, enlucidos y cielorrasos de yeso y pintura látex acrílico blanco de obra. Puertas interiores con marco de chapa y hoja mdf, con terminación de pintura sintética blanca semimate, con herrajes de acero inoxidable línea toshi mini o similar. Revestimiento piso pared en baños con porcelanatos y cerámicos de primera calidad. Pisos de living-comedor, pasillos y dormitorios: listones cerámicos simil madera. Zócalos de madera de 5 cm terminados con pintura sintética blanca. Puertas de placard corredizas de piso a techo en melamina texturada color con cantos de aluminio. Interiores de placard en melanina blanca con estantes, una cajonera y barral para colgar, hechos a medida. Muebles de cocina fabricados a medida en melamina blanca con cantos de abs y apertura con uñero invisible. Mesadas de cocina de quarzo con pileta de acero inoxidable luxor. Grifería de diseño monocomando ramón soler o similar. Anafe a gas con hornallas en fundición orbis o similar y horno eléctrico de 8 funciones orbis o similar. Mueble de baño con mesadas de mármol o cuarzo y pileta blanca. Artefactos sanitarios blancos línea mónaco de roca o similar. Grifería de diseño monocomando fv. Calefacción por piso radiante con caldera dual para agua caliente. Instalación eléctrica, cañerías y conductores según normas vigentes. Cada unidad con disyuntores, tableros, tomas y bocas según e.N.R.E. Televisión, cañería preparada para recibir cableado a realizar por empresa de cable. Telefonía cableada de montante con alambre guía en cada caja de pase. Instalación sanitaria, distribución de agua fría y caliente con cañería plástica con uniones de termofusión, desde tanque cisterna enterrado y bomba presurizadora. Desagues cloacales con cañerías de pvc awaduct o similar. Preinstalación para equipos de aire acondicionado. Ascensores con puertas automáticas en cabina y paliers. Escalera general de cemento alisado con paredes terminadas con revestimiento plástico tipo tarquini. Cocheras, calles vehiculares con garden block y bloques inter trabados. Espacios para estacionamiento con cemento alisado. Paredes y cielorrasos en hormigón visto y revestimiento plástico tipo tarquini. La fiduciaria se reserva el derecho de modificar los materiales a utilizar a su criterio, siempre dentro de los estándares detallados. Consultar por formas de pago. Entrega mediados 2026 el valor no incluye 1 cochera. Observaciones: las medidas indicadas son aproximadas y al solo efecto orientativo las reales surgirán del título de propiedad respectivo. El valor de las expensas puede variar sin previo aviso. Zampone propiedades c.U.C.I.C.B.A. 4629 - c.S.I. 5792

Contactar
1/6
Visto

0

USD 225.000

Liniers 332 - UF 1 - 1° Frente

Departamento en Venta en San Isidro Vias / Rolon, San Isidro

ORGANIZACION ACASSUSO PROPIEDADES
  • 80 m² cubie.
  • 2 dorm.
  • 2 baños

VASS Liniers Depto Venta - UF 1 1° Piso Frente

"Vass liniers" b la calabria san isidro - liniers 332 / 336 uf 1 - 1 piso frente cocina abierta con barra hacia el living comedor, lavadero. Salida a amplio balcón con parrilla individual. Dormitorio en suite. Segundo dormitorio y otro baño completo. Cochera cubierta "b". (Consulte opción segunda cochera) forma de pago 30% a la adhesión al fideicomiso 70% saldo en cuotas en $ pesos ajustadas por índice cac (cámara argentina de la construcción) "consulte por valor al contado" opción terraza privada u$s de 40 m2 valor u$s 30.000.- Opción de 2da cochera: cochera cubierta u$s 18.000.- Cochera descubierta u$s 15.000.- Edificio de 3 pisos con pb de cocheras son 12 departamentos de 3 ambientes con dos baños completos - dormitorio en suite más otro dormitorio - cochera (opción de segunda cochera) viviendas en ubicación privilegiada en barrio la calabria, san isidro. Sobre calle liniers entre monseñor alberti y gral. Paz. Cercano a la estación del tren san isidro, el hipódromo y avenida centenario. Edificio de 3 pisos, manteniendo la escala urbana y residencial de la zona con un total de 12 unidades y 21 cocheras. Todas las unidades comparten la misma impronta de espacios comunes amplios con salida a balcón. Cada planta cuenta con tipologías de 3 ambientes. Sistema de construccion tradicional - estructura de hormigon y revestimiento plastico texturado. Muros interiores de ladrillos con revoque de yeso. Las terminaciones de losa en blanco con buñas y aberturas negras, más detalles en madera le da una imagen neta, moderna, y a la vez en contexto con la zona tradicional de san isidro. La vegetación toma protagonismo como delimitante del terreno y lugares de circulación, acompañando en el ingreso peatonal y vehicular, generando un espacio de escala cálida y contenido. Cocina pisos porcellanato simil madera bajo mesado de moderno diseño melamina artefacto de cocina primera marca mesada calacatta o similar bacha acero inoxidable griferia cromada marca hidromet, fv o similar estar comedor techos de hormigón visto piso porcelanato simil madera acondicionamiento y agua caliente tendido de cañerias para aire acondicionado - calefacción por radiadores agua caliente individual. (Caldera dual) pintura de obra con alba, z 10 o similar dormitorios cielorraso de yeso aplicado piso porcellanato simil madera frente de placard piso a techo melamina baños revestimientos de paredes y piso en porcellanato grifería cromada hidromet, fv o similar artefactos sanitarios de loza blanca marca ferrum, roca o similar carpinteria exterior carpinteria de aluminio negro dvh martillero responsable: mariano carro c.S.I: 3687

Contactar
1/6
Visto

0

USD 225.000

Liniers 332 - UF 2 - 1° Frente

Departamento en Venta en San Isidro Vias / Rolon, San Isidro

ORGANIZACION ACASSUSO PROPIEDADES
  • 80 m² cubie.
  • 2 dorm.
  • 2 baños

VASS Liniers Depto Venta - UF 2 1° Piso Frente

"Vass liniers" b la calabria san isidro - liniers 332 / 336 uf 2 - 1 piso frente cocina abierta con barra hacia el living comedor, lavadero. Salida a amplio balcón con parrilla individual. Dormitorio en suite. Segundo dormitorio y otro baño completo. Cochera cubierta "c". (Consulte opción segunda cochera) forma de pago 30% a la adhesión al fideicomiso 70% saldo en cuotas en $ pesos ajustadas por índice cac (cámara argentina de la construcción) "consulte por valor al contado" edificio de 3 pisos con pb de cocheras son 12 departamentos de 3 ambientes con dos baños completos - dormitorio en suite más otro dormitorio - cochera (opción de segunda cochera) opción terraza privada u$s de 40 m2 valor u$s 30.000.- Opción de 2da cochera: cochera cubierta u$s 18.000.- Cochera descubierta u$s 15.000.- Viviendas en ubicación privilegiada en barrio la calabria, san isidro. Sobre calle liniers entre monseñor alberti y gral. Paz. Cercano a la estación del tren san isidro, el hipódromo y avenida centenario. Edificio de 3 pisos, manteniendo la escala urbana y residencial de la zona con un total de 12 unidades y 21 cocheras. Todas las unidades comparten la misma impronta de espacios comunes amplios con salida a balcón. Cada planta cuenta con tipologías de 3 ambientes. Sistema de construccion tradicional - estructura de hormigon y revestimiento plastico texturado. Muros interiores de ladrillos con revoque de yeso. Las terminaciones de losa en blanco con buñas y aberturas negras, más detalles en madera le da una imagen neta, moderna, y a la vez en contexto con la zona tradicional de san isidro. La vegetación toma protagonismo como delimitante del terreno y lugares de circulación, acompañando en el ingreso peatonal y vehicular, generando un espacio de escala cálida y contenido. Cocina pisos porcellanato simil madera bajo mesado de moderno diseño melamina artefacto de cocina primera marca mesada calacatta o similar bacha acero inoxidable griferia cromada marca hidromet, fv o similar estar comedor techos de hormigón visto piso porcelanato simil madera acondicionamiento y agua caliente tendido de cañerias para aire acondicionado - calefacción por radiadores agua caliente individual. (Caldera dual) pintura de obra con alba, z 10 o similar dormitorios cielorraso de yeso aplicado piso porcellanato simil madera frente de placard piso a techo melamina baños revestimientos de paredes y piso en porcellanato grifería cromada hidromet, fv o similar artefactos sanitarios de loza blanca marca ferrum, roca o similar carpinteria exterior carpinteria de aluminio negro dvh martillero responsable: mariano carro c.S.I: 3687

Contactar
1/6
Visto

0

USD 187.500

Liniers 332 - UF 3 - 1° Cfte.

Departamento en Venta en San Isidro Vias / Rolon, San Isidro

ORGANIZACION ACASSUSO PROPIEDADES
  • 66 m² cubie.
  • 2 dorm.
  • 2 baños

VASS Liniers Depto Venta - UF 3 1° Piso Contrafrente

"Vass liniers" b la calabria san isidro - liniers 332 / 336 uf 3 - 1 piso contrafrente cocina abierta con barra hacia el living comedor. Salida a amplio balcón con parrilla individual. Dormitorio en suite. Segundo dormitorio y otro baño completo. Cochera descubierta "j". (Consulte opción segunda cochera) forma de pago 30% a la adhesión al fideicomiso 70% saldo en cuotas en $ pesos ajustadas por índice cac (cámara argentina de la construcción) "consulte por valor al contado" opción terraza privada u$s de 40 m2 valor u$s 30.000.- Opción de 2da cochera: cochera cubierta u$s 18.000.- Cochera descubierta u$s 15.000.- Edificio de 3 pisos con pb de cocheras son 12 departamentos de 3 ambientes con dos baños completos - dormitorio en suite más otro dormitorio - cochera (opción de segunda cochera) viviendas en ubicación privilegiada en barrio la calabria, san isidro. Sobre calle liniers entre monseñor alberti y gral. Paz. Cercano a la estación del tren san isidro, el hipódromo y avenida centenario. Edificio de 3 pisos, manteniendo la escala urbana y residencial de la zona con un total de 12 unidades y 21 cocheras. Todas las unidades comparten la misma impronta de espacios comunes amplios con salida a balcón. Cada planta cuenta con tipologías de 3 ambientes. Sistema de construccion tradicional - estructura de hormigon y revestimiento plastico texturado. Muros interiores de ladrillos con revoque de yeso. Las terminaciones de losa en blanco con buñas y aberturas negras, más detalles en madera le da una imagen neta, moderna, y a la vez en contexto con la zona tradicional de san isidro. La vegetación toma protagonismo como delimitante del terreno y lugares de circulación, acompañando en el ingreso peatonal y vehicular, generando un espacio de escala cálida y contenido. Cocina pisos porcellanato simil madera bajo mesado de moderno diseño melamina artefacto de cocina primera marca mesada calacatta o similar bacha acero inoxidable griferia cromada marca hidromet, fv o similar estar comedor techos de hormigón visto piso porcelanato simil madera acondicionamiento y agua caliente tendido de cañerias para aire acondicionado - calefacción por radiadores agua caliente individual. (Caldera dual) pintura de obra con alba, z 10 o similar dormitorios cielorraso de yeso aplicado piso porcellanato simil madera frente de placard piso a techo melamina baños revestimientos de paredes y piso en porcellanato grifería cromada hidromet, fv o similar artefactos sanitarios de loza blanca marca ferrum, roca o similar carpinteria exterior carpinteria de aluminio negro dvh martillero responsable: mariano carro c.S.I: 3687

Contactar
1/6
Visto

0

USD 250.000

Liniers 332 - UF 9 - 3° Frente

Departamento en Venta en San Isidro Vias / Rolon, San Isidro

ORGANIZACION ACASSUSO PROPIEDADES
  • 80 m² cubie.
  • 2 dorm.
  • 2 baños

VASS Liniers Depto Venta - UF 9 3° Piso Frente

"Vass liniers" b la calabria san isidro - liniers 332 / 336 uf 9 - 3 piso frente cocina abierta con barra hacia el living comedor, lavadero. Salida a amplio balcón con parrilla individual. Dormitorio en suite. Segundo dormitorio y otro baño completo. Terraza privada. Cochera cubierta "h". (Consulte opción segunda cochera) forma de pago 30% a la adhesión al fideicomiso 70% saldo en cuotas en $ pesos ajustadas por índice cac (cámara argentina de la construcción) "consulte por valor al contado" opción terraza privada u$s de 40 m2 valor u$s 30.000.- Opción de 2da cochera: cochera cubierta u$s 18.000.- Cochera descubierta u$s 15.000.- Edificio de 3 pisos con pb de cocheras son 12 departamentos de 3 ambientes con dos baños completos - dormitorio en suite más otro dormitorio - cochera (opción de segunda cochera) viviendas en ubicación privilegiada en barrio la calabria, san isidro. Sobre calle liniers entre monseñor alberti y gral. Paz. Cercano a la estación del tren san isidro, el hipódromo y avenida centenario. Edificio de 3 pisos, manteniendo la escala urbana y residencial de la zona con un total de 12 unidades y 21 cocheras. Todas las unidades comparten la misma impronta de espacios comunes amplios con salida a balcón. Cada planta cuenta con tipologías de 3 ambientes. Sistema de construccion tradicional - estructura de hormigon y revestimiento plastico texturado. Muros interiores de ladrillos con revoque de yeso. Las terminaciones de losa en blanco con buñas y aberturas negras, más detalles en madera le da una imagen neta, moderna, y a la vez en contexto con la zona tradicional de san isidro. La vegetación toma protagonismo como delimitante del terreno y lugares de circulación, acompañando en el ingreso peatonal y vehicular, generando un espacio de escala cálida y contenido. Cocina pisos porcellanato simil madera bajo mesado de moderno diseño melamina artefacto de cocina primera marca mesada calacatta o similar bacha acero inoxidable griferia cromada marca hidromet, fv o similar estar comedor techos de hormigón visto piso porcelanato simil madera acondicionamiento y agua caliente tendido de cañerias para aire acondicionado - calefacción por radiadores agua caliente individual. (Caldera dual) pintura de obra con alba, z 10 o similar dormitorios cielorraso de yeso aplicado piso porcellanato simil madera frente de placard piso a techo melamina baños revestimientos de paredes y piso en porcellanato grifería cromada hidromet, fv o similar artefactos sanitarios de loza blanca marca ferrum, roca o similar carpinteria exterior carpinteria de aluminio negro dvh martillero responsable: mariano carro c.S.I: 3687

Contactar
1/6
Visto

0

USD 250.000

Liniers 332 - UF 10 - 3° Frente

Departamento en Venta en San Isidro Vias / Rolon, San Isidro

ORGANIZACION ACASSUSO PROPIEDADES
  • 80 m² cubie.
  • 2 dorm.
  • 2 baños

VASS Liniers Depto Venta - UF 10 3° Piso Frente

"Vass liniers" b la calabria san isidro - liniers 332 / 336 uf 10 - 3 piso frente cocina abierta con barra hacia el living comedor, lavadero. Salida a amplio balcón con parrilla individual. Dormitorio en suite. Segundo dormitorio y otro baño completo. Terraza privada. Cochera cubierta "g". (Consulte opción segunda cochera) forma de pago 30% a la adhesión al fideicomiso 70% saldo en cuotas en $ pesos ajustadas por índice cac (cámara argentina de la construcción) "consulte por valor al contado" opción terraza privada u$s de 40 m2 valor u$s 30.000.- Opción de 2da cochera: cochera cubierta u$s 18.000.- Cochera descubierta u$s 15.000.- Edificio de 3 pisos con pb de cocheras son 12 departamentos de 3 ambientes con dos baños completos - dormitorio en suite más otro dormitorio - cochera (opción de segunda cochera) viviendas en ubicación privilegiada en barrio la calabria, san isidro. Sobre calle liniers entre monseñor alberti y gral. Paz. Cercano a la estación del tren san isidro, el hipódromo y avenida centenario. Edificio de 3 pisos, manteniendo la escala urbana y residencial de la zona con un total de 12 unidades y 21 cocheras. Todas las unidades comparten la misma impronta de espacios comunes amplios con salida a balcón. Cada planta cuenta con tipologías de 3 ambientes. Sistema de construccion tradicional - estructura de hormigon y revestimiento plastico texturado. Muros interiores de ladrillos con revoque de yeso. Las terminaciones de losa en blanco con buñas y aberturas negras, más detalles en madera le da una imagen neta, moderna, y a la vez en contexto con la zona tradicional de san isidro. La vegetación toma protagonismo como delimitante del terreno y lugares de circulación, acompañando en el ingreso peatonal y vehicular, generando un espacio de escala cálida y contenido. Cocina pisos porcellanato simil madera bajo mesado de moderno diseño melamina artefacto de cocina primera marca mesada calacatta o similar bacha acero inoxidable griferia cromada marca hidromet, fv o similar estar comedor techos de hormigón visto piso porcelanato simil madera acondicionamiento y agua caliente tendido de cañerias para aire acondicionado - calefacción por radiadores agua caliente individual. (Caldera dual) pintura de obra con alba, z 10 o similar dormitorios cielorraso de yeso aplicado piso porcellanato simil madera frente de placard piso a techo melamina baños revestimientos de paredes y piso en porcellanato grifería cromada hidromet, fv o similar artefactos sanitarios de loza blanca marca ferrum, roca o similar carpinteria exterior carpinteria de aluminio negro dvh martillero responsable: mariano carro c.S.I: 3687

Contactar
1/6
Visto

0

USD 210.000

Liniers 332 - UF 11 - 3° Cfte.

Departamento en Venta en San Isidro Vias / Rolon, San Isidro

ORGANIZACION ACASSUSO PROPIEDADES
  • 66 m² cubie.
  • 2 dorm.
  • 2 baños

VASS Liniers Depto Venta - UF 11 3° Piso Contrafrente

"Vass liniers" b la calabria san isidro - liniers 332 / 336 uf 11 - 3 piso contrafrente cocina abierta con barra hacia el living comedor. Salida a amplio balcón con parrilla individual. Dormitorio en suite. Segundo dormitorio y otro baño completo. Terraza privada. Cochera descubierta "n". (Consulte opción segunda cochera) forma de pago 30% a la adhesión al fideicomiso 70% saldo en cuotas en $ pesos ajustadas por índice cac (cámara argentina de la construcción) "consulte por valor al contado" opción terraza privada u$s de 40 m2 valor u$s 30.000.- Opción de 2da cochera: cochera cubierta u$s 18.000.- Cochera descubierta u$s 15.000.- Edificio de 3 pisos con pb de cocheras son 12 departamentos de 3 ambientes con dos baños completos - dormitorio en suite más otro dormitorio - cochera (opción de segunda cochera) viviendas en ubicación privilegiada en barrio la calabria, san isidro. Sobre calle liniers entre monseñor alberti y gral. Paz. Cercano a la estación del tren san isidro, el hipódromo y avenida centenario. Edificio de 3 pisos, manteniendo la escala urbana y residencial de la zona con un total de 12 unidades y 21 cocheras. Todas las unidades comparten la misma impronta de espacios comunes amplios con salida a balcón. Cada planta cuenta con tipologías de 3 ambientes. Sistema de construccion tradicional - estructura de hormigon y revestimiento plastico texturado. Muros interiores de ladrillos con revoque de yeso. Las terminaciones de losa en blanco con buñas y aberturas negras, más detalles en madera le da una imagen neta, moderna, y a la vez en contexto con la zona tradicional de san isidro. La vegetación toma protagonismo como delimitante del terreno y lugares de circulación, acompañando en el ingreso peatonal y vehicular, generando un espacio de escala cálida y contenido. Cocina pisos porcellanato simil madera bajo mesado de moderno diseño melamina artefacto de cocina primera marca mesada calacatta o similar bacha acero inoxidable griferia cromada marca hidromet, fv o similar estar comedor techos de hormigón visto piso porcelanato simil madera acondicionamiento y agua caliente tendido de cañerias para aire acondicionado - calefacción por radiadores agua caliente individual. (Caldera dual) pintura de obra con alba, z 10 o similar dormitorios cielorraso de yeso aplicado piso porcellanato simil madera frente de placard piso a techo melamina baños revestimientos de paredes y piso en porcellanato grifería cromada hidromet, fv o similar artefactos sanitarios de loza blanca marca ferrum, roca o similar carpinteria exterior carpinteria de aluminio negro dvh martillero responsable: mariano carro c.S.I: 3687

Contactar