Imprimir

Características del emprendimiento

  • Deptos. por Piso: 6
  • Pisos en Edificio: 14
  • Departamentos: 83
  • Ascensores: 3
  • Locales: 1
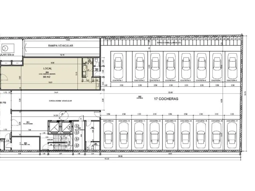
  • Cocheras: 20

RIO 4

Los usos definidos son de VIVIENDA MULTIFAMILIAR, ESTUDIOS PROFESIONALES, LOCAL COMERCIAL y COCHERAS además de las áreas comunes y de servicios. El lote se encuentra comprendido en un Área de Alta Mixtura de Usos del Suelo 4.
El proyecto tiene 1 subsuelo con 20 cocheras, 4 espacios para motos y servicios, la planta baja con 17 cocheras y 1 local; y en los pisos altos 83 viviendas de entre 28 y 98 m2 más balcones, que están distribuidas en plantas del 1º al 10º piso, un primer retiro del frente en el 11º piso, y un segundo retiro en los pisos 12°, 13º y 14º.
DESTINOS DE LA OBRA
1.- VIVIENDAS y ESTUDIOS PROFESIONALES
Planta 1º piso = 2 unidades de 3 ambientes de 61 y 67 m2, 4 unidades de 2 ambientes de 40, 45 y 50 m2 + balcones y patios.
Total = 6 Unidades
Plantas 2º al 10º piso = 3 unidades de 3 ambientes de 55, 61 y 63 m2, y 4 unidades de 2 ambientes de 39, 40 y 45 m2+ balcones.
Total: 7 x 9 pisos = 63 Unidades
Planta 11º piso = 1 unidad de 4 ambientes de 90 m2, 2 unidades de 3 ambientes de 55 y 63 m2, 3 unidades de 2 ambientes de 39 y 40 m2 + balcones.
Total = 6 Unidades
Planta 12º piso =1 unidad de 4 ambientes de 98 m2, 1 unidad de 3 ambientes de 65 m2, 3 unidades de 2 ambientes de 39 y 40 m2 + balcones.
Total = 5 Unidades
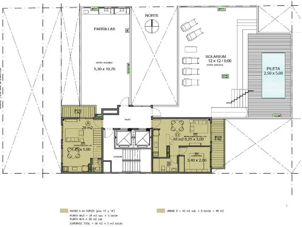
Planta 13º y 14° piso = 1 unidad en duplex de 2 ambientes de 56 m2, 1 unidad de 2 ambientes de 40 m2, y 1 unidad de 1 ambiente de 28 + balcones.
Total = 3 Unidades
Total = 83 Unidades
2.- COCHERAS
1º Subsuelo = 20 cocheras, 4 espacios guarda motos + espacios para bicicletas.
Planta Baja = 17 cocheras + espacios para bicicletas.
3.- LOCAL
Planta Baja = 1 local comercial minorista de 80 m2 con 1 baño y office.
4.- AMENITIES
En el 1° piso se ubica el SUM con 2 baños, espacio para cocinar, y un patio, y el resto de los amenities están en el piso 13° con una terraza al frente con Parrillas, y otra amplia terraza al contrafrente con un Solarium y Deck con Piscina y duchas exteriores. En el Subsuelo y la Planta Baja están previstos los espacios para Bike Parking.
5.- PORTERÍA
En el 1° piso se ubica la portería de 2 ambientes al patio interno del edificio.

Unidades disponibles

1 dormitorio desde USD 127.200 hasta USD 200.000

Superficie: desde 39,00 m2 hasta 95,00 m2

13 unidades disponibles

13 unidades disponibles

Unidad
Sup.Total
Sup.Cubierta
Baños
Disposición
Precio
1° E
95,00 m2
50,00 m2
1
Contrafrente
USD 200.000
2° A
48,00 m2
40,00 m2
1
Frente
USD 127.200
2° D
48,00 m2
40,00 m2
Lateral
USD 136.000
2° G
39,00 m2
39,00 m2
Lateral
USD 127.200
3° D
48,00 m2
40,00 m2
Lateral
USD 140.000
4° D
48,00 m2
40,00 m2
Lateral
USD 139.500
5° D
48,00 m2
40,00 m2
Lateral
USD 140.000
6° D
48,00 m2
40,00 m2
Lateral
USD 142.000
7° A
48,00 m2
40,00 m2
Frente
USD 155.000
7° B
54,00 m2
45,00 m2
Frente
USD 178.000
9° B
64,00 m2
45,00 m2
Frente
USD 162.000
9° D
48,00 m2
40,00 m2
Lateral
USD 152.000
13° A
61,00 m2
56,00 m2
1
Frente
USD 180.000

2 dormitorios desde USD 165.165 hasta USD 209.000

Superficie: desde 60,50 m2 hasta 72,00 m2

9 unidades disponibles

9 unidades disponibles

Unidad
Sup.Total
Sup.Cubierta
Baños
Disposición
Precio
2° F
68,00 m2
63,00 m2
1
Contrafrente
USD 180.880
3° E
60,50 m2
55,50 m2
1
Contrafrente
USD 165.165
3° F
68,00 m2
63,00 m2
1
Contrafrente
USD 192.000
4° F
68,00 m2
63,00 m2
1
Contrafrente
USD 190.740
4° F
68,00 m2
63,00 m2
1
Contrafrente
USD 190.740
6° E
60,50 m2
55,50 m2
Contrafrente
USD 177.000
7° C
72,00 m2
61,00 m2
Frente
USD 209.000
7° E
60,50 m2
55,50 m2
Contrafrente
USD 175.000
7° F
68,00 m2
63,00 m2
Contrafrente
USD 195.000

Cocheras desde USD 5.000 hasta USD 28.000

Superficie: desde 5,00 m2 hasta 12,50 m2

15 unidades disponibles

15 unidades disponibles

Unidad
Sup.Total
Precio
PB° 1
12,50 m2
USD 28.000
PB° 12
12,50 m2
USD 25.000
PB° 13
12,50 m2
USD 26.000
PB° 14
12,50 m2
USD 26.000
PB° 15
12,50 m2
USD 26.000
PB° 16
12,50 m2
USD 26.000
1SS° 19
12,50 m2
USD 25.000
PB° 3
12,50 m2
USD 26.000
PB° 4
12,50 m2
USD 25.000
PB° 5
12,50 m2
USD 26.000
PB° 6
12,50 m2
USD 26.000
MOTO 1 SS
5,00 m2
USD 5.000
MOTO 2 SS
5,00 m2
USD 5.000
MOTO 3 SS
5,00 m2
USD 5.000
MOTO 4 SS
5,00 m2
USD 5.000

Locales desde USD 225.000

Superficie: desde 75,00 m2

1 unidades disponibles

1 unidades disponibles

Unidad
Sup.Total
Sup.Cubierta
Cant.Baños
Precio
PB
75,00 m2
0 m2
-
USD 225.000

Ubicación del emprendimiento

Rio de Janeiro 500

Amenities

  • Parrilla
  • Piscina
  • Solarium
  • Sum
  • Ofrece financiación
  • Cuotas: 3
  • Anticipo: 40%
  • Descripción Financiación: Financiacion: 40% de anticipio y 3 cuotas trimestrales de 20%

Código de aviso: 4OE0_225

Contactá al anunciante

Graciela Quintanilla Bienes Raíces

¡Consulta enviada!
¡Consulta enviada!

Contactá al anunciante

Al enviar estás aceptando los términos y condiciones

Error. Intenta de nuevo en unos minutos

¡Consulta enviada!
¡Consulta enviada!

Emprendimientos similares

Ver más emprendimientos similares