Imprimir

Características del emprendimiento

  • Deptos. por Piso: 2
  • Pisos en Edificio: 11
  • Departamentos: 20

EDIFICIO ALMA

Te presentamos una oportunidad inigualable en la mejor ubicación de Ramos Mejía: un proyecto de edificio de categoría donde convergen exclusividad, diseño y confort.

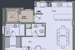
Imponente hall de doble altura y detalles de diseño con desniveles y palieres privados que proporcionan intimidad y exclusividad. Elegante área de usos múltiples equipada con parrilla, solarium y piscina, gimnasio con moderno equipamiento, bauleras y cocheras para mayor comodidad y practicidad.
El edificio está equipado con dos ascensores de última generación con control de acceso mediante tarjetas y un sistema de respaldo eléctrico con grupo electrógeno asegura el funcionamiento ininterrumpido de los servicios esenciales y la tranquilidad que siempre habrá un ascensor disponible.
Acceso mediante moderno sistema digital que permite desactivar llaves electrónicas perdidas manteniendo la seguridad del edificio.
Ocho cámaras de seguridad estratégicamente ubicadas con DVR para monitoreo remoto y respaldo local.
Sistema contra-incendio con presurización positiva en el núcleo de escaleras.

Departamentos premium
Las unidades cuentan con amplios espacios, balcón terraza y parrilla propia. Ambientes modernos y muy luminosos proporcionan espacios acogedores, un toilette y habitaciones con vestidor proporcionan comodidad tanto para los residentes como para las visitas. Terminaciones de primera calidad realzan los matices de elegancia y confort.

Unidades 56 m²
Semipisos 50 m² cubiertos 6 m² balcón Palier privado Balcón terraza
Parrilla individual Dormitorio amplio Vestidor Baño en suite Toilette
Cocina con Isla

Unidades 76 m²
Semipisos 70 m² cubiertos 6 m² balcón Palier privado Balcón terraza
Parrilla individual Baño principal en suite Toilette Vestidor Lavadero
Cocina con Isla Otras distribuciones disponibles

***AMPLIA FINANCIACION DIRECTA ***
ESCUCHAMOS SU PROPUESTA DE PAGO

CONSULTENOS PARA MAS INFORMACION. Whatsapp ******** Linea fija ******** / ********

Unidades disponibles

Monoambientes desde USD 148.780

Superficie: desde 76,00 m2

1 unidades disponibles

1 unidades disponibles

Unidad
Sup.Total
Sup.Cubierta
Baños
Disposición
Precio
-
76,00 m2
70,00 m2
2
Frente
USD 148.780

1 dormitorio desde USD 98.198

Superficie: desde 56,00 m2

1 unidades disponibles

1 unidades disponibles

Unidad
Sup.Total
Sup.Cubierta
Baños
Disposición
Precio
-
56,00 m2
50,00 m2
2
Contrafrente
USD 98.198

Ubicación del emprendimiento

Alsina 162

  • Internet
  • Construye: SERGIO VARIA
  • Dirige: SERGIO VARIA
  • Comercializa: QUINTERO MIRAZON
  • Administra: QUINTERO MIRAZON
  • Ofrece financiación
  • Financiación: CONSTRUCTOR
  • Cuotas: 18
  • Anticipo: 45%
  • Descripción Financiación: AMPLIA FINANCIACION. ANTICIPO Y HASTA 18 CUOTAS. FINANCIACION PERSONALIZADA

Código de aviso: 101961-6389236

Contactá al anunciante

Quintero - Mirazon

¡Consulta enviada!
¡Consulta enviada!

Contactá al anunciante

Al enviar estás aceptando los términos y condiciones

Error. Intenta de nuevo en unos minutos

¡Consulta enviada!
¡Consulta enviada!

Emprendimientos similares

Ver más emprendimientos similares