Imprimir

JUFRÉ HOUSE

(LEP-LE1-564)
Emprendimiento en excelente ubicación.
JUFRÉ HOUSE es un diseño arquitectónico que se desarrollará en 8 pisos con unidades de 1, 2 y 3 ambientes. Ubicado en una excelente zona, a metros de Av. Scalabrini Ortiz y Av. Córdoba respectivamente y a 7 cuadras de Av. Corrientes. En plena zona comercial, cercano a zona de outlets y polo gastronómico.DETALLES DE TERMINACIÓN

CARPINTERÍAS
-Las puertas interiores del dormitorio y baño tendrán marco metálico y las hojas serán de madera pintada con su correspondiente herraje.
-Los placards llevarán su armado interior con su correspondiente frente.
-Puertas y Ventanas al exterior serán de aluminio Línea Módena corredizo con vidrios laminado 4+4 mm.

REVESTIMIENTOS
-Los revestimientos de mampostería en cocina y baños será en cerámico.

COCINAS
-El mueble bajo mesada y las alacenas estarán terminadas en laminado plástico blanco, frente MDF con herrajes.
-Mesada en Stone Quarz color blanco.
-Pileta de acero inoxidable marca Johnson con bacha redonda.
-Grifería monocomando marca FV (o similar).
-Anafe a gas de 4 hornallas, marca Domec (o similar).
-Horno eléctrico, marca Domec (o similar).

BAÑOS
-Artefactos sanitarios, marca Ferrum línea Bari (o similar) con asientos de inodoros.
-Accesorios y griferías, marca FV Cromados línea Puelo (o similar).

INSTALACIÓN DE GAS
-Se realizará con cañería epoxi de acuerdo a las normas establecidas por MetroGas.
-El servicio de agua caliente y calefacción por piso radiante será provisto por una caldera Central individual, marca Peisa (o similar)

Unidades disponibles

Monoambientes desde USD 81.000

Superficie: desde 27,00 m2

1 unidades disponibles

1 unidades disponibles

Unidad
Sup.Total
Sup.Cubierta
Baños
Disposición
Precio
PB° A
27,00 m2
27,00 m2
1
-
USD 81.000

1 dormitorio desde USD 130.000 hasta USD 181.300

Superficie: desde 40,00 m2 hasta 49,00 m2

2 unidades disponibles

2 unidades disponibles

Unidad
Sup.Total
Sup.Cubierta
Baños
Disposición
Precio
2° A
40,00 m2
33,00 m2
1
-
USD 130.000
7° C
49,00 m2
41,00 m2
1
-
USD 181.300

2 dormitorios desde USD 329.000

Superficie: desde 110,00 m2

1 unidades disponibles

1 unidades disponibles

Unidad
Sup.Total
Sup.Cubierta
Baños
Disposición
Precio
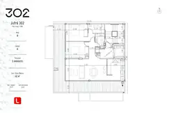
8° A
110,00 m2
70,00 m2
2
Frente
USD 329.000

Ubicación del emprendimiento

Jufré 300

Código de aviso: BB9582837

Contactá al anunciante

LEPORE PROPIEDADES S.A.

¡Consulta enviada!
¡Consulta enviada!

Contactá al anunciante

Al enviar estás aceptando los términos y condiciones

Error. Intenta de nuevo en unos minutos

¡Consulta enviada!
¡Consulta enviada!

Emprendimientos similares

Ver más emprendimientos similares