-
Galpon
-
855 m² Cubierta
-
1 año
-
Bueno
Micro Parque Industrial- Nave 850m2
Dentro de Micro Parque Industrial – Colectora Autopista Rosario-Buenos Aires km 280,5 – Alvear
Características generales:
Superficie cubierta: 850 m²
Lote total: 1.000 m²
Nave nueva, con excelente calidad constructiva
Entorno industrial planificado y seguro
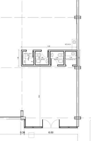
Infraestructura de la nave:
Baño
Vestuario
Kitchenette
Detalles constructivos:
Portón eléctrico de 5 m de alto x 6 m de ancho
Piso de hormigón H25 llaneado de 18 cm con malla y fibra
Techo a dos aguas con estructura metálica de alma llena y cubierta de chapa
Oficinas en construcción.
Alturas:
Altura máxima: 10,70 m
Altura mínima: 7,70 m
Altura a cabriada: 9,30 m
Consultanos para coordinar una visita o recibir más información.
- KP390362 - KPT122705 -
- Publicado usando KiteProp CRM Inmobiliario
Ubicación
Alvear, Departamento de Rosario, Santa Fe
Características
-
Antiguedad: 1
-
Estado: Bueno
Datos básicos
-
Tipo de operación: Alquiler
-
Precio: USD 3.500
Superficie
-
Sup. Cubierta: 855 m2
-
Sup. Total: 855 m2
Código de aviso: 28KP390362
Propiedades Similares
-
USD 3.000
Micro Parque Industrial (Ruta 9 Km. 280, 5 , S2126 Alvear, Santa Fe)
- 850 m² Cubierta
-
USD 3.900
Sobre Colectora Autopista Rosario Buenos Aires
- 1.000 m² Cubierta
- 20 mts Frente
- 50 mts Fondo
-
USD 3.900
Camino El Calden y Colectora de Autopista 0
- 1.000 m² Cubierta
-
USD 3.300
Micro Parque Industrial (Ruta 9 Km. 280, 5 , S2126 Alvear, Santa Fe)
- 850 m² Cubierta