Nave en Construcción Polo 226 - 4.7

USD 441.320

Venta en Mar Del Plata, General Pueyrredon

USD 441.320

  • Galpon

    Galpon

  • 441 m² Cubierta

    441 m² cubie.

  • A Estrenar

    A Estrenar

  • Agua corri.

    Agua corri.

Galpón en Polo 226, con renta

Excelente Nave en Construcción Polo 226
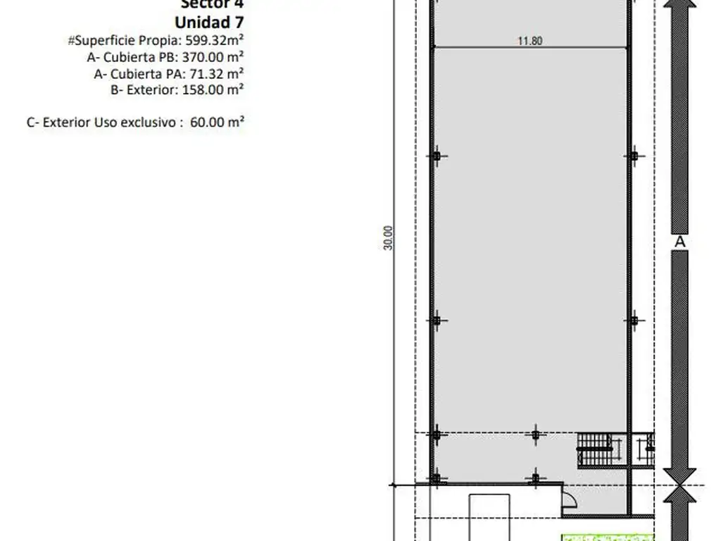
Ubicada en el Sector 4, denominada Nave 4.7, cuenta con 440mts aprox cubiertos, 158mts aprox exteriores y 60mts aprox de uso exterior exclusivo.
La Nave cuenta con espacio exterior de estacionamiento y maniobras.
. Iluminación natural que permite Ahorro Energético.
. Incluye red de Incendios por Rociadores.
. Paneles térmicos de doble chapa, amplios espacios interiores libres de columnas con hasta 10 metros de altura para estiba y playones de hormigón descubiertos propios para maniobras y estacionamiento.

El Polo 226 es un Parque Cerrado con cerco perimetral, vigilancia las 24 horas, acceso controlado y cámaras de seguridad que protegen los activos de las empresas y sus trabajadores.
. Todas las naves cuentan con un sector descubierto propio más un espacio común de uso exclusivo adicional para la unidad permitiendo así contar con estacionamiento propio frente a la nave y amplio sector de maniobras.
. Cableado de Fibra óptica para todo el Polo lo que permite Internet de Alta Velocidad y tecnología IP de comunicación y control de activos.
. Acceso a la ciudad en minutos, sobre la Ruta 226, conectividad con la Ruta 2, Ruta 11 y Ruta 88, hacen que su ubicación sea clave para una eficiencia operativa.

EL Valor es Expresado en Dólares Billete

Ubicación

Mar Del Plata, General Pueyrredon, Costa Atlantica

Características

  • Agua corriente

  • Tipo de operación: Venta

  • Precio: USD 441.320

  • Sup. Cubierta: 441 m2

  • Sup. Descubierta: 158 m2

  • Sup. Total: 599 m2

  • Agua corriente
  • Electricidad
  • Internet
  • Agua corriente
  • Electricidad
  • Luz eléctrica

Código de aviso: PRO-894761

Contactá al anunciante

ESPATOLERO & LORENZO DESARROLLOS INMOBILIARIA