(1) (1)
  • Mar Del Plata

Alquiler

Galpón

USD 1K-4K

Buscar solo avisos en moneda:

Dorm|Amb

Más filtros Más filtros

Características

Superficie cubierta

Nombre de calle y altura

Fot

Servicios

Tipo de anunciante

34 Galpones en Alquiler en Mar Del Plata

1/13
Visto

0

USD 3.197

Nave en alquiler Polo 226 - 4.7

Galpón en Alquiler en Mar Del Plata, General Pueyrredon

ESPATOLERO - LORENZO DESARROLLOS INMOBILIARIA
  • 441 m² cubie.
  • A Estrenar
  • Agua corri.

Galpón en Polo 226, con renta

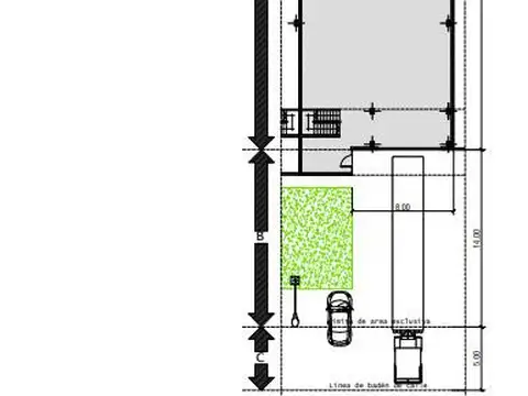
Excelente nave en construcción polo 226 con entrega en enero 2025 ubicada en el sector 4, denominada nave 4.7, cuenta con 440mts aprox cubiertos, 158mts aprox exteriores y 60mts aprox de uso exterior exclusivo. La nave cuenta con espacio exterior de estacionamiento y maniobras. . Iluminación natural que permite ahorro energético. . Incluye red de incendios por rociadores. . Paneles térmicos de doble chapa, amplios espacios interiores libres de columnas con hasta 10 metros de altura para estiba y playones de hormigón descubiertos propios para maniobras y estacionamiento. El polo 226 es un parque cerrado con cerco perimetral, vigilancia las 24 horas, acceso controlado y cámaras de seguridad que protegen los activos de las empresas y sus trabajadores. . Todas las naves cuentan con un sector descubierto propio más un espacio común de uso exclusivo adicional para la unidad permitiendo así contar con estacionamiento propio frente a la nave y amplio sector de maniobras. . Cableado de fibra óptica para todo el polo lo que permite internet de alta velocidad y tecnología ip de comunicación y control de activos. . Acceso a la ciudad en minutos, sobre la ruta 226, conectividad con la ruta 2, ruta 11 y ruta 88, hacen que su ubicación sea clave para una eficiencia operativa. El valor es expresado en dólares oficiales mas ivaexpensas incluidas contrato en pesos se pesifica el día de la reserva a cotización dólar oficial actualización trimestral por índice polo 226 compuesto en un 70% por el índice cedol (distribución urbana sin acompañante) más 30% ipc

Contactar
1/13
Visto

0

USD 1.800

Nave en alquiler Polo 226 - 4.14

Galpón en Alquiler en Mar Del Plata, General Pueyrredon

ESPATOLERO - LORENZO DESARROLLOS INMOBILIARIA
  • 240 m² cubie.
  • A Estrenar
  • Agua corri.

Galpón en Polo 226, con renta

Excelente nave en construcción polo 226 con entrega en enero 2025 ubicada en el sector 4, denominada nave 4.14, cuenta con 240mts aprox cubiertos, 54mts aprox exteriores y 70mts aprox de uso exterior exclusivo. La nave cuenta con espacio exterior de estacionamiento y maniobras. . Iluminación natural que permite ahorro energético. . Incluye red de incendios por rociadores. . Paneles térmicos de doble chapa, amplios espacios interiores libres de columnas con hasta 10 metros de altura para estiba y playones de hormigón descubiertos propios para maniobras y estacionamiento. El polo 226 es un parque cerrado con cerco perimetral, vigilancia las 24 horas, acceso controlado y cámaras de seguridad que protegen los activos de las empresas y sus trabajadores. . Todas las naves cuentan con un sector descubierto propio más un espacio común de uso exclusivo adicional para la unidad permitiendo así contar con estacionamiento propio frente a la nave y amplio sector de maniobras. . Cableado de fibra óptica para todo el polo lo que permite internet de alta velocidad y tecnología ip de comunicación y control de activos. . Acceso a la ciudad en minutos, sobre la ruta 226, conectividad con la ruta 2, ruta 11 y ruta 88, hacen que su ubicación sea clave para una eficiencia operativa. El valor es expresado en dólares oficiales mas iva expensas incluidas contrato en pesosse pesifica el día de la reserva a cotización dólar oficial actualización trimestral por índice polo 226 compuesto en un 70% por el índice cedol (distribución urbana sin acompañante) más 30% ipc

Contactar
1/13
Visto

0

USD 3.412

Nave en alquiler Polo 226 - 4.6

Galpón en Alquiler en Mar Del Plata, General Pueyrredon

ESPATOLERO - LORENZO DESARROLLOS INMOBILIARIA
  • 440 m² cubie.
  • A Estrenar
  • Agua corri.

Galpón en Polo 226, con renta

Excelente nave en construcción polo 226 con entrega en enero 2025 ubicada en el sector 4, denominada nave 4.6, cuenta con 440mts aprox cubiertos, 158mts aprox exteriores y 60mts aprox de uso exterior exclusivo. La nave cuenta con espacio exterior de estacionamiento y maniobras. . Iluminación natural que permite ahorro energético. . Incluye red de incendios por rociadores. . Paneles térmicos de doble chapa, amplios espacios interiores libres de columnas con hasta 10 metros de altura para estiba y playones de hormigón descubiertos propios para maniobras y estacionamiento. El polo 226 es un parque cerrado con cerco perimetral, vigilancia las 24 horas, acceso controlado y cámaras de seguridad que protegen los activos de las empresas y sus trabajadores. . Todas las naves cuentan con un sector descubierto propio más un espacio común de uso exclusivo adicional para la unidad permitiendo así contar con estacionamiento propio frente a la nave y amplio sector de maniobras. . Cableado de fibra óptica para todo el polo lo que permite internet de alta velocidad y tecnología ip de comunicación y control de activos. . Acceso a la ciudad en minutos, sobre la ruta 226, conectividad con la ruta 2, ruta 11 y ruta 88, hacen que su ubicación sea clave para una eficiencia operativa. El valor es expresado en dólares oficiales mas ivaexpensas incluidas contrato en pesos se pesifica el día de la reserva a cotización dólar oficial actualización trimestral por índice polo 226 compuesto en un 70% por el índice cedol (distribución urbana sin acompañante) más 30% ipc

Contactar
1/13
Visto

0

USD 1.800

Nave en alquiler Polo 226 - 4.15

Galpón en Alquiler en Mar Del Plata, General Pueyrredon

ESPATOLERO - LORENZO DESARROLLOS INMOBILIARIA
  • 240 m² cubie.
  • A Estrenar
  • Agua corri.

Galpón en Polo 226, con renta

Excelente nave en construcción polo 226 con entrega en enero 2025 ubicada en el sector 4, denominada nave 4.15, cuenta con 240mts aprox cubiertos, 54mts aprox exteriores y 60mts aprox de uso exterior exclusivo. La nave cuenta con espacio exterior de estacionamiento y maniobras. . Iluminación natural que permite ahorro energético. . Incluye red de incendios por rociadores. . Paneles térmicos de doble chapa, amplios espacios interiores libres de columnas con hasta 10 metros de altura para estiba y playones de hormigón descubiertos propios para maniobras y estacionamiento. El polo 226 es un parque cerrado con cerco perimetral, vigilancia las 24 horas, acceso controlado y cámaras de seguridad que protegen los activos de las empresas y sus trabajadores. . Todas las naves cuentan con un sector descubierto propio más un espacio común de uso exclusivo adicional para la unidad permitiendo así contar con estacionamiento propio frente a la nave y amplio sector de maniobras. . Cableado de fibra óptica para todo el polo lo que permite internet de alta velocidad y tecnología ip de comunicación y control de activos. . Acceso a la ciudad en minutos, sobre la ruta 226, conectividad con la ruta 2, ruta 11 y ruta 88, hacen que su ubicación sea clave para una eficiencia operativa. El valor es expresado en dólares oficiales mas ivaexpensas incluidas contrato en pesos se pesifica el día de la reserva a cotización dólar oficial actualización trimestral por índice polo 226 compuesto en un 70% por el índice cedol (distribución urbana sin acompañante) más 30% ipc

Contactar
1/13
Visto

0

USD 1.800

Nave en alquiler Polo 226 - 4.13

Galpón en Alquiler en Mar Del Plata, General Pueyrredon

ESPATOLERO - LORENZO DESARROLLOS INMOBILIARIA
  • 240 m² cubie.
  • A Estrenar
  • Agua corri.

Galpón en Polo 226, con renta

Excelente nave en construcción polo 226 con entrega en enero 2025 ubicada en el sector 4, denominada nave 4.13, cuenta con 240mts aprox cubiertos, 54mts aprox exteriores y 60mts aprox de uso exterior exclusivo. La nave cuenta con espacio exterior de estacionamiento y maniobras. . Iluminación natural que permite ahorro energético. . Incluye red de incendios por rociadores. . Paneles térmicos de doble chapa, amplios espacios interiores libres de columnas con hasta 10 metros de altura para estiba y playones de hormigón descubiertos propios para maniobras y estacionamiento. El polo 226 es un parque cerrado con cerco perimetral, vigilancia las 24 horas, acceso controlado y cámaras de seguridad que protegen los activos de las empresas y sus trabajadores. . Todas las naves cuentan con un sector descubierto propio más un espacio común de uso exclusivo adicional para la unidad permitiendo así contar con estacionamiento propio frente a la nave y amplio sector de maniobras. . Cableado de fibra óptica para todo el polo lo que permite internet de alta velocidad y tecnología ip de comunicación y control de activos. . Acceso a la ciudad en minutos, sobre la ruta 226, conectividad con la ruta 2, ruta 11 y ruta 88, hacen que su ubicación sea clave para una eficiencia operativa. El valor es expresado en dólares oficiales mas ivaexpensas incluidas contrato en pesos se pesifica el día de la reserva a cotización dólar oficial actualización trimestral por índice polo 226 compuesto en un 70% por el índice cedol (distribución urbana sin acompañante) más 30% ipc

Contactar
1/13
Visto

0

USD 1.800

Nave en alquiler Polo 226 - 4.12

Galpón en Alquiler en Mar Del Plata, General Pueyrredon

ESPATOLERO - LORENZO DESARROLLOS INMOBILIARIA
  • 240 m² cubie.
  • A Estrenar
  • Agua corri.

Galpón en Polo 226, con renta

Excelente nave en construcción polo 226 con entrega en enero 2025 ubicada en el sector 4, denominada nave 4.12, cuenta con 240mts aprox cubiertos, 54mts aprox exteriores y 60mts aprox de uso exterior exclusivo. La nave cuenta con espacio exterior de estacionamiento y maniobras. . Iluminación natural que permite ahorro energético. . Incluye red de incendios por rociadores. . Paneles térmicos de doble chapa, amplios espacios interiores libres de columnas con hasta 10 metros de altura para estiba y playones de hormigón descubiertos propios para maniobras y estacionamiento. El polo 226 es un parque cerrado con cerco perimetral, vigilancia las 24 horas, acceso controlado y cámaras de seguridad que protegen los activos de las empresas y sus trabajadores. . Todas las naves cuentan con un sector descubierto propio más un espacio común de uso exclusivo adicional para la unidad permitiendo así contar con estacionamiento propio frente a la nave y amplio sector de maniobras. . Cableado de fibra óptica para todo el polo lo que permite internet de alta velocidad y tecnología ip de comunicación y control de activos. . Acceso a la ciudad en minutos, sobre la ruta 226, conectividad con la ruta 2, ruta 11 y ruta 88, hacen que su ubicación sea clave para una eficiencia operativa. El valor es expresado en dólares oficiales mas ivaexpensas incluidas contrato en pesos se pesifica el día de la reserva a cotización dólar oficial actualización trimestral por índice polo 226 compuesto en un 70% por el índice cedol (distribución urbana sin acompañante) más 30% ipc

Contactar
1/13
Visto

0

USD 1.800

Nave en alquiler Polo 226 - 4.16

Galpón en Alquiler en Mar Del Plata, General Pueyrredon

ESPATOLERO - LORENZO DESARROLLOS INMOBILIARIA
  • 240 m² cubie.
  • A Estrenar
  • Agua corri.

Galpón en Polo 226, con renta

Excelente nave en construcción polo 226 con entrega en enero 2025 ubicada en el sector 4, denominada nave 4.16, cuenta con 240mts aprox cubiertos, 54mts aprox exteriores y 60mts aprox de uso exterior exclusivo. La nave cuenta con espacio exterior de estacionamiento y maniobras. . Iluminación natural que permite ahorro energético. . Incluye red de incendios por rociadores. . Paneles térmicos de doble chapa, amplios espacios interiores libres de columnas con hasta 10 metros de altura para estiba y playones de hormigón descubiertos propios para maniobras y estacionamiento. El polo 226 es un parque cerrado con cerco perimetral, vigilancia las 24 horas, acceso controlado y cámaras de seguridad que protegen los activos de las empresas y sus trabajadores. . Todas las naves cuentan con un sector descubierto propio más un espacio común de uso exclusivo adicional para la unidad permitiendo así contar con estacionamiento propio frente a la nave y amplio sector de maniobras. . Cableado de fibra óptica para todo el polo lo que permite internet de alta velocidad y tecnología ip de comunicación y control de activos. . Acceso a la ciudad en minutos, sobre la ruta 226, conectividad con la ruta 2, ruta 11 y ruta 88, hacen que su ubicación sea clave para una eficiencia operativa. El valor es expresado en dólares oficiales mas ivaexpensas incluidas contrato en pesos se pesifica el día de la reserva a cotización dólar oficial actualización trimestral por índice polo 226 compuesto en un 70% por el índice cedol (distribución urbana sin acompañante) más 30% ipc

Contactar
1/13
Visto

0

USD 1.815

Nave en alquiler Polo 226 - 4.11

Galpón en Alquiler en Mar Del Plata, General Pueyrredon

ESPATOLERO - LORENZO DESARROLLOS INMOBILIARIA
  • 242 m² cubie.
  • A Estrenar
  • Agua corri.

Galpón en Polo 226, con renta

Excelente nave en construcción polo 226 con entrega en enero 2025 ubicada en el sector 4, denominada nave 4.11, cuenta con 242mts aprox cubiertos, 55mts aprox exteriores y 60mts aprox de uso exterior exclusivo. La nave cuenta con espacio exterior de estacionamiento y maniobras. . Iluminación natural que permite ahorro energético. . Incluye red de incendios por rociadores. . Paneles térmicos de doble chapa, amplios espacios interiores libres de columnas con hasta 10 metros de altura para estiba y playones de hormigón descubiertos propios para maniobras y estacionamiento. El polo 226 es un parque cerrado con cerco perimetral, vigilancia las 24 horas, acceso controlado y cámaras de seguridad que protegen los activos de las empresas y sus trabajadores. . Todas las naves cuentan con un sector descubierto propio más un espacio común de uso exclusivo adicional para la unidad permitiendo así contar con estacionamiento propio frente a la nave y amplio sector de maniobras. . Cableado de fibra óptica para todo el polo lo que permite internet de alta velocidad y tecnología ip de comunicación y control de activos. . Acceso a la ciudad en minutos, sobre la ruta 226, conectividad con la ruta 2, ruta 11 y ruta 88, hacen que su ubicación sea clave para una eficiencia operativa. El valor es expresado en dólares oficiales mas ivaexpensas incluidas contrato en pesos se pesifica el día de la reserva a cotización dólar oficial actualización trimestral por índice polo 226 compuesto en un 70% por el índice cedol (distribución urbana sin acompañante) más 30% ipc

Contactar
1/13
Visto

0

USD 3.221

Nave en alquiler Polo 226 - 4.10

Galpón en Alquiler en Mar Del Plata, General Pueyrredon

ESPATOLERO - LORENZO DESARROLLOS INMOBILIARIA
  • 444 m² cubie.
  • A Estrenar
  • Agua corri.

Galpón en Polo 226, con renta

Excelente nave en construcción polo 226 con entrega en enero 2025 ubicada en el sector 4, denominada nave 4.10, cuenta con 444mts aprox cubiertos, 159mts aprox exteriores y 60mts aprox de uso exterior exclusivo. La nave cuenta con espacio exterior de estacionamiento y maniobras. . Iluminación natural que permite ahorro energético. . Incluye red de incendios por rociadores. . Paneles térmicos de doble chapa, amplios espacios interiores libres de columnas con hasta 10 metros de altura para estiba y playones de hormigón descubiertos propios para maniobras y estacionamiento. El polo 226 es un parque cerrado con cerco perimetral, vigilancia las 24 horas, acceso controlado y cámaras de seguridad que protegen los activos de las empresas y sus trabajadores. . Todas las naves cuentan con un sector descubierto propio más un espacio común de uso exclusivo adicional para la unidad permitiendo así contar con estacionamiento propio frente a la nave y amplio sector de maniobras. . Cableado de fibra óptica para todo el polo lo que permite internet de alta velocidad y tecnología ip de comunicación y control de activos. . Acceso a la ciudad en minutos, sobre la ruta 226, conectividad con la ruta 2, ruta 11 y ruta 88, hacen que su ubicación sea clave para una eficiencia operativa. El valor es expresado en dólares oficiales mas ivaexpensas incluidas contrato en pesos se pesifica el día de la reserva a cotización dólar oficial actualización trimestral por índice polo 226 compuesto en un 70% por el índice cedol (distribución urbana sin acompañante) más 30% ipc

Contactar
1/13
Visto

0

USD 3.190

Nave en alquiler Polo 226 - 4.5

Galpón en Alquiler en Mar Del Plata, General Pueyrredon

ESPATOLERO - LORENZO DESARROLLOS INMOBILIARIA
  • 440 m² cubie.
  • A Estrenar
  • Agua corri.

Galpón en Polo 226, con renta

Excelente nave en construcción polo 226 con entrega en enero 2025 ubicada en el sector 4, denominada nave 4.5, cuenta con 440mts aprox cubiertos, 158mts aprox exteriores y 60mts aprox de uso exterior exclusivo. La nave cuenta con espacio exterior de estacionamiento y maniobras. . Iluminación natural que permite ahorro energético. . Incluye red de incendios por rociadores. . Paneles térmicos de doble chapa, amplios espacios interiores libres de columnas con hasta 10 metros de altura para estiba y playones de hormigón descubiertos propios para maniobras y estacionamiento. El polo 226 es un parque cerrado con cerco perimetral, vigilancia las 24 horas, acceso controlado y cámaras de seguridad que protegen los activos de las empresas y sus trabajadores. . Todas las naves cuentan con un sector descubierto propio más un espacio común de uso exclusivo adicional para la unidad permitiendo así contar con estacionamiento propio frente a la nave y amplio sector de maniobras. . Cableado de fibra óptica para todo el polo lo que permite internet de alta velocidad y tecnología ip de comunicación y control de activos. . Acceso a la ciudad en minutos, sobre la ruta 226, conectividad con la ruta 2, ruta 11 y ruta 88, hacen que su ubicación sea clave para una eficiencia operativa. El valor es expresado en dólares oficiales mas ivaexpensas incluidas contrato en pesos se pesifica el día de la reserva a cotización dólar oficial actualización trimestral por índice polo 226 compuesto en un 70% por el índice cedol (distribución urbana sin acompañante) más 30% ipc

Contactar
1/13
Visto

0

USD 3.190

Nave en alquiler Polo 226 - 4.6

Galpón en Alquiler en Mar Del Plata, General Pueyrredon

ESPATOLERO - LORENZO DESARROLLOS INMOBILIARIA
  • 440 m² cubie.
  • A Estrenar
  • Agua corri.

Galpón en Polo 226, con renta

Excelente nave en construcción polo 226 con entrega en enero 2025 ubicada en el sector 4, denominada nave 4.6, cuenta con 440mts aprox cubiertos, 158mts aprox exteriores y 60mts aprox de uso exterior exclusivo. La nave cuenta con espacio exterior de estacionamiento y maniobras. . Iluminación natural que permite ahorro energético. . Incluye red de incendios por rociadores. . Paneles térmicos de doble chapa, amplios espacios interiores libres de columnas con hasta 10 metros de altura para estiba y playones de hormigón descubiertos propios para maniobras y estacionamiento. El polo 226 es un parque cerrado con cerco perimetral, vigilancia las 24 horas, acceso controlado y cámaras de seguridad que protegen los activos de las empresas y sus trabajadores. . Todas las naves cuentan con un sector descubierto propio más un espacio común de uso exclusivo adicional para la unidad permitiendo así contar con estacionamiento propio frente a la nave y amplio sector de maniobras. . Cableado de fibra óptica para todo el polo lo que permite internet de alta velocidad y tecnología ip de comunicación y control de activos. . Acceso a la ciudad en minutos, sobre la ruta 226, conectividad con la ruta 2, ruta 11 y ruta 88, hacen que su ubicación sea clave para una eficiencia operativa. El valor es expresado en dólares oficiales mas ivaexpensas incluidas contrato en pesos se pesifica el día de la reserva a cotización dólar oficial actualización trimestral por índice polo 226 compuesto en un 70% por el índice cedol (distribución urbana sin acompañante) más 30% ipc

Contactar
1/13
Visto

0

USD 3.197

Nave en alquiler Polo 226 - 4.8

Galpón en Alquiler en Mar Del Plata, General Pueyrredon

ESPATOLERO - LORENZO DESARROLLOS INMOBILIARIA
  • 441 m² cubie.
  • A Estrenar
  • Agua corri.

Galpón en Polo 226, con renta

Excelente nave en construcción polo 226 con entrega en enero 2025 ubicada en el sector 4, denominada nave 4.8, cuenta con 440mts aprox cubiertos, 158mts aprox exteriores y 60mts aprox de uso exterior exclusivo. La nave cuenta con espacio exterior de estacionamiento y maniobras. . Iluminación natural que permite ahorro energético. . Incluye red de incendios por rociadores. . Paneles térmicos de doble chapa, amplios espacios interiores libres de columnas con hasta 10 metros de altura para estiba y playones de hormigón descubiertos propios para maniobras y estacionamiento. El polo 226 es un parque cerrado con cerco perimetral, vigilancia las 24 horas, acceso controlado y cámaras de seguridad que protegen los activos de las empresas y sus trabajadores. . Todas las naves cuentan con un sector descubierto propio más un espacio común de uso exclusivo adicional para la unidad permitiendo así contar con estacionamiento propio frente a la nave y amplio sector de maniobras. . Cableado de fibra óptica para todo el polo lo que permite internet de alta velocidad y tecnología ip de comunicación y control de activos. . Acceso a la ciudad en minutos, sobre la ruta 226, conectividad con la ruta 2, ruta 11 y ruta 88, hacen que su ubicación sea clave para una eficiencia operativa. El valor es expresado en dólares oficiales mas iva expensas incluidas contrato en pesosse pesifica el día de la reserva a cotización dólar oficial actualización trimestral por índice polo 226 compuesto en un 70% por el índice cedol (distribución urbana sin acompañante) más 30% ipc

Contactar
1/13
Visto

0

USD 3.197

Nave en alquiler Polo 226 - 4.9

Galpón en Alquiler en Mar Del Plata, General Pueyrredon

ESPATOLERO - LORENZO DESARROLLOS INMOBILIARIA
  • 441 m² cubie.
  • A Estrenar
  • Agua corri.

Galpón en Polo 226, con renta

Excelente nave en construcción polo 226 con entrega en enero 2025 ubicada en el sector 4, denominada nave 4.9, cuenta con 440mts aprox cubiertos, 158mts aprox exteriores y 60mts aprox de uso exterior exclusivo. La nave cuenta con espacio exterior de estacionamiento y maniobras. . Iluminación natural que permite ahorro energético. . Incluye red de incendios por rociadores. . Paneles térmicos de doble chapa, amplios espacios interiores libres de columnas con hasta 10 metros de altura para estiba y playones de hormigón descubiertos propios para maniobras y estacionamiento. El polo 226 es un parque cerrado con cerco perimetral, vigilancia las 24 horas, acceso controlado y cámaras de seguridad que protegen los activos de las empresas y sus trabajadores. . Todas las naves cuentan con un sector descubierto propio más un espacio común de uso exclusivo adicional para la unidad permitiendo así contar con estacionamiento propio frente a la nave y amplio sector de maniobras. . Cableado de fibra óptica para todo el polo lo que permite internet de alta velocidad y tecnología ip de comunicación y control de activos. . Acceso a la ciudad en minutos, sobre la ruta 226, conectividad con la ruta 2, ruta 11 y ruta 88, hacen que su ubicación sea clave para una eficiencia operativa. El valor es expresado en dólares oficiales mas ivaexpensas incluidas contrato en pesos se pesifica el día de la reserva a cotización dólar oficial actualización trimestral por índice polo 226 compuesto en un 70% por el índice cedol (distribución urbana sin acompañante) más 30% ipc

Contactar
1/18
Visto

0

USD 3.190

Galpón en Polo 226

Galpón en Alquiler en Mar Del Plata, General Pueyrredon

VALENCIA PROPIEDADES
  • 440 m² cubie.
  • A Estrenar
  • Agua corri.

Galpón en Polo 226

Excelente nave en construcción polo 226 con entrega en enero 2025 ubicada en el sector 4, denominada nave 4.5, cuenta con 440 mts.aprox cubiertos, 158 mts.aprox exteriores y 60 mts.aprox de uso exterior exclusivo. La nave cuenta con espacio exterior de estacionamiento y maniobras. . Iluminación natural que permite ahorro energético. . Incluye red de incendios por rociadores. . Paneles térmicos de doble chapa, amplios espacios interiores libres de columnas con hasta 10 metros de altura para estiba y playones de hormigón descubiertos propios para maniobras y estacionamiento. El polo 226 es un parque cerrado con cerco perimetral, vigilancia las 24 horas, acceso controlado y cámaras de seguridad que protegen los activos de las empresas y sus trabajadores. . Todas las naves cuentan con un sector descubierto propio más un espacio común de uso exclusivo adicional para la unidad permitiendo así contar con estacionamiento propio frente a la nave y amplio sector de maniobras. . Cableado de fibra óptica para todo el polo lo que permite internet de alta velocidad y tecnología ip de comunicación y control de activos. . Acceso a la ciudad en minutos, sobre la ruta 226, conectividad con la ruta 2, ruta 11 y ruta 88, hacen que su ubicación sea clave para una eficiencia operativa. El valor es expresado en dólares oficiales mas iva expensas incluidas contrato en pesos se pesifica el día de la reserva a cotización dólar oficial actualización trimestral por índice polo 226 compuesto en un 70% por el índice cedol (distribución urbana sin acompañante) más 30% ipc

Contactar
1/18
Visto

0

USD 3.190

Galpón en Polo 226

Galpón en Alquiler en Mar Del Plata, General Pueyrredon

VALENCIA PROPIEDADES
  • 440 m² cubie.
  • A Estrenar
  • Agua corri.

Galpón en Polo 226

Excelente nave en construcción polo 226 con entrega en enero 2025 ubicada en el sector 4, denominada nave 4.6, cuenta con 440 mts.aprox cubiertos, 159 mts.aprox exteriores y 60 mts.aprox de uso exterior exclusivo. La nave cuenta con espacio exterior de estacionamiento y maniobras. . Iluminación natural que permite ahorro energético. . Incluye red de incendios por rociadores. . Paneles térmicos de doble chapa, amplios espacios interiores libres de columnas con hasta 10 metros de altura para estiba y playones de hormigón descubiertos propios para maniobras y estacionamiento. El polo 226 es un parque cerrado con cerco perimetral, vigilancia las 24 horas, acceso controlado y cámaras de seguridad que protegen los activos de las empresas y sus trabajadores. . Todas las naves cuentan con un sector descubierto propio más un espacio común de uso exclusivo adicional para la unidad permitiendo así contar con estacionamiento propio frente a la nave y amplio sector de maniobras. . Cableado de fibra óptica para todo el polo lo que permite internet de alta velocidad y tecnología ip de comunicación y control de activos. . Acceso a la ciudad en minutos, sobre la ruta 226, conectividad con la ruta 2, ruta 11 y ruta 88, hacen que su ubicación sea clave para una eficiencia operativa. El valor es expresado en dólares oficiales mas iva expensas incluidas contrato en pesos se pesifica el día de la reserva a cotización dólar oficial actualización trimestral por índice polo 226 compuesto en un 70% por el índice cedol (distribución urbana sin acompañante) más 30% ipc

Contactar
1/18
Visto

0

USD 3.190

Galpón en Polo 226

Galpón en Alquiler en Mar Del Plata, General Pueyrredon

VALENCIA PROPIEDADES
  • 440 m² cubie.
  • A Estrenar
  • Agua corri.

Galpón en Polo 226

Excelente nave en construcción polo 226 con entrega en enero 2025 ubicada en el sector 4, denominada nave 4.8, cuenta con 440 mts.aprox cubiertos, 158 mts.aprox exteriores y 60 mts.aprox de uso exterior exclusivo. La nave cuenta con espacio exterior de estacionamiento y maniobras. . Iluminación natural que permite ahorro energético. . Incluye red de incendios por rociadores. . Paneles térmicos de doble chapa, amplios espacios interiores libres de columnas con hasta 10 metros de altura para estiba y playones de hormigón descubiertos propios para maniobras y estacionamiento. El polo 226 es un parque cerrado con cerco perimetral, vigilancia las 24 horas, acceso controlado y cámaras de seguridad que protegen los activos de las empresas y sus trabajadores. . Todas las naves cuentan con un sector descubierto propio más un espacio común de uso exclusivo adicional para la unidad permitiendo así contar con estacionamiento propio frente a la nave y amplio sector de maniobras. . Cableado de fibra óptica para todo el polo lo que permite internet de alta velocidad y tecnología ip de comunicación y control de activos. . Acceso a la ciudad en minutos, sobre la ruta 226, conectividad con la ruta 2, ruta 11 y ruta 88, hacen que su ubicación sea clave para una eficiencia operativa. El valor es expresado en dólares oficiales mas iva expensas incluidas contrato en pesos se pesifica el día de la reserva a cotización dólar oficial actualización trimestral por índice polo 226 compuesto en un 70% por el índice cedol (distribución urbana sin acompañante) más 30% ipc

Contactar