(1) (1)
  • Fisherton

Venta

Galpón

USD 120K-135K

Buscar solo avisos en moneda:

Dorm|Amb

Más filtros Más filtros

Características

Superficie cubierta

Nombre de calle y altura

Fot

Servicios

Tipo de anunciante

5 Galpones en Venta en Fisherton

1/6
Visto

1

USD 130.000

Rosario - Fisherton - Av General de División Hernán Pujato

Galpón en Venta en Fisherton, Rosario

SI INMOBILIARIA
  • 100 m² cubie.
  • 16 mts Frente
  • 25 mts Fondo

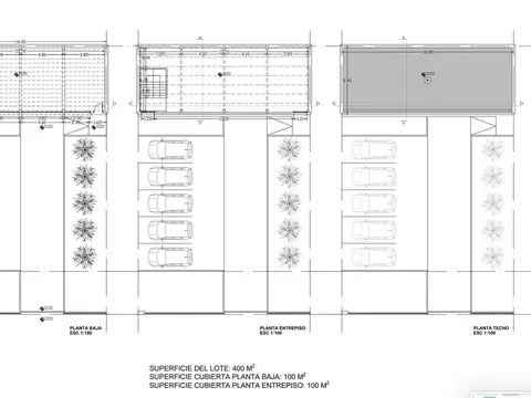
Local comercial con deposito para usos mixtos en Fisherton

Nave comercial de 100 m2 para usos mixtos en fisherton ubicación estratégica sobre la zona: se encuentra en una ubicación de alto potencial, sobre la calle av. General de división hernán pujato, entre las calles lago puelo y sánchez de loria bis. Su cercanía con la av. Circunvalación y av. Jorge newbery garantiza un acceso rápido y directo a las principales arterias de la ciudad, brindando una conexión ágil a otros puntos clave de rosario y la región. Sobre el inmueble: cada unidad cuenta con 100 m2 está diseñado para usos mixtos, adaptándose a diversas necesidades comerciales o industriales. Se distribuye en dos niveles y cuenta con: -planta baja con amplio depósito ideal para almacenamiento o área de trabajo. -Baño/toilette y kitchenette para optimizar las tareas diarias. -Oficina en planta alta, con vistas a la zona de trabajo. Financiación: 30% de anticipo y el saldo financiado en 24 cuotas. Entrega: se estima para el año 2026, brindando tiempo para la planificación y adecuación del espacio según las necesidades del comprador. Una oportunidad única para empresas que buscan posicionarse en una zona estratégica, con excelente conectividad y un diseño funcional. Contáctanos para más detalles o para agendar una visita!

Contactar
1/5
Visto

0

USD 125.000

Bernheim al 9200

Galpón en Venta en Fisherton, Rosario

Imperia Propiedades
  • 185 m² cubie.
  • 6 mts Frente
  • 28 mts Fondo

Venta galpon comercial tierra nueva fisherton

Bernheim y calle 1633 galpon con local comercial 180 m2 zonificación: propiedad ubicada en inmejorable zona para destino logistica, zona periferica de la cuidad, a solo 4 cuadras del av mendoza, zona estadio mundialista de hockey accesos:r9 - au. Ros-cba - av. Calasanz - av. Wilde - av. Fuerza aérea tipología: galpon con local comercial, 40 m2 de local aprox + 140 m2 de galpon libres 7mts de altura . 6,33 mts de frente 30 de fondo. Distribución: se accede desde la calle 1633 a través de un ingreso exclusivo, al frente local comercial y al fondo galpon libre de 140m2. Características: terminaciones: piso hormigón llaneado, paredes de ladrillo con revoque y material de frente, color gris, techo de chapa a 1 agua. - Pre instalacion de baño - epe - categoría 2 para establecimientos industriales medidas: sup. Cubierta: 180m2 local: 40m2 galpon: 140m2 extras: - pre instalacion de baño - videovigilancia 24 hs para mas información no dudar en consultar. Nota: las medidas y superficies expuestas son estimativas y a corroborar con sus respectivos planos y títulos. Todas las fotos publicadas son propiedad intelectual de imperia real estaete s.R.L. No es permitida su utilización comercial. La publicación de este inmueble es a solo título informativo, la venta de la propiedad está supeditada a que el propietario cumplimente el trámite ante arca para la obtención del número de coti correspondiente. La información no es contractual.

Contactar
1/18
Visto

0

USD 130.000

Suinda al 700

Galpón en Venta en Fisherton, Rosario

Imperia Propiedades
  • 180 m² cubie.
  • 6 mts Frente
  • 30 mts Fondo

Venta deposito tierra nueva

Suinda 750 - fisherton deposito 180m2 (aproximadamente) zonificación: propiedad ubicada en inmejorable ubicación para destino logística, en zona periférica de la cuidad, a solo 1 cuadra del estadio mundialista de hockey. Accesos: r9 - au. Ros-cba - av. Calasanz - av. Wilde - av. Fuerza aérea tipología: galpón con local comercial, 40 m2 de local + 140 m2 de galpón libres 7mts de altura . 6,33 mts de frente 30 de fondo. Distribución: se accede desde la calle suinda a través de un ingreso exclusivo, al frente local comercial y al fondo galpón libre de 140m2. Características: terminaciones: piso hormigón llaneado, paredes de ladrillo con revoque y material de frente, color gris, techo de chapa a 1 agua. - Pre instalación de baño - epe - gas ( a instalar ) - categoría 2 para establecimientos industriales extras: - pre instalación de baño - videovigilancia 24 hs para mas información no dudar en consultar. Nota: las medidas informadas incluyen el 50% de los muros medianeros y el 100% de los muros interiores. Las medidas y superficies expuestas son estimativas y a corroborar con sus respectivos planos y títulos. La publicación de este inmueble es a solo título informativo, la venta de la propiedad está supeditada a que el propietario cumplimente el trámite ante la afip para la obtención del número de coti correspondiente. La información no es contractual. Nota: las medidas y superficies expuestas son estimativas y a corroborar con sus respectivos planos y títulos. Todas las fotos publicadas son propiedad intelectual de imperia real estaete s.R.L. No es permitida su utilización comercial. La publicación de este inmueble es a solo título informativo, la venta de la propiedad está supeditada a que el propietario cumplimente el trámite ante arca para la obtención del número de coti correspondiente. La información no es contractual.

Contactar