(1) (1)
  • G.B.A. Zona Sur

Venta

Galpón

Precio

Buscar solo avisos en moneda:

Dorm|Amb

Más filtros Más filtros

Características

Superficie cubierta

Nombre de calle y altura

Fot

Servicios

Tipo de anunciante

1.345 Galpones en Venta en G.B.A. Zona Sur

1/49
Visto

112

USD 1.980.000

Mejico 459

Galpón en Venta en Piñeyro, Avellaneda

SANDRA TOLONI PROPIEDADES
  • 2.000 m² cubie.
  • 20 años
  • 226

VENTA GALPÓN INDUSTRIAL C/OFICINAS EN PIÑEYRO, AVELLANEDA

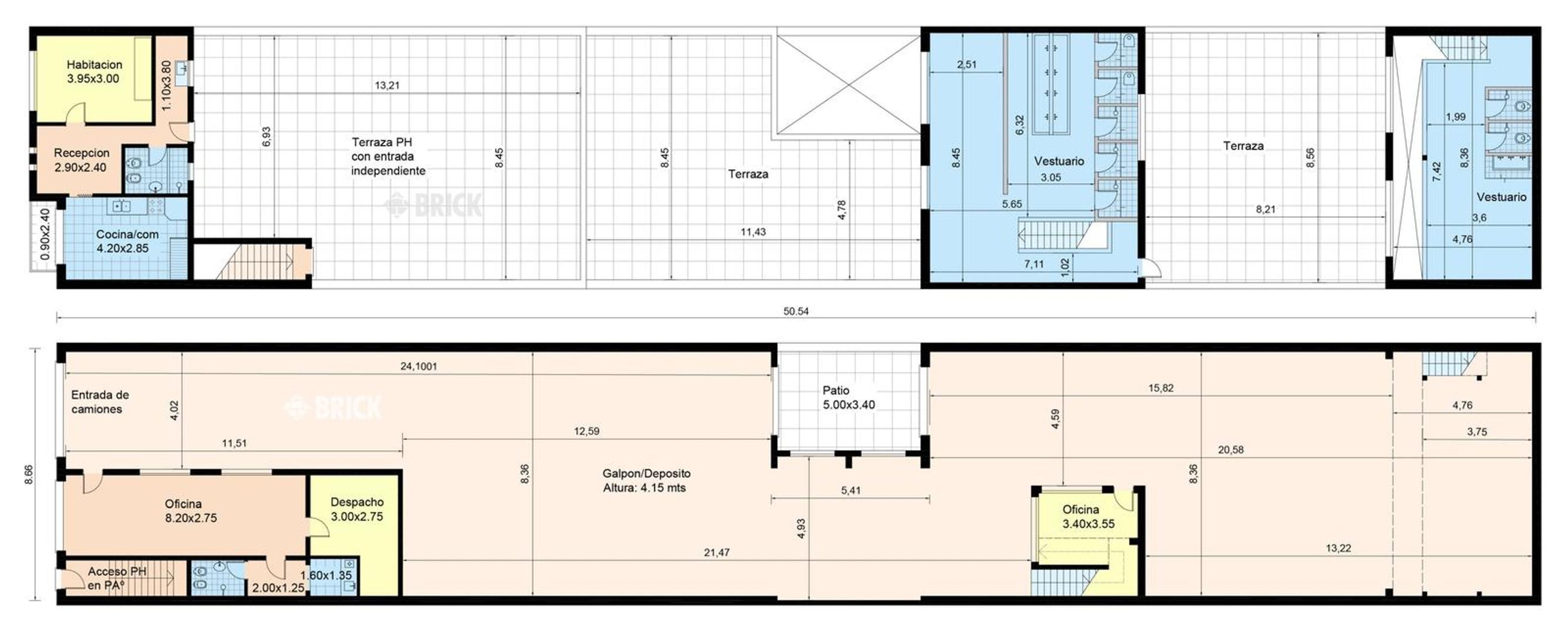
¡Increíble galpón industrial en venta en piñeyro, avellaneda! Ubicado en una zona estratégica de piñeyro, a solo 4 cuadras de av. Hipólito yrigoyen (ruta 205), este galpón garantiza una excelente conectividad y acceso rápido a arterias principales. Este galpón industrial de grandes dimensiones, donde actualmente funciona una imprenta, ofrece múltiples destinos: para uso comercial, industrial o residencial, ideal para desarrollos inmobiliarios. La propiedad está distribuida en tres lotes de terreno y presenta cuatro áreas principales: producción, almacenamiento, oficinas y servicios, además de un amplio espacio descubierto (terraza). El galpón cuenta con 2 naves industriales en l, construidas sobre una platea hormigonada de 45 cm de altura, diseñada para soportar grandes pesos. La misma situación se presenta en los entrepisos. Ofrece una distribución funcional que incluye: - 7 oficinas, sala de recepción, hall de ingreso, y una sala de administración y/ gerencial. - Sanitarios completos para operarios (separados por género), duchas, vestuarios, además de baños para personal administrativo y gerentes. - 2 cocinas totalmente equipadas y 2 comedores (por cada piso). - 4 depósitos. - Montacarga con capacidad de 800 kg y 3 escaleras que facilitan el movimiento interno. - Sala de máquinas. - Garita de seguridad y sector de vigilancia 24 horas. - Sistema de prevención contra incendios y múltiples aires acondicionados frío/calor. - Excelente aireación y ventilación. Los portones de gran tamaño, tanto en ancho como en alto, están preparados para el acceso de camiones de gran porte, complementados por la altura de los techos que facilita el ingreso de vehículos industriales. El galpón cuenta con entrada y salida a dos calles, ofreciendo excelente logística y circulación. Cuenta con todos los servicios activos y en correcto funcionamiento: gas natural, tendido eléctrico trifásico, agua corriente, red cloacal e internet. ¡Apto crédito! ¡No dejes pasar esta oportunidad única! Contáctanos para más información o coordinar una visita. Se deja constancia que las medidas, superficies, m2 y proporciones consignadas son aproximados, al igual que las medidas parciales y/o de los ambientes está sujeto a verificación y/o ajuste. El precio del inmueble puede ser modificado sin previo aviso. Fotos de carácter no contractual. En cumplimiento de las leyes vigentes que regulan el corretaje inmobiliario, ley nacional 25.028, ley 22.802 de lealtad comercial, ley 10.973, ley 24.240 de defensa al consumidor, las normas del código civil y comercial de la nación y constitucionales, dnu 70/2023 y actual ley de bases de la nación. La presente publicación describe las características esenciales del inmueble, debiéndose consultar al corredor público inmobiliario responsable de la operación por la eventual actualización de las medidas, descripciones arquitectónicas y funcionales, valores de expensas, servicios, impuestos, precios y demás información, cuyos valores son aproximados. Corredora responsable: mart. Sandra toloni mat. 7715 t xiv f 92 cmcpdjlp / mat. 9324 t 2 f 48 cucicba

Contactar
1/6
Visto

111

USD 349.000

Anatole France al 400

Galpón en Venta en Avellaneda, Buenos Aires

GIMENEZ INMUEBLES
  • 750 m² cubie.
  • 17 mts Frente
  • 40 mts Fondo

Venta - Galpon - Deposito - Avellaneda

Depósito en alquiler o venta en esquina. Con frente sobre anatole france tenemos un sector de oficinas en dos plantas de aprox 140 m2 con 8 despachos y dos sectores de baños. Entrada peatonal y una entrada de camiones. Sobre comodoro rivadavia entrada de contenedor. Depósito con 7 m de altura, libre de columnas. Pisos de hormigon h30 en impecables condiciones. Libre de columnas. Agostinelli de gimenez cmcpsi 5839 - cucicba 3682 venta supeditada al cumplimiento por parte del propietario de los requisitos de la resolución general no 2371 de la afip (pedido de coti). Aviso importante: toda la información expresada en este anuncio: medidas, memoria descriptiva, precios, valores, fotografías, renders, impuestos y servicios, expensas, plazos de entrega, etc. Fueron provistas por nuestros comitentes o por el desarrollador, y pueden no estar actualizados al momento de este aviso por lo que pueden arrojar discrepancias. La información exacta, surgirá de los títulos, planos y demás documentación legal del inmueble. Las publicaciones no son vinculantes ni contractuales, contienen datos expresados a título orientativo, aproximadas y deberán ratificarse con la documentación pertinente y no compromete contractualmente a nuestra empresa. Los gastos de expresados refieren a la última información sujetos a confirmación. Gimenez inmuebles s.A recomienda al interesado, realizar las verificaciones respectivas de la documentación que estimen necesaria, previa a la concreción de una operación. A tales fines gimenez inmuebles s.A facilitara todo lo que el cliente requiera a total satisfacción y conocimiento, poniéndose a entera disposición.

Contactar
1/5
Visto

107

USD 150.000

Av. Cabildo al 400

Galpón en Venta en Piñeyro, Avellaneda

GIMENEZ INMUEBLES
  • 200 m² cubie.
  • 8 mts Frente
  • 23 mts Fondo

Depósito - Venta - Avellaneda

Depósito en venta en piñeyro excelente ubicación sobre av. Cabildo, a metros de hipólito yrigoyen ubicado en una zona estratégica de avellaneda, sobre la transitada av. Cabildo y a pasos de la arteria principal hipólito yrigoyen, este depósito ofrece una excelente oportunidad tanto para uso logístico como comercial. La propiedad cuenta con una superficie total de 200 m2, lo que permite una gran versatilidad de usos. Características destacadas: altura de techos: 6,7 metros, ideal para almacenamiento en altura. Acceso vehicular, pensados para carga y descarga eficiente. Zonificación apta para distintos destinos industriales o comerciales. Una propiedad con gran potencial, en una ubicación con excelente conectividad y visibilidad. Agostinelli de gimenez cmcpsi 5839 - cucicba 3682 venta supeditada al cumplimiento por parte del propietario de los requisitos de la resolución general no 2371 de la afip (pedido de coti). Aviso importante: toda la información expresada en este anuncio: medidas, memoria descriptiva, precios, valores, fotografías, renders, impuestos y servicios, expensas, plazos de entrega, etc. Fueron provistas por nuestros comitentes o por el desarrollador, y pueden no estar actualizados al momento de este aviso por lo que pueden arrojar discrepancias. La información exacta, surgirá de los títulos, planos y demás documentación legal del inmueble. Las publicaciones no son vinculantes ni contractuales, contienen datos expresados a título orientativo, aproximadas y deberán ratificarse con la documentación pertinente y no compromete contractualmente a nuestra empresa. Los gastos de expresados refieren a la última información sujetos a confirmación. Gimenez inmuebles s.A recomienda al interesado, realizar las verificaciones respectivas de la documentación que estimen necesaria, previa a la concreción de una operación. A tales fines gimenez inmuebles s.A facilitara todo lo que el cliente requiera a total satisfacción y conocimiento, poniéndose a entera disposición.

Contactar
1/24
Visto

106

USD 570.000

Av. Cabildo al 400

Galpón en Venta en Piñeyro, Avellaneda

GIMENEZ INMUEBLES
  • 955 m² cubie.
  • 20 mts Frente
  • 30 mts Fondo

Depósito - Venta - Avellaneda

Depósito en venta en piñeyro excelente ubicación sobre av. Cabildo, a metros de hipólito yrigoyen ubicado en una zona estratégica de avellaneda, sobre la transitada av. Cabildo y a pasos de la arteria principal hipólito yrigoyen, este depósito ofrece una excelente oportunidad tanto para uso logístico como comercial. La propiedad cuenta con una superficie total de 955 m2, distribuidos en 565 m2 en planta baja y 390 m2 en planta alta, lo que permite una gran versatilidad de usos. Actualmente se encuentra dividido en tres sectores de depósito, que pueden integrarse fácilmente para optimizar el espacio según las necesidades del comprador. Características destacadas: altura de techos: 6,7 metros, ideal para almacenamiento en altura. Espacio previsto para montacargas, lo que facilita la operatividad entre plantas. Accesos vehiculares múltiples, pensados para carga y descarga eficiente. Zonificación apta para distintos destinos industriales o comerciales. Una propiedad con gran potencial, en una ubicación con excelente conectividad y visibilidad. Agostinelli de gimenez cmcpsi 5839 - cucicba 3682 venta supeditada al cumplimiento por parte del propietario de los requisitos de la resolución general no 2371 de la afip (pedido de coti). Aviso importante: toda la información expresada en este anuncio: medidas, memoria descriptiva, precios, valores, fotografías, renders, impuestos y servicios, expensas, plazos de entrega, etc. Fueron provistas por nuestros comitentes o por el desarrollador, y pueden no estar actualizados al momento de este aviso por lo que pueden arrojar discrepancias. La información exacta, surgirá de los títulos, planos y demás documentación legal del inmueble. Las publicaciones no son vinculantes ni contractuales, contienen datos expresados a título orientativo, aproximadas y deberán ratificarse con la documentación pertinente y no compromete contractualmente a nuestra empresa. Los gastos de expresados refieren a la última información sujetos a confirmación. Gimenez inmuebles s.A recomienda al interesado, realizar las verificaciones respectivas de la documentación que estimen necesaria, previa a la concreción de una operación. A tales fines gimenez inmuebles s.A facilitara todo lo que el cliente requiera a total satisfacción y conocimiento, poniéndose a entera disposición.

Contactar
1/16
Visto

105

USD 7.500.000

Pienovi 1092

Galpón en Venta en Avellaneda, Buenos Aires

GIMENEZ INMUEBLES
  • 12.336 m² cubie.
  • A Estrenar

Deposito en Avellaneda - Venta

El inmueble se encuentra en el partido de avellaneda, localidad piñeyro, a muy pocos metros del puente victorino de la plaza, que comunica con capital federal. Terreno de 24.324,06m2 de superficie aproximada,distribuidos en 12.336,97m2 cubiertos, y 11.987,45m2 descubiertos aprox. Los metros cuadrados descubiertos cuentan con una superficie de tierra apisonada que permite la circulación de camiones y vehículos pesados. Los metros cuadrados cubiertos se componen de sector depósito con techo a 10 mts de altura, con red de incendio por hidrantes, piso de hormigón de alta resistencia, y entrada de camiones; mas un sector de oficinas de aproximadamente 450m2, con piso de cerámica, divisiones desmontables, y aire acondicionado central. Agostinelli de gimenez cmcpsi 5839 - cucicba 3682 venta supeditada al cumplimiento por parte del propietario de los requisitos de la resolución general no 2371 de la afip (pedido de coti). Aviso importante: toda la información expresada en este anuncio: medidas, memoria descriptiva, precios, valores, fotografías, renders, impuestos y servicios, expensas, plazos de entrega, etc. Fueron provistas por nuestros comitentes o por el desarrollador, y pueden no estar actualizados al momento de este aviso por lo que pueden arrojar discrepancias. La información exacta, surgirá de los títulos, planos y demás documentación legal del inmueble. Las publicaciones no son vinculantes ni contractuales, contienen datos expresados a título orientativo, aproximadas y deberán ratificarse con la documentación pertinente y no compromete contractualmente a nuestra empresa. Los gastos de expresados refieren a la última información sujetos a confirmación. Gimenez inmuebles s.A recomienda al interesado, realizar las verificaciones respectivas de la documentación que estimen necesaria, previa a la concreción de una operación. A tales fines gimenez inmuebles s.A facilitara todo lo que el cliente requiera a total satisfacción y conocimiento, poniéndose a entera disposición.

Contactar