(1) (1)
  • Campos De Roca

Venta

Propiedad

USD hasta 25K

Buscar solo avisos en moneda:

Dorm|Amb

Dormitorios

  • 1
  • 2
  • 3
  • 4
  • 5+

Ambientes

  • Mono.
  • 2
  • 3
  • 4
  • 5+

Más filtros Más filtros

Dormitorios

  • 1
  • 2
  • 3
  • 4
  • 5+

Ambientes

  • Mono.
  • 2
  • 3
  • 4
  • 5+

Características

Superficie cubierta

Cocheras

Baños

Nombre de calle y altura

Tipo de urbanización

Servicios

Estado de obra

Tipo de anunciante

18 Propiedades e Inmuebles en Venta en Campos De Roca

1/9
Visto

0

USD 15.000

Consultar dirección

Terreno en Venta en Campos De Roca, Countries y Barrios Cerrados en La Plata

  • 2.280 m² Total

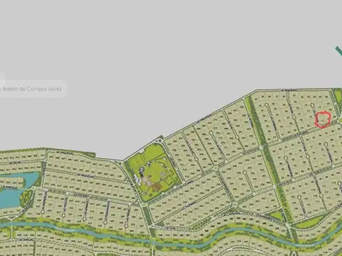
CAMPOS DE ROCA 2 LOTE EN VENTA DE 2280 M2

Corredor responsable: daniel guindani cmcpdjlp 7463 / maria delia piñeiro cpi 8976 - contacto: maria delia piñeiro campos de roca 2 terreno en venta de 2280 m2 - se acepta financiacion de 50% este lote tiene muy facil acceso a la calle que tiene salida al centro comercial de haras del sur sin tener la necesidad de tener que salir a la ruta 2 para llegar al mismo, como asi tambien el facil acceso al colegio. Lote nº 484 acepta financiación - posible toma de vehiculo el barrio posee dos piscinas in-out y semi-olímpica, gimnasio, 2 canchas fútbol 11, basquet, voley, 2 canchas de tenis de polvo de ladrillo, 2 de paddle, plaza infantil, colonia para niños todo el año, salón de usos múltiples, spa y restaurant el caldén. También se puede ingresar al restaurant de campos de roca ii a solo 30 minutos de la plata y 40 minutos de capital federal amenities del barrio el club house cuenta con distintas salas de uso común: living room, sala de lectura, sala de juegos para adultos, sala para niños, restaurant el calden, salón de usos múltiples, gimnasio . Dentro de sus 1600 mts2, encontramos campos spa con: sala de masajes, ducha escocesa, baño turco, sauna seco, sala de rélax, jacuzzi y piscina in/out. El arroyo es un curso de agua natural que atraviesa el barrio en su mayor extensión, posee tres puentes vehiculares que conectan ambos sectores de la urbanización. A sus márgenes se ha diseñado una senda aeróbica y un paseo verde para la realización de actividades deportivas. Parque central en sus 10 hectáreas, junto al club house, se encuentra el área deportiva con 2 canchas de fútbol de 11, 2 canchas de tenis construidas de polvo de ladrillos, 2 canchas de paddle, playón multi deportes para la práctica de básquet, cancha de vóley sobre césped, pileta exterior, vestuarios y un área de juegos infantiles. Las lagunas campos de roca ii posee dos lagunas, una de 45.000 m2 y otra de 15.000 m2 que ofrecen la posibilidad de practicar actividades náuticas sin motor, como son remo y kayak. Servicios seguridad privada las 24 horas, energía eléctrica, alumbrado público, agua por perforación individual, tv satelital, telefonía e internet inalámbrica (servicios brindado por empresas externa) - acepta financiación - no esta escriturado rau s.R.L. No ejerce el corretaje inmobiliario. El presente sitio web es una plataforma en donde cada oficina inmobiliaria independiente que contrata los servicios re/max puede publicar las propiedades a su cargo. Cada oficina es de propiedad y gestión independiente, por lo que rau s.R.L. No interviene en los datos de la publicación, en la operación inmobiliaria, ni en la confección y/o firma del boleto de compraventa y/o escritura y/o contrato de alquiler. En cumplimiento de las leyes vigentes que regulan el corretaje inmobiliario, ley nacional 25.028, ley 22.802 de lealtad comercial, ley 24.240 de defensa al consumidor, las normas del código civil y comercial de la nación y constitucionales, los agentes/gestores no ejercen el corretaje inmobiliario. Todas las operaciones inmobiliarias son objeto de intermediación y conclusión por parte del corredor público inmobiliario colegiado a cargo de la publicación, cuyos datos se exhiben en la presente. La presente publicación describe las características esenciales del inmueble, debiéndose consultar al corredor público inmobiliario responsable de la operación por la eventual actualización de las medidas, descripciones arquitectónicas y funcionales, valores de expensas, servicios, impuestos, precios y demás información, cuyos valores son aproximados.

Contactar
1/5
Visto

0

USD 20.000

Consultar dirección

Terreno en Venta en Campos De Roca, Countries y Barrios Cerrados en La Plata

REMAX Sur
  • 2.072 m² Total
  • Excelente

LOTE EN VENTA OPORTUNIDAD EN CAMPOS DE ROCA II

Corredor responsable: martin veltri cmq 805 / eduardo a. Garbuglia cucicba 196 - contacto: agustina lara venta de lote en campos de roca ii – oportunidad única lote n° 481, con una superficie de 2.072 m², ubicado en el exclusivo barrio privado campos de roca ii, en el partido de coronel brandsen, sobre ruta 2, km 65. Valor de venta: u$s 20.000 una excelente oportunidad de inversión en un entorno natural y seguro. Características del barrio: seguridad y vigilancia las 24 horas. Club house de uso social y recreativo. Piscina y solárium. Canchas de fútbol, tenis y actividades deportivas. Amplios espacios verdes y lagunas artificiales. Accesos ágiles a caba y a la ciudad de la plata. Campos de roca ii se destaca por su equilibrio entre naturaleza, confort y servicios, convirtiéndose en un lugar ideal tanto para vivienda permanente como para disfrutar de fines de semana y descanso en familia. Este lote, por su superficie y valor, representa una oportunidad única para quienes buscan invertir en un barrio privado de jerarquía y proyección. ¿Queres venir a conocerlo? Mudate a la vida que queres la venta queda sujeta al cumplimiento por parte del propietario de lo establecido por la resolución general nº 2371 de afip (coti) todas las propiedades que figuran en mi perfil se encuentran a cargo del profesional matriculado de la oficina, la intermediación y la conclusión de las operaciones serán llevadas exclusivamente por él. Martin veltri col. 805 rau s.R.L. No ejerce el corretaje inmobiliario. El presente sitio web es una plataforma en donde cada oficina inmobiliaria independiente que contrata los servicios re/max puede publicar las propiedades a su cargo. Cada oficina es de propiedad y gestión independiente, por lo que rau s.R.L. No interviene en los datos de la publicación, en la operación inmobiliaria, ni en la confección y/o firma del boleto de compraventa y/o escritura y/o contrato de alquiler. En cumplimiento de las leyes vigentes que regulan el corretaje inmobiliario, ley nacional 25.028, ley 22.802 de lealtad comercial, ley 24.240 de defensa al consumidor, las normas del código civil y comercial de la nación y constitucionales, los agentes/gestores no ejercen el corretaje inmobiliario. Todas las operaciones inmobiliarias son objeto de intermediación y conclusión por parte del corredor público inmobiliario colegiado a cargo de la publicación, cuyos datos se exhiben en la presente. La presente publicación describe las características esenciales del inmueble, debiéndose consultar al corredor público inmobiliario responsable de la operación por la eventual actualización de las medidas, descripciones arquitectónicas y funcionales, valores de expensas, servicios, impuestos, precios y demás información, cuyos valores son aproximados.

Contactar
1/3
Visto

0

USD 20.000

RUTA 2 KM. 65

Terreno en Venta en Campos De Roca, Countries y Barrios Cerrados en La Plata

REMAX Diagonal II
  • 2.065 m² Total
  • Excelente

LOTE EN VENTA CAMPOS DE ROCA 2

Corredor responsable: andrés alí cmcpdjlp 7428 - contacto: héctor ghiglino lote en venta campos de roca 2 brandsen 2.100 m2 escriturado terreno en ph. Ubicado en el desarrollo inmobiliario campos de roca 2, sobre ruta 2 km 65, partido de coronel brandsen, provincia de buenos aires. Lote de 2.100 m² con dimensiones de 35 metros de frente por 60 metros de fondo, escriturado y en estado impecable. El predio ofrece infraestructura de primer nivel con servicios completos que garantizan seguridad y confort. Cuenta con vigilancia privada permanente, red de energía eléctrica y alumbrado público que aseguran tranquilidad y visibilidad durante las 24 horas. Entre sus principales amenities se destacan: parque central de 10 hectáreas con área deportiva que incluye: - 2 canchas de fútbol - 2 canchas de tenis - 2 canchas de padel - playón multideportes - cancha de vóley - pileta exterior - vestuarios - sector de juegos infantiles club house con espacios para diferentes actividades: - living room - sala de lectura - sala de juegos para adultos - sala infantil - restaurante - salón de usos múltiples - gimnasio campos spa con instalaciones de relax y bienestar: - sala de masajes - ducha escocesa - baño turco - sauna seco - sala de relax - jacuzzi - piscina interior y exterior dos lagunas internas que permiten actividades náuticas sin motor como remo y kayak. Ubicación estratégica con cercanía a barrios privados como haras del sur, que cuenta con instituciones educativas propias desde nivel inicial hasta secundario. Excelente inversión para quienes buscan un terreno en un desarrollo integral con servicios de alta gama y conectividad directa con ruta 2. Rau s.R.L. No ejerce el corretaje inmobiliario. El presente sitio web es una plataforma en donde cada oficina inmobiliaria independiente que contrata los servicios re/max puede publicar las propiedades a su cargo. Cada oficina es de propiedad y gestión independiente, por lo que rau s.R.L. No interviene en los datos de la publicación, en la operación inmobiliaria, ni en la confección y/o firma del boleto de compraventa y/o escritura y/o contrato de alquiler. En cumplimiento de las leyes vigentes que regulan el corretaje inmobiliario, ley nacional 25.028, ley 22.802 de lealtad comercial, ley 24.240 de defensa al consumidor, las normas del código civil y comercial de la nación y constitucionales, los agentes/gestores no ejercen el corretaje inmobiliario. Todas las operaciones inmobiliarias son objeto de intermediación y conclusión por parte del corredor público inmobiliario colegiado a cargo de la publicación, cuyos datos se exhiben en la presente. La presente publicación describe las características esenciales del inmueble, debiéndose consultar al corredor público inmobiliario responsable de la operación por la eventual actualización de las medidas, descripciones arquitectónicas y funcionales, valores de expensas, servicios, impuestos, precios y demás información, cuyos valores son aproximados.

Contactar
1/14
Visto

0

USD 15.000

Consultar dirección

Terreno en Venta en Campos De Roca, Countries y Barrios Cerrados en La Plata

REMAX Espacio
  • 2.592 m² Total
  • Excelente

LOTE EN VENTA EN CAMPOS DE ROCA II BRADNSEN

Corredor responsable: tomás fredriks cmcpdjlp 7471 - contacto: valentin poloni napoli lote en venta en country campos de roca ii medidas del lote 39.44 x 66 metros aproximados. Metros totales de 2592m2. El lote ubicado en cul de sac con vista a canal nautico el barrio cuenta amenities como canchas de tenis, paddle, basquet, voley y futbol. En el club house podemos encontrar pileta cubierta y descubierta, junto al gimnasio y restaurante. Seguridad las 24 hs, camaras de seguridad escritura definitiva country con las expensas mas bajas de la zona rapido acceso a la ciudad de la plata acepta permuta y esta abierto a escuchar ofertas de menor y mayor valor. Rau s.R.L. No ejerce el corretaje inmobiliario. El presente sitio web es una plataforma en donde cada oficina inmobiliaria independiente que contrata los servicios re/max puede publicar las propiedades a su cargo. Cada oficina es de propiedad y gestión independiente, por lo que rau s.R.L. No interviene en los datos de la publicación, en la operación inmobiliaria, ni en la confección y/o firma del boleto de compraventa y/o escritura y/o contrato de alquiler. En cumplimiento de las leyes vigentes que regulan el corretaje inmobiliario, ley nacional 25.028, ley 22.802 de lealtad comercial, ley 24.240 de defensa al consumidor, las normas del código civil y comercial de la nación y constitucionales, los agentes/gestores no ejercen el corretaje inmobiliario. Todas las operaciones inmobiliarias son objeto de intermediación y conclusión por parte del corredor público inmobiliario colegiado a cargo de la publicación, cuyos datos se exhiben en la presente. La presente publicación describe las características esenciales del inmueble, debiéndose consultar al corredor público inmobiliario responsable de la operación por la eventual actualización de las medidas, descripciones arquitectónicas y funcionales, valores de expensas, servicios, impuestos, precios y demás información, cuyos valores son aproximados.

Contactar
1/6
Visto

0

USD 19.000

Ruta Provincial 2

Terreno en Venta en Campos De Roca, Countries y Barrios Cerrados en La Plata

  • 2.500 m² Total

Lote en venta Campos de Roca 2

Corredor responsable: luis ayardi 7690 - contacto: valerio ameijeiras ubicado en ruta 2 a la altura del km 65. Lote en club de campo, campos de roca 2. A 30 minutos de la ciudad de la plata y a 40 minutos de buenos aires. Un contexto que permite disfrutar de un entorno seguro y natural se destaca por su ubicación, servicios y el club house cuenta con diferentes salas de uso común: living room / sala de lectura / sala de juegos para adultos y para niños. A continuación el parque central, en sus diez hectáreas se encuentra el área deportiva con dos canchas de fútbol de 11, dos canchas de tenis construídas de polvo de ladrillo, dos canchas de paddle y playón multideportes para la práctica de básquet, voley y patín. - Piscina descubierta y climatizada con solarium - vestuarios - área de juegos infantiles - restaurant y cafetería ¨el caldén¨ - salón de usos múltiples - gimnasio - spa: sala de masajes, ducha escocesa, sauna seco, baño turco, sala de rélax, jacuzzi y piscina rau s.R.L. No ejerce el corretaje inmobiliario. El presente sitio web es una plataforma en donde cada oficina inmobiliaria independiente que contrata los servicios re/max puede publicar las propiedades a su cargo. Cada oficina es de propiedad y gestión independiente, por lo que rau s.R.L. No interviene en los datos de la publicación, en la operación inmobiliaria, ni en la confección y/o firma del boleto de compraventa y/o escritura y/o contrato de alquiler. En cumplimiento de las leyes vigentes que regulan el corretaje inmobiliario, ley nacional 25.028, ley 22.802 de lealtad comercial, ley 24.240 de defensa al consumidor, las normas del código civil y comercial de la nación y constitucionales, los agentes/gestores no ejercen el corretaje inmobiliario. Todas las operaciones inmobiliarias son objeto de intermediación y conclusión por parte del corredor público inmobiliario colegiado a cargo de la publicación, cuyos datos se exhiben en la presente. La presente publicación describe las características esenciales del inmueble, debiéndose consultar al corredor público inmobiliario responsable de la operación por la eventual actualización de las medidas, descripciones arquitectónicas y funcionales, valores de expensas, servicios, impuestos, precios y demás información, cuyos valores son aproximados.

Contactar
1/9
Visto

0

USD 18.000

Consultar dirección

Terreno en Venta en Campos De Roca, Countries y Barrios Cerrados en La Plata

  • 2.560 m² Total
  • Excelente

Lote N° 226 ESCRITURADO venta Campos de Roca II

Corredor responsable: daniel guindani cmcpdjlp 7463 / maria delia piñeiro cpi 8976 - contacto: maximiliano comai campos de roca ii, ruta 2, lote número 226. Lote escriturado en venta de 2560m2. Lote 226. Ver plano. Ubicacion estratégica, entre el acceso y el club house, sobre calle trasversal, muy tranquila y sin paso constante de autos. Excelente orientacion respecto al sol. Sus medidas son 40 metros de frente por 64 metros de fondo, lote perfecto. Oportunidad! Consulta y agenda tu visita!. A sólo 40 minutos de buenos aires y 30 de la plata, se encuentra este barrio que cuenta con espacios exclusivos dedicados al descanso y al entretenimiento, inmerso en 230 hectáreas dominadas por árboles y aves autóctonas. Campos de roca ii posee dos lagunas, la mayor de 45.000 m2 y otra de 15.000 m2. Ofrecen la posibilidad de practicar actividades náuticas sin motor como son vela, remo y kayak. El arroyo es un curso de agua natural que atraviesa el barrio en su mayor extensión. Posee tres puentes vehiculares que conectan ambos sectores de la urbanización. Plaza deportiva ubicada en el parque central, donde se sitúa el club house, 2 canchas de fútbol 11, 4 canchas de tenis construidas de polvo de ladrillos, 2 canchas de paddle, playón multideportes para la práctica de básquet, cancha de vóley sobre césped, pileta exterior y un área de juegos infantiles. Rau s.R.L. No ejerce el corretaje inmobiliario. El presente sitio web es una plataforma en donde cada oficina inmobiliaria independiente que contrata los servicios re/max puede publicar las propiedades a su cargo. Cada oficina es de propiedad y gestión independiente, por lo que rau s.R.L. No interviene en los datos de la publicación, en la operación inmobiliaria, ni en la confección y/o firma del boleto de compraventa y/o escritura y/o contrato de alquiler. En cumplimiento de las leyes vigentes que regulan el corretaje inmobiliario, ley nacional 25.028, ley 22.802 de lealtad comercial, ley 24.240 de defensa al consumidor, las normas del código civil y comercial de la nación y constitucionales, los agentes/gestores no ejercen el corretaje inmobiliario. Todas las operaciones inmobiliarias son objeto de intermediación y conclusión por parte del corredor público inmobiliario colegiado a cargo de la publicación, cuyos datos se exhiben en la presente. La presente publicación describe las características esenciales del inmueble, debiéndose consultar al corredor público inmobiliario responsable de la operación por la eventual actualización de las medidas, descripciones arquitectónicas y funcionales, valores de expensas, servicios, impuestos, precios y demás información, cuyos valores son aproximados.

Contactar
1/8
Visto

0

USD 24.900

LOTE 225 100

Terreno en Venta en Campos De Roca, Countries y Barrios Cerrados en La Plata

  • 2.245 m² Total
  • Muy Bueno

CAMPOS DE ROCA II - LOTE EN VENTA

Corredor responsable: daniel guindani cmcpdjlp 7463 / maria delia piñeiro cpi 8976 - contacto: carlos jose aliotti lote de 2.245 m² en campos de roca ii - brandsen, ruta 2 km 65 excelente lote de 2.245 m² ubicado en una hermosa esquina central en campos de roca ii, brandsen, a solo 20 minutos de la plata y 40 minutos de capital federal. La propiedad se encuentra en una zona privilegiada de la autovía 2, al inicio del corredor de barrios privados, inmersa en un ambiente de tranquilidad y naturaleza. El barrio cuenta con seguridad privada, energía eléctrica, agua por perforación individual, tv satelital, telefonía e internet (servicios brindados por empresas externas). Además, dispone de un club house de 1.600 m² con distintas salas de uso común, sala de juegos para adultos, sala para niños y restaurante. También cuenta con salón de usos múltiples, gimnasio y spa, que incluye sala de masajes, ducha escocesa, baño turco, sauna seco, sala de relax, jacuzzi y piscina in/out. El barrio ofrece dos piscinas: una al aire libre y una exclusiva piscina in-out semi olímpica. Además, cuenta con una plaza deportiva al aire libre ubicada en el parque central, donde se sitúa el club house, con dos canchas de fútbol 11, dos canchas de tenis de polvo de ladrillos, dos canchas de pádel, un playón para la práctica de básquet, una cancha de vóley sobre césped, una pileta exterior y un área de juegos infantiles. Campos de roca ii también posee un arroyo que atraviesa el barrio, con una senda aeróbica y un paseo verde para la realización de actividades deportivas, y dos lagunas que ofrecen la posibilidad de practicar actividades náuticas sin motor. Contactanos y visitemos este hermoso lote en una excelente ubicación. Rau s.R.L. No ejerce el corretaje inmobiliario. El presente sitio web es una plataforma en donde cada oficina inmobiliaria independiente que contrata los servicios re/max puede publicar las propiedades a su cargo. Cada oficina es de propiedad y gestión independiente, por lo que rau s.R.L. No interviene en los datos de la publicación, en la operación inmobiliaria, ni en la confección y/o firma del boleto de compraventa y/o escritura y/o contrato de alquiler. En cumplimiento de las leyes vigentes que regulan el corretaje inmobiliario, ley nacional 25.028, ley 22.802 de lealtad comercial, ley 24.240 de defensa al consumidor, las normas del código civil y comercial de la nación y constitucionales, los agentes/gestores no ejercen el corretaje inmobiliario. Todas las operaciones inmobiliarias son objeto de intermediación y conclusión por parte del corredor público inmobiliario colegiado a cargo de la publicación, cuyos datos se exhiben en la presente. La presente publicación describe las características esenciales del inmueble, debiéndose consultar al corredor público inmobiliario responsable de la operación por la eventual actualización de las medidas, descripciones arquitectónicas y funcionales, valores de expensas, servicios, impuestos, precios y demás información, cuyos valores son aproximados.

Contactar
1/9
Visto

0

USD 19.000

Campos de Roca II RUTA 2 km65, Coronel Brandsen, Buenos Aires, Argentina

Terreno en Venta en Campos De Roca, Countries y Barrios Cerrados en La Plata

REMAX Potencia
  • 2.103 m² Total

VENTA LOTE N°415 CAMPOS DE ROCA II

Corredor responsable: mauro martínez cpmcal 580 - cpi 9240 - contacto: mauro rodriguez rau lote en venta en campos de roca ii este lote de 2.103 m² aproximado está ubicado en un entorno natural privilegiado, rodeado de verde y tranquilidad. El lote se encuentra en una zona estratégica dentro del barrio, con fácil acceso a las principales vías de comunicación y a pocos minutos del centro de la ciudad. Disfruta de la serenidad y belleza de la naturaleza en un entorno seguro y privado. Campos de roca ii es un barrio que combina la vida de campo con todas las comodidades de la ciudad. Cuenta con amplios espacios verdes, lagunas, y áreas recreativas, lo que lo convierte en el lugar ideal para familias que buscan calidad de vida. Este lote es perfecto para quienes buscan paz, seguridad y un entorno natural para vivir. ¡No dejes pasar esta oportunidad! Rau s.R.L. No ejerce el corretaje inmobiliario. El presente sitio web es una plataforma en donde cada oficina inmobiliaria independiente que contrata los servicios re/max puede publicar las propiedades a su cargo. Cada oficina es de propiedad y gestión independiente, por lo que rau s.R.L. No interviene en los datos de la publicación, en la operación inmobiliaria, ni en la confección y/o firma del boleto de compraventa y/o escritura y/o contrato de alquiler. En cumplimiento de las leyes vigentes que regulan el corretaje inmobiliario, ley nacional 25.028, ley 22.802 de lealtad comercial, ley 24.240 de defensa al consumidor, las normas del código civil y comercial de la nación y constitucionales, los agentes/gestores no ejercen el corretaje inmobiliario. Todas las operaciones inmobiliarias son objeto de intermediación y conclusión por parte del corredor público inmobiliario colegiado a cargo de la publicación, cuyos datos se exhiben en la presente. La presente publicación describe las características esenciales del inmueble, debiéndose consultar al corredor público inmobiliario responsable de la operación por la eventual actualización de las medidas, descripciones arquitectónicas y funcionales, valores de expensas, servicios, impuestos, precios y demás información, cuyos valores son aproximados.

Contactar
1/10
Visto

0

USD 17.000

Campos de Roca 2. Ruta 2, Km 65. Brandsen, La Plata 100

Terreno en Venta en Campos De Roca, Countries y Barrios Cerrados en La Plata

REMAX Diagonal II
  • 2.132 m² Total

LOTE EN VENTA CAMPOS DE ROCA 2

Corredor responsable: andrés alí cmcpdjlp 7428 - contacto: gustavo bordeu venta de lote de 2.132 m2 en campos de roca ii. Excelente entorno. Comprar un lote en campos de roca ii es invertir en calidad de vida y tranquilidad. Este exclusivo barrio privado combina naturaleza, seguridad y amplios espacios verdes, con lotes de generosas dimensiones ideales para construir la casa soñada. Su excelente acceso por autopista, la infraestructura consolidada y un entorno de alto nivel lo convierten en una de las opciones más atractivas de la zona. Rau s.R.L. No ejerce el corretaje inmobiliario. El presente sitio web es una plataforma en donde cada oficina inmobiliaria independiente que contrata los servicios re/max puede publicar las propiedades a su cargo. Cada oficina es de propiedad y gestión independiente, por lo que rau s.R.L. No interviene en los datos de la publicación, en la operación inmobiliaria, ni en la confección y/o firma del boleto de compraventa y/o escritura y/o contrato de alquiler. En cumplimiento de las leyes vigentes que regulan el corretaje inmobiliario, ley nacional 25.028, ley 22.802 de lealtad comercial, ley 24.240 de defensa al consumidor, las normas del código civil y comercial de la nación y constitucionales, los agentes/gestores no ejercen el corretaje inmobiliario. Todas las operaciones inmobiliarias son objeto de intermediación y conclusión por parte del corredor público inmobiliario colegiado a cargo de la publicación, cuyos datos se exhiben en la presente. La presente publicación describe las características esenciales del inmueble, debiéndose consultar al corredor público inmobiliario responsable de la operación por la eventual actualización de las medidas, descripciones arquitectónicas y funcionales, valores de expensas, servicios, impuestos, precios y demás información, cuyos valores son aproximados.

Contactar
1/9
Visto

0

USD 15.000

CAMPOS DE ROCA 2

Terreno en Venta en Campos De Roca, Countries y Barrios Cerrados en La Plata

REMAX Diagonal II
  • 2.391 m² Total

LOTE EN VENTA CAMPOS DE ROCA 2

Corredor responsable: andrés alí cmcpdjlp 7428 - contacto: analia fusto lote en venta. Financiación directa del propietario. Escriturado. 100% en cuotas sin interes posesion inmediata en un entorno natural, donde la armonía se fusiona con la naturaleza, se encuentra éste lote de 2391mts2; donde la imaginación y los sueños se transforman en proyectos para que vivas la vida que querés. Ubicado sobre la ruta 2 km 65, pertenece al partido de brandsen. Totalmente consolidado con más de 380 familias propietarias. Campos de roca ii, desde 2008, es un barrio cerrado desarrollado sobre 40 hectáreas de espacios comunes, forestación y las amenities que brindan un entorno inigualable para sus habitantes. Situados en una ubicación privilegiada, rodeados de urbanizaciones, cuenta con todas las obras de infraestructura finalizadas. Dentro de las amenities cuenta con dos canchas de fútbol de 11, dos canchas de tenis construidas de polvo de ladrillos, dos canchas de paddle, un playón multideportes para la práctica de básquet, una cancha de vóley sobre césped, pileta exterior, un área de juegos infantiles y una piscina in out. Cuenta también con una laguna de 45000 mts2. Y otra de 1500 mts2. Donde pueden practicarse deportes náuticos sin motor. Posee el régimen de propiedad horizontal y sus respectivos consorcios están consolidados y en funcionamiento. Lote escriturado. “El lugar ideal para tu casa ya está listo… y vos podés pagarlo cómodamente.” Rau s.R.L. No ejerce el corretaje inmobiliario. El presente sitio web es una plataforma en donde cada oficina inmobiliaria independiente que contrata los servicios re/max puede publicar las propiedades a su cargo. Cada oficina es de propiedad y gestión independiente, por lo que rau s.R.L. No interviene en los datos de la publicación, en la operación inmobiliaria, ni en la confección y/o firma del boleto de compraventa y/o escritura y/o contrato de alquiler. En cumplimiento de las leyes vigentes que regulan el corretaje inmobiliario, ley nacional 25.028, ley 22.802 de lealtad comercial, ley 24.240 de defensa al consumidor, las normas del código civil y comercial de la nación y constitucionales, los agentes/gestores no ejercen el corretaje inmobiliario. Todas las operaciones inmobiliarias son objeto de intermediación y conclusión por parte del corredor público inmobiliario colegiado a cargo de la publicación, cuyos datos se exhiben en la presente. La presente publicación describe las características esenciales del inmueble, debiéndose consultar al corredor público inmobiliario responsable de la operación por la eventual actualización de las medidas, descripciones arquitectónicas y funcionales, valores de expensas, servicios, impuestos, precios y demás información, cuyos valores son aproximados.

Contactar
1/7
Visto

0

USD 15.000

Ruta Provincial 2

Terreno en Venta en Campos De Roca, Countries y Barrios Cerrados en La Plata

  • 2.500 m² Total

Lote en venta Campos de Roca 2, club de campo

Corredor responsable: luis ayardi 7690 - contacto: valerio ameijeiras ruta 2 km 65. Lote en venta en club de campo, campos de roca 2. A 30 minutos de la ciudad de la plata y a 40 minutos de buenos aires. Un contexto que permite disfrutar de un entorno seguro y natural se destaca por su ubicación, servicios y el club house cuenta con diferentes salas de uso común: living room / sala de lectura / sala de juegos para adultos y para niños. A continuación el parque central, en sus diez hectáreas se encuentra el área deportiva con dos canchas de fútbol de 11, dos canchas de tenis construídas de polvo de ladrillo, dos canchas de paddle. Playón multideportes para la práctica de básquet, voley y patín. - Piscina descubierta y climatizada con solarium - vestuarios - área de juegos infantiles - restaurant y cafetería ¨el caldén¨ - salón de usos múltiples - gimnasio rau s.R.L. No ejerce el corretaje inmobiliario. El presente sitio web es una plataforma en donde cada oficina inmobiliaria independiente que contrata los servicios re/max puede publicar las propiedades a su cargo. Cada oficina es de propiedad y gestión independiente, por lo que rau s.R.L. No interviene en los datos de la publicación, en la operación inmobiliaria, ni en la confección y/o firma del boleto de compraventa y/o escritura y/o contrato de alquiler. En cumplimiento de las leyes vigentes que regulan el corretaje inmobiliario, ley nacional 25.028, ley 22.802 de lealtad comercial, ley 24.240 de defensa al consumidor, las normas del código civil y comercial de la nación y constitucionales, los agentes/gestores no ejercen el corretaje inmobiliario. Todas las operaciones inmobiliarias son objeto de intermediación y conclusión por parte del corredor público inmobiliario colegiado a cargo de la publicación, cuyos datos se exhiben en la presente. La presente publicación describe las características esenciales del inmueble, debiéndose consultar al corredor público inmobiliario responsable de la operación por la eventual actualización de las medidas, descripciones arquitectónicas y funcionales, valores de expensas, servicios, impuestos, precios y demás información, cuyos valores son aproximados.

Contactar
1/5
Visto

0

USD 16.000

Ruta Provincial 2 100

Terreno en Venta en Campos De Roca, Countries y Barrios Cerrados en La Plata

  • 2.390 m² Total
  • Muy Bueno

VENTA Lote 2390m2 c/Proyecto y planos Brandsen

Corredor responsable: ezequiel valbuena cpmcal 638 - contacto: carolina tomas ¡Oportunidad única en campos de roca ii! Lote en venta con proyecto y planos aprobados por la municipalidad de brandsen. Posibilidad de financiacion directa. Ubicado en el prestigioso barrio campos de roca ii, este espectacular lote ofrece la oportunidad perfecta para construir la casa de tus sueños. Con una superficie de 2390 m², el terreno cuenta con un entorno natural privilegiado, rodeado de áreas verdes y paisajes tranquilos. Además, ¡Se está construyendo un acceso directo a haras del sur! Esto incrementará aún más el valor de la propiedad y mejorará la conectividad. Beneficios destacados: proyecto y planos aprobados: este lote se vende con un proyecto de construcción y planos ya aprobados por la municipalidad, lo que te ahorra tiempo y trámites burocráticos. Estás listo para comenzar la construcción de inmediato. Ubicación estratégica: campos de roca ii es conocido por su ambiente seguro y familiar, con fácil acceso a servicios, escuelas y centros comerciales. Disfruta de la paz de vivir en un barrio exclusivo mientras estás a pocos minutos de las comodidades urbanas. Comodidades del barrio: el barrio cuenta con seguridad las 24 horas, club house, piscina, canchas deportivas y amplias áreas verdes para disfrutar de actividades al aire libre con tu familia y amigos. Posibilidad de personalización: aunque el proyecto ya está aprobado, tienes la posibilidad de personalizar ciertos aspectos de la construcción para adaptarlo a tus gustos y necesidades personales. No dejes pasar esta oportunidad de invertir en un lugar que ofrece tanto calidad de vida como potencial de valorización. ¡Contáctanos hoy mismo para más información y para coordinar una visita rau s.R.L. No ejerce el corretaje inmobiliario. El presente sitio web es una plataforma en donde cada oficina inmobiliaria independiente que contrata los servicios re/max puede publicar las propiedades a su cargo. Cada oficina es de propiedad y gestión independiente, por lo que rau s.R.L. No interviene en los datos de la publicación, en la operación inmobiliaria, ni en la confección y/o firma del boleto de compraventa y/o escritura y/o contrato de alquiler. En cumplimiento de las leyes vigentes que regulan el corretaje inmobiliario, ley nacional 25.028, ley 22.802 de lealtad comercial, ley 24.240 de defensa al consumidor, las normas del código civil y comercial de la nación y constitucionales, los agentes/gestores no ejercen el corretaje inmobiliario. Todas las operaciones inmobiliarias son objeto de intermediación y conclusión por parte del corredor público inmobiliario colegiado a cargo de la publicación, cuyos datos se exhiben en la presente. La presente publicación describe las características esenciales del inmueble, debiéndose consultar al corredor público inmobiliario responsable de la operación por la eventual actualización de las medidas, descripciones arquitectónicas y funcionales, valores de expensas, servicios, impuestos, precios y demás información, cuyos valores son aproximados.

Contactar
1/7
Visto

0

USD 25.000

Consultar dirección

Terreno en Venta en Campos De Roca, Countries y Barrios Cerrados en La Plata

REMAX Diagonal II
  • 2.543 m² Total

Lote en venta - Campos de Roca 2

Corredor responsable: andrés alí cmcpdjlp 7428 - contacto: federico chlopecki lote en ph en campos de roca ii, ubicado en ruta 2 km 65, coronel brandsen. El posee una superficie total de 2.543 m². Campos de roca ii cuenta con varios amenities: - club house - pileta - canchas de tenis y futbol. - Gimnasio. - Lagunas y espacios verdes, senderos para equitación y actividades al aire libre, salón de usos múltiples, plazas de juegos infantiles. - Seguridad las 24hs los 365 días del año. Comprar un lote en campos de roca ii es invertir en calidad de vida y tranquilidad. Este exclusivo barrio privado combina naturaleza, seguridad y amplios espacios verdes, con lotes de generosas dimensiones ideales para construir la casa soñada. Su excelente acceso por autopista, la infraestructura consolidada y un entorno de alto nivel lo convierten en una de las opciones más atractivas de la zona. Rau s.R.L. No ejerce el corretaje inmobiliario. El presente sitio web es una plataforma en donde cada oficina inmobiliaria independiente que contrata los servicios re/max puede publicar las propiedades a su cargo. Cada oficina es de propiedad y gestión independiente, por lo que rau s.R.L. No interviene en los datos de la publicación, en la operación inmobiliaria, ni en la confección y/o firma del boleto de compraventa y/o escritura y/o contrato de alquiler. En cumplimiento de las leyes vigentes que regulan el corretaje inmobiliario, ley nacional 25.028, ley 22.802 de lealtad comercial, ley 24.240 de defensa al consumidor, las normas del código civil y comercial de la nación y constitucionales, los agentes/gestores no ejercen el corretaje inmobiliario. Todas las operaciones inmobiliarias son objeto de intermediación y conclusión por parte del corredor público inmobiliario colegiado a cargo de la publicación, cuyos datos se exhiben en la presente. La presente publicación describe las características esenciales del inmueble, debiéndose consultar al corredor público inmobiliario responsable de la operación por la eventual actualización de las medidas, descripciones arquitectónicas y funcionales, valores de expensas, servicios, impuestos, precios y demás información, cuyos valores son aproximados.

Contactar
1/18
Visto

0

USD 18.000

RUTA 2 Km 65 Cnel BRANDSEN

Terreno en Venta en Campos De Roca, Countries y Barrios Cerrados en La Plata

REMAX Diagonal II
  • 2.091 m² Total

CAMPOS DE ROCA LOTE EN VENTA

Corredor responsable: andrés alí cmcpdjlp 7428 - contacto: analia fusto lote en venta en campos de roca ii – 2090 m² viví rodeado de naturaleza, en un entorno seguro y con todas las comodidades que tu familia merece. Este lote de 2090 m², con una excelente ubicación dentro del barrio privado campos de roca ii, es ideal para construir la casa de tus sueños en un marco de tranquilidad y confort. El barrio se caracteriza por sus amplios espacios verdes, su entorno natural único con lagunas, bosques y senderos, y una infraestructura de primer nivel que asegura calidad de vida: seguridad y control de accesos las 24 hs. Club house con restaurante. Piscina y solárium. Canchas de tenis y fútbol. Espacios recreativos para niños. Actividades náuticas no motorizadas en las lagunas. Además, cuenta con un fácil acceso desde autovía 2, a pocos minutos de la plata y a menos de una hora de caba, lo que lo convierte en la opción perfecta para combinar naturaleza y cercanía a la ciudad. Un lote de esta dimensión te brinda infinitas posibilidades: desde diseñar una casa con parque y pileta soñados, hasta disfrutar de un amplio jardín arbolado con vistas abiertas y privacidad. Invertí en calidad de vida. Campos de roca ii es más que un barrio, es un estilo de vida pensado para disfrutar cada día. Rau s.R.L. No ejerce el corretaje inmobiliario. El presente sitio web es una plataforma en donde cada oficina inmobiliaria independiente que contrata los servicios re/max puede publicar las propiedades a su cargo. Cada oficina es de propiedad y gestión independiente, por lo que rau s.R.L. No interviene en los datos de la publicación, en la operación inmobiliaria, ni en la confección y/o firma del boleto de compraventa y/o escritura y/o contrato de alquiler. En cumplimiento de las leyes vigentes que regulan el corretaje inmobiliario, ley nacional 25.028, ley 22.802 de lealtad comercial, ley 24.240 de defensa al consumidor, las normas del código civil y comercial de la nación y constitucionales, los agentes/gestores no ejercen el corretaje inmobiliario. Todas las operaciones inmobiliarias son objeto de intermediación y conclusión por parte del corredor público inmobiliario colegiado a cargo de la publicación, cuyos datos se exhiben en la presente. La presente publicación describe las características esenciales del inmueble, debiéndose consultar al corredor público inmobiliario responsable de la operación por la eventual actualización de las medidas, descripciones arquitectónicas y funcionales, valores de expensas, servicios, impuestos, precios y demás información, cuyos valores son aproximados.

Contactar
1/6
Visto

0

USD 18.000

RUTA 2

Terreno en Venta en Campos De Roca, Countries y Barrios Cerrados en La Plata

  • 2.500 m² Total

Lote en venta, Campos de Roca, Brendsen

Corredor responsable: luis ayardi 7690 - contacto: valerio ameijeiras lote en venta en campos de roca 2. Excelente lote en en venta en el exclusivo barrio privado de coronel brandsen ubicado en ruta 2. Lote cercano a ammenities, el barrio cuenta con pileta cubierta y canchas de tenis entre otras oportunidades exclusivas de vida al aire libre, ocio y deporte. El lote se encuentra ubicado en una zona consolidada del barrio. Cuenta con un anteproyecto aprobado para la construcción. Rau s.R.L. No ejerce el corretaje inmobiliario. El presente sitio web es una plataforma en donde cada oficina inmobiliaria independiente que contrata los servicios re/max puede publicar las propiedades a su cargo. Cada oficina es de propiedad y gestión independiente, por lo que rau s.R.L. No interviene en los datos de la publicación, en la operación inmobiliaria, ni en la confección y/o firma del boleto de compraventa y/o escritura y/o contrato de alquiler. En cumplimiento de las leyes vigentes que regulan el corretaje inmobiliario, ley nacional 25.028, ley 22.802 de lealtad comercial, ley 24.240 de defensa al consumidor, las normas del código civil y comercial de la nación y constitucionales, los agentes/gestores no ejercen el corretaje inmobiliario. Todas las operaciones inmobiliarias son objeto de intermediación y conclusión por parte del corredor público inmobiliario colegiado a cargo de la publicación, cuyos datos se exhiben en la presente. La presente publicación describe las características esenciales del inmueble, debiéndose consultar al corredor público inmobiliario responsable de la operación por la eventual actualización de las medidas, descripciones arquitectónicas y funcionales, valores de expensas, servicios, impuestos, precios y demás información, cuyos valores son aproximados.

Contactar
1/6
Visto

0

USD 18.000

RUTA 2 100

Terreno en Venta en Campos De Roca, Countries y Barrios Cerrados en La Plata

  • 2.500 m² Total

Lote en venta Campos de Roca 2

Corredor responsable: luis ayardi 7690 - contacto: valerio ameijeiras ruta 2 km 65. Lote en club de campo, campos de roca 2. Lote céntrico ubicado en cercanías de amenities a 30 minutos de la ciudad de la plata y a 40 minutos de buenos aires. Un contexto que permite disfrutar de un entorno seguro y natural se destaca por su ubicación, servicios y el club house cuenta con diferentes salas de uso común: living room / sala de lectura / sala de juegos para adultos y para niños. A continuación el parque central, en sus diez hectáreas se encuentra el área deportiva con dos canchas de fútbol de 11, dos canchas de tenis construídas de polvo de ladrillo, dos canchas de paddle. Playón multideportes para la práctica de básquet, voley y patín. - Piscina descubierta y climatizada con solarium - vestuarios - área de juegos infantiles - restaurant y cafetería ¨el caldén¨ - salón de usos múltiples - gimnasio - spa: sala de masajes, ducha escocesa, sauna seco, baño turco, sala de rélax, jacuzzi y piscina acepta permuta. Rau s.R.L. No ejerce el corretaje inmobiliario. El presente sitio web es una plataforma en donde cada oficina inmobiliaria independiente que contrata los servicios re/max puede publicar las propiedades a su cargo. Cada oficina es de propiedad y gestión independiente, por lo que rau s.R.L. No interviene en los datos de la publicación, en la operación inmobiliaria, ni en la confección y/o firma del boleto de compraventa y/o escritura y/o contrato de alquiler. En cumplimiento de las leyes vigentes que regulan el corretaje inmobiliario, ley nacional 25.028, ley 22.802 de lealtad comercial, ley 24.240 de defensa al consumidor, las normas del código civil y comercial de la nación y constitucionales, los agentes/gestores no ejercen el corretaje inmobiliario. Todas las operaciones inmobiliarias son objeto de intermediación y conclusión por parte del corredor público inmobiliario colegiado a cargo de la publicación, cuyos datos se exhiben en la presente. La presente publicación describe las características esenciales del inmueble, debiéndose consultar al corredor público inmobiliario responsable de la operación por la eventual actualización de las medidas, descripciones arquitectónicas y funcionales, valores de expensas, servicios, impuestos, precios y demás información, cuyos valores son aproximados.

Contactar