(1) (1)
  • Ezeiza

Venta

Propiedad

USD 32K-60K

Buscar solo avisos en moneda:

Dorm|Amb

Dormitorios

  • 1
  • 2
  • 3
  • 4
  • 5+

Ambientes

  • Mono.
  • 2
  • 3
  • 4
  • 5+

Más filtros Más filtros

Dormitorios

  • 1
  • 2
  • 3
  • 4
  • 5+

Ambientes

  • Mono.
  • 2
  • 3
  • 4
  • 5+

Características

Superficie cubierta

Cocheras

Baños

Nombre de calle y altura

Tipo de urbanización

Servicios

Tipos de ambientes

Estado de obra

Tipo de anunciante

139 Propiedades e Inmuebles en Venta en Ezeiza

1/38
Visto

19

USD 50.000

Barrio Las Victorias

Terreno en Venta en Ezeiza, Buenos Aires

5411 Estate
  • 728 m² Total

Venta Lote 728 m2 Barrio Las Victorias Canning Ezeiza

Venta lote en barrio privado las victorias sin saldo a pagar! Ubicación y datos generales * https: maps.App.Goo.Gl/wpo951rxyi7qt74o6 * desarrollo: barrio privado las victorias * ubicación: ruta 52, a metros de la ruta 58, canning, ezeiza * lote n: 264 * superficie: 728 m2 * estado legal: acta de posesión firmada (listo para escriturar) * apto: blanqueo * expensas: $270.000 mensuales características destacadas del lote y entorno el lote n 264 se encuentra en un entorno en constante crecimiento en canning, con excelente acceso y rodeado de barrios cerrados, lo que garantiza seguridad y tranquilidad. Su ubicación en el barrio es estratégica, próxima a la entrada, permitiendo una salida rápida y sin demoras. Servicios y amenities del barrio privado * seguridad 24/7 * red de agua corriente y cloacas * red interna de gas natural * restaurante propio dentro del barrio * huerta orgánica comunitaria * calles asfaltadas (pavimento intertrabado) * energía eléctrica (media y baja tensión) * fibra óptica para internet área social y deportiva: * canchas de fútbol * canchas de pádel vidriadas * salón de usos múltiples (sum) transporte y cercanía * parada de colectivos próxima. * A solo 10 minutos del centro comercial las toscas en canning. * Cercano a restaurantes, tiendas y servicios. Resumen y contacto este es un lugar ideal para construir un hogar en un entorno seguro, rodeado de naturaleza y con todas las comodidades modernas. No deje pasar esta oportunidad! Contáctenos para más información y para coordinar una visita. En cumplimiento de la ley nacional 25.028, ley 22.802 de lealtad comercial, ley 24.240 de defensa al consumidor, junto con las normas del código civil y comercial de la nación y constitucionales, los asesores no ejercen el corretaje inmobiliario. Todas las operaciones inmobiliarias son objeto de intermediación y conclusión por parte de nuestro profesional matriculado. Corredor responsable capital federal: raul alvarez c.U.C.I.C.B.A nro: 8354 provincia buenos aires: ezequiel marcelo c.S.M. 2947

Contactar
1/7
Visto

2

USD 38.000

El Deslinde 1300, Piso 0

Terreno en Venta en Ezeiza, Buenos Aires

C21 BARRERO
  • 640 m² Total

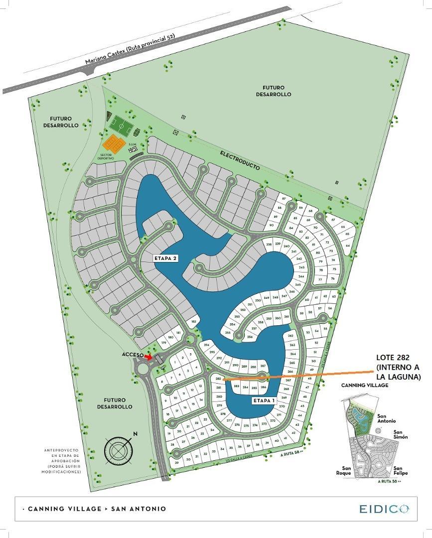
Lote Interno en venta en Barrio San Roque - Canning

Venta de lote interno cerca de laguna en barrio san roque - canning, ezeiza en barrio cerrado san roque, venta de lote interno forma parte de canning village y es el primero de ellos con laguna y con áreas deportivas. 640 m2, no paga expensas hasta la posesión. Generalidades sobre el barrio: laguna de 3,5 hectáreas, acceso secundario, calles internas asfaltadas y cordón cuneta, redes subterráneas de: electricidad, agua, cloaca y gas, planta de tratamiento de efluentes, sector deportivo: 2 canchas de tenis, 1 cancha de fútbol 8 y 1 de paddle, salón de usos múltiples, parquización, pilares de servicios, alumbrado público y alambrado perimetral. San roque es uno de los cuatro barrios del proyecto canning village, rodeado de barrios consolidados como san felipe, san simón, don joaquín, el lauquen, el principado y los talas. Zona donde se comenzaron ya los trabajpos para la construcción de una nueva sede del colegio grilli. Tiene un excelente acceso por ruta 52 hasta calle el deslinde, asfaltada con muy buena iluminación y boulevard con frondoso arboles añejos. La zona cuenta con transporte público y zonas comerciales. Hernan barrero, matrícula: cucicba 7224 | esteban kolef, matrícula: cmcpdjlp 7414 teléfonos de contacto todas las propiedades que figuran en esta publicación se encuentran a cargo del profesional matriculado hernan barrero, matrícula: cucicba 7224 | esteban kolef, matrícula: cmcpdjlp 7414 por lo tanto la intermediación y la conclusión de las operaciones serán llevadas exclusivamente por él. En cumplimiento de la ley 10.973 de la provincia de buenos aires, ley nacional 25.028, ley nacional 20.266, ley 22.802 de lealtad comercial, ley 24.240 de defensa al consumidor, las normas del código civil y comercial de la nación y constitucionales, los asesores o agentes no ejercen el corretaje inmobiliario. Todas las operaciones inmobiliarias son objeto de intermediación y conclusión por parte del martillero y corredor colegiado, cuyos datos se exhiben en el nombre de la inmobiliaria. Ley 5115: excepto que en la descripción de la propiedad se indique lo contrario, el edificio puede no contar con rampa para personas con movilidad reducida, y no ser accesible para personas con discapacidades físicas. Venta sujeta a la obtención del coti por parte del propietario. Las medidas son aproximadas, las reales surgen del título o plano de mensura. Las reservas se toman exclusivamente en la inmobiliaria con el matriculado matrícula: cucicba 7224 | cmcpdjlp 7414

Contactar
1/8
Visto

2

USD 33.500

El Deslinde 1300, Piso 0

Terreno en Venta en Ezeiza, Buenos Aires

C21 BARRERO
  • 637 m² Total

Lote en venta

Venta de lote en barrio san roque en canning, ezeiza en barrio cerrado san roque, venta de lote interno forma parte de canning village y es el primero de ellos con laguna y con áreas deportivas. 637 m2, no paga expensas hasta la posesión. Generalidades sobre el barrio: laguna de 3,5 hectáreas, acceso secundario, calles internas asfaltadas y cordón cuneta, redes subterráneas de: electricidad, agua, cloaca y gas, planta de tratamiento de efluentes, sector deportivo: 2 canchas de tenis, 1 cancha de fútbol 8 y 1 de paddle, salón de usos múltiples, parquización, pilares de servicios, alumbrado público y alambrado perimetral. San roque es uno de los cuatro barrios del proyecto canning village, rodeado de barrios consolidados como san felipe, san simón, don joaquín, el lauquen, el principado y los talas. Zona donde se comenzaron ya los trabajpos para la construcción de una nueva sede del colegio grilli. Tiene un excelente acceso por ruta 52 hasta calle el deslinde, asfaltada con muy buena iluminación y boulevard con frondoso arboles añejos. La zona cuenta con transporte público y zonas comerciales. Todas las propiedades que figuran en esta publicación se encuentran a cargo del profesional matriculado hernán barrero, mat. Cucicba 7224 – horacio raúl pereyra c.M.C.P.L.P mat. 7186 tomo 3 folio 115, por lo tanto la intermediación y la conclusión de las operaciones serán llevadas exclusivamente por el matriculado. En cumplimiento de la ley 10.973 de la provincia de buenos aires, ley nacional 25.028, ley nacional 20.266, ley 22.802 de lealtad comercial, ley 24.240 de defensa al consumidor, las normas del código civil y comercial de la nación y constitucionales, los asesores o agentes no ejercen el corretaje inmobiliario. Todas las operaciones inmobiliarias son objeto de intermediación y conclusión por parte del martillero y corredor colegiado, cuyos datos se exhiben en el nombre de la inmobiliaria. Ley 5115: excepto que en la descripción de la propiedad se indique lo contrario, el edificio puede no contar con rampa para personas con movilidad reducida, y no ser accesible para personas con discapacidades físicas.- Todas las medidas son aproximadas al solo efecto orientativo. Las medidas exactas serán las que surjan del título de propiedad. Las fotografías y videos no son contractuales. No se encuentran incluidos en el precio publicado los equipos de aire acondicionado, electrodomésticos ni artefactos de iluminación y/o ningún otro accesorio que pudieran estar mencionados en la descripción o ilustrados en fotografías con excepción de los que queden expresamente identificados en la reserva a conformar entre las partes. Si hubiera valores de expensas y/o impuestos detallados, los mismos son aproximados y sujetos a modificación. En caso de venta, la operación está sujeta a la tramitación del código de oferta de transferencia de inmuebles (coti) por parte del propietario. Las reservas se toman exclusivamente en la inmobiliaria con el matriculado hernán barrero, mat. Cucicba 7224 - horacio raúl pereyra c.M.C.P.L.P mat. 7186 tomo 3 folio 115. Hernan barrero, matrícula: cucicba 7224 | esteban kolef, matrícula: cmcpdjlp 7414 teléfonos de contacto todas las propiedades que figuran en esta publicación se encuentran a cargo del profesional matriculado hernan barrero, matrícula: cucicba 7224 | esteban kolef, matrícula: cmcpdjlp 7414 por lo tanto la intermediación y la conclusión de las operaciones serán llevadas exclusivamente por él. En cumplimiento de la ley 10.973 de la provincia de buenos aires, ley nacional 25.028, ley nacional 20.266, ley 22.802 de lealtad comercial, ley 24.240 de defensa al consumidor, las normas del código civil y comercial de la nación y constitucionales, los asesores o agentes no ejercen el corretaje inmobiliario. Todas las operaciones inmobiliarias son objeto de intermediación y conclusión por parte del martillero y corredor colegiado, cuyos datos se exhiben en el nombre de la inmobiliaria. Ley 5115: excepto que en la descripción de la propiedad se indique lo contrario, el edificio puede no contar con rampa para personas con movilidad reducida, y no ser accesible para personas con discapacidades físicas. Venta sujeta a la obtención del coti por parte del propietario. Las medidas son aproximadas, las reales surgen del título o plano de mensura. Las reservas se toman exclusivamente en la inmobiliaria con el matriculado matrícula: cucicba 7224 | cmcpdjlp 7414

Contactar
1/7
Visto

1

USD 54.000

Barrio Privado Club Lomas (barrio Links)

Terreno en Venta en Ezeiza, Buenos Aires

  • 700 m² Total
  • Bueno

Lote en Barrio Privado Club Lomas (Barrio Links) - Ezeiza

Lote en venta barrio privado lomas links, ezeiza lote de 700m2 barrio privado y complejo deportivo lomas athletic club: el emprendimiento, recoge lo mejor del tradicional club homónimo y busca continuar con su tradición deportiva centenaria. El barrio es una urbanización exclusiva de 12 hectáreas emplazada en una de las instituciones deportivas más antiguas del país, formadora de destacados deportistas muchos de los cuales integraron seleccionados nacionales. Amenities: canchas de rugby, hockey, cricket y tennis, y cancha de golf profesional de 18 hoyos. - 98 lotes de 700 a 1000 m2 aprox, con singulares vistas a los links de golf o a la zona de deportes. - Inigualable entorno de 60 hectáreas rodeado de una arboleda excepcional. - A 20 minutos de capital federal por autopista y 10 min del aeropuerto internacional de ezeiza, cerca de centros comerciales de estación de ezeiza y a 10 min del centro de canning - todos los servicios: seguridad 24 hs., Gas, electricidad subterránea, cloacas, teléfono y cable. Listo para escriturar viva en un lugar que recrea el espíritu de los antiguos suburbios ingleses del gran buenos aires, las bicicletas en la puerta, los niños jugando en la calle! Gran oportunidad notas: operación directa. La información y las medidas mencionadas son aproximadas y deberán ser corroboradas con la documentación correspondiente. Este aviso no representa un compromiso contractual por parte de aracama propiedades. Los gastos indicados (expensas, impuestos municipales e inmobiliarios, entre otros) se basan en los datos más recientes disponibles y están sujetos a verificación y actualización. Las imágenes son ilustrativas y no tienen carácter contractual. Adrian aracama i mat: 2059 cpmcl oficina canning | ?12 | avenida castex 499, piso 9, oficina 903-905, canning oficina monte grande | ?12 | hipolito yrigoyen 16, monte grande

Contactar
1/12
Visto

1

USD 35.000

EL ARROYITO

Terreno en Venta en Ezeiza, Buenos Aires

GRUPPO MARRAZZO
  • 1.116 m² Total

Lote - Venta - Argentina, Ezeiza

Venta de lote en canning, barrio estancia villa maría sector arroyito villa maría se presenta como el mejor escenario para vivir o disfrutar de una casa de fin de semana. La estancia posee en su casco histórico, un soberbio palacio rural de estilo tudor-normando que fue construido en 1927 por el arquitecto alejandro bustillo, cuenta con 16 habitaciones, 11 en el casco principal y 5 en nuestra casa francesa, un restaurante de campo, salón de usos múltiples con capacidad para 200 personas, amplias áreas comunes y una cava de vinos centenaria. El interior se prolonga hacia el parque a través de galerías y terrazas que unen la majestuosa arquitectura del hotel con el impactante parque diseñado en 1917 por el reconocido paisajista benito carrasco, discípulo de carlos thays que cuenta con un imponente lago y más de 300 especies originarias de todos los continentes plantadas. El barrio cuenta con 700 hectáreas conformado por 7 barrios: arroyito, la esperanza, los silos, los alamos, lagunas del golf, manzanar chico y casco.  El sector arroyito se encuentra ubicado al sureste del proyecto presentando un paisaje verde intenso con una cortina de eucaliptos de fondo y un arroyo natural que lo bordea al extremo noroeste. Ofrece una selección de terrenos de hasta 3000 m2 de extensión con vista a los arroyos naturales que cruzan al barrio ofrece: canchas de tenis, plaza de juegos para niños, sum, canchas de fútbol, 2 canchas de polo, canchas de taqueo, pileta de natación,  cancha de golf de 18 hoyos,  3 club houses (hípico, deportivo y golf).  Caballerizas, pistas de equitación, ubicación: estancia villa maría se ubica en el partido de ezeiza, a solo 45 minutos del centro de la ciudad de buenos aires por autopista ezeiza-cañuelas, y a 10 minutos de canning, localidad de mayor crecimiento en la zona sur, con acceso a cines, restaurantes, oficinas y shoppings. El proyecto presenta 2 accesos, uno por la av. Castex km 9.5 (ex ruta 52) desde el centro de canning que permite estar en el centro de esta zona comercial en pocos minutos. Este acceso se ubica sobre el privilegiado "corredor verde: ruta de la buena vida". El otro acceso se ubica sobre la ruta 205 en el km 47.5, ideal para la salida de buenos aires por la mañana con conexión directa a la autopista. Coordina tu visita acepta financiación (mrz-mr1-1343)

Contactar
1/11
Visto

1

USD 47.000

El Deslinde 1600

Terreno en Venta en Ezeiza, Buenos Aires

Hernandez Negocios Inmobiliarios
  • 605 m² Total

Venta Lote Barrio San Roque con vista a la Laguna

Venta lote barrio san roque lote 168 perimetral. .San roque se encuentra dentro del gran proyecto de eidico que es canning village y está rodeado de barrios consolidados como don joaquín, el lauquen, el principado y los talas. .Canning village esta ubicado a sólo 40 km de capital federal y con rápido acceso por autopista. .Con un masterplan de 4 barrios, canning village resulta ideal para aquellos que buscan tranquilidad, y contar con las características que se destacan de las grandes ciudades: restaurantes, centros comerciales, colegios de educación bilingüe y desarrollos urbanos que promueven los deportes y la vida social. .Se encuentra entre las rutas 58 y 52 y se proyecta desarrollar un boulevard de conectividad para ambas rutas. Será de acceso público y brindará un mejor acceso. .San roque es el único barrio del masterplan con laguna. .Cuenta con redes subterráneas de electricidad, agua, cloacas y gas. .Asfalto con cordón cuneta. .Sum. .Sector deportivo (canchas de tenis y cancha de futbol 11). .Seguridad las 24 hs. Servicios: cloacas, gas otros servicios: alambrado perimetral *las imágenes, medidas expresadas y publicadas no son necesariamente vinculantes ni tampoco contractuales. Las medidas enunciadas han sido expresadas al sólo hecho informativo, no necesariamente serán las reales, las correctas surgirán dé los respectivos títulos, planos y/o planchetas catastrales. La venta de este inmueble está sujeta a la tramitación del código de transferencia de inmuebles (coti), de conformidad con la normativa vigente (res. Afip 2371/08, 2439/08 y ccs.) Por parte del propietario.

Contactar