(1) (1)
  • Palermo Hollywood

Venta

Propiedad

USD desde 315K

Buscar solo avisos en moneda:

Dorm | 2 amb.

Dormitorios

  • 1
  • 2
  • 3
  • 4
  • 5+

Ambientes

  • Mono.
  • 2
  • 3
  • 4
  • 5+

Más filtros (1) Más filtros

Dormitorios

  • 1
  • 2
  • 3
  • 4
  • 5+

Ambientes

  • Mono.
  • 2
  • 3
  • 4
  • 5+

Características

Superficie cubierta

Cocheras

Baños

Nombre de calle y altura

Tipo de urbanización

Servicios

Tipos de ambientes

Estado de obra

Tipo de anunciante

18 Propiedades e Inmuebles en Venta en Palermo Hollywood de 2 ambientes

1/33
Visto

500

USD 445.000 + $800.000 expensas

Dorrego al 1900

Departamento en Venta en Palermo Hollywood, Palermo

Irala - Hernandez Real Estate
  • 130 m² cubie.
  • 1 dorm.
  • 27 años

Venta Departamento tipo loft de 130m2 de 2 ambientes con cochera en Los Silos de Dorrego

Viví con estilo en los silos de dorrego! Exclusivo dúplex tipo loft de 130 m2 con entrepiso y cochera fija, diseño moderno, espacios amplios y una ubicación inmejorable en uno de los complejos más destacados de la zona. Apto profesional, ideal tanto para vivir como para trabajar en un entorno único. Este 2 ambientes con entrepiso se distribuye en dos plantas con excelente funcionalidad: dormitorio en suite con vestidor cocina independiente dos baños completos compartimentados entrepiso versátil que podés usar como segundo dormitorio, escritorio o espacio de relax espacio de guardado bajo entrepiso. Cuenta con cuatro grandes ventanales que inundan los ambientes de luz natural y ofrecen una vista abierta a los jardines internos del complejo, creando una atmósfera serena y luminosa todo el día. Todo esto, en un entorno de servicios premium para disfrutar al máximo: - pileta climatizada de 20 metros - gimnasio totalmente equipado - cancha de paddle - sauna - bar-restaurante - áreas de juegos para chicos - 5000 m2 de parque - recepción y seguridad 24 horas ubicación estratégica, cerca de todo pero con la tranquilidad de un complejo cerrado. Expensas: $800.000 los silos de dorrego combina diseño, confort y servicios de alta gama en un entorno urbano ideal para vivir o invertir. Contactanos y descubrí tu próximo hogar con el sello de calidad que buscás! Las medidas y superficies consignadas son aproximadas y surgirán del titulo de propiedad respectivo. Las medidas y superficies consignadas son aproximadas y surgirán del titulo de propiedad respectivo. Isabel irala & hernandez - cucicba 7755 / cmcpsi 6675

Contactar
1/37
Visto

11

USD 357.000

Angel Carranza 2200, Piso 8

Departamento en Venta en Palermo Hollywood, Palermo

Frigoli Real Estate
  • 85 m² cubie.
  • 2 dorm.
  • A Estrenar

Palermo Hollywood – Penthouse 3 Ambientes 119m2 con Terraza Propia

Palermo hollywood – penthouse 3 ambientes 119m2 con terraza propia exclusiva unidad de 119 m² (67 m² cubiertos + 18 m² descubiertos + 34 m² de balcón/terraza) distribuidos en dos niveles. Planta baja con living comedor integrado a cocina, dormitorio principal en suite, segundo dormitorio, baño completo y balcón terraza con parrilla. Nivel superior con espectacular terraza privada y vista panorámica a palermo hollywood. Terminaciones premium: mesadas de mármol, carpinterías de aluminio con dvh, calefacción por piso radiante y preinstalación de aire acondicionado. Una verdadera casa en las alturas, con todo el confort de un edificio boutique. Tour virtual disponible. Consultanos para coordinar visita. • Inicio de obra: en proceso • fecha de posesión: - - - legales – frigoli real estate toda la información publicada en este aviso (descripciones, valores, medidas, imágenes, etc.) Tiene carácter orientativo y no constituye documentación contractual. Puede haber diferencias con la documentación legal del inmueble (planos, títulos, facturas, reglamentos, entre otros). El profesional a cargo y la desarrolladora se reservan el derecho de modificar la obra o la descripción por motivos técnicos, legales, de mercado o mejoras, siempre que no afecte la calidad final. Las fotos e imágenes son ilustrativas. Las superficies y medidas son aproximadas y pueden variar según la construcción, la reglamentación municipal y los planos oficiales. Información adicional • todos los valores están expresados en dólares estadounidenses. • Los costos de construcción fueron calculados con presupuestos base cac mayo 2025. • Las unidades funcionales fueron estimadas en relación a la factibilidad del lote, pudiendo variar en m² según el proyecto final previo al permiso de obra. • Los valores expresados en esta lista podrán ser modificados sin previo aviso. • Los valores no incluyen el impuesto ley 25.413 ni el fondo de equipamiento (máximo 2% del valor de la unidad, según art. 9.3 del contrato originante). • Gastos de administración y comercialización: 2% parte compradora s/iva y 3% parte vendedora s/iva. Gastos adicionales según art. 8.1 del contrato originante. • Forma de pago: anticipo en usd a convenir y cuotas en pesos ajustadas por cac hasta 24 meses. Frigoli real estate recomienda verificar toda la información con profesionales de confianza antes de concretar cualquier operación. Corredor responsable: césar ernesto frigoli – cucicba nº 9478 cel/whatsapp: +54 9

Contactar
1/37
Visto

11

USD 357.000

Angel Carranza 2200, Piso 8

Departamento en Venta en Palermo Hollywood, Palermo

Frigoli Real Estate
  • 85 m² cubie.
  • 2 dorm.
  • A Estrenar

Palermo Hollywood – Penthouse 3 Ambientes 119m2 con Terraza Propia

Palermo hollywood – penthouse 3 ambientes 119m2 con terraza propia exclusiva unidad de 119 m² (67 m² cubiertos + 18 m² descubiertos + 34 m² de balcón/terraza) distribuidos en dos niveles. Planta baja con living comedor integrado a cocina, dormitorio principal en suite, segundo dormitorio, baño completo y balcón terraza con parrilla. Nivel superior con espectacular terraza privada y vista panorámica a palermo hollywood. Terminaciones premium: mesadas de mármol, carpinterías de aluminio con dvh, calefacción por piso radiante y preinstalación de aire acondicionado. Una verdadera casa en las alturas, con todo el confort de un edificio boutique. Tour virtual disponible. Consultanos para coordinar visita. • Inicio de obra: en proceso • fecha de posesión: - - - legales – frigoli real estate toda la información publicada en este aviso (descripciones, valores, medidas, imágenes, etc.) Tiene carácter orientativo y no constituye documentación contractual. Puede haber diferencias con la documentación legal del inmueble (planos, títulos, facturas, reglamentos, entre otros). El profesional a cargo y la desarrolladora se reservan el derecho de modificar la obra o la descripción por motivos técnicos, legales, de mercado o mejoras, siempre que no afecte la calidad final. Las fotos e imágenes son ilustrativas. Las superficies y medidas son aproximadas y pueden variar según la construcción, la reglamentación municipal y los planos oficiales. Información adicional • todos los valores están expresados en dólares estadounidenses. • Los costos de construcción fueron calculados con presupuestos base cac mayo 2025. • Las unidades funcionales fueron estimadas en relación a la factibilidad del lote, pudiendo variar en m² según el proyecto final previo al permiso de obra. • Los valores expresados en esta lista podrán ser modificados sin previo aviso. • Los valores no incluyen el impuesto ley 25.413 ni el fondo de equipamiento (máximo 2% del valor de la unidad, según art. 9.3 del contrato originante). • Gastos de administración y comercialización: 2% parte compradora s/iva y 3% parte vendedora s/iva. Gastos adicionales según art. 8.1 del contrato originante. • Forma de pago: anticipo en usd a convenir y cuotas en pesos ajustadas por cac hasta 24 meses. Frigoli real estate recomienda verificar toda la información con profesionales de confianza antes de concretar cualquier operación. Corredor responsable: césar ernesto frigoli – cucicba nº 9478 cel/whatsapp: +54 9

Contactar
1/49
Visto

2

USD 360.000

Humboldt al 2000

Departamento en Venta en Palermo, Capital Federal

Fabian Achaval Propiedades
  • 48 m² cubie.
  • 1 dorm.
  • 15 años

Torre Mirabilia, full amenities - 2 ambientes con cochera fija y vista la rio

Torre mirabilia categoría, vistas y altura exclusivo departamento de 2 ambientes que combina diseño, confort y una vista única al río. Incluye cochera fija y cubierta. La unidad funcional fue completamente renovada con materiales de primera línea y tecnología avanzada, superando el estándar constructivo original. Cuenta con puerta blindada reno con sistema de apertura biométrica samsung. Los pisos suizos de alto tránsito flooring reemplazan integralmente los originales tanto en el living, dormitorio y cocina, y se incorporaron cerramientos de vidrio esmerilado italiano en la cocina. También se sumaron persianas eléctricas en living y dormitorio, puertas e interiores balcomfort, y tomas bauhaus cambre con dimmer regulable en la mayoría de los ambientes. El dormitorio principal dispone de placares amplios, y el baño completo presenta revestimientos en porcelanato flooring y grifería fv de última generación, con terminaciones cromadas, diseño ergonómico y alto rendimiento funcional, logrando una estética moderna, coherente y de gran calidez visual. El amplio living-comedor se abre a un balcón aterrazado con vistas panorámicas al río y alrededores, enmarcado por ventanales de pvc con cortinas eléctricas y sistema de riel americano, que aportan gran luminosidad durante todo el día. Además, cuenta con mobiliario fijo: biblioteca de aluminio (arquimadera) a medida, que integra funcionalidad, líneas puras y un estilo minimalista de inspiración contemporánea. El ambiente se completa con un cielo raso suspendido, que incorpora ocho luminarias led de temperatura cálida, diseñadas para generar una ambientación personalizada, equilibrada y acogedora, en armonía con el diseño del espacio. La cocina independiente, con muebles reno, está equipada con anafe y horno eléctricos y cerramientos de vidrio italiano. Cuenta con climatización frío/calor mediante equipos inverter, agua caliente central y acceso por palier semi-privado (dos unidades por piso). Amenities premium piscina olímpica descubierta climatizada y piscina cubierta spa con jacuzzi y gimnasio sky meeting en último piso con vistas panorámicas cancha de tenis, fútbol 5, juegos para niños y kids club sum y quincho con parrilla servicios destacados seguridad 24 hs con control de acceso y monitoreo por cámaras ascensores de última generación (dos principales y uno de servicio) grupo electrógeno, laundry, lavadero de autos y cocheras de cortesía agua caliente central y mantenimiento integral de áreas comunes edificio apto para personas con movilidad reducida nota: la información suministrada en el presente aviso sobre el inmueble ofertado no forma parte de ningún tipo de documentación contractual y es meramente a título informativo. Las medidas, superficies, usos permitidos/no permitidos, y unidades complementarias -si las hubiera- deberán cotejarse con la escritura traslativa de dominio y con el reglamento de copropiedad. Asimismo todos los importes de gastos, especialmente las expensas indicados están sujetos a verificación. El valor del inmueble indicado en el presente puede ser modificado sin previo aviso. Todo lo plantado y adherido a la unidad, incluyendo los aires acondicionados no forman parte de la oferta. La operación supeditada a que el propietario cumplimente con la reg.2371 coti

Contactar
1/44
Visto

1

USD 318.525

Arevalo al 2200

Departamento en Venta en Palermo, Capital Federal

Oslo Propiedades
  • 50 m² cubie.
  • 1 dorm.
  • 1 baño

Departamento a la venta en Palermo

2 ambientes en dúplex con jardín y pileta propia row arévalo 96,38 m2 totales | 2 baños en suite + toilette | contrafrente viví una experiencia única en row arévalo, el proyecto joven, moderno y con identidad propia que transforma la forma de habitar palermo. Ubicado sobre arévalo 2235, entre guatemala y paraguay, en una de las zonas más deseadas del barrio por su estilo de vida activo, su conectividad y su entorno gastronómico y cultural. Esta exclusiva unidad en dúplex al contrafrente se desarrolla en dos plantas y ofrece una combinación única de diseño, privacidad y confort, con un jardín propio y pileta exclusiva, para disfrutar el aire libre en total intimidad. Distribución pensada al detalle: 2 dormitorios en suite, ambos con vestidor toilette de recepción cocina integrada jardín con pileta privada, ideal para relajarse, recibir amigos o simplemente disfrutar en casa como si estuvieras de vacaciones row arévalo está diseñado con materiales nobles, arquitectura contemporánea y amenities que elevan la experiencia diaria. Amenities del edificio: ? Lounge para coworking y encuentros ? Gimnasio equipado ? Parrilla y fogonero ? Spa con pileta cubierta climatizada ? Piscina exterior con solárium un producto único en su tipo, dentro de un proyecto en etapa de pozo, con valores promocionales de lanzamiento. Ideal para quienes buscan amplitud, estilo y calidad de vida en una de las mejores zonas de la ciudad. Consultanos para conocer más y acceder a condiciones especiales.

Contactar
1/13
Visto

1

USD 360.555

AV. DORREGO 1500, Piso 9

Departamento en Venta en Palermo, Capital Federal

LEPORE PROPIEDADES SA
  • 64 m² cubie.
  • 1 dorm.
  • 1 año

Departamento - Venta - Argentina, Capital Federal - AV. DORREGO 1511

1 unidad con terraza perimetral + parrila, palermo. Excelente piso al frente en esquina sobre av. Córdoba y av. Dorrego, con amplios ambientes luminosos y vistas panorámicas. Al ingresar cuenta conliving- comedor con cocina integrada con muebles bajo mesada, alacenas con frentes laqueados y toilette de recepción. Dormitorio principal en suite con un baño completo. Tiene un espectacular balcón aterrazado con parrilla propia. Las unidades se entregan con la pre instalación para equipos split frío - calor. Living - comedor, cocina, baños y balcón se entregan con pisos porcellanatos. Excelente ubicación a metros de niceto vega y a una cuadra de av. Córdoba con fácil acceso a variados medios de transportes y próximo a zona gastronómica y comercial más atractiva de la ciudad. Completan el proyecto las siguientes características: -gym. -Bicicleteros. -Sector co-working. -Sum multimedia. -Laundry. -Solarium. -Espejo de agua. -Roof top 360º. Las medidas son solo a efecto orientativo, las reales surgirán del plano de subdivisión una vez finalizado el proyecto lepore propiedades / lepore propiedades s.A. Cuit : -9 c.U.C.I.C.B.A. Matrícula nº 931 (sucursales caballito - palermo - centro) nota: los materiales y especificaciones del plano están sujetos a modificaciones arquitectónicas y otras a la sola discreción del desarrollador, constructor o arquitecto, o que así se requiera por ley. Los planos de planta pueden no ser a escala. Cualquier mueble, electrodoméstico o artículo de decorado representado aquí se muestra únicamente con fines artísticos e ilustrativos y no está incluido en la compra y venta de la residencia. Las dimensiones indicadas se miden a los límites exteriores de la pared exterior y la línea central de las paredes interiores y, de hecho, varían de las dimensiones que se determinarían mediante el uso de la descripción y definición de la "unidad" que se establece en la declaración (que generalmente sólo incluye el espacio aéreo interno entre las paredes perimetrales y excluye los componentes estructurales interiores). Además, las mediciones de habitaciones establecidas en cualquier plano de planta se toman generalmente en los mayores puntos de cada habitación determinada (como si la habitación fuera un rectángulo perfecto), sin tener en cuenta las salidas del corte. En consecuencia, el área de la habitación real será típicamente menor que el producto obtenido multiplicando la longitud por la anchura declarados. Todas las dimensiones son aproximadas y todos los planos y planes de desarrollo están sujetos a cambios. Representaciones orales no pueden considerarse como correctas declaraciones del desarrollador. Propiedad según ley 5115 la accesibilidad para las personas con discapacidades físicas. "Accesible".

Contactar
1/18
Visto

0

USD 369.900 + $13.560 expensas

Torre Quartier Boulevard - Humboldt 2200

Departamento en Venta en Palermo Hollywood, Palermo

Botts Real Estate SAS
  • 55 m² cubie.
  • 1 dorm.
  • A Estrenar

Quartier Boulevard 2 ambientes - Se escucha ofertas

Torre quartier boulevard quartier , amoblado 2 ambientes con espectacular vista un dormitorio en suite, living comedor, cocina y balcón con cochera fija y cubierta y baulera. En la mejor zona de palermo hollywood. Edificio con amenities premium, gimnasio, sum, piscina semi olímpica, cancha de tenis, cancha de fútbol, microcine, sauna, jacuzzi, cochera de cortesía, máxima categoría, seguridad 24 hs. Laundry, vestuarios para personal expensas $13.560 incluyen aysa abl$1.865 se escuchan ofertas. Tasamos su propiedad en el dia somos profesionales altamente especializados en tasaciones para obtener el valor real de las propiedades utilizando los criterios más adecuados, respetando y cuidando el patrimonio del cliente que confía en nuestros servicios. Aviso legal las medidas son aproximadas, las reales surgen del titulo de propiedad o plano de mensura. Las imágenes son a mero título ilustrativo. Las descripciones y valores de expensas, impuestos y servicios son aproximados y fueron proporcionados por el propietario y pueden no estar actualizados a la hora de la visualización de este aviso. Los precios indicados podrán modificarse sin previo aviso. Venta supeditada al cumplimiento por parte del propietario de la solicitud de coti, requisito de la resolución general no 2371 de la afip. Botts real estate sas martín bottger matrícula cucicba 8102 / cmcpsi 6853

Contactar
1/18
Visto

0

USD 370.000 + $13.560 expensas

Torre Quartier Boulevard

Departamento en Venta en Palermo Hollywood, Palermo

Botts Real Estate SAS
  • 55 m² cubie.
  • 1 dorm.
  • A Estrenar

Torre Quartier Boulevard 2 ambientes - Se escucha ofertas

Torre quartier boulevard quartier , amoblado 2 ambientes con espectacular vista un dormitorio en suite, living comedor, cocina y balcón con cochera fija y cubierta y baulera. En la mejor zona de palermo hollywood. Edificio con amenities premium, gimnasio, sum, piscina semi olímpica, cancha de tenis, cancha de fútbol, microcine, sauna, jacuzzi, cochera de cortesía, máxima categoría, seguridad 24 hs. Laundry, vestuarios para personal expensas $13.560 incluyen aysa abl$1.865 se escuchan ofertas. Tasamos su propiedad en el dia somos profesionales altamente especializados en tasaciones para obtener el valor real de las propiedades utilizando los criterios más adecuados, respetando y cuidando el patrimonio del cliente que confía en nuestros servicios. Aviso legal las medidas son aproximadas, las reales surgen del titulo de propiedad o plano de mensura. Las imágenes son a mero título ilustrativo. Las descripciones y valores de expensas, impuestos y servicios son aproximados y fueron proporcionados por el propietario y pueden no estar actualizados a la hora de la visualización de este aviso. Los precios indicados podrán modificarse sin previo aviso. Venta supeditada al cumplimiento por parte del propietario de la solicitud de coti, requisito de la resolución general no 2371 de la afip. Botts real estate sas martín bottger matrícula cucicba 8102 / cmcpsi 6853

Contactar
1/19
Visto

0

USD 348.000

Carranza al 1400

Departamento en Venta en Palermo Hollywood, Palermo

Mastres Realty
  • 51 m² cubie.
  • 1 dorm.
  • A Estrenar

Penthouse en Palermo Hollywood

El encanto de lo bello pensado para una vida en ambientes espléndidos y funcionales. El diseño aplicado a la búsqueda de espacios radiantes, recreativos y de distención. Proyectado para gozar la vida en plenitud. Situado en el epicentro de palermo hollywood, en un entorno próspero, de nuevas tendencias y la mejor gastronomía de la ciudad. Edificio de departamentos. Unidades de 1, 2 y 3 ambientes con balcones aterrazados, piscina y cocheras. Penthouse 2 ambientes al contrafrente en dos plantas con balcón aterrizado y terraza propia con parrilla. Dormitorio en suite y toilette. Piso 7 y 8. Fecha de entrega: marzo 2027 piscina y solárium. Cocheras disponibles u$s 30.000 todas las propiedades que figuran en esta publicación se encuentran a cargo del profesional matriculado sebastian i. Viña, cucicba 9483. Ley 5115: excepto que en la descripción de la propiedad se indique lo contrario, el edificio puede no contar con rampa para personas con movilidad reducida, y no ser accesible para personas con discapacidades físicas.- Todas las operaciones inmobiliarias son objeto de intermediación y conclusión por parte del martillero y corredor público daniela macagno (cmplp n 7734) mauricio panno, c.M.C.P.S.N.N 948 t iii f 48 y sebastian i viña (cucicba 9483) en cumplimiento de las leyes vigentes que regulan el corretaje inmobiliario, ley nacional 25.028, ley 22.802 de lealtad comercial, ley 24.240 de defensa al consumidor, las normas del código civil y comercial de la nación y constitucionales, los agentes/gestores no ejercen el corretaje inmobiliario. Todas las operaciones inmobiliarias son objeto de intermediación y conclusión por parte del corredor público inmobiliario colegiado a cargo de la publicación, cuyos datos se exhiben en la presente. La presente publicación describe las características esenciales del inmueble, debiéndose consultar al corredor público inmobiliario responsable de la operación por la eventual actualización de las medidas, descripciones arquitectónicas y funcionales, valores de expensas, servicios, impuestos, precios y demás información, cuyos valores son aproximados.

Contactar
1/42
Visto

0

USD 321.500

Juan b justo al 1500

Departamento en Venta en Palermo, Capital Federal

ONE BROKERS Argentina
  • 58 m² cubie.
  • 1 dorm.
  • A Estrenar

Venta - 2 amb de 94m2 con Terraza - QIUB- Palermo Hollywood

Presentamos qiub un complejo de usos mixtos, ubicado en el corazón de palermo hollywood. El proyecto ofrece una ubicación estratégica con excelentes conexiones de transporte, una vibrante escena gastronómica y cultural, amplios espacios verdes y una variedad de servicios de calidad. Se desarrolla en un solar de 2.390m2 que cuenta, entre una de sus características más particulares, la de tener frente sobre tres calles de una manzana atípica: av. Juan b. Justo, honduras y humboldt. Con la creación de un espacio público y una calle interior, qiub redefine el concepto de vida urbana en una ubicación privilegiada. Una torre de 27 pisos de oficinas, que cuenta con un imponente skybar en su último piso con vistas panorámicas. Residencias de lujo en la segunda torre full ammenities: pileta, gym, sum, seg 24hrs y todo el confort que estas buscando la publicación corresponde a unidad vivienda en piso 5 al frente - 2 ambientes ... Sup: 58m2 cub; 35 m2 desc; 94 m2 totales el proyecto plantea brindarte, como aporte al tejido barrial, el despegue de la torre como punto de referencia en la zona como espacio de encuentro y disfrute de su calle interna, espacios de gastronomía y usos. Residencias con amenites, locales con equipamiento comercial y 26 pisos de oficinas directamente ligadas a la conectividad de la avenida juan b. Justo. Este innovador complejo edilicio de usos mixtos redefine el estilo de vida al combinar oficinas, locales comerciales y unidades residenciales con amenidades y prestaciones de co-working, además de ofrecer la posibilidad de alquiler temporario. Qiub es un proyecto que se destaca por su bajo impacto ambiental y su integración natural al entorno con una conciencia sustentable. Cada planta cuenta con servicios individuales diseñados para reducir el consumo de energía y minimizar el impacto ecológico. Además, se utilizan materiales ecoamigables que contribuyen a la sostenibilidad del proyecto. La arquitectura se combina con el respeto por el medio ambiente. La propuesta edilicia cuenta con cinco subsuelos de estacionamiento, con sectores de autos ecológicos y espacios para bicicletas, además de las áreas técnicas y reciclado correspondientes. El vínculo entre subsuelos se desarrolla a partir de rampas, escaleras y señalizaciones que guían al usuario, además de ascensores de última generación que garantizan la comodidad y seguridad del recorrido vertical entre usos. En la planta baja, comercial y gastronómica, conviven el acceso a las diferentes actividades públicas, tanto las oficinas y residencias de índole privada. A partir del segundo piso y hasta el número veintisiete se desarrollan las plantas de oficinas, contando alguna de ellas con terrazas privadas, generadas por la rotación y retiros de la volumetría general del edificio. El hall de acceso al complejo está dado por una calle interna de triple altura, con acceso desde la calle juan b. Justo esquina honduras y por la calle humboldt. * Cocheras disponibles no incluidas en el valor * (*) las medidas presentadas son estimativas y surgiran de planos definitivos. Entrega estimada diciembre 2025 contacto: @onebrokers

Contactar
1/20
Visto

0

USD 320.000 + $450.000 expensas

Concepción Arenal, frente a Los Silos de Dorrego"

Departamento en Venta en Palermo Hollywood, Palermo

Keller Williams San Isidro -Sebastian Gonzales Chaves CMCPSI 6876  CUCICBA 7716
  • 78 m² cubie.
  • 1 dorm.
  • 14 años

Departamento tipo Loft en venta 2 ambientes escritorio. En 2 plantas!

Lindísimo loft de 2 ambientes en duplex con escritorio privado, pisos de madera y techos de hormigón en donde se combina lo moderno con estilo industrial. Desarrollado en 2 plantas, ambas con balcón corrido, super luminoso, con cochera. El edificio cuenta con full amenities, gimnasio, pileta, solárium, sauna, laundry y seguridad 24hs. Ubicado en el complejo "los silos de dorrego, edificio emblemático en la zona, cerca de centros comerciales, mercado de pulgas, zonas turísticas y de fácil acceso, es una de las más requeridas pb: gran living comedor con vista abierta a jardines y salida al balcón, cocina integrada, tipo americana y toilette de recepción. Pa: dormitorio muy luminoso con hermosa vista y salida al balcón, (concepto abierto), baño completo, gran placard y oficina/ escritorio/ habitación para bebé o niño pequeño, incorporada a la habitación principal, también cuenta con salida al balcón el loft cuenta con splits frío/calor, estufas de tiro balanceado y ventiladores de techo. Apto mascotas apto profesional con renta hasta el 30 de noviembre corredor interviniente caba y pba : sebastián gonzales chaves cucicba 7716 - cmcpsi 6876 la tasación, intermediación y la conclusión de las operaciones sobre esta propiedad son actividades exclusivas de este corredor matriculado, conforme las previsiones de la ley 20.266, la ley caba 2340, la ley provincial 10.973 y sus modificaciones y las normas reglamentarias dictadas por los colegios departamentales. Las oficinas asociadas a la red keller williams actúan en forma independiente, brindando servicios a corredores, agentes y al público en general, y su intervención se limita a la prestación de servicios inmobiliarios que no incluyen actos de corretaje ni intermediación inmobiliaria. Locaciones caba - cucicba para los casos de locación de inmuebles con destino habitacional en los que el locatario sea una persona física, queda expresamente prohibido requerir y/o percibir, mediante cualquier forma de pago, comisiones inmobiliarias y/u honorarios por la intermediación o corretaje a locatarios, sublocatarios y/o continuadores de la posesión ley 5859 art. 4: para los casos de alquiler de vivienda, el monto máximo de comisión que se le puede requerir a los propietarios será el equivalente al cuatro con quince centésimos por ciento (4,15%) del valor total del respectivo contrato. Se encuentra prohibido cobrar a los inquilinos que sean personas físicas comisiones inmobiliarias y gastos de gestoría de informes.

Contactar
1/29
Visto

0

USD 326.300

Juan B Justo 1500, CABA 5to piso UF15 2 ambs J B Justo

Departamento en Venta en Palermo Hollywood, Palermo

Eugenia Ballesteros
  • 58 m² cubie.
  • 1 dorm.
  • 1 baño

Departamento en Palermo

2 ambientes frente j b justo 94,30 mts2 totales 5 piso apto airbnb apto profesional finaliza en diciembre 2025 este monoambiente ubicado en el basamento del edificio eco sustentable de juan b justo 1500, palermo hollywood, buenos aires, argentina, es una excelente opción para aquellos que buscan un lugar cómodo y acogedor en una de las zonas más vibrantes y emocionantes de la ciudad. Con una superficie total de 94,30 metros cuadrados y una superficie cubierta de 58,80 metros cuadrados, este departamento ofrece un espacio de vida bien distribuido y funcional que se adapta a diferentes estilos de vida. Al ingresar al departamento, uno se encuentra con un ambiente integrado que comprende la cocina, el living y el dormitorio. La cocina cuenta con muebles de calidad y una mesada de corian, y está equipada con una cocina electrica. El living comedor es luminoso y espacioso, y cuenta con grandes ventanales hacia el interior del edificio. El monoambiente tiene disposición contrafrente cuya salida es hacia la calle humboldt y permite aprovechar al máximo el espacio disponible. Tambien cuenta con un amplio balcón ideal para disfrutar de una taza de café por la mañana, para relajarse leyendo un libro o simplemente para disfrutar de la vista interior del complejo. Además, el edificio cuenta con amenities de primer nivel, incluyendo una piscina, solárium, gimnasio y laundry. Estas comodidades permiten a los residentes disfrutar de un estilo de vida cómodo y moderno, sin tener que salir de su hogar. Por último, el departamento ofrece la posibilidad de adquirir una cochera, lo que permite a los residentes contar con un espacio seguro y cómodo para estacionar su vehículo. En cuanto a la ubicación, el departamento se encuentra en una zona privilegiada de palermo hollywood, cerca del polo gastronómico y comercial más importante de la zona. Se puede disfrutar de una amplia variedad de restaurantes, bares y locales comerciales, además de tener fácil acceso a los medios de transporte público. En resumen, este monoambiente en el complejo qiub es una excelente opción para aquellos que buscan comodidad, confort y una ubicación privilegiada en una de las zonas más vibrantes y destacadas de la ciudad de buenos aires. El proyecto se desarrolla en un solar de 2390 mts2 que cuenta entre una de sus características más particulares la de tener frente sobre tres calles de una manzana atípica. Estas tres calles a su vez tienen características bien diferenciadas. Mientras la calle humboldt y honduras se encuentran intimamente ligadas a la actividad del tejido barrial de zócalo comercial gastronómico y su actividad de polo audiovisual., La av. Juan b justo con su línea de metrobus se ha transformado en vía de vinculación y conectividad rápida entre puntos. (Oficinas residencias locales parking estacionamiento) el hall de acceso al complejo está dado por una calle interna detriple altura, con acceso desde la calle juan b. Justo esquina honduras y por la calle humbolt. A partir del piso 2 al 5 el edificio desarrolla residencias y del piso 2 al 27, el edificio desarrolla plantas de oficinas, variando sus dimensiones según el caso. El acceso a las unidades se realiza por palier común, el mismo cuenta con cinco ascensores. Las terminaciones generales de la torre contemplan revestimiento de piso tipo porcelanato, iluminación general de palier y de emergencia, paredes empapeladas y frente de ascensores en acero. Cada oficina cuenta con un núcleo sanitario (baño y office) privado, equipado con artefactos y revestimientos. El espacio de trabajo propiamente dicho, se entregara con la máxima versatilidad en las terminaciones para poder adaptarse al layout requerido por cada propietario los interiores serán entregados con carpeta niveladora para recibir terminación interior y cielorrasos de hormigón visto. Todas las instalaciones se ejecutan según proyectos realizados con el asesoramiento de profesionales en cada área, logrando la elección del sistema más adecuado aplicado a la categoría del edificio. Sobre cada una de ella, se dejaran acometidas en espera con sus cañerías y tableros correspondientes, en algún punto estratégico de las unidades, para poder ser derivadas por cada propietario, acorde al armado de cada unidad comercial y de acuerdo a sus necesidades. Se prevé según reglamento y normas contra incendio matafuegos y gabinetes en cada piso. El cerramiento o piel exterior, se resolverá con el sistema de ventanas con dvh. El edificio tendrá certificación leed por lo que se controlará su consumo energético una vez terminado y estando en funcionamiento. Especificaciones materiales espacios comunes oficinas y residencias planta baja *la calle de acceso con piso de piedra natural o similar con diferentes tratamientos de fachadas que den jerarquías a los distintos usos y den una continuidad visual al recorrido de la calle interna. Escaleras de salida de emergencia *pisos y escalones de alisado de cemento, con nariz metálica. *Baranda metálica con pasamanos reglamentario. Palieres principales en pisos altos. *Piso porcellanato con diseño a definir * cielorrasos suspendidos * revestimientos mdf o empapelados * iluminacion unidades funcionales de residencias las residencias impulsan una vida de integración en la planta baja compartiendo su acceso con la calle interna, su doble altura y la gran lucarna enmarca un ingreso de jerarquía y de uso de expansión para el residente. De esta integración fluimos a los niveles superiores del 2do al 5to piso donde se desenvuelven las unidades funcionales con sus espacios de privacidad, comodidades y confort y sus amenties de gimnasio, pileta cubierta y áreas de reunión o esparcimiento planteadas en los recorridos y halles de ascensores. Las unidades funcionales dan pauta de diseño, calidad y confort aplicando materiales nobles los mayores estándares. Tras estos nuevas tiempos se han priorizado en las unidades balcones aterrazados que nutran a los ambientes y sean expansiones de goce para sus usuarios. Las unidades a través de su diseño logran que los ambientes sumados a los opcionales de mobiliario sean versátiles dando la riqueza al residente de trabajar y habitar el mismo espacio. Carpintería interior *puertas de acceso a las unidades funcionales de madera lustrada o para pintar con manijón de acero. *Puertas interiores de madera o pvc *herrajes y cerraduras de primera calidad. Carpintería exterior *carpinterias de pvc o aluminio color grafito o similiar según cálculo, vidrio dvh según cálculos que brindan confort ante los ruidos y ayudan al consumo y gasto térmico. *Balcones aterrazados, con barandas propias del sistema integral de carpintería de fachada con vidrio de seguridad . Interiorismo *paramentos de revoque de yeso o de placa de roca de yeso, preparadas para recibir las terminaciones pintada o papel (a definir) *cielorrasos aplicados de yeso y armados de durclok pintados (alba o similar). *Pisos de porcelanado (san lorenzo o similar ) *espacios exteriores porcelanato o deck (a definir) baños *piso y paredes de porcellanato o cerámica esmaltada (ceramicas san lorenzo). *Griferías fv o similar. *Artefactos de roca o similar *banitory / mesada de diseño y bachas de loza de ferrum ó equivalente. *Cielorraso armado de placas de roca de yeso. *Accesorios de baños fv o similar. *Botiquín y espejo. Cocina *mesada de corian a definir con alzada del mismo material. *Mueble bajo mesada con provisión y colocación de alacenas (johnson o similar). *Pileta en acero inoxidable marca johnson o equivalente. *Anafe de placa eléctrico, provisión y colocación (glem). *Grifería monocomando fv o similar de mesada. Especificaciones generales *estructura de hormigón armado. *Tabiques interiores y divisorios de sistema de placa de roca de yeso. *Cielorrasos aplicados de yeso o armados de placa de roca de yeso, donde corresponda. Sistemas de instalaciones de las uf residencias y generales *previsión exclusivamente de canalizaciones para cañerías refrigerantes y de desagues de condensadoras y evaporadoras, para la futura instalación de equipos de aire acondicionado (daikin lg- mitsubishi o similar. (No incluye equipos intenos) telefonía, televisión y datos *provisión de para telefonía ip, datos, y tv hasta tablero de cada unidad funcional, con cableado interno. *Preparado para instalación de internet wi-fi en áreas comunes. *Canalización vacía y cajas para te externo y tv por cable en todas las unidades. Instalaciones agua fria - caliente electricidad aire acondicionado distribución interna. Detección, alarma y extinción de incendios *sistema contra incendio reglamentario con hidrantes y matafuegos. Grupo electrógeno *previsión de las instalaciones para los grupos electrógenos, provisión de equipos a definir (cetec o similar). Ascensores *ascensor marca lider mitsubishi de amplias dimensiones, para brindar comodidad, se resuelven con el moderno diseño que sigue las nuevas tendencias, creados para atender las exigencias de las normas para discapacitados. Cuenta además con el sistema de demarcación de pisos en braille, con cabinas en acero inoxidable y apertura automática, sistema de llamada anticipada, parada inteligente, etc. Amenities de residencias planta baja área de encuentro - coworking piso 1 - servicios laundry bauleras - piso 6 - gimnasio cubierto aparatos y area de aerobicos vestuarios piso 6 - pileta descubierta climatizada nota: se deja constancia que las marcas, líneas y/o modelos especificados son indicativas. Podrán ser reemplazadas por otra de calidad similar. Nota: ad referéndum aprobación final municipal .Medidas y dimensiones a verificar con la final de obra. 2025 grupo encuentro s.R.L. En cumplimiento con la normativa vigente, los asesores no ejercen el corretaje inmobiliario. La intermediación y conclusión de las operaciones inmobiliarias es desarrollada por martilleros y corredores públicos. Esta oficina inmobiliaria se encuentra a cargo de pablo nestor melera, cucicba 9505 tomo 2 folio 55 cmzc tomo 2 folio 14 representante de la firma grupo encuentro s.R.L. Con domicilio en av. San isidro labrador 4775, núñez, c1429adi cdad. Autónoma de buenos aires

Contactar
1/23
Visto

0

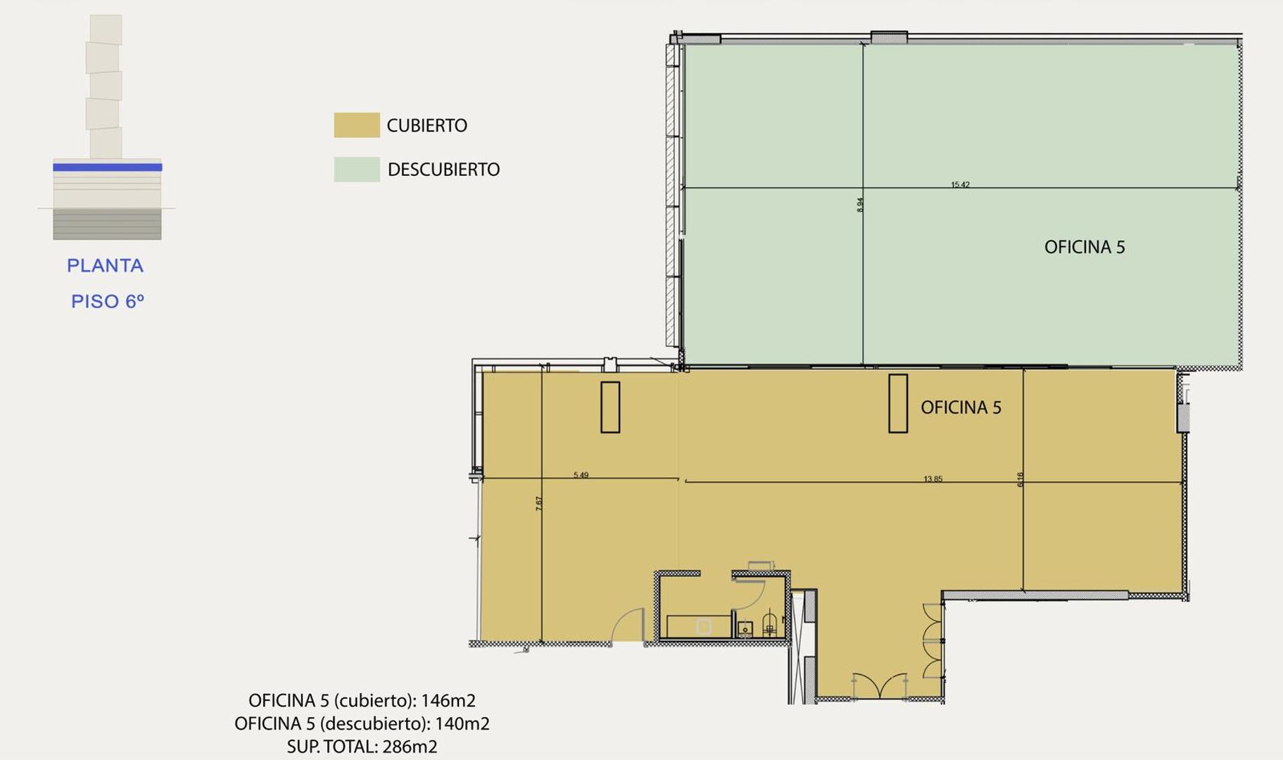
USD 894.500

Juan B Justo al 1500

Departamento en Venta en Palermo Hollywood, Palermo

Coldwell Banker Seniority
  • 146 m² cubie.
  • 1 dorm.
  • A Estrenar

Venta Departamento 2 Ambientes TORRE QIUB en Palermo Hollywood

Venta/ alquiler oficina palermo hollywood torre qiub oficina a estrenar alquiler u$s 5.616.- Venta u$s 894.500.- -Entrega marzo 2026- consultar por cocheras opcionales y oficinas disponibles en el piso 25, 26 y 27. Presentamos qiub un complejo de usos mixtos, ubicado en el corazón de palermo hollywood. El proyecto ofrece una ubicación estratégica con excelentes conexiones de transporte, una vibrante escena gastronómica y cultural, amplios espacios verdes y una variedad de servicios de calidad. Se desarrolla en un solar de 2.390m2 que cuenta, entre una de sus características más particulares, la de tener frente sobre tres calles de una manzana atípica: av. Juan b. Justo, honduras y humboldt. Con la creación de un espacio público y una calle interior, qiub redefine el concepto de vida urbana en una ubicación privilegiada. Una torre de 27 pisos de oficinas, que cuenta con un imponente skybar en su último piso con vistas panorámicas. . Oficinas de 85 a 200 m2 el proyecto plantea brindarte, como aporte al tejido barrial, el despegue de la torre como punto de referencia en la zona como espacio de encuentro y disfrute de su calle interna, espacios de gastronomía y usos. Residencias con amenites, locales con equipamiento comercial y 26 pisos de oficinas directamente ligadas a la conectividad de la avenida juan b. Justo. Este innovador complejo edilicio de usos mixtos redefine el estilo de vida al combinar oficinas, locales comerciales y unidades residenciales con amenidades y prestaciones de co-working, además de ofrecer la posibilidad de alquiler temporario. La propuesta edilicia cuenta con cinco subsuelos de estacionamiento, con sectores de autos ecológicos y espacios para bicicletas, además de las áreas técnicas y reciclado correspondientes. El vínculo entre subsuelos se desarrolla a partir de rampas, escaleras y señalizaciones que guían al usuario, además de ascensores de última generación que garantizan la comodidad y seguridad del recorrido vertical entre usos. En la planta baja, comercial y gastronómica, conviven el acceso a las diferentes actividades públicas, tanto las oficinas y residencias de índole privada. A partir del segundo piso y hasta el número veintisiete se desarrollan las plantas de oficinas, contando alguna de ellas con terrazas privadas, generadas por la rotación y retiros de la volumetría general del edificio. El hall de acceso al complejo está dado por una calle interna de triple altura, con acceso desde la calle juan b. Justo esquina honduras y por la calle humboldt. A partir del piso 2 al 27, el edificio desarrolla plantas de oficinas, variando sus dimensiones según el caso. El hall de acceso al complejo está dado por una calle interna de triple altura, con acceso desde la calle juan b. Justo esquina honduras y por la calle humboldt. A partir del piso 2 al 27, el edificio desarrolla plantas de oficinas, variando sus dimensiones según el caso. El acceso a las unidades se realiza por palier común, el mismo cuenta con cinco ascensores. Las terminaciones generales de la torre contemplan revestimiento de piso tipo porcelanato, ilu-minación general de palier y de emergencia, paredes empapeladas y frente de ascensores en acero. Cada oficina cuenta con un núcleo sanitario (baño y office) privado, equipado con artefactos y revestimientos. El espacio de trabajo propiamente dicho, se entregará con la máxima versatilidad en las terminaciones para poder adaptarse al layout requerido por cada propietario. Unidades funcionales de residencias carpintería interior puertas de acceso a las unidades funcionales de madera lustrada o para pintar con manijón de acero. Puertas interiores de madera o pvc herrajes y cerraduras de primera calidad. Carpintería exterior carpinterías de pvc o aluminio color grafito o similar según cálculo, vidrio dvh según cálculos que brindan confort ante los ruidos y ayudan al consumo y gasto térmico. Balcones aterrazados, con barandas propias del sistema integral de carpintería de fachada con vidrio de seguridad. Paramentos de revoque de yeso o de placa de roca de yeso, preparadas para recibir las terminaciones pintada o papel (a definir por el com- prador) cielorrasos aplicados de yeso y armados de durlock pintados (alba o similar). Pisos de porcelanato (san lorenzo o similar) espacios exteriores porcelanato baños piso y paredes de porcellanato o cerámica esmaltada (cerámicas san lorenzo). Griferías fv o similar. Artefactos de roca o similar vanitory / mesada de diseño y bachas de loza de ferrum ó equivalente. Cielorraso armado de placas de roca de yeso. Accesorios de baños fv o similar. Botiquín y espejo. Cocina mesada de corian a definir con alzada del mismo material. Mueble bajo mesada con provisión y colocación de alacenas (johnson o similar). Pileta en acero inoxidable marca johnson. Anafe de placa eléctrico, provisión y colocación (glem). Grifería monocomando fv o similar de mesada. Especificaciones generales estructura de hormigón armado. Tabiques interiores y divisorios de sistema de placa de roca de yeso. Cielorrasos aplicados de yeso o armados de placa de roca de yeso, donde corresponda. Informacion de contacto: nicolas savudo + 54 1 coldwell bankler seniority + 2026 coldwell banker. Todos los derechos reservados. Coldwell banker y los logotipos de coldwell banker son marcas de servicio de propiedad de coldwell banker real estate llc. El sistema coldwell banker está compuesto por oficinas propias de propiedad de una subsidiaria de realogy brokerage group llc y por oficinas adheridas al sistema coldwell banker que son de propiedad y operación independientes. En cumplimiento con la normativa vigente, los asistentes no ejercen el corretaje inmobiliario. La intermediación y conclusión de las operaciones inmobiliarias es desarrollada por martilleros y corredores públicos. Esta oficina inmobiliaria se encuentra a cargo de juan pablo mazzzara, c.U.C.I.C.B.A. Número 9308, tomo 2, folio 47, adherido al sistema coldwell banker seniority plus, c.U.I.T. -1,dorrego 1789, piso 6, oficina 605, caba cp 1414 y alejandro morrone c.M.C.P.D.J.L.M número 1110, tomo 2, folio 170, adherido al sistema coldwell banker seniority plus, c.U.I.T. -9, dorrego 1789, piso 6, oficina 605, caba cp 1414 nota: la información gráfica y escrita contenida en el presente aviso es meramente a titulo estimativo y no forma parte de ningún tipo de documentación contractual. Las medidas y superficies definitivas surgirán del título de propiedad del inmueble referido. Asimismo los importes de tasas, servicios y expensas indicados están sujetos a verificación. El valor del inmueble indicado en el presente puede ser modificado sin previo aviso. Operación supeditada a que el propietario cumplimente con la reg.2371 coti. Toda la información y medidas provistas son aproximadas y deberán ratificarse con la documentación pertinente y no compromete contractualmente a nuestra empresa.

Contactar