HIPOLITO YRIGOYEN 7100

USD 1.050.000

Venta en Banfield, Lomas De Zamora

USD 1.050.000

  • Local

    Local

  • 25 años

    25 años

LOCALES - LOCALES - BANFIELD - OESTE, GRAN BS. AS. SUR

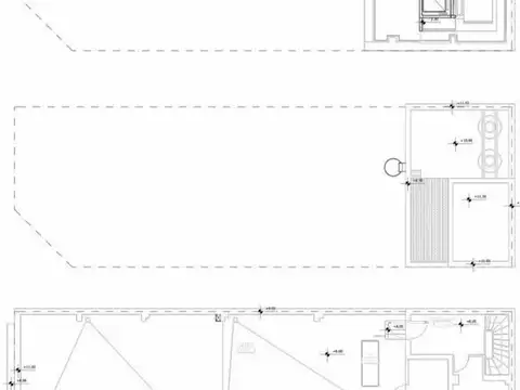
PB: Espacio de exposicion 25 mts. de fte., espacio libre de 10,82x13,5 + 4,51x13,21, local de 9,84x7,39 + 5x19, sala de exposicion de 7,82x13,50, baño, oficina de 3x4,61, taller de 8,21x23,64, oficina de 3x5, deposito de 5x11,44 c/baño, cochera al fondo de 7,5x10,84 c/baño, oficina de 6x8. PA: 2 oficinas (de 4,9x6 y4x10,84). Lote de 25,83x45,68 (Der.) y 55,88 (Izq.). Sup. Terrano: 1344,32 m2. Cub.:855,7.Semicub.:51,67. Libre: 539,7. CBR 1383. - Ancho planta baja: 25.83- Banos individuales: Si- Banos centrales: Si- Office: Si- Altura interna: 3.00- Fondo planta baja: 52.50- Con vivienda: No- Categoria: BUENA- Ultimo destino: CONCESIONARIA- Estado general: BUENO- Apto gastronomia: Si- Propiedad horizontal: No- Apto todo destino: SiSUPEDITADA A CUMPLIMENTAR LEY 2371 DEL AFIP




OFERTA PROVISTA POR SISTEMA SOM - CODIGO: CBR1296930

Ubicación

Banfield, Lomas De Zamora, G.B.A. Zona Sur

Características

  • Antiguedad: 25

  • Precio: USD 1.050.000

Código de aviso: CBR1296930

Contactá al anunciante

CABRERA PROPIEDADES