-
Local
Local
-
143 m² Total
143 m² Total
-
A Estrenar
A Estrenar
-
1 baño
1 baño
Venta Local en Las Cañitas
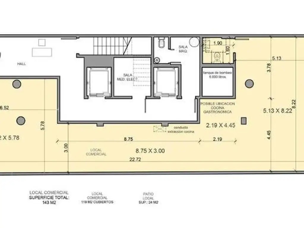
Venta Local comercial en PB, de 143 m2 totales (119 m2 cubiertos +24 de patio). Apto para gastronomía.
Este desarrollo se encuentra en el barrio de las cañitas, Palermo, una de las zonas más solicitadas de la ciudad, conocida por su ambiente exclusivo, moderno y vibrante. Cuenta con una gran cantidad de bares, restaurantes, cafés, lo que lo convierte en un lugar ideal para disfrutar de la vida social. Se encuentra cerca del Campo Argentino de Polo, lo que lo hace muy atractivo para los entusiastas de este deporte.
Es un barrio ideal para los que buscan una vida mas relajada, cercana a espacios verdes ideales para las actividades deportivas.
- Este edificio cuenta con 12 pisos, incluyendo un local en la planta baja ideal para gastronomía boutique
- Las unidades residenciales están diseñadas para profesionales y varían entre 1 y 2 ambientes.
- Excelente inversión para alquiler temporario.
- Además, el edificio ofrece excelentes comodidades como gimnasio con sauna, solárium, sector parrilla y áreas de esparcimiento.
ESPECIFICACIONES TéCNICAS
Del Edificio
- Edificio entre medianeras desarrollado en PB y 12 plantas
- PB: Gran Local
- Hall de acceso
- Laundry. Sala de Máquinas.
- 2 ascensores de elevación
- 10 pisos de viviendas: Unidades de 1 y 2 ambientes.
Opcional: Unificación de unidades a 3 ambientes con dependencia.
- En Piso 11o y 12o áreas de Esparcimiento, técnicas y vivienda de encargado.
- Tanques de bombeo y reserva de acero inoxidable
De los Amenities
- Piso 11o Gimnasio con Sauna y Toilette
- Salón de usos múltiples completo con office y toilette, Expansión
- Vivienda del encargado
- Piso 12o Sector parrilla
- Sector Solárium.
De las Unidades
- Carpinterías con perfilería de aluminio anodizado tipo Aluar línea A40 o similar con
DVH (doble vidrio hermético)
- Provisión de cañerías de cobre para aire acondicionado tipo Split, con provisión de
equipos tipo inverter (gran ahorro de energía y mayor confort ambiental)
- Provisión de suministro de agua caliente central. Termos de alta recuperación Rheem o similar.
- Cañerías para suministro de agua fría y caliente aquasystem o similar
- Solados con porcelanato símil madera 1ra calidad en todos los ambientes incluido
palier y balcones
- Amoblamiento de cocina con mesada y alacena
- Mesada de cocina en mármol con bacha de acero inoxidable.
- Griferías monocomando FV / DECA PIAZZA o similar
- Anafe eléctrico Domec o similar
- Horno grill eléctrico Domec o similar
- Baños con mesadas de mármol y revestimiento cerámicos.
- Artefactos sanitarios Ferrum o similar
- Bañeras de acero enlozadas Ferrum o similar
- Instalación eléctrica con disyuntor diferencial y termomagnética.
- Herrajes de 1ra calidad.
- Frentes de placard espejados en departamentos Orange y red, sin interiores.
Estamos para asesorarte y ayudarte a encontrar la unidad ideal para vos.
Ubicación
Palermo, Capital Federal
Características
-
Sup. Cubierta: 119 m2
-
Cant. Baños: 1
Datos básicos
-
Precio: USD 560.000
Ambientes del local
- Baño
Código de aviso: PRO-1491488
Propiedades Similares
-
USD 600.000
+ $ 2500 expensas
ESLOVENIA 1900
- 160 m² Total
- 1 planta
-
USD 560.000
Avenida General Indalecio Chenaut 1700
-
USD 560.000
TH47 Boulevard | Chenaut 1763
- 142 m² Total
- 12 plantas
-
USD 600.000
+ $ 70000 expensas
Ortega y Gasset al 1800
- 185 m² Total
- 2 plantas