(1) (1)
  • Palermo

Alquiler

Local

USD hasta 50K

Buscar solo avisos en moneda:

Dorm|Amb

Más filtros Más filtros

Características

Superficie total

Nombre de calle y altura

Expensas

$

Tipo de urbanización

Plantas

Servicios

Tipos de ambientes

Tipo de anunciante

268 Locales en Alquiler en Palermo

1/37
Visto

900

$ 5.500.000

Migueletes 1080

Local en Alquiler en Las Cañitas, Palermo

Mel Propiedades
  • 137 m² Total
  • A Estrenar
  • 1 baño

ALQUILER LOCAL APTO GASTRONOMICO LAS CAÑITAS

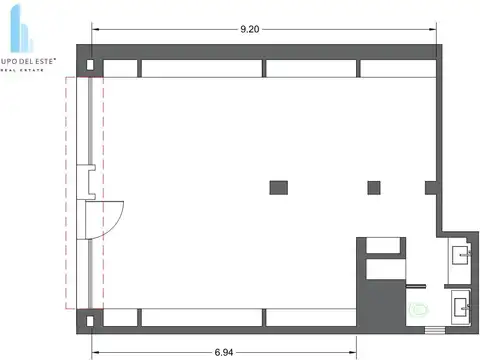
[Mel-13721] -gran oportunidad de alquilar en el exclusivo barrio de las cañitas- apto gastronómico. Local comercial con vidriera al frente, muy poca oferta de este tipo de producto. En planta baja, planta libre con un baño apto uso con personas con movilidad reducida. En el subsuelo está prevista la instalación de cocina con instalación de gas y ventilación al 1° piso. Tiene la posiblidad de armado de baños para dama y caballero. Se entrega en obra gris. Contrato por 36 meses. Destinos prohibidos: fruteria; verduleria; carniceria; polleria; pescaderia; supermercados. Taller mecanico /gomeria; ferreteria; remiseria, mensajeria; lavadero; cerrajeria; mariales electricos; armeria; respuestos automotores; matafuegos; agencia de loteria; oficina de correo; pintureria, ningun material inflamable. Garage. Requisitos: garantía caba o seguro de caución. Ingresos comprobables que tripliquen el valor de alquiler. Mes adelantado; deposito. Certificaciones de firmas e informes a cargo del locatario. Ambientes: local (17.2x8.6) servicios: cloacas, gas depósito (meses): 2 impuestos a cargo de: inquilino agua a cargo de: inquilino mel, 50 años concretando sueños nota importante/relevante: las descripciones, fotos, medidas del inmueble, precios, valores de expensas, impuestos y servicios son aproximados y meramente orientativos, y no obligan contractualmente a mel propiedades srl ni resultan vinculantes. Matriculados: julia mel matricula nº 52 maría eva parada matricula nº 251 raúl mel matricula nº 883

Contactar
1/19
Visto

231

$ 2.950.000 + $245.000 expensas

Beruti 3700

Local en Alquiler en Palermo, Capital Federal

Roberto Nicolas Negocios Inmobiliarios
  • 94 m² Total

Beruti y Scalabrini Ortiz Local 94m2 Totalmente a Nuevo!

Roberto nicolas negocios inmobiliarios le ofrece en alquiler: imponente local comercial.- No apto gastronomia ubicación: beruti 3785 (casi scalabrini ortiz) subte "d" estación scalabrini ortiz.- Superficie total: 93,68m2. Planta baja: 67,16 m2 sótano: 26,52m2.- Planta baja: frente: 4,10mts x profundidad:15,00 mts.planta sótano: frente: 4,10mts x profundidad: 6,80mts.- Revestimientos e instalaciones modernas (electricidad, gas, cloaca, circuito de agua caliente y fria) vidriera confeccionadas con marco de acero inoxidable y vidrio laminado 5+5mm, puerta en blindex, manijones de acero inoxidable.- Preparado con instalaciones de agua en varios puntos estratégicos de la planta del local.- Impecable estado.- Excelente perfil empresarial.- Ideal peluqueria, estetica femenina, inmobiliaria, etc. Contrato por 2 años: valor locativo inicial: $2.800.000 + iva (no incluido).+ Expensas ($ 250.000) + agip + aysa + servicios de electricidad y gas actualización trimestral por ipcba.- 1 mes valor inicial adelantado.- 2 meses de deposito.- 1 garantia de propiedad de capital federal.- Honorarios inmobiliarios 5% sobre monto total del contrato.- Seguro de incendios.- Gastos administrativos: timbrado de informes para exámen jurídico de garantia, certificación de firmas ante escribano publico. Impuesto de sellos.- Art. 5°: incorpórase como inciso 9 del artículo 10 de la ley 2340 (texto consolidado según ley 5666) el siguiente texto: exhibir en todos los locales y/o oficinas en los que se preste servicios de corretaje inmobiliario carteles visibles al público con la siguiente leyenda: se encuentra prohibido cobrar comisiones inmobiliarias y gastos de gestoría de informes a los inquilinos que sean personas físicas. Para los casos de alquiler de viviendas, el monto máximo de comisión que se le puede requerir a los propietarios será el equivalente al cuatro con quince centésimos por ciento (4,15%) del valor total del respectivo contrato.- Art. 5°: incorpórase como inciso 9 del artículo 10 de la ley 2340 (texto consolidado según ley 5666) el siguiente texto: exhibir en todos los locales y/o oficinas en los que se preste servicios de corretaje inmobiliario carteles visibles al público con la siguiente leyenda: se encuentra prohibido cobrar comisiones inmobiliarias y gastos de gestoría de informes a los inquilinos que sean personas físicas. Para los casos de alquiler de viviendas, el monto máximo de comisión que se le puede requerir a los propietarios será el equivalente al cuatro con quince centésimos por ciento (4,15%) del valor total del respectivo contrato.- Servicios: cloacas, gas depósito (meses): 2 impuestos a cargo de: inquilino agua a cargo de: inquilino

Contactar
1/10
Visto

200

$ 4.800.000 + $400.000 expensas

URIARTE al 1300

Local en Alquiler en Palermo, Capital Federal

PROMI Propiedades
  • A Estrenar
  • 3 baños

LOCAL APTO TODO RUBRO PALERMO SOHO

Ubicado en el vibrante corazón de palermo soho, este local comercial en la calle uriarte, entre cabrera y niceto vega, ofrece una oportunidad excepcional para establecer o expandir su negocio en una de las zonas más codiciadas de buenos aires. Con una superficie cubierta de 250 m2 y un espacio descubierto de 200 m2 en el fondo, esta propiedad ofrece una gran versatilidad y amplitud, ideal para una variedad de rubros comerciales. El local se encuentra en impecable estado y cuenta con espacios totalmente modificables, permitiendo adaptarse a las necesidades específicas de su negocio. Dispone de tres baños, uno de ellos adaptado para personas con discapacidad, asegurando accesibilidad para todos los clientes. Además, incluye una oficina y un espacio apto para ser utilizado como cocina o sala de trabajo. La ubicación estratégica garantiza un alto tránsito peatonal y vehicular, rodeado de reconocidos locales gastronómicos y comerciales, lo que aumenta el potencial de éxito para cualquier negocio que se instale aquí. El local está equipado con aire acondicionado central y luminosidad abundante. Esta propiedad es una opción ideal para quienes buscan un local en una zona de gran afluencia y con todas las comodidades necesarias para operar con éxito. Apto todo rubro solicite su tasación: evaluamos su propiedad con criterio, experiencia y conocimiento real de mercado. Confíe su patrimonio a una inmobiliaria comprometida con resultados y atención personalizada. El mejor consejo de todos los tiempos - hay que ser codiciosos cuando los demás son miedosos y miedosos cuando los demás son codiciosos, o comprar cuando todos venden y vender cuando todos compran. W.B. Nota legal: las medidas y datos son a titulo informativo. Saul mizrahi / matricula 5599

Contactar
1/10
Visto

72

$ 5.000.000

Cabrera al 5100

Local en Alquiler en Palermo Soho, Palermo

5411 Estate
  • 142 m² Total
  • A Estrenar
  • 1 baño

Alquiler Local a estrenar 142m2 totales sotano en Palermo Soho

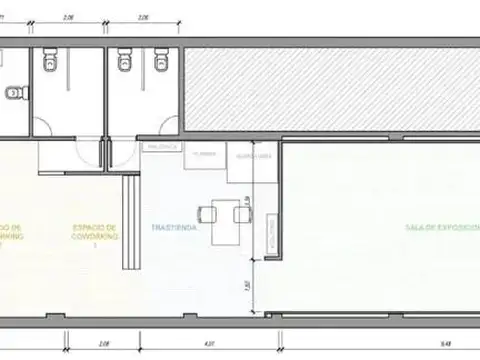
Excelente local a estrenar apto todo rubro/gastronomía liviana - cabrera al 5100 entrega 12/2025 se alquila importante local comercial de 142 m2 totales, ubicado estratégicamente en la calle cabrera al 5100. Apto gastronomía liviana! Ideal para bar, cafetería de especialidad, dark kitchen o franquicias. La propiedad se encuentra en el límite "caliente" entre palermo soho y hollywood, una zona de alto tránsito vehicular y peatonal, rodeada de oficinas y residencias que garantizan clientela tanto de mediodía como de noche. Características técnicas y distribución: superficie: 142 m2 distribuidos inteligentemente. Cuenta con instalación de gas natural. Electricidad trifasica. Pre instalacion de a/a. Planta baja: amplio salón libre, ideal para disposición de mesas o mostrador de despacho. Sótano/subsuelo: espacio clave para uso como depósito de mercadería, cámaras de frío o vestuarios de personal, optimizando los metros cuadrados del salón principal. Baño apto discapacitados ubicación estratégica y entorno: emplazado en un corredor gastronómico en expansión, este local ofrece la combinación perfecta de visibilidad y acceso: polo comercial: a solo pocas cuadras del distrito arcos premium outlet y el polo científico tecnológico. Público: captación de público corporativo (almuerzos de oficina) y público joven/turístico (after office y cenas). Accesibilidad: salida rápida hacia av. Juan b. Justo, av. Santa fe y av. Córdoba. Conectividad: inmejorable acceso para delivery y llegada de clientes: subte: a pocas cuadras de la estación palermo (línea d). Tren: cercanía con la estación palermo (línea san martín). Metrobus: acceso inmediato al metrobus de av. Juan b. Justo (líneas 34, 166, 39, 111, 55, etc.). Condiciones de alquiler: contrato comercial a 3 a 5 años. Mes de adelanto + mes de depósito. Garantía seguro de caución. Posibilidad de 1 mes de gracia para equipamiento. Posibilidad de pagar en dolares o en pesos + actualizacion. Una oportunidad única para instalar tu proyecto gastronómico en una zona consolidada y de fácil acceso. Consultanos para coordinar una visita y ver el potencial del local! En cumplimiento de la ley nacional 25.028, ley 22.802 de lealtad comercial, ley 24.240 de defensa al consumidor, junto con las normas del código civil y comercial de la nación y constitucionales, los asesores no ejercen el corretaje inmobiliario. Todas las operaciones inmobiliarias son objeto de intermediación y conclusión por parte de nuestro profesional matriculado. Corredor responsable capital federal: raul alvarez c.U.C.I.C.B.A nro: 8354 provincia buenos aires: ezequiel marcelo c.S.M. 2947

Contactar