(2) (1)
  • Recoleta

  • Villa Urquiza

Alquiler

Negocio Especial

Precio

Buscar solo avisos en moneda:

Dorm|Amb

Más filtros Más filtros

Nombre de calle y altura

Tipo de anunciante

9 Negocios Especiales en Alquiler en Recoleta, Villa Urquiza

1/18
Visto

0

USD 5.500

Av Pueyrredon al 1400

Negocio especial en Alquiler en Recoleta, Capital Federal

GIMENEZ INMUEBLES

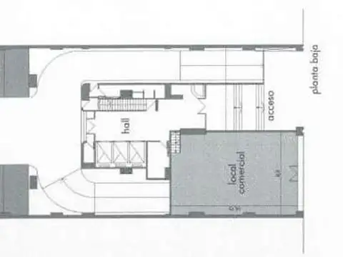
Edificio Comercial en 3 Plantas a Estrenar - Recoleta

Edificio comercial en esquina de av. Pueyrredón y av. Santa fe totalmente refaccionado excelente propiedad comercial ubicada en una de las zonas más transitadas y visibles de la ciudad, ideal para centro de estética, consultorios, oficinas premium o showroom. El edificio se desarrolla en 3 plantas por escalera, con una superficie total de 270 m2 cubiertos más una terraza de 90 m2 con vista abierta. Cada planta cuenta con amplios espacios luminosos, pisos nuevos, baños y cocina completamente renovados, e instalaciones actualizadas. La propiedad combina imagen corporativa, funcionalidad y ubicación estratégica, sobre una esquina icónica con altísimo flujo peatonal y vehicular, a pasos del subte y múltiples líneas de transporte. Listo para entrar y empezar a trabajar. Superficie total: 360 m2 (270 m2 cubiertos + 90 m2 descubiertos). Agostinelli de gimenez cmcpsi 5839 - cucicba 3682 venta supeditada al cumplimiento por parte del propietario de los requisitos de la resolución general no 2371 de la afip (pedido de coti). Aviso importante: toda la información expresada en este anuncio: medidas, memoria descriptiva, precios, valores, fotografías, renders, impuestos y servicios, expensas, plazos de entrega, etc. Fueron provistas por nuestros comitentes o por el desarrollador, y pueden no estar actualizados al momento de este aviso por lo que pueden arrojar discrepancias. La información exacta, surgirá de los títulos, planos y demás documentación legal del inmueble. Las publicaciones no son vinculantes ni contractuales, contienen datos expresados a título orientativo, aproximadas y deberán ratificarse con la documentación pertinente y no compromete contractualmente a nuestra empresa. Los gastos de expresados refieren a la última información sujetos a confirmación. Gimenez inmuebles s.A recomienda al interesado, realizar las verificaciones respectivas de la documentación que estimen necesaria, previa a la concreción de una operación. A tales fines gimenez inmuebles s.A facilitara todo lo que el cliente requiera a total satisfacción y conocimiento, poniéndose a entera disposición.

Contactar