Consultar dirección

USD 130.000

Venta en Lomas De Zamora, Buenos Aires

USD 130.000

  • Oficina

    Oficina

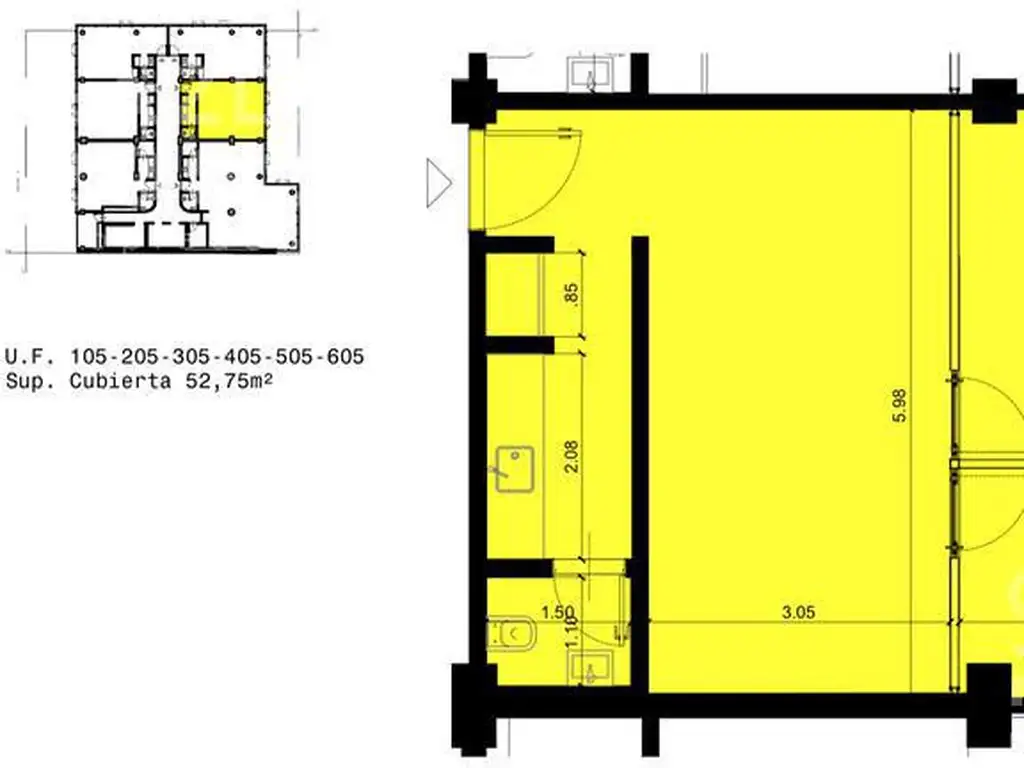
  • 53 m² Cubierta

    53 m² cubie.

  • 1 baño

    1 baño

  • A Estrenar

    A Estrenar

  • Monoambiente

    Monoam.

  • Con seguridad

    seguridad

Oficina - Lomas De Zamora

Edificio Corporativo en Lomas de Zamora.
Consulte Anticipo y 48 Cuotas

Se adapta fácilmente a las necesidades de cada inversor incluyendo a los más pequeños. Consúltenos para mayor información.

Oficinas de 20 m2, 35 m2, 41 m2,58 m2, 100 m2, 145 m2 y 367 m2. Cada una con su baño privado. En PB hay un gran Local comercial con cocheras de uso exclusivo.

Desarrollado en dos subsuelos, Planta Baja y 16 pisos, dos de ellos cuentan con una gran terraza de uso privado.

Edificio dispuesto en la esquina de Av. Hipólito Yrigoyen y Juan José Castelli. Cercano a la plaza principal de Lomas de Zamora, a Juzgados Municipales y Tribunales de Familia. Ubicado a metros del Policlínico de Lomas de Zamora, a tres cuadras del Hospital Británico y a dos cuadras del Consejo Profesional de Ciencias Económicas.

Vea las plantas en las imágenes y brochure adjuntos.

CMCPLZ Mat 3963 / 3964
CUCICBA Mat 8182 / 8184

Las fotos no son vinculantes ni contractuales. Las medidas y superficies son aproximadas y no pueden ser consideradas como definitivas ni tienen carácter contractual entre las partes, las mismas surgen del Estado Parcelario y la documentación correspondientes. Esta información (imágenes, superficies y medidas) se expone y publica a mero efecto orientativo.

Ubicación

Características

  • Seguridad

  • Cant. Baños: 1

  • Apto Profesional

  • Sup. Planta: 53 m2

  • Baño
  • Agua corriente
  • Electricidad
  • Seguridad

Código de aviso: 382788

Contactá al anunciante

GAZDA PROPIEDADES