(1) (1)
  • Santa Fe

Operación

Terreno

Precio

Buscar solo avisos en moneda:

Dorm|Amb

Más filtros Más filtros

Características

Superficie total

Nombre de calle y altura

Tipo de urbanización

Fot

Servicios

Tipo de anunciante

12.027 Terrenos en Santa Fe

1/2
Visto

2.593

USD 410.000

Dorrego 919

Terreno en Venta en Centro, Rosario

Lima Propiedades
  • 349 m² Total
  • 8 mts Frente
  • 34 mts Fondo

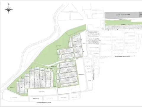
Terreno en Centro

Terreno en venta - oportunidad para desarrolladores en área central de rosario imaginate proyectar un edificio en pleno corazón de rosario, en una cuadra estratégica donde todo sucede: a metros de av. Rioja, italia y córdoba. Una ubicación que combina flujo peatonal, conectividad, vida urbana y demanda sostenida de vivienda y locales comerciales. Este lote no es solo tierra: es potencial constructivo inmediato en una de las zonas más buscadas para desarrollos inmobiliarios. La proporción del terreno, su frente definido sobre dorrego y su expansión hacia el fondo, permiten pensar un proyecto eficiente, adaptable al tejido urbano y alineado con las ordenanzas vigentes para lograr un edificio moderno, rentable y de rápida comercialización. Ubicación privilegiada área central rosario a pasos de ejes comerciales, transporte, universidades, oficinas, centros médicos y el circuito gastronómico del centro. Características del lote frente: 8,66 m sobre dorrego fondo: 40,30 m superficie total: 349 m2 inmueble libre de afectación municipal para utilidad pública condiciones urbanísticas y potencial constructivo ordenanzas vigentes: 8243/08 10104/20 8757/11 altura máxima permitida: 25 m (planta baja + 8 pisos) usos permitidos: residencial, comercial y mixto ideal para desarrollo de departamentos de vivienda con locales en planta baja adaptable a normativas de salientes y balcones plus diferencial posibilidad de adquirir departamentos terminados como parte de la negociación. Zona con altísima demanda de unidades chicas y medianas para vivienda y renta. Excelente entorno para proyecto de inversión con rápida absorción de mercado. Desarrollá donde el mercado ya está consolidado lotes con este perfil urbanístico y esta ubicación son cada vez más escasos en el área central. Contactanos y analizá el potencial real de este terreno para tu próximo edificio. Nota importante: toda información y medidas provistas son aproximadas y deberán ratificarse con la documentación pertinente y no compromete contractualmente al anunciante. Los gastos expresados refieren a la última información recabada y deberán confirmarse. Fotografías no vinculantes ni contractuales.

Contactar
1/12
Visto

2.500

USD 14.400

El Calden 100

Terreno en Venta en Funes, Rosario

S T I PROPIEDADES
  • Loteo
  • 480 m² Total
  • 12 mts Frente

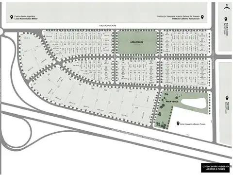
CONDOMINIO DE ALVEAR - a 30' del centro de Funes - Entrega y ctas fijas

Único disponible de 480m2 precio de lista u$d38.400 "tomamos tu usado al mejor precio" entrega u$d14.400 + 48 ctas fijas condominio de alvear es un proyecto de urbanización de tipo barrio cerrado residencial compuesto por 69 lotes desde 420 a 620 m2 destinados a vivienda, distribuidos en una diagramación sencilla donde todas las unidades se plantean con vista panorámica al green ride (paseo verde con circuito aeróbico) combinado con una amplia forestación de diversas especies y parquización de primer nivel; rest area (áreas de descanso y esparcimiento); gym (área de entrenamiento localizado); sport zone (campo de fútbol y tenis); social house (ubicado en la zona de deportes con bar y vestuarios) y multipurpose room (ubicado al ingreso) destinado a reuniones de negocios y otros la propuesta se planifica en un entorno atravesado por la naturaleza, la armonía y la tranquilidad características de la vida de campo, pero con las virtudes edilicias y de infraestructura urbana que una localidad como alvear propone, convirtiéndolo sin dudas, en el mejor y más tentador lugar para proyectar el futuro y las inversiones. Ubicado a 15' del microcentro de la ciudad de rosario y a pocos metros de ruta 18 sobre calle el caldén con acceso empedrado de calidad y vía inmediata a au. Ros-bs, condominio alvear promete proyectarse como una innovadora y más que renovada propuesta de vida. Condominio de alvear se emplaza a no más de 200 metros de 2 grandes y reconocidos núcleos urbanos: tierra de sueños alvear y campos del oeste alvear 1 y 2 dónde encontrarás numerosos e importantes comercios, así como dependencia pública (sede comuna distrito oeste; ruta 18 ferretería; corralón la carolina; complejo blessing; el bodegón; dietética la carolina; supermercado los 10 hermanos; entre otros puntos de servicios y entretenimiento) el caldén y r18 es un punto de referencia general ya que el mismo cuenta con la 1ra semaforización del tramo rosario – piñero en conjunto con paradas de ómnibus y dársenas de giro, así mismo es la referencia para acceso a ao12 y estación de servicio gulf a solo 1500 metros. La carolina es una zona de importantes inversiones inmobiliarias y sostenido crecimiento armónico con el entorno. Presenta baja densidad edilicia, lo que permite el predominio de áreas verdes. Algunos de nuestros lotes se encuentran distanciados de las principales rutas aportando una aislación sonora ideal, con las aves como único acompañante musical. Los emprendimientos que comercializamos son, completamente, innovadores ofreciendo opciones únicas en el mercado, tanto en los servicios como en diseños y amenities en los casos de barrios. Finalización de obra prevista para fines 2026, principio de 2027. "Si querés vender o alquilar, no dudes en contactarnos" más de 15 años en la ciudad! Inmobiliaria. Constructora y urbanizaciones. Sti propiedades - líder en ventas comercializador oficial. Ci mariano l. Mortellaro mat. 1207 martillero público, corredor mobiliario e inmobiliario, administrador de consorcios y tasador. *Atención: la ubicación del anuncio publicitario puede no ser exacta. *Para coordinar una cita, deberá ponerse en contacto mediante los números telefónicos, whatsapp, correo electrónico o formulario de consulta y completar los requerimientos.

Contactar
1/6
Visto

2.018

USD 100.000

Los Pasos Del Jockey 3 - Ugarteche 500

Terreno en Venta en Fisherton, Rosario

MALCOLM PROPIEDADES
  • 830 m² Total
  • Excelente

LOTE 830M² EN LOS PASOS DEL JOCKEY

Lote 830m² en los pasos del jockey 3 - barrio los arroyos | conectividad y naturaleza ¿Buscás el equilibrio perfecto entre la paz de funes y la energía de rosario? + Este lote en los pasos del jockey es el lugar donde tu familia puede empezar a proyectar. Ubicación y entorno: + manzana h, lote 14. + Emplazado estratégicamente dentro de rosario y funes, con conexión directa al jockey club. Viví a minutos de todo lo que necesitás: + deporte: ingreso directo al jockey club y a 3km del club old resian, 200m del estadio mundialista de hockey + shopping: a 4km de fisherton plaza (supermercado y locales). + Conectividad: a 4.5km del aeropuerto y con 5 vías de acceso rápidas (mendoza, ruta 9, jorge newbery, av. De las carretas). + Diseño: lote regular, ideal para facilitar cualquier proyecto arquitectónico y optimizar los espacios verdes. + Es el sector con mayor proyección de crecimiento, pensado para familias que valoran el tiempo, la seguridad y la vida de barrio sin alejarse de la ciudad. Servicios: cloacas, gas otros servicios: vivienda, alambrado perimetral malcolm propiedades y asoc. Teléfonos: 448-5293 / / .- Redes: instagram: @malcolmpropiedades facebook: malcolm propiedades toda la información y medidas provistas por los propietarios, son aproximadas y deberán ratificarse con la visita al inmueble y la documentación pertinente. Los gastos expresados refieren a la última información recabada y deberán confirmarse. Todas las fotografías son propiedad intelectual de malcolm propiedades y no es permitida su utilización comercial. Información y fotografías no son vinculantes ni contractuales y no comprometen a la empresa ni al profesional interviniente. . La publicación de este inmueble es a solo título informativo, pues la venta de la propiedad está supeditada a que el propietario cumplimente el trámite ante el arca para la obtención del número de coti correspondiente.

Contactar
1/18
Visto

2.006

USD 140.000

VIDA LAGOON

Terreno en Venta en Vida Lagoon, Funes

DUNOD SA
  • 797 m² Total
  • 20 mts Frente
  • 40 mts Fondo

Venta de lote en Vida Lagoon - Funes

Lote de 797 m2 aprox. Frente 20 x 40 el barrio vida lagoon es un proyecto único e innovador ubicado en la ciudad de funes. Con 1042 lotes de 600 a 1200 m2 y 60 hectáreas de áreas verdes, este barrio es el lugar perfecto para aquellos que buscan vivir en una comunidad de alta calidad y disfrutar de la naturaleza. Una de las principales características del barrio vida lagoon es su laguna cristalina de 23300 m2, que cuenta con un muelle para deportes acuáticos, juegos inflables y playas de arena de cuarzo. El agua de la laguna es filtrada con una innovadora tecnología, lo que la hace amigable con el medio ambiente y de bajo costo de mantenimiento. Además, el barrio vida lagoon cuenta con un club house y centro de eventos, una zona de playa familiar, servicios de playa como reposeras, sombrillas y sanitarios, un puesto de comida, una cancha de voley playa, un restaurante con vista a la laguna, un parque de conservación natural y juegos infantiles. También hay una península con mirador y estacionamientos disponibles para los residentes. Con su proyecto sustentable y amigable con el medio ambiente, el barrio vida lagoon es el primer barrio de su estilo en el interior del país. Si estás buscando vivir en una comunidad única y rodeado de la belleza natural, este es el lugar perfecto para ti.

Contactar