(1) (1)
  • Santo Tome

Operación

Terreno

USD 65K-75K

Buscar solo avisos en moneda:

Dorm|Amb

Más filtros Más filtros

Características

Superficie total

Nombre de calle y altura

Tipo de urbanización

Fot

Servicios

Tipo de anunciante

25 Terrenos en Santo Tome

1/31
Visto

1

USD 70.299

Colectora Norte Autopista AP01

Terreno en Venta en Santo Tome, Departamento de Santa Fe La Capital

Demichelis Biasoni
  • 1.000 m² Total
  • 50 mts Frente
  • 20 mts Fondo

VENTA-TERRENO- SANTA FE - AUTOPISTA SANTA FE/ROSARIO - ZONA COUNTRY

La esmeralda es un proyecto de vida rodeado de naturaleza y a pocos minutos de la ciudad. La misma cuenta con paneles solares y gas natural. 30 hectáreas destinadas a viviendas unifamiliares y espacios de esparcimiento para que puedan disfrutar niños y adultos, con lotes de 700 y 1000mts2. El masterplan está pensado para brindar a los habitantes de la esmeralda los mejores recursos para que su vida esté rodeada de tranquilidad, seguridad, esparcimiento y variedad de opciones deportivas. La esmeralda cuenta con un excelente acceso, a 10 minutos de la ciudad, arquitectura moderna, infraestructura urbana, seguridad y servicios; características que lo definen como un lugar ideal para vivir y disfrutar en familia. Espacios diseñada bajo la premisa de optimizar el contacto con la naturaleza y mejorar la calidad de vida de sus habitantes, la esmeralda cuenta con espacios de uso común que aportan múltiples opciones deportivas y sociales. -Boulevard recreativo -club house -circuito aeróbico -proveduría / bar -s.U.M. -Asadores -estaciones saludables / deportivas -piscina -estaciones con bicicletas ubicado en la zona de countries, está rodeado de hectáreas de campo y es testigo de los mejores atardeceres de la zona! Posibilidad de financiación en cuotas! Precios: lotes de 1000mts2: desde usd 70.299 hasta 75.684 de contado.

Contactar
1/5
Visto

0

USD 75.000

Autopista Rosario - Santa Fe

Terreno en Venta en Santo Tome, Departamento de Santa Fe La Capital

REMAX Rumbo
  • 717 m² Total

VENTA TERRENO EN SAN TOMÁS - ETAPA LAGO

Corredor responsable: manuel gonzález zurbriggen cci 684 - contacto: maría sol maciel se vende terreno en tercera etapa de urbanización lote 18 de 716.97 m2 ubicada en lago de santomás. Santomás es un desarrollo urbano de 150 hectáreas único y original en la región, en el que se proyectan novedosos estilos constructivos conviviendo en armonía en un entorno natural, abierto y seguro. -Cableado subterráneo -red cloacal -alumbrado publico led -monitoreo y seguridad -calles pavimentadas -cañería tritubo -agua corriente. Acepta financiacion - rau s.R.L. No ejerce el corretaje inmobiliario. El presente sitio web es una plataforma en donde cada oficina inmobiliaria independiente que contrata los servicios re/max puede publicar las propiedades a su cargo. Cada oficina es de propiedad y gestión independiente, por lo que rau s.R.L. No interviene en los datos de la publicación, en la operación inmobiliaria, ni en la confección y/o firma del boleto de compraventa y/o escritura y/o contrato de alquiler. En cumplimiento de las leyes vigentes que regulan el corretaje inmobiliario, ley nacional 25.028, ley 22.802 de lealtad comercial, ley 24.240 de defensa al consumidor, las normas del código civil y comercial de la nación y constitucionales, los agentes/gestores no ejercen el corretaje inmobiliario. Todas las operaciones inmobiliarias son objeto de intermediación y conclusión por parte del corredor público inmobiliario colegiado a cargo de la publicación, cuyos datos se exhiben en la presente. La presente publicación describe las características esenciales del inmueble, debiéndose consultar al corredor público inmobiliario responsable de la operación por la eventual actualización de las medidas, descripciones arquitectónicas y funcionales, valores de expensas, servicios, impuestos, precios y demás información, cuyos valores son aproximados.

Contactar
1/6
Visto

0

USD 67.000

Barrio 5, manzana , lote 25

Terreno en Venta en Santo Tome, La Capital

REMAX Futuro
  • 801 m² Total

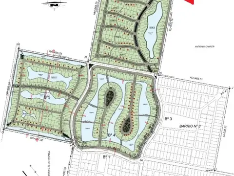
LOTE 800MT EN BARRIO 5 LA SERENA, NUEVOS AIRES

Corredor responsable: marcos provvidenti cci sta fe n 0198 - contacto: agustin torres del sel lote 25, manzana 5. Lote de 800 mt., En el barrio 5, la serena del country nuevos aires. El mismo tiene una ubicación privilegiada frente a la laguna. Seguridad y confort: - el country cuenta con camáras de vigilancia que monitorean las 24hs. - El country cuenta con tres portales de ingreso, uno para cada barrio facilitando el acceso. Naturaleza y tranquilidad: - espacios verdes, lagunas internas, bicisendas, etc. Entretenimiento: - chanchas deportivas, sum y piscina. Rau s.R.L. No ejerce el corretaje inmobiliario. El presente sitio web es una plataforma en donde cada oficina inmobiliaria independiente que contrata los servicios re/max puede publicar las propiedades a su cargo. Cada oficina es de propiedad y gestión independiente, por lo que rau s.R.L. No interviene en los datos de la publicación, en la operación inmobiliaria, ni en la confección y/o firma del boleto de compraventa y/o escritura y/o contrato de alquiler. En cumplimiento de las leyes vigentes que regulan el corretaje inmobiliario, ley nacional 25.028, ley 22.802 de lealtad comercial, ley 24.240 de defensa al consumidor, las normas del código civil y comercial de la nación y constitucionales, los agentes/gestores no ejercen el corretaje inmobiliario. Todas las operaciones inmobiliarias son objeto de intermediación y conclusión por parte del corredor público inmobiliario colegiado a cargo de la publicación, cuyos datos se exhiben en la presente. La presente publicación describe las características esenciales del inmueble, debiéndose consultar al corredor público inmobiliario responsable de la operación por la eventual actualización de las medidas, descripciones arquitectónicas y funcionales, valores de expensas, servicios, impuestos, precios y demás información, cuyos valores son aproximados.

Contactar
1/13
Visto

0

USD 68.000

LOTE 100

Terreno en Venta en Santo Tome, La Capital

REMAX Futuro
  • 1.000 m² Total
  • Bueno

VENTA LOTE DE 1.000 M2 EN NUEVOS AIRES - BARRIO 6

Corredor responsable: marcos provvidenti cci sta fe n 0198 - contacto: matias nellmeldin se vende el lote 24, de la manzana 9, del barrio 6 “la manza”, dentro del exclusivo barrio privado \"nuevos aires\", ubicado a pocos metros del ingreso principal. Cuenta con 1.000 m2, espacio más que suficiente para que tu proyecto tenga jardín, pileta, parrilla, amplios ambientes y todo lo que sueñas. Ideal para construir tu hogar y disfrutar de un entorno tranquilo, seguro y rodeado de naturaleza. Nuevos aires brinda la serenidad de un barrio privado, ofreciendo infraestructura completa, espacios verdes y una comunidad en crecimiento. Lo que lo hace especial: * ubicado muy cerca del ingreso, lo que da comodidad y ahorro de tiempo al entrar y/o salir del barrio. * Terreno amplio: ideal para diseñar una casa moderna con espacios al aire libre, jardín, zonas sociales grandes, terraza, etc. * Con buena proyección de valorización ya que nuevos aires es uno de los desarrollos con mayor demanda en zonas de country de santo tomé, y sus precios vienen en alza en los últimos meses siendo una excelente opción de inversión patrimonial. * Infraestructura y servicios generales del country: acceso a agua potable, electricidad, gas natural, alumbrado público, tratamiento cloacal (según el barrio). * Amenities disponibles en el barrio: espacios verdes, lagunas artificiales, circuitos de recreación, seguridad 24 hs., Ingreso controlado, entre otros. Es ideal para vos que buscás: * vivir tranquilo pero cerca de los puntos clave de santo tomé o santa fe. * Tener un terreno amplio para distender, hacer reuniones con amigos/familia, disfrutar al aire libre. * Invertir en un barrio privado que ya está delimitado, con servicios y buena infraestructura. Rau s.R.L. No ejerce el corretaje inmobiliario. El presente sitio web es una plataforma en donde cada oficina inmobiliaria independiente que contrata los servicios re/max puede publicar las propiedades a su cargo. Cada oficina es de propiedad y gestión independiente, por lo que rau s.R.L. No interviene en los datos de la publicación, en la operación inmobiliaria, ni en la confección y/o firma del boleto de compraventa y/o escritura y/o contrato de alquiler. En cumplimiento de las leyes vigentes que regulan el corretaje inmobiliario, ley nacional 25.028, ley 22.802 de lealtad comercial, ley 24.240 de defensa al consumidor, las normas del código civil y comercial de la nación y constitucionales, los agentes/gestores no ejercen el corretaje inmobiliario. Todas las operaciones inmobiliarias son objeto de intermediación y conclusión por parte del corredor público inmobiliario colegiado a cargo de la publicación, cuyos datos se exhiben en la presente. La presente publicación describe las características esenciales del inmueble, debiéndose consultar al corredor público inmobiliario responsable de la operación por la eventual actualización de las medidas, descripciones arquitectónicas y funcionales, valores de expensas, servicios, impuestos, precios y demás información, cuyos valores son aproximados.

Contactar
1/6
Visto

0

USD 67.000

Autopista Rosario - Santa Fe

Terreno en Venta en Santo Tome, Departamento de Santa Fe La Capital

  • 1.000 m² Total

VENDE TERRENO EN NUEVOS AIRES, BARRIO 5 LA SERENA

Corredor responsable: juan josé gómez cochia cci 174 - contacto: maria florencia elizalde remax click vende lote n°4 de casi 1.000 mts², manzana 4, ubicado en el barrio 5 \"la serena\" del country club nuevos aires, barrio habilitado a construir. El terreno se encuentra en el barrio privado nuevos aires, a sólo 5 minutos de la ciudad de santa fe y una zona de alto valor residencial en pleno crecimiento y desarrollo.. Se trata de un lote ubicado cerca del ingreso al barrio, lo que otorga fluidez para el ingreso y egreso al mismo. El barrio la serena del country club nuevos aires cuenta con con servicios de luz, agua, planta de tratamientos cloacales, seguridad privada, ingresos separados. Amenities: canchas de futbol, tenis, sum con piscina, circuitos aeróbicos y más de 8000 m2 de espacios libres con juegos infantiles no dudes en consultar por éste hermoso terreno, listo para empezar a construir! Rau s.R.L. No ejerce el corretaje inmobiliario. El presente sitio web es una plataforma en donde cada oficina inmobiliaria independiente que contrata los servicios re/max puede publicar las propiedades a su cargo. Cada oficina es de propiedad y gestión independiente, por lo que rau s.R.L. No interviene en los datos de la publicación, en la operación inmobiliaria, ni en la confección y/o firma del boleto de compraventa y/o escritura y/o contrato de alquiler. En cumplimiento de las leyes vigentes que regulan el corretaje inmobiliario, ley nacional 25.028, ley 22.802 de lealtad comercial, ley 24.240 de defensa al consumidor, las normas del código civil y comercial de la nación y constitucionales, los agentes/gestores no ejercen el corretaje inmobiliario. Todas las operaciones inmobiliarias son objeto de intermediación y conclusión por parte del corredor público inmobiliario colegiado a cargo de la publicación, cuyos datos se exhiben en la presente. La presente publicación describe las características esenciales del inmueble, debiéndose consultar al corredor público inmobiliario responsable de la operación por la eventual actualización de las medidas, descripciones arquitectónicas y funcionales, valores de expensas, servicios, impuestos, precios y demás información, cuyos valores son aproximados.

Contactar
1/11
Visto

0

USD 65.000

Colectora Countrys 1900

Terreno en Venta en Santo Tome, Departamento de Santa Fe La Capital

REMAX Litoral
  • 525 m² Total
  • Excelente

LOTE EN LA TATENGUITA, SANTO TOME

Corredor responsable: caroline hogner cci sta fe n 0042 - contacto: pablo alberto muller terreno en venta 525m² santo tome santa fe - apto crédito lote estratégicamente ubicado sobre colectora countrys en santo tomé, santa fe, con una superficie de 525m² en estado impecable y completamente a estrenar. Propiedad ideal para desarrollar la casa de tus sueños en un entorno familiar y mucho verde. La parcela presenta condiciones óptimas para proyectos residenciales, con topografía regular y acceso directo desde la colectora. Su ubicación privilegiada permite múltiples alternativas de desarrollo, garantizando una inversión segura y de alto valor patrimonial. Zona con infraestructura urbana consolidada, servicios completos y conectividad directa. Entorno de alto crecimiento inmobiliario que asegura una plusvalía sostenida. Documentación y permisos al día, totalmente saneado para tramitación inmediata. Superficie total: 525 m² zonificación: residencial servicios: luz, gas natural y cloacas factibilidad: construcción inmediata excelente oportunidad para inversores y desarrolladores con visión estratégica en el mercado inmobiliario de santa fe. Ultimos lotes en el complejo rau s.R.L. No ejerce el corretaje inmobiliario. El presente sitio web es una plataforma en donde cada oficina inmobiliaria independiente que contrata los servicios re/max puede publicar las propiedades a su cargo. Cada oficina es de propiedad y gestión independiente, por lo que rau s.R.L. No interviene en los datos de la publicación, en la operación inmobiliaria, ni en la confección y/o firma del boleto de compraventa y/o escritura y/o contrato de alquiler. En cumplimiento de las leyes vigentes que regulan el corretaje inmobiliario, ley nacional 25.028, ley 22.802 de lealtad comercial, ley 24.240 de defensa al consumidor, las normas del código civil y comercial de la nación y constitucionales, los agentes/gestores no ejercen el corretaje inmobiliario. Todas las operaciones inmobiliarias son objeto de intermediación y conclusión por parte del corredor público inmobiliario colegiado a cargo de la publicación, cuyos datos se exhiben en la presente. La presente publicación describe las características esenciales del inmueble, debiéndose consultar al corredor público inmobiliario responsable de la operación por la eventual actualización de las medidas, descripciones arquitectónicas y funcionales, valores de expensas, servicios, impuestos, precios y demás información, cuyos valores son aproximados.

Contactar
1/10
Visto

0

USD 65.000

Colectora Countrys 1900

Terreno en Venta en Santo Tome, Departamento de Santa Fe La Capital

REMAX Litoral
  • 525 m² Total
  • Excelente

LOTE EN LA TATENGUITA

Corredor responsable: caroline hogner cci sta fe n 0042 - contacto: pablo alberto muller venta terreno 525 m2 colectora countrys santo tome santa fe lote urbano estratégicamente ubicado sobre colectora countrys en santo tomé, provincia de santa fe. Superficie de 525 m² con características óptimas para desarrollo inmobiliario o proyecto personal de vivienda. Terreno completamente plano, sin construcciones previas, en estado a estrenar. Ubicación privilegiada con excelente accesibilidad y conectividad, representa una oportunidad de inversión en zona de expansión urbana con potencial de valorización. La parcela dispone de servicios completos: red de electricidad, gas natural y cloacas. Zonificación que permite múltiples opciones constructivas, ideal para proyectar la casa la casa de tus sueños, en un entorno familiar , con mucho verde y completamente forestado. Medidas regulares que facilitan diseño arquitectónico y constructivo. Entorno de desarrollo inmobiliario consolidado, próximo a infraestructuras urbanas y accesos principales de la ciudad. Propiedad con documentación completamente saneada, libre de gravámenes y lista para escrituración inmediata. Valor acorde a condiciones actuales del mercado local. Ultimos lotes del complejo, contacte para obtener información detallada y coordinar visita al predio. Rau s.R.L. No ejerce el corretaje inmobiliario. El presente sitio web es una plataforma en donde cada oficina inmobiliaria independiente que contrata los servicios re/max puede publicar las propiedades a su cargo. Cada oficina es de propiedad y gestión independiente, por lo que rau s.R.L. No interviene en los datos de la publicación, en la operación inmobiliaria, ni en la confección y/o firma del boleto de compraventa y/o escritura y/o contrato de alquiler. En cumplimiento de las leyes vigentes que regulan el corretaje inmobiliario, ley nacional 25.028, ley 22.802 de lealtad comercial, ley 24.240 de defensa al consumidor, las normas del código civil y comercial de la nación y constitucionales, los agentes/gestores no ejercen el corretaje inmobiliario. Todas las operaciones inmobiliarias son objeto de intermediación y conclusión por parte del corredor público inmobiliario colegiado a cargo de la publicación, cuyos datos se exhiben en la presente. La presente publicación describe las características esenciales del inmueble, debiéndose consultar al corredor público inmobiliario responsable de la operación por la eventual actualización de las medidas, descripciones arquitectónicas y funcionales, valores de expensas, servicios, impuestos, precios y demás información, cuyos valores son aproximados.

Contactar
1/2
Visto

0

USD 74.000

Consultar dirección

Terreno en Venta en Santo Tome, Departamento de Santa Fe La Capital

  • 813 m² Total
  • Excelente

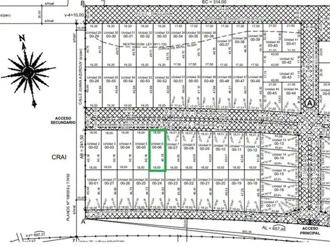
Lote en venta – Solares de Paucke, 813 m²

Corredor responsable: natalia magali lopez cci 664 - contacto: alexis galfre ubicado en una de las zonas más buscadas de santo tomé, este lote de 813 m² se encuentra sobre el boulevard principal de solares de paucke, un barrio privado consolidado, con excelente entorno y accesibilidad. - Frente de 18 metros - fondo de más de 45 metros - escrituración inmediata - todos los servicios disponibles - a metros del club crai y con fácil acceso a autopista ideal para quienes buscan construir su hogar o invertir en una zona en crecimiento, rodeada de naturaleza, seguridad y calidad de vida. No dejes pasar esta oportunidad en uno de los barrios con mayor proyección de la región. Consultanos y coordinamos una visita. Rau s.R.L. No ejerce el corretaje inmobiliario. El presente sitio web es una plataforma en donde cada oficina inmobiliaria independiente que contrata los servicios re/max puede publicar las propiedades a su cargo. Cada oficina es de propiedad y gestión independiente, por lo que rau s.R.L. No interviene en los datos de la publicación, en la operación inmobiliaria, ni en la confección y/o firma del boleto de compraventa y/o escritura y/o contrato de alquiler. En cumplimiento de las leyes vigentes que regulan el corretaje inmobiliario, ley nacional 25.028, ley 22.802 de lealtad comercial, ley 24.240 de defensa al consumidor, las normas del código civil y comercial de la nación y constitucionales, los agentes/gestores no ejercen el corretaje inmobiliario. Todas las operaciones inmobiliarias son objeto de intermediación y conclusión por parte del corredor público inmobiliario colegiado a cargo de la publicación, cuyos datos se exhiben en la presente. La presente publicación describe las características esenciales del inmueble, debiéndose consultar al corredor público inmobiliario responsable de la operación por la eventual actualización de las medidas, descripciones arquitectónicas y funcionales, valores de expensas, servicios, impuestos, precios y demás información, cuyos valores son aproximados.

Contactar
1/3
Visto

0

USD 65.000

Autopista Rosario - Santa Fe

Terreno en Venta en Santo Tome, Departamento de Santa Fe La Capital

REMAX BIG
  • 1.000 m² Total
  • Excelente

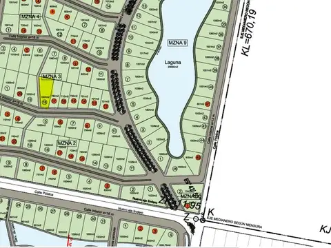
Lote Nuevos Aires Barrio 5 "La Serena"

Corredor responsable: maria gisela di pangrazio cci santa fe n 0425 - contacto: hernan lazzarotto terreno a la venta en barrio 5 \" la serena \" del country nuevos aires. Terreno 1.000 m2 . Manzana 3. Lote nº 1. Buena ubicacion. No perimetral. Con posesión inmediata. Listo para construir. Rau s.R.L. No ejerce el corretaje inmobiliario. El presente sitio web es una plataforma en donde cada oficina inmobiliaria independiente que contrata los servicios re/max puede publicar las propiedades a su cargo. Cada oficina es de propiedad y gestión independiente, por lo que rau s.R.L. No interviene en los datos de la publicación, en la operación inmobiliaria, ni en la confección y/o firma del boleto de compraventa y/o escritura y/o contrato de alquiler. En cumplimiento de las leyes vigentes que regulan el corretaje inmobiliario, ley nacional 25.028, ley 22.802 de lealtad comercial, ley 24.240 de defensa al consumidor, las normas del código civil y comercial de la nación y constitucionales, los agentes/gestores no ejercen el corretaje inmobiliario. Todas las operaciones inmobiliarias son objeto de intermediación y conclusión por parte del corredor público inmobiliario colegiado a cargo de la publicación, cuyos datos se exhiben en la presente. La presente publicación describe las características esenciales del inmueble, debiéndose consultar al corredor público inmobiliario responsable de la operación por la eventual actualización de las medidas, descripciones arquitectónicas y funcionales, valores de expensas, servicios, impuestos, precios y demás información, cuyos valores son aproximados.

Contactar
1/8
Visto

0

Consultar precio

Zona Barrios Privados (3016), Santa Fe Capital, Santa Fe, Argentina

Terreno en Venta en Santo Tome, Departamento de Santa Fe La Capital

REMAX Litoral
  • 700 m² Total
  • Excelente

Lote en Barrio privado La Reserva Nro 26

Corredor responsable: caroline hogner cci sta fe n 0042 - contacto: nanci raquel jarisz lote de 700m² en venta en barrio privado la reserva, santo tomé, santa fe se trata del lote n°26 de 700m² (20m x 34,79m) ubicado en el exclusivo barrio privado la reserva, en la ciudad de santo tomé, santa fe. Cuenta con una excelente ubicación, con acceso por la colectora de la autopista rosario - santa fe, a minutos del centro de la ciudad. El barrio privado la reserva ofrece servicios de gas natural, electricidad, cloacas e internet por fibra óptica. Además, se encuentra en desarrollo el paseo comercial a cielo abierto las acacias, que ya cuenta con un supermercado, gimnasio, centro medico, entre otros comercios y servicios. El terreno se encuentra en excelente estado general y está desarrollado bajo la figura de conjunto inmobiliario, de acuerdo con el nuevo código civil, lo que garantiza las últimas tecnologías y estándares de calidad. Rau s.R.L. No ejerce el corretaje inmobiliario. El presente sitio web es una plataforma en donde cada oficina inmobiliaria independiente que contrata los servicios re/max puede publicar las propiedades a su cargo. Cada oficina es de propiedad y gestión independiente, por lo que rau s.R.L. No interviene en los datos de la publicación, en la operación inmobiliaria, ni en la confección y/o firma del boleto de compraventa y/o escritura y/o contrato de alquiler. En cumplimiento de las leyes vigentes que regulan el corretaje inmobiliario, ley nacional 25.028, ley 22.802 de lealtad comercial, ley 24.240 de defensa al consumidor, las normas del código civil y comercial de la nación y constitucionales, los agentes/gestores no ejercen el corretaje inmobiliario. Todas las operaciones inmobiliarias son objeto de intermediación y conclusión por parte del corredor público inmobiliario colegiado a cargo de la publicación, cuyos datos se exhiben en la presente. La presente publicación describe las características esenciales del inmueble, debiéndose consultar al corredor público inmobiliario responsable de la operación por la eventual actualización de las medidas, descripciones arquitectónicas y funcionales, valores de expensas, servicios, impuestos, precios y demás información, cuyos valores son aproximados.

Contactar
1/5
Visto

0

USD 68.000

Autopista Rosario - Santa Fe 100

Terreno en Venta en Santo Tome, La Capital

REMAX Futuro
  • 866 m² Total
  • Excelente

Venta Lote Solares del Pauke 083

Corredor responsable: marcos provvidenti cci sta fe n 0198 - contacto: marcelo christen remax futuro vende lote en solares del pauke - n°083 terreno de 866m2 con frente al sur a metros del ingreso al country cuenta con todos los servicios: cloacas, electricidad, gas natural, alumbrado publico, agua corriente y seguridad privada las 24 horas documentacion al dia para escriturar posesion inmediata, listo para construir rau s.R.L. No ejerce el corretaje inmobiliario. El presente sitio web es una plataforma en donde cada oficina inmobiliaria independiente que contrata los servicios re/max puede publicar las propiedades a su cargo. Cada oficina es de propiedad y gestión independiente, por lo que rau s.R.L. No interviene en los datos de la publicación, en la operación inmobiliaria, ni en la confección y/o firma del boleto de compraventa y/o escritura y/o contrato de alquiler. En cumplimiento de las leyes vigentes que regulan el corretaje inmobiliario, ley nacional 25.028, ley 22.802 de lealtad comercial, ley 24.240 de defensa al consumidor, las normas del código civil y comercial de la nación y constitucionales, los agentes/gestores no ejercen el corretaje inmobiliario. Todas las operaciones inmobiliarias son objeto de intermediación y conclusión por parte del corredor público inmobiliario colegiado a cargo de la publicación, cuyos datos se exhiben en la presente. La presente publicación describe las características esenciales del inmueble, debiéndose consultar al corredor público inmobiliario responsable de la operación por la eventual actualización de las medidas, descripciones arquitectónicas y funcionales, valores de expensas, servicios, impuestos, precios y demás información, cuyos valores son aproximados.

Contactar
1/6
Visto

0

USD 65.000

Autopista Rosario - Santa Fe

Terreno en Venta en Santo Tome, Departamento de Santa Fe La Capital

  • 1.000 m² Total
  • Excelente

LOTE EN VENTA EN COUNTRY NUEVOS AIRES, BARRIO 6

Corredor responsable: juan josé gómez cochia cci 174 - contacto: hernan utrera se ofrece a la venta excelente lote de 1000 m² ubicado en la manzana 3, lote 18 del exclusivo country nuevos aires, dentro del barrio 6. -Superficie total: 1004 m² - ubicación estratégica dentro del barrio, ideal para proyecto residencial -entorno natural, seguridad 24 hs y acceso a amenities de primer nivel nuevos aires es un proyecto de country que combina naturaleza, confort y calidad de vida. Rau s.R.L. No ejerce el corretaje inmobiliario. El presente sitio web es una plataforma en donde cada oficina inmobiliaria independiente que contrata los servicios re/max puede publicar las propiedades a su cargo. Cada oficina es de propiedad y gestión independiente, por lo que rau s.R.L. No interviene en los datos de la publicación, en la operación inmobiliaria, ni en la confección y/o firma del boleto de compraventa y/o escritura y/o contrato de alquiler. En cumplimiento de las leyes vigentes que regulan el corretaje inmobiliario, ley nacional 25.028, ley 22.802 de lealtad comercial, ley 24.240 de defensa al consumidor, las normas del código civil y comercial de la nación y constitucionales, los agentes/gestores no ejercen el corretaje inmobiliario. Todas las operaciones inmobiliarias son objeto de intermediación y conclusión por parte del corredor público inmobiliario colegiado a cargo de la publicación, cuyos datos se exhiben en la presente. La presente publicación describe las características esenciales del inmueble, debiéndose consultar al corredor público inmobiliario responsable de la operación por la eventual actualización de las medidas, descripciones arquitectónicas y funcionales, valores de expensas, servicios, impuestos, precios y demás información, cuyos valores son aproximados.

Contactar
1/8
Visto

0

USD 65.000

Autopista Santa Fe - Rosario 100

Terreno en Venta en Santo Tome, La Capital

REMAX Futuro
  • 700 m² Total

Lote Barrio 6 "La Mansa", Country Nuevos Aires

Corredor responsable: marcos provvidenti cci sta fe n 0198 - contacto: melina carmele se trata de un lote de 700 m2, identificado como lote 6, ubicado en la manzana 2, del barrio 6 \"la mansa\", de nuevos aires country club. El country brinda un entorno tranquilo y relajado, con seguridad 24hs. Para quienes deseen vivir allí. En el mismo se pueden apreciar parques verdes y lagunas que permiten mantener el contacto con la naturaleza, y espacios sociales tales como sum y canchas deportivas. Además, cada barrio cuenta con una entrada independiente para facilitar el acceso y la comodidad de sus habitantes. Las calles de ingreso al country están hechas de hormigón, y las interiores de mejorado. Dicho barrio aún se encuentra en estado de construcción, realizándose las obras de luz pública y cloacas. Fecha de entrega estimada: 2026 rau s.R.L. No ejerce el corretaje inmobiliario. El presente sitio web es una plataforma en donde cada oficina inmobiliaria independiente que contrata los servicios re/max puede publicar las propiedades a su cargo. Cada oficina es de propiedad y gestión independiente, por lo que rau s.R.L. No interviene en los datos de la publicación, en la operación inmobiliaria, ni en la confección y/o firma del boleto de compraventa y/o escritura y/o contrato de alquiler. En cumplimiento de las leyes vigentes que regulan el corretaje inmobiliario, ley nacional 25.028, ley 22.802 de lealtad comercial, ley 24.240 de defensa al consumidor, las normas del código civil y comercial de la nación y constitucionales, los agentes/gestores no ejercen el corretaje inmobiliario. Todas las operaciones inmobiliarias son objeto de intermediación y conclusión por parte del corredor público inmobiliario colegiado a cargo de la publicación, cuyos datos se exhiben en la presente. La presente publicación describe las características esenciales del inmueble, debiéndose consultar al corredor público inmobiliario responsable de la operación por la eventual actualización de las medidas, descripciones arquitectónicas y funcionales, valores de expensas, servicios, impuestos, precios y demás información, cuyos valores son aproximados.

Contactar
1/1
Visto

0

USD 74.000

Consultar dirección

Terreno en Venta en Santo Tome, Departamento de Santa Fe La Capital

  • 808 m² Total
  • Excelente

Lote en venta – Solares de Paucke, 808 m²

Corredor responsable: natalia magali lopez cci 664 - contacto: alexis galfre ubicado en una de las zonas más buscadas de santo tomé, este lote de 808 m² se encuentra sobre el boulevard principal de solares de paucke, un barrio privado consolidado, con excelente entorno y accesibilidad. Frente de 18 metros fondo de más de 44,63 metros escrituración inmediata todos los servicios disponibles a metros del club crai y con fácil acceso a autopista ideal para quienes buscan construir su hogar o invertir en una zona en crecimiento, rodeada de naturaleza, seguridad y calidad de vida. No dejes pasar esta oportunidad en uno de los barrios con mayor proyección de la región. Consultanos y coordinamos una visita. Rau s.R.L. No ejerce el corretaje inmobiliario. El presente sitio web es una plataforma en donde cada oficina inmobiliaria independiente que contrata los servicios re/max puede publicar las propiedades a su cargo. Cada oficina es de propiedad y gestión independiente, por lo que rau s.R.L. No interviene en los datos de la publicación, en la operación inmobiliaria, ni en la confección y/o firma del boleto de compraventa y/o escritura y/o contrato de alquiler. En cumplimiento de las leyes vigentes que regulan el corretaje inmobiliario, ley nacional 25.028, ley 22.802 de lealtad comercial, ley 24.240 de defensa al consumidor, las normas del código civil y comercial de la nación y constitucionales, los agentes/gestores no ejercen el corretaje inmobiliario. Todas las operaciones inmobiliarias son objeto de intermediación y conclusión por parte del corredor público inmobiliario colegiado a cargo de la publicación, cuyos datos se exhiben en la presente. La presente publicación describe las características esenciales del inmueble, debiéndose consultar al corredor público inmobiliario responsable de la operación por la eventual actualización de las medidas, descripciones arquitectónicas y funcionales, valores de expensas, servicios, impuestos, precios y demás información, cuyos valores son aproximados.

Contactar